178 W Hampton Drive Fort Myers, FL 33908
For Sale MLS# 2025009207
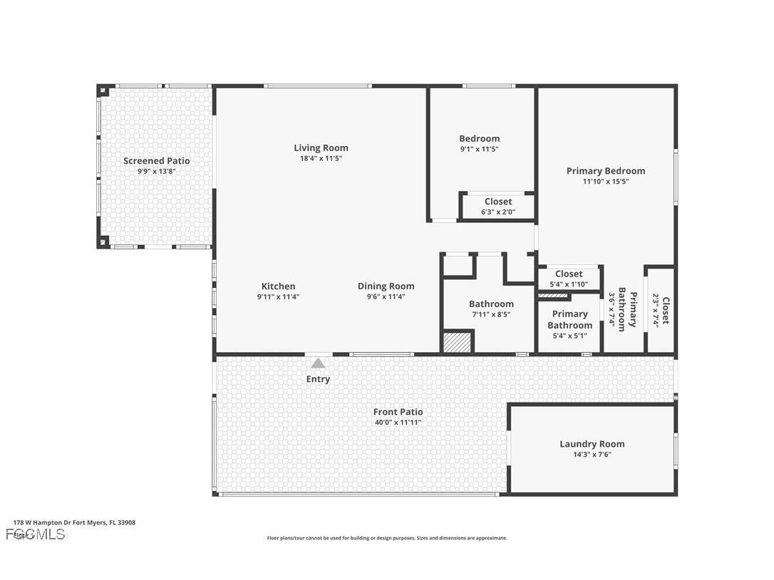
2 beds 2 baths 960 sq ft Single Family
Details for 178 W Hampton Drive
MLS# 2025009207
Description for 178 W Hampton Drive, Fort Myers, FL, 33908
Own the land! This is your opportunity to live in a community that has Gulf access with a private community boat ramp and storage you can be in open water in a 10-15 boat ride. This completely remodeled home is located conveniently off of 41 with ease access to I75, the airport, malls, shopping, grocery, the list goes on. This hidden gem is waiting for its new owners! schedule your showing today!
Listing Information
Property Type: Residential, Manufactured Home
Status: Active
Bedrooms: 2
Bathrooms: 2
Lot Size: 0.09 Acres
Square Feet: 960 sq ft
Year Built: 1977
Stories: 1 Story
Construction: Aluminum Siding,Manufactured
Subdivision: Coachlight Manor Mobile Home
Furnished: Yes
County: Lee
Days On Market: 95
Construction Status: Resale
School Information
Elementary: School Choice
Middle: School Choice
High: School Choice
Room Information
Bathrooms
Full Baths: 2
Additonal Room Information
Laundry: In Garage
Interior Features
Appliances: Dishwasher, Dryer, Freezer, Microwave, Refrigerator, Washer, Electric Cooktop
Flooring: Laminate
Doors/Windows: Impact Glass
Additional Interior Features: Eat-In Kitchen, Bedroom on Main Level, Kitchen Island, Separate Shower, Shower Only, Living/Dining Room
Utilities
Water: Assessment Paid
Sewer: Assessment Paid
Other Utilities: Cable Available,High Speed Internet Available
Cooling: Electric, Ceiling Fan(s), Central Air
Heating: Central, Electric
Exterior / Lot Features
Parking Description: Paved, Attached Carport
Roof: Shingle
Pool: Community
Lot Dimensions: 50 x 75 x 50 x 75
Zoning: MH-2
Additional Exterior/Lot Features: Courtyard, None, Rectangular Lot
Community Features
Community Features: Boat Facilities
Association Amenities: Shuffleboard Court, Bocce Court, Boat Ramp, Pool
HOA Dues Include: Maintenance Grounds
Homeowners Association: Yes
Financial Considerations
Terms: Cash,Owner May Carry
Tax/Property ID: 18-46-25-01-00000.1780
Tax Amount: 1287.34
Tax Year: 2024
A broker reciprocity listing courtesy: Sellstate Max Performance
Based on information provided by FGCMLS. Internet Data Exchange information is provided exclusively for consumers’ personal, non-commercial use, and such information may not be used for any purpose other than to identify prospective properties consumers may be interested in purchasing. This data is deemed reliable but is not guaranteed to be accurate by Edina Realty, Inc., or by the MLS. Edina Realty, Inc., is not a multiple listing service (MLS), nor does it offer MLS access.
Copyright 2025 FGCMLS. All Rights Reserved.
Payment Calculator
Interest rate and annual percentage rate (APR) are based on current market conditions, are for informational purposes only, are subject to change without notice and may be subject to pricing add-ons related to property type, loan amount, loan-to-value, credit score and other variables. Estimated closing costs used in the APR calculation are assumed to be paid by the borrower at closing. If the closing costs are financed, the loan, APR and payment amounts will be higher. If the down payment is less than 20%, mortgage insurance may be required and could increase the monthly payment and APR. Contact us for details. Additional loan programs may be available. Accuracy is not guaranteed, and all products may not be available in all borrower's geographical areas and are based on their individual situation. This is not a credit decision or a commitment to lend.
Sales History & Tax Summary for 178 W Hampton Drive
Sales History
| Date | Price | Change |
|---|---|---|
| Currently not available. | ||
Tax Summary
| Tax Year | Estimated Market Value | Total Tax |
|---|---|---|
| Currently not available. | ||
Data powered by ATTOM Data Solutions. Copyright© 2025. Information deemed reliable but not guaranteed.
Schools
Schools nearby 178 W Hampton Drive
| Schools in attendance boundaries | Grades | Distance | Rating |
|---|---|---|---|
| Loading... | |||
| Schools nearby | Grades | Distance | Rating |
|---|---|---|---|
| Loading... | |||
Data powered by ATTOM Data Solutions. Copyright© 2025. Information deemed reliable but not guaranteed.
The schools shown represent both the assigned schools and schools by distance based on local school and district attendance boundaries. Attendance boundaries change based on various factors and proximity does not guarantee enrollment eligibility. Please consult your real estate agent and/or the school district to confirm the schools this property is zoned to attend. Information is deemed reliable but not guaranteed.
SchoolDigger ® Rating
The SchoolDigger rating system is a 1-5 scale with 5 as the highest rating. SchoolDigger ranks schools based on test scores supplied by each state's Department of Education. They calculate an average standard score by normalizing and averaging each school's test scores across all tests and grades.
Coming soon properties will soon be on the market, but are not yet available for showings.