17945 Grand Prosperity Drive Venice, FL 34293
For Sale MLS# N6140333
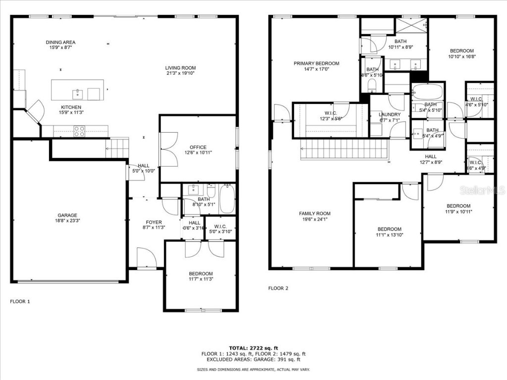
5 beds 3 baths 2,810 sq ft Single Family
Details for 17945 Grand Prosperity Drive
MLS# N6140333
Description for 17945 Grand Prosperity Drive, Venice, FL, 34293
BETTER THAN NEW with PREMIUM UPGRADES in SUNSTONE at WELLEN PARK! This stunning 2023-built turnkey dream home offers 5 bedrooms, 3 bathrooms, a versatile office/flex room, and a spacious loft on the second floor. With 2,810 sq/ft of living space, this open-concept floor-plan is perfect for modern living and is located on a premium preserve view lot for ultimate privacy and tranquility. The chef’s kitchen features tall shaker-style cabinets, quartz countertops, built-in oven and microwave, stylish backsplash, cooktop with range hood, walk-in pantry, and a large island with tiled side wall. The great room and dining area flow seamlessly outdoors to the extended, screened lanai, deal for entertaining with peaceful preserve views. (PRIVATE BACKYARD) UPGRADES INCLUDE: HURRICANE - IMPACT WINDOWS AND FRONT DOOR, EXTENDED SCREENED LANAI, EPOXY FINISHED GARAGE FLOOR WITH STORAGE RACKS, RECESSED LIGHTS ON SOCIAL AREAS, ALL STAIRS + WHOLE SECOND FLOOR CARPET REPLACED WITH LUXURY VINYL FLOORING,TESLA ELECTRIC CHARGER INSTALLED AND BLINDS ADDED THRU-OUT THE HOSUE. Bathrooms are elegantly finished with tile to the ceiling, and the primary suite offers a spacious bedroom, dual-sink vanity, walk-in shower, organized walk-in closet, and private toilet. The downstairs bedroom ensures privacy with its own walk-in closet, conveniently located on the 1st floor—perfect for in-laws or guests. Sunstone at Wellen Park offers resort-style amenities: zero-entry pool with lap lanes & hot tub, clubhouse with fitness center & studio, pickleball courts, playground, paw park, grilling areas, fire pit, and a full-time Lifestyle Director with year-round activities. A second amenity center at Sunstone Lakeside will also be available to all homeowners. HOA fee is $387 a month and covers lawn care, mulch, seasonal plantings, resort-style amenities, basic cable. NO FLOOD ZONE!!! Wellen Park also offers A-rated schools including Prodigy Early Learning, Primrose School, College Preparatory Academy at Wellen Park, and the State College of Florida. A new Sarasota County High School within the Master plan of Wellen Park expected to open 2026 school year, with plans to add a future K–8 school to the campus. From this neighborhood you can bike or golf to Downtown Wellen Park. Located in one of the top-ranked master-planned communities in the U.S.. The House its just 5 minutes from Downtown Wellen Park with restaurants, shops, trails, live music, water activities, and only 12 miles to the famous Gulf beaches, Venice Island and Manasota key beach. Gorgeous unique model in this Community you dont want to miss!!!
Listing Information
Property Type: Residential, Single Family Residence
Status: Active
Bedrooms: 5
Bathrooms: 3
Lot Size: 0.14 Acres
Square Feet: 2,810 sq ft
Year Built: 2023
Garage: Yes
Stories: 1 Story
Construction: Block,Stucco
Construction Display: New Construction
Subdivision: Sunstone At Wellen Park
Builder: Mattamy Homes
Foundation: Slab
County: Sarasota
Construction Status: New Construction
School Information
Elementary: Taylor Ranch Elementary
Middle: Venice Area Middle
High: Venice Senior High
Room Information
Main Floor
Den: 11x12.2
Great Room: 16x14.8
Bedroom 5: 11.5x11.6
Kitchen: 12x10
Dinette: 19x11.11
Upper Floor
Loft: 14.2x13.6
Bedroom 4: 11.6x11.2
Bedroom 3: 11.1x12
Bedroom 2: 11.1x11.1
Primary Bedroom: 14.7x15.2
Bathrooms
Full Baths: 3
Additonal Room Information
Laundry: Inside, Laundry Room
Interior Features
Appliances: Refrigerator, Cooktop, Dishwasher, Disposal, Dryer, Microwave, Washer, Range Hood, Electric Water Heater, Built-In Oven
Flooring: Luxury Vinyl,Tile
Doors/Windows: Blinds, Insulated Windows, Low-Emissivity Windows
Additional Interior Features: Walk-In Closet(s), Eat-In Kitchen, Upper Level Primary, Open Floorplan, Solid Surface Counters
Utilities
Water: Public
Sewer: Public Sewer
Other Utilities: Cable Available,Electricity Connected,High Speed Internet Available,Municipal Utilities,Phone Available,Sewer Connected,Underground Utilities,Water Connected
Cooling: Central Air
Heating: Central, Electric
Exterior / Lot Features
Attached Garage: Attached Garage
Garage Spaces: 2
Parking Description: Circular Driveway
Roof: Concrete, Tile
Pool: Community, Association, Other
Additional Exterior/Lot Features: Storm/Security Shutters, In-Wall Pest Control System, Sprinkler/Irrigation, Rear Porch, Covered, Landscaped
Community Features
Community Features: Pool, Sidewalks, Playground, Clubhouse, Dog Park, Gated, Park, Fitness
Security Features: Smoke Detector(s), Gated Community
Association Amenities: Pool, Recreation Facilities, Playground, Fitness Center, Maintenance Grounds, Park, Clubhouse, Gated, Pickleball
HOA Dues Include: Pool(s), Maintenance Grounds, Recreation Facilities, Cable TV
Homeowners Association: Yes
HOA Dues: $368 / Monthly
Driving Directions
USE GPS
Financial Considerations
Terms: Cash,Conventional,FHA,VA Loan
Tax/Property ID: 0807020333
Tax Amount: 2947
Tax Year: 2024
A broker reciprocity listing courtesy: REAL BROKER, LLC
Based on information provided by Stellar MLS as distributed by the MLS GRID. Information from the Internet Data Exchange is provided exclusively for consumers’ personal, non-commercial use, and such information may not be used for any purpose other than to identify prospective properties consumers may be interested in purchasing. This data is deemed reliable but is not guaranteed to be accurate by Edina Realty, Inc., or by the MLS. Edina Realty, Inc., is not a multiple listing service (MLS), nor does it offer MLS access.
Copyright 2025 Stellar MLS as distributed by the MLS GRID. All Rights Reserved.
Payment Calculator
Interest rate and annual percentage rate (APR) are based on current market conditions, are for informational purposes only, are subject to change without notice and may be subject to pricing add-ons related to property type, loan amount, loan-to-value, credit score and other variables. Estimated closing costs used in the APR calculation are assumed to be paid by the borrower at closing. If the closing costs are financed, the loan, APR and payment amounts will be higher. If the down payment is less than 20%, mortgage insurance may be required and could increase the monthly payment and APR. Contact us for details. Additional loan programs may be available. Accuracy is not guaranteed, and all products may not be available in all borrower's geographical areas and are based on their individual situation. This is not a credit decision or a commitment to lend.
Sales History & Tax Summary for 17945 Grand Prosperity Drive
Sales History
| Date | Price | Change |
|---|---|---|
| Currently not available. | ||
Tax Summary
| Tax Year | Estimated Market Value | Total Tax |
|---|---|---|
| Currently not available. | ||
Data powered by ATTOM Data Solutions. Copyright© 2025. Information deemed reliable but not guaranteed.
Schools
Schools nearby 17945 Grand Prosperity Drive
| Schools in attendance boundaries | Grades | Distance | Rating |
|---|---|---|---|
| Loading... | |||
| Schools nearby | Grades | Distance | Rating |
|---|---|---|---|
| Loading... | |||
Data powered by ATTOM Data Solutions. Copyright© 2025. Information deemed reliable but not guaranteed.
The schools shown represent both the assigned schools and schools by distance based on local school and district attendance boundaries. Attendance boundaries change based on various factors and proximity does not guarantee enrollment eligibility. Please consult your real estate agent and/or the school district to confirm the schools this property is zoned to attend. Information is deemed reliable but not guaranteed.
SchoolDigger ® Rating
The SchoolDigger rating system is a 1-5 scale with 5 as the highest rating. SchoolDigger ranks schools based on test scores supplied by each state's Department of Education. They calculate an average standard score by normalizing and averaging each school's test scores across all tests and grades.
Coming soon properties will soon be on the market, but are not yet available for showings.