1809 Myrtlebrooke Drive Edgewater, FL 32141
For Sale MLS# V4948198
5 beds 3 baths 2,674 sq ft Single Family
Details for 1809 Myrtlebrooke Drive
MLS# V4948198
Description for 1809 Myrtlebrooke Drive, Edgewater, FL, 32141
Priced to sell, this 5-bedroom home in Glenbrooke offers the space and layout buyers are actually looking for. The main living area is open and functional, designed for both everyday living and entertaining. A downstairs flex space provides the perfect setup for a home office, guest room, or home gym. Upstairs, a spacious second living room or loft creates a true additional gathering area, giving you flexibility without sacrificing flow. The layout is well-balanced with comfortable bedroom sizes and room for everyone to spread out. Out back, a fully fenced yard offers privacy and space for pets, entertaining, or simply enjoying the outdoors. Located just two homes from the community pool, you get the benefit of the amenity without the maintenance. Set in the Glenbrooke community, this home offers convenient access to shopping, dining, and major roadways.
Listing Information
Property Type: Residential, Single Family Residence
Status: Active
Bedrooms: 5
Bathrooms: 3
Lot Size: 0.13 Acres
Square Feet: 2,674 sq ft
Year Built: 2023
Garage: Yes
Stories: 2 Story
Construction: Block,Other,Stucco
Construction Display: New Construction
Subdivision: Glenbrooke Ph 2
Foundation: Block,Other,Slab
County: Volusia
Construction Status: New Construction
School Information
Elementary: Edgewater Public School
Middle: New Smyrna Beach Middl
High: New Smyrna Beach High
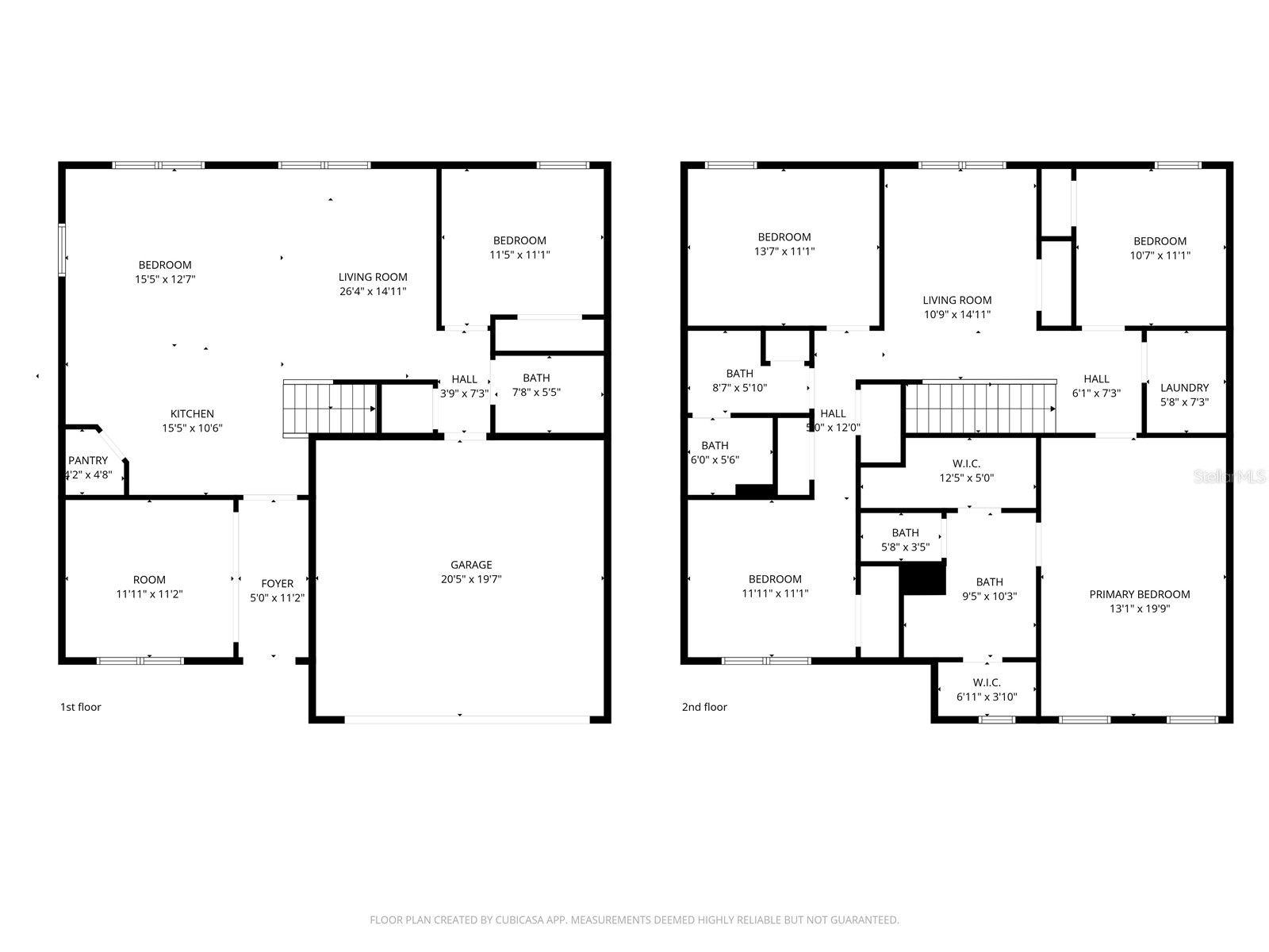
Room Information
Main Floor
Bathroom 1: 6x8
Bonus Room: 11x12
Living Room: 15x26
Kitchen: 11x15
Bedroom 1: 13x15
Dining Room: 13x16
Upper Floor
Primary Bathroom: 10x10
Bathroom 2: 6x9
Laundry: 7x6
Loft: 15x11
Primary Bedroom: 20x13
Bedroom 4: 12x12
Bedroom 3: 11x11
Bedroom 2: 11x14
Bathrooms
Full Baths: 3
Additonal Room Information
Laundry: Inside, Laundry Room, Upper Level
Interior Features
Appliances: Electric Water Heater, Washer, Microwave, Range, Refrigerator, Dishwasher, Dryer
Flooring: Carpet
Doors/Windows: Double Pane Windows
Additional Interior Features: Loft, Walk-In Closet(s), High Ceilings, Ceiling Fan(s), Eat-In Kitchen, Open Floorplan, Solid Surface Counters, Upper Level Primary, Kitchen/Family Room Combo
Utilities
Water: Public
Sewer: Public Sewer
Other Utilities: Cable Connected,Municipal Utilities,Sewer Connected,Water Connected
Cooling: Ceiling Fan(s), Central Air
Heating: Central
Exterior / Lot Features
Attached Garage: Attached Garage
Garage Spaces: 2
Parking Description: driveway, Garage, Garage Door Opener
Roof: Shingle
Fencing: Vinyl, fenced
Additional Exterior/Lot Features: Sprinkler/Irrigation, Lighting, Patio, Covered, Flat, Level, Landscaped, City Lot
Community Features
Community Features: Sidewalks
Security Features: Smoke Detector(s)
Homeowners Association: Yes
HOA Dues: $225 / Quarterly
Driving Directions
From I-95 or US-1, take FL-442 to Air Park Rd. Head south on Air Park Rd, then turn onto Glenbrooke Rd. Continue to Myrtlebrooke Dr and turn in. Home will be on the left at 1809 Myrtlebrooke Dr.
Financial Considerations
Terms: Cash,Conventional,FHA,VA Loan
Tax/Property ID: 8438-11-00-1990
Tax Amount: 5397.26
Tax Year: 2025
A broker reciprocity listing courtesy: KELLER WILLIAMS RLTY FL. PARTN
Based on information provided by Stellar MLS as distributed by the MLS GRID. Information from the Internet Data Exchange is provided exclusively for consumers’ personal, non-commercial use, and such information may not be used for any purpose other than to identify prospective properties consumers may be interested in purchasing. This data is deemed reliable but is not guaranteed to be accurate by Edina Realty, Inc., or by the MLS. Edina Realty, Inc., is not a multiple listing service (MLS), nor does it offer MLS access.
Copyright 2026 Stellar MLS as distributed by the MLS GRID. All Rights Reserved.
Payment Calculator
Interest rate and annual percentage rate (APR) are based on current market conditions, are for informational purposes only, are subject to change without notice and may be subject to pricing add-ons related to property type, loan amount, loan-to-value, credit score and other variables. Estimated closing costs used in the APR calculation are assumed to be paid by the borrower at closing. If the closing costs are financed, the loan, APR and payment amounts will be higher. If the down payment is less than 20%, mortgage insurance may be required and could increase the monthly payment and APR. Contact us for details. Additional loan programs may be available. Accuracy is not guaranteed, and all products may not be available in all borrower's geographical areas and are based on their individual situation. This is not a credit decision or a commitment to lend.
Sales History & Tax Summary for 1809 Myrtlebrooke Drive
Sales History
| Date | Price | |
|---|---|---|
| Currently not available. | ||
Tax Summary
| Tax Year | Estimated Market Value | Total Tax |
|---|---|---|
| Currently not available. | ||
Data powered by ATTOM Data Solutions. Copyright© 2026. Information deemed reliable but not guaranteed.
Schools
Schools nearby 1809 Myrtlebrooke Drive
| Schools in attendance boundaries | Grades | Distance | Rating |
|---|---|---|---|
| Loading... | |||
| Schools nearby | Grades | Distance | Rating |
|---|---|---|---|
| Loading... | |||
Data powered by ATTOM Data Solutions. Copyright© 2026. Information deemed reliable but not guaranteed.
The schools shown represent both the assigned schools and schools by distance based on local school and district attendance boundaries. Attendance boundaries change based on various factors and proximity does not guarantee enrollment eligibility. Please consult your real estate agent and/or the school district to confirm the schools this property is zoned to attend. Information is deemed reliable but not guaranteed.
SchoolDigger ® Rating
The SchoolDigger rating system is a 1-5 scale with 5 as the highest rating. SchoolDigger ranks schools based on test scores supplied by each state's Department of Education. They calculate an average standard score by normalizing and averaging each school's test scores across all tests and grades.
Coming soon properties will soon be on the market, but are not yet available for showings.