1810 NW 23rd Boulevard #183 Gainesville, FL 32605
For Sale MLS# GC534040
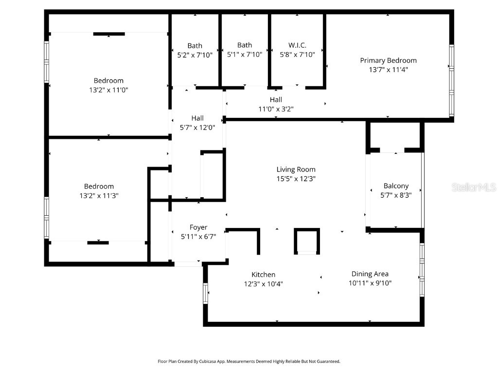
3 beds 2 baths 1,278 sq ft Condo
Details for 1810 NW 23rd Boulevard #183
MLS# GC534040
Description for 1810 NW 23rd Boulevard #183, Gainesville, FL, 32605
Turn-key three bedroom, two bath in Creeks Edge! Freshly painted interior and brand new carpet! This second floor unit features a spacious living room and dining room, perfect for hosting guests. The kitchen, that overlooks both the dining and living areas, has a refrigerator, range, dishwasher and microwave. There are three spacious bedrooms and two full bathrooms. Enjoy the evening on your private balcony that overlooks an abundant green space. Creeks Edge is filled with mature and unique landscape, a bridge that crosses over Hogtown creek and many areas to enjoy the beauty of the surroundings. The community also features tennis courts, a pool and a clubhouse. Creeks Edge is steps from Gainesville High School, less than 2 miles from UF and Downtown. Schedule your showing today!
Listing Information
Property Type: Residential, Condominium
Status: Active
Bedrooms: 3
Bathrooms: 2
Lot Size: 19.72 Acres
Square Feet: 1,278 sq ft
Year Built: 1972
Stories: 1 Story
Construction: Stucco
Subdivision: Creeks Edge Condo
Foundation: Slab
County: Alachua
School Information
Elementary: Glen Springs Elementary School-Al
Middle: Westwood Middle School-Al
High: Gainesville High School-Al
Room Information
Upper Floor
Living Room:
Kitchen:
Primary Bedroom:
Bathrooms
Full Baths: 2
Additonal Room Information
Laundry: Laundry Closet
Interior Features
Appliances: Dishwasher, Dryer, Microwave, Range, Refrigerator, Washer
Flooring: Carpet,Ceramic Tile
Doors/Windows: Window Treatments
Additional Interior Features: Ceiling Fan(s), Window Treatments, Living/Dining Room
Utilities
Water: Public
Sewer: Public Sewer
Other Utilities: Cable Connected,Electricity Connected,Sewer Connected
Cooling: Central Air, Ceiling Fan(s)
Heating: Central
Exterior / Lot Features
Roof: Shingle
Pool: Community
Additional Exterior/Lot Features: Balcony, Balcony, Landscaped
Community Features
Community Features: Pool, Tennis Court(s), Playground, Clubhouse
HOA Dues Include: Recreation Facilities, Maintenance Structure, Pool(s), Reserve Fund, Maintenance Grounds
Driving Directions
From the intersection of NW 13th Street and NW 23rd Ave, Turn west onto NW 23rd Ave. Take a right into Creeks Edge and the unit is in the northwest section of the community.
Financial Considerations
Terms: Cash,Conventional
Tax/Property ID: 09003-003-183
Tax Amount: 2957.1
Tax Year: 2024
A broker reciprocity listing courtesy: UNION PROPERTIES OF GAINESVILLE, INC.
Based on information provided by Stellar MLS as distributed by the MLS GRID. Information from the Internet Data Exchange is provided exclusively for consumers’ personal, non-commercial use, and such information may not be used for any purpose other than to identify prospective properties consumers may be interested in purchasing. This data is deemed reliable but is not guaranteed to be accurate by Edina Realty, Inc., or by the MLS. Edina Realty, Inc., is not a multiple listing service (MLS), nor does it offer MLS access.
Copyright 2025 Stellar MLS as distributed by the MLS GRID. All Rights Reserved.
Payment Calculator
Interest rate and annual percentage rate (APR) are based on current market conditions, are for informational purposes only, are subject to change without notice and may be subject to pricing add-ons related to property type, loan amount, loan-to-value, credit score and other variables. Estimated closing costs used in the APR calculation are assumed to be paid by the borrower at closing. If the closing costs are financed, the loan, APR and payment amounts will be higher. If the down payment is less than 20%, mortgage insurance may be required and could increase the monthly payment and APR. Contact us for details. Additional loan programs may be available. Accuracy is not guaranteed, and all products may not be available in all borrower's geographical areas and are based on their individual situation. This is not a credit decision or a commitment to lend.
Sales History & Tax Summary for 1810 NW 23rd Boulevard #183
Sales History
| Date | Price | Change |
|---|---|---|
| Currently not available. | ||
Tax Summary
| Tax Year | Estimated Market Value | Total Tax |
|---|---|---|
| Currently not available. | ||
Data powered by ATTOM Data Solutions. Copyright© 2025. Information deemed reliable but not guaranteed.
Schools
Schools nearby 1810 NW 23rd Boulevard #183
| Schools in attendance boundaries | Grades | Distance | Rating |
|---|---|---|---|
| Loading... | |||
| Schools nearby | Grades | Distance | Rating |
|---|---|---|---|
| Loading... | |||
Data powered by ATTOM Data Solutions. Copyright© 2025. Information deemed reliable but not guaranteed.
The schools shown represent both the assigned schools and schools by distance based on local school and district attendance boundaries. Attendance boundaries change based on various factors and proximity does not guarantee enrollment eligibility. Please consult your real estate agent and/or the school district to confirm the schools this property is zoned to attend. Information is deemed reliable but not guaranteed.
SchoolDigger ® Rating
The SchoolDigger rating system is a 1-5 scale with 5 as the highest rating. SchoolDigger ranks schools based on test scores supplied by each state's Department of Education. They calculate an average standard score by normalizing and averaging each school's test scores across all tests and grades.
Coming soon properties will soon be on the market, but are not yet available for showings.