18109 Canal Pointe Street Tampa, FL 33647
Pending MLS# TB8471104
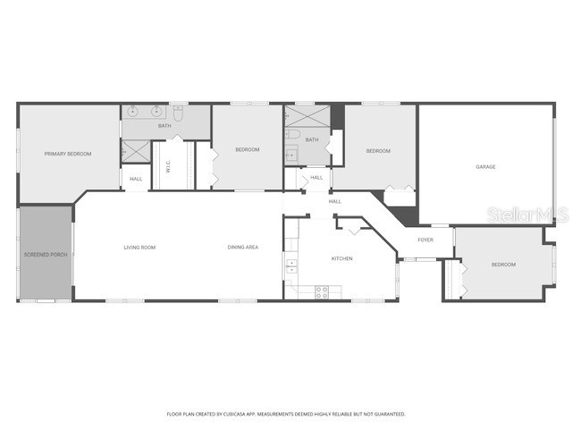
4 beds 2 baths 1,854 sq ft Single Family
Details for 18109 Canal Pointe Street
MLS# TB8471104
Description for 18109 Canal Pointe Street, Tampa, FL, 33647
Under contract-accepting backup offers. One or more photo(s) has been virtually staged. Welcome to 18109 Canal Pointe Street, a beautifully appointed 4-bedroom, 2-bath home located on the golf course in the highly sought-after, gated resort-style community of Heritage Isles. This 1,854 sq ft residence offers an open, airy layout with NO carpet—tile throughout, combining style, durability, and easy maintenance. The spacious great room is perfect for entertaining and everyday living, complemented by plantation shutters throughout the entire home that add timeless elegance. The kitchen features stainless steel appliances, breakfast nook, a wine fridge, ample cabinetry, and flows seamlessly into the living and dining areas. All bathrooms have been updated with modern fixtures and vanities with the primary bathroom featuring a walk-in closet and plumbing in place for an easy install of a stand alone bath tub if desired. Step outside to the screened-in porch and enjoy peaceful golf course views, ideal for morning coffee or evening relaxation. Heritage Isles offers unmatched amenities, including a golf course with pro shop, restaurant, clubhouse, fitness center, Olympic-size pool with a 2-story slide, kiddie pool, playground, park, tennis and basketball courts, and scenic walking and jogging paths—truly resort living at its finest. Conveniently located near Interstate 75, Wiregrass Mall, Tampa Premium Outlets, and abundant dining and shopping options, this home delivers both luxury and accessibility. Golf course living, resort-style amenities, and a prime Tampa location—this one checks every box.
Listing Information
Property Type: Residential, Single Family Residence
Status: Pending
Bedrooms: 4
Bathrooms: 2
Lot Size: 0.10 Acres
Square Feet: 1,854 sq ft
Year Built: 2002
Garage: Yes
Stories: 1 Story
Construction: Block,Stucco
Construction Display: New Construction
Subdivision: Heritage Isles Ph 1e Unit 2
Foundation: Slab
County: Hillsborough
Construction Status: New Construction
School Information
Elementary: Heritage-Hb
Middle: Benito-Hb
High: Wharton-Hb
Room Information
Main Floor
Primary Bedroom: 15x14
Kitchen: 10x16
Great Room: 15x29
Bathrooms
Full Baths: 2
Additonal Room Information
Laundry: Inside
Interior Features
Appliances: Wine Refrigerator, Washer, Range, Refrigerator, Microwave, Dishwasher, Disposal, Dryer
Flooring: Ceramic Tile
Doors/Windows: Window Treatments, Shutters
Additional Interior Features: Split Bedrooms, Window Treatments, Walk-In Closet(s), Eat-In Kitchen, Open Floorplan, Cathedral Ceiling(s), High Ceilings, Living/Dining Room, Main Level Primary
Utilities
Water: Public
Sewer: Public Sewer
Other Utilities: Cable Available,Electricity Available,Electricity Connected,High Speed Internet Available,Other,Phone Available,Sewer Connected,Underground Utilities,Water Available,Water Connected
Cooling: Central Air
Heating: Electric, Central
Exterior / Lot Features
Attached Garage: Attached Garage
Garage Spaces: 2
Roof: Shingle
Pool: Community, Association
Lot View: Golf Course
Lot Dimensions: 40x110
Additional Exterior/Lot Features: Private Entrance, Rain Gutters, Sprinkler/Irrigation, Rear Porch, Screened, On Golf Course
Community Features
Community Features: Sidewalks, Pool, Tennis Court(s), Playground, Clubhouse, Street Lights, Gated, Park, Restaurant, Fitness
Security Features: Gated Community, Gated with Guard
Association Amenities: Gated, Park, Pool, Playground, Tennis Court(s), Recreation Facilities, Clubhouse, Fitness Center, Basketball Court, Golf Course
Homeowners Association: Yes
HOA Dues: $100 / Annually
Driving Directions
North on Bruce B Downs , to Right on Cross Creek to Left on Sandy Pointe, Left on Isleworth, Right on Canal Pointe. Property is on the right.
Financial Considerations
Terms: Cash,Conventional,FHA,VA Loan
Tax/Property ID: A-09-27-20-5SH-000003-00005.0
Tax Amount: 5318.58
Tax Year: 2024
A broker reciprocity listing courtesy: SOUTHERN REALTY SERVICES LLC
Based on information provided by Stellar MLS as distributed by the MLS GRID. Information from the Internet Data Exchange is provided exclusively for consumers’ personal, non-commercial use, and such information may not be used for any purpose other than to identify prospective properties consumers may be interested in purchasing. This data is deemed reliable but is not guaranteed to be accurate by Edina Realty, Inc., or by the MLS. Edina Realty, Inc., is not a multiple listing service (MLS), nor does it offer MLS access.
Copyright 2026 Stellar MLS as distributed by the MLS GRID. All Rights Reserved.
Sales History & Tax Summary for 18109 Canal Pointe Street
Sales History
| Date | Price | |
|---|---|---|
| Currently not available. | ||
Tax Summary
| Tax Year | Estimated Market Value | Total Tax |
|---|---|---|
| Currently not available. | ||
Data powered by ATTOM Data Solutions. Copyright© 2026. Information deemed reliable but not guaranteed.
Schools
Schools nearby 18109 Canal Pointe Street
| Schools in attendance boundaries | Grades | Distance | Rating |
|---|---|---|---|
| Loading... | |||
| Schools nearby | Grades | Distance | Rating |
|---|---|---|---|
| Loading... | |||
Data powered by ATTOM Data Solutions. Copyright© 2026. Information deemed reliable but not guaranteed.
The schools shown represent both the assigned schools and schools by distance based on local school and district attendance boundaries. Attendance boundaries change based on various factors and proximity does not guarantee enrollment eligibility. Please consult your real estate agent and/or the school district to confirm the schools this property is zoned to attend. Information is deemed reliable but not guaranteed.
SchoolDigger ® Rating
The SchoolDigger rating system is a 1-5 scale with 5 as the highest rating. SchoolDigger ranks schools based on test scores supplied by each state's Department of Education. They calculate an average standard score by normalizing and averaging each school's test scores across all tests and grades.
Coming soon properties will soon be on the market, but are not yet available for showings.