$527,990
Off-Market Date: 10/17/202518115 Wheathouse Place Lakewood Ranch, FL 34211
Pending MLS# A4668899
5 beds 3 baths 2,605 sq ft Single Family
Details for 18115 Wheathouse Place
MLS# A4668899
Description for 18115 Wheathouse Place, Lakewood Ranch, FL, 34211
Under Construction. Receive special interest rates and up to $10,000 towards closing costs with the use of our preferred lender, now through October 19th. Star Farms at Lakewood Ranch is D.R. Horton's premier destination located in the award-winning master-planned community of Lakewood Ranch. Set within Southwest Florida's natural beauty and close to many popular area attractions, this 700-acre gated neighborhood will consist of 1,500 single-family homes, townhomes, and paired villas, all designed to meet the needs of today’s modern family. Star Farms is debuting our new Express Modern Series homes, ornamented with chic, contemporary exteriors and complete with matching trendy interior finishes. All homes will include luxury vinyl plank flooring in the main living areas, quartz countertops throughout, stainless steel appliances, and much more! All of our homes feature all-concrete block construction on the first and second floors and D.R. Horton’s state-of-the-art Smart Home Automation system. Homeowners will enjoy amenities that include The Resort Club, Cabana Corner, Junction Place, and scenic greenways and trails. For fun outside of the community, top dining, and shopping destinations, along with the area’s top-rated beaches are within close reach. Let America’s #1 Builder help you attain your piece of The Ranch at Star Farms at Lakewood Ranch
Listing Information
Property Type: Residential, Single Family Residence
Status: Pending
Bedrooms: 5
Bathrooms: 3
Lot Size: 0.17 Acres
Square Feet: 2,605 sq ft
Year Built: 2025
Garage: Yes
Stories: 2 Story
Construction: Block,Stucco
Construction Display: New Construction
Subdivision: Star Farms At Lakewood Ranch
Builder: D R Horton
Foundation: Slab
County: Manatee
Construction Status: Under Construction
School Information
Elementary: Gullett Elementary
Middle: Dr Mona Jain Middle
High: Lakewood Ranch High
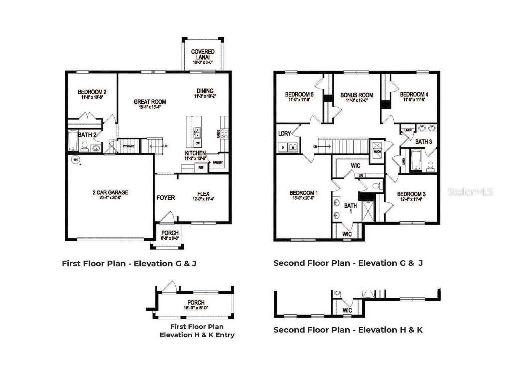
Room Information
Main Floor
Porch: 8x10
Bedroom 3: 11x12
Bedroom 2: 10x11
Primary Bedroom: 20x13
Kitchen: 13x11
Great Room: 15x15
Bathrooms
Full Baths: 3
Additonal Room Information
Laundry: Laundry Room
Interior Features
Appliances: Range, Refrigerator, Washer, Disposal, Dryer, Microwave, Electric Water Heater
Flooring: Carpet,Luxury Vinyl
Doors/Windows: Window Treatments
Additional Interior Features: Loft, Window Treatments, Kitchen/Family Room Combo, Solid Surface Counters, Open Floorplan, Smart Home, Upper Level Primary
Utilities
Water: Public
Sewer: Public Sewer
Other Utilities: Cable Available,Electricity Connected,Municipal Utilities,Phone Available,Sewer Connected,Water Connected
Cooling: Central Air
Heating: Heat Pump, Electric, Central
Exterior / Lot Features
Attached Garage: Attached Garage
Garage Spaces: 2
Parking Description: driveway, Garage Door Opener, Garage
Roof: Shingle
Pool: Community, Association, Other
Lot View: Pond,Water
Additional Exterior/Lot Features: Storm/Security Shutters, Sprinkler/Irrigation, Front Porch, Covered, Landscaped
Community Features
Community Features: Pool, Tennis Court(s), Playground, Gated, Park, Fitness
Security Features: Gated Community, Smoke Detector(s)
Association Amenities: Recreation Facilities, Playground, Pool, Maintenance Grounds, Gated, Clubhouse, Fitness Center, Security, Pickleball
HOA Dues Include: Pool(s), Maintenance Grounds, Recreation Facilities
Homeowners Association: Yes
HOA Dues: $256 / Monthly
Driving Directions
From I-75 South, take exit 220 to head eastbound on SR-64. After approximately 4.5 miles, go through the traffic circle and take the 2nd exit to remain on SR-64. Turn right onto Lorraine Rd. After approximately 1.5 miles, turn left on 44th Ave E. After approximately 1.5 miles, turn left onto Uihlein Rd. Community entrance will be ahead on your right.
Financial Considerations
Terms: Cash,Conventional,VA Loan
Tax/Property ID: 576246409
Tax Year: 2025
A broker reciprocity listing courtesy: D.R. HORTON REALTY OF SARASOTA
Based on information provided by Stellar MLS as distributed by the MLS GRID. Information from the Internet Data Exchange is provided exclusively for consumers’ personal, non-commercial use, and such information may not be used for any purpose other than to identify prospective properties consumers may be interested in purchasing. This data is deemed reliable but is not guaranteed to be accurate by Edina Realty, Inc., or by the MLS. Edina Realty, Inc., is not a multiple listing service (MLS), nor does it offer MLS access.
Copyright 2026 Stellar MLS as distributed by the MLS GRID. All Rights Reserved.
Sales History & Tax Summary for 18115 Wheathouse Place
Sales History
| Date | Price | |
|---|---|---|
| Currently not available. | ||
Tax Summary
| Tax Year | Estimated Market Value | Total Tax |
|---|---|---|
| Currently not available. | ||
Data powered by ATTOM Data Solutions. Copyright© 2026. Information deemed reliable but not guaranteed.
Schools
Schools nearby 18115 Wheathouse Place
| Schools in attendance boundaries | Grades | Distance | Rating |
|---|---|---|---|
| Loading... | |||
| Schools nearby | Grades | Distance | Rating |
|---|---|---|---|
| Loading... | |||
Data powered by ATTOM Data Solutions. Copyright© 2026. Information deemed reliable but not guaranteed.
The schools shown represent both the assigned schools and schools by distance based on local school and district attendance boundaries. Attendance boundaries change based on various factors and proximity does not guarantee enrollment eligibility. Please consult your real estate agent and/or the school district to confirm the schools this property is zoned to attend. Information is deemed reliable but not guaranteed.
SchoolDigger ® Rating
The SchoolDigger rating system is a 1-5 scale with 5 as the highest rating. SchoolDigger ranks schools based on test scores supplied by each state's Department of Education. They calculate an average standard score by normalizing and averaging each school's test scores across all tests and grades.
Coming soon properties will soon be on the market, but are not yet available for showings.