1815 Crowncrest Drive Apopka, FL 32703
For Sale MLS# O6335278
3 beds 3 baths 1,837 sq ft Single Family
Details for 1815 Crowncrest Drive
MLS# O6335278
Description for 1815 Crowncrest Drive, Apopka, FL, 32703
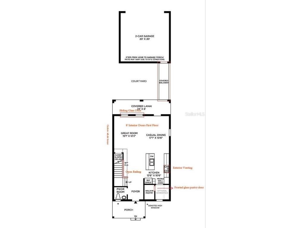
Under Construction. Toll Brothers New Construction at Bronson Peak. This home is conducive for entertaining with its open floor plan. This home features a covered entry that leads to an open and expansive living space, kitchen, and dining. The home features covered lanai and a spacious courtyard with access to the detached 2 cars garage. The master bedroom is highlighted by a large walk-in closet and a private bath with dual vanities, separate shower, and private water closet
Listing Information
Property Type: Residential, Single Family Residence
Status: Active
Bedrooms: 3
Bathrooms: 3
Lot Size: 0.09 Acres
Square Feet: 1,837 sq ft
Year Built: 2025
Garage: Yes
Stories: 2 Story
Construction: Block,Stucco,Wood Frame
Construction Display: New Construction
Subdivision: Bronson Peak
Builder: Toll Brothers
Foundation: Slab
County: Orange
Construction Status: Under Construction
School Information
Elementary: Apopka Elem
Middle: Wolf Lake Middle
High: Wekiva High
Room Information
Main Floor
Porch: 6x24
Great Room: 12x15
Dining Room: 10x17
Kitchen: 10x11
Upper Floor
Primary Bedroom: 14x16
Bedroom 3: 10x11
Bedroom 2: 10x11
Bathrooms
Full Baths: 2
1/2 Baths: 1
Additonal Room Information
Laundry: Inside, Laundry Room
Interior Features
Appliances: Range, Microwave, Dishwasher, Disposal, Tankless Water Heater, Gas Water Heater
Flooring: Carpet,Tile
Doors/Windows: Insulated Windows, Low-Emissivity Windows
Additional Interior Features: Eat-In Kitchen, Walk-In Closet(s), Tray Ceiling(s), Attic, Open Floorplan, Kitchen/Family Room Combo, Living/Dining Room, High Ceilings, Solid Surface Counters, Upper Level Primary
Utilities
Water: Public
Sewer: Public Sewer
Other Utilities: Cable Available,Cable Connected,Electricity Connected,Natural Gas Connected,Phone Available,Sewer Connected,Underground Utilities,Water Connected
Cooling: Central Air
Heating: Electric, Central
Exterior / Lot Features
Garage Spaces: 2
Parking Description: driveway, on street, Other
Roof: Shingle
Pool: Community, Association
Lot Dimensions: 34x120
Additional Exterior/Lot Features: Sprinkler/Irrigation, In-Wall Pest Control System, Front Porch, Rear Porch, Covered, Patio, Landscaped, City Lot
Out Buildings: Garage Apartment
Community Features
Community Features: Street Lights, Pool, Tennis Court(s), Playground, Sidewalks, Fitness, Clubhouse
Association Amenities: Park, Pickleball, Recreation Facilities, Tennis Court(s), Pool, Clubhouse, Fitness Center, Trail(s)
HOA Dues Include: Association Management, Taxes, Recreation Facilities, Common Areas, Reserve Fund, Pool(s)
Homeowners Association: Yes
HOA Dues: $123 / Monthly
Driving Directions
Heading West on SR 414, take exit 5 onto Marden Rd and turn right. Turn left onto Ocoee-Apopka Rd, then right onto Boy Scout Rd in .4 miles.
Financial Considerations
Terms: Cash,Conventional,FHA,USDA Loan
Tax/Property ID: 17-21-28-0936-02-630
Tax Amount: 2362.14
Tax Year: 2024
A broker reciprocity listing courtesy: ORLANDO TBI REALTY LLC
Based on information provided by Stellar MLS as distributed by the MLS GRID. Information from the Internet Data Exchange is provided exclusively for consumers’ personal, non-commercial use, and such information may not be used for any purpose other than to identify prospective properties consumers may be interested in purchasing. This data is deemed reliable but is not guaranteed to be accurate by Edina Realty, Inc., or by the MLS. Edina Realty, Inc., is not a multiple listing service (MLS), nor does it offer MLS access.
Copyright 2025 Stellar MLS as distributed by the MLS GRID. All Rights Reserved.
Payment Calculator
Interest rate and annual percentage rate (APR) are based on current market conditions, are for informational purposes only, are subject to change without notice and may be subject to pricing add-ons related to property type, loan amount, loan-to-value, credit score and other variables. Estimated closing costs used in the APR calculation are assumed to be paid by the borrower at closing. If the closing costs are financed, the loan, APR and payment amounts will be higher. If the down payment is less than 20%, mortgage insurance may be required and could increase the monthly payment and APR. Contact us for details. Additional loan programs may be available. Accuracy is not guaranteed, and all products may not be available in all borrower's geographical areas and are based on their individual situation. This is not a credit decision or a commitment to lend.
Sales History & Tax Summary for 1815 Crowncrest Drive
Sales History
| Date | Price | Change |
|---|---|---|
| Currently not available. | ||
Tax Summary
| Tax Year | Estimated Market Value | Total Tax |
|---|---|---|
| Currently not available. | ||
Data powered by ATTOM Data Solutions. Copyright© 2025. Information deemed reliable but not guaranteed.
Schools
Schools nearby 1815 Crowncrest Drive
| Schools in attendance boundaries | Grades | Distance | Rating |
|---|---|---|---|
| Loading... | |||
| Schools nearby | Grades | Distance | Rating |
|---|---|---|---|
| Loading... | |||
Data powered by ATTOM Data Solutions. Copyright© 2025. Information deemed reliable but not guaranteed.
The schools shown represent both the assigned schools and schools by distance based on local school and district attendance boundaries. Attendance boundaries change based on various factors and proximity does not guarantee enrollment eligibility. Please consult your real estate agent and/or the school district to confirm the schools this property is zoned to attend. Information is deemed reliable but not guaranteed.
SchoolDigger ® Rating
The SchoolDigger rating system is a 1-5 scale with 5 as the highest rating. SchoolDigger ranks schools based on test scores supplied by each state's Department of Education. They calculate an average standard score by normalizing and averaging each school's test scores across all tests and grades.
Coming soon properties will soon be on the market, but are not yet available for showings.