1816 Mill Run Circle Tampa, FL 33613
For Sale MLS# TB8418273
2 beds 3 baths 1,261 sq ft Townhouse/Twinhome
Details for 1816 Mill Run Circle
MLS# TB8418273
Description for 1816 Mill Run Circle, Tampa, FL, 33613
AWESOME RENOVATED LARGEST 2/2 1/2 PLAN at a FANTASTIC PRICE IN THE HIGHLY DESIRABLE CARROLLWOOD AREA IN FLETCHERS MILL TOWNHOMES!! NO CARPET OR TILE ANYWHERE IN THE UNIT!! This unit is Immaculate & Has the rare feature in a townhome of a Private Fully FENCED BACK YARD!! Featuring GORGEOUS NEW LUXURY VINYL FLOORING THROUGHOUT in (2025)!! NEW WOOD STAIRCASE in (2025), NEW 5 1/4" BASEBOARDS THROUGHOUT in (2025), NEW INTERIOR PAINT INCLUDING WALLS, TRIM & CEILINGS THROUGHOUT in (2025), NEW A/C installed in (2024), NEW PEDESTAL SINK & FAUCET IN Downstairs 1/2 BATH in (2025), UPDATED CABINETS IN KITCHEN in (2025), NEW STOVE in (2025), NEW FLOORS AND PAINT OF EXTERIOR STORAGE CLOSET in (2025), NEW WASHER & DRYER in (2024), UPGRADED BATHROOM VANITIES & MIRRORS, REMOVED OLD SOFFIT LIGHTING in (2025), NEW PEDESTAL SINK IN 1/2 BATH in (2025), NEW LIGHTING FIXTURES IN BATHS (2025), NEW 2" STRINGLESS WOOD BLINDS, So much has been recently done to this amazing unit!! Fantastic floorplan with great open Kitchen and Spacious Great Room Layout with Charming WOOD BURNING FIREPLACE!! Pretty UPDATED 1/2 Bath, Laundry Closet and Walk in Under the Stair Storage downstairs. Light and Bright Kitchen with SOLID WOOD CABINETS, GRANITE COUNTERTOPS, DEEP CLOSET PANTRY, BRAND NEW STOVE (2025), Large open PASS THROUGH TO LIVING & DINING AREAS. HUGE GREAT ROOM OFFERS MULTIPLE FURNITURE LAYOUTS. STUNNING WOOD STAIRCASE leads you upstairs to the DUAL PRIMARY SUITE 2 BEDROOM LAYOUT both featuring LARGE BEDROOMS, GREAT CLOSETS & ENSUITE BATHS & CEILING FANS!! LOTS OF NATURAL LIGHT!! PRISTINE with ALL NEW FLOORING, BASEBOARDS & PAINT THROUGHOUT!! WONDERFUL OUTDOOR AREA with SPACIOUS BACKYARD, LARGE PATIO & NEWLY REDONE STORAGE ROOM!! ALL LOCATED IN THE FANTASTIC CARROLLWOOD AREA LOCATION!! CLOSE TO LITERALLY EVERYTHING YOU NEED, EVERY KIND OF SHOPPING YOU COULD EVER WANT INCLUDING EASY ACCESS TO THE MALL AT CITRUS PARK & INTERNATIONAL MALL & BAY STREET, ALL THE BEST GROCERY STORES LIKE PUBLIX, WHOLE FOODS, FRESH MARKET, CONVENIENT TO ALL THE TOP HOME IMPROVEMENT STORES LIKE LOWES AND HOME DEPOT, AMAZING DINING & ENTERTAINMENT CHOICES WITH IMMEDIATE ACCESS TO DALE MABRY HIGHWAY OFF FLETCHER & SUPER CONVENIENT TO 2-75 FOR AMAZING ACCESS TO DOWNTOWN. THE COMMUNITY FEATURES A BEAUTIFUL POOL & 2 TENNIS COURTS & IS CLOSE TO MULTIPLE CITY PARKS & PLAYGROUNDS. THIS TOWNHOME HAS SUCH AN AMAZING LOCATION! IT ALL COMES DOWN TO LOCATION, LOCATION, LOCATION AND CONDITION! THIS TOWNHOME HAS IT ALL FOR A GREAT VALUE!! ***ALL EXTERIOR MAINTENANCE EVEN WATER, SEWER AND TRASH ARE INCLUDED IN THE LOW HOA DUES AND THIS IS NOT A CONDO SO FINANCING IS A BREEZE!!***
Listing Information
Property Type: Residential, Townhouse
Status: Active
Bedrooms: 2
Bathrooms: 3
Lot Size: 0.03 Acres
Square Feet: 1,261 sq ft
Year Built: 1983
Stories: 2 Story
Construction: HardiPlank Type,Wood Siding,Wood Frame
Property Attached: Yes
Construction Display: New Construction
Subdivision: Fletchers Mill
Foundation: Slab
County: Hillsborough
Construction Status: New Construction
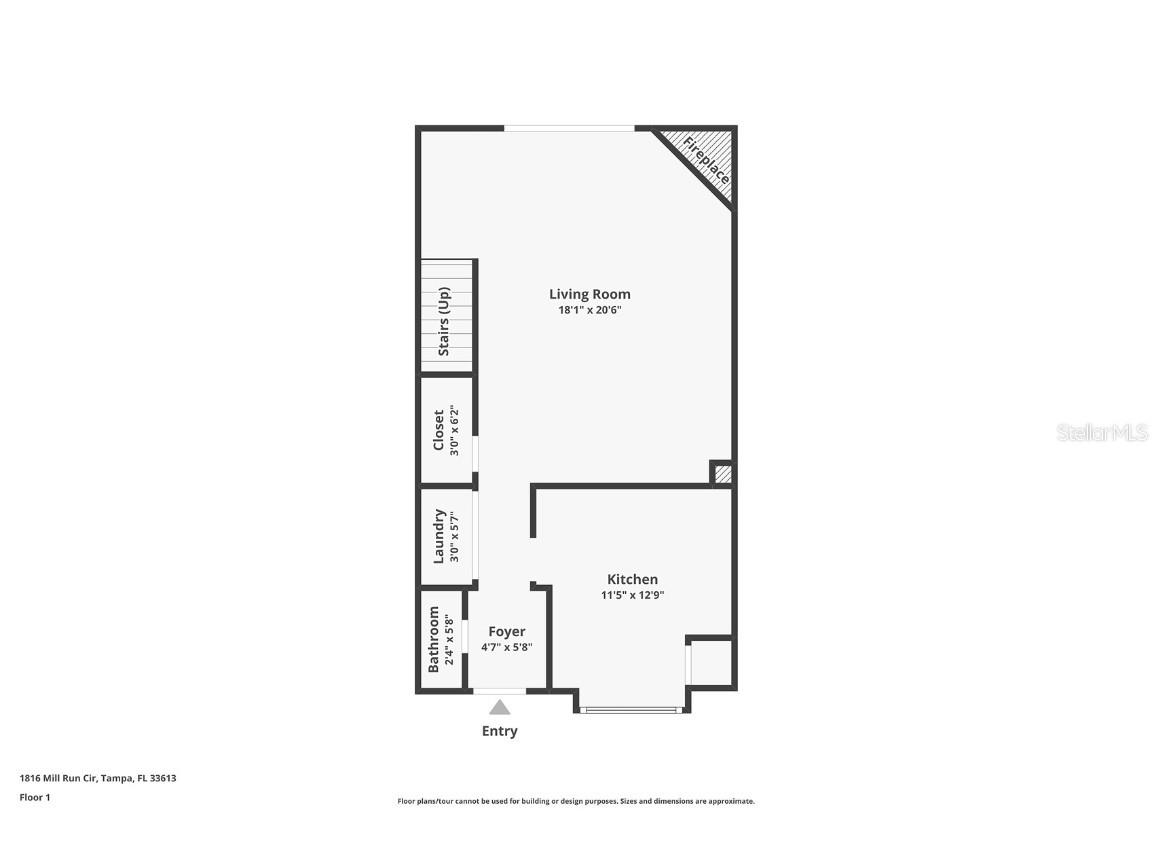
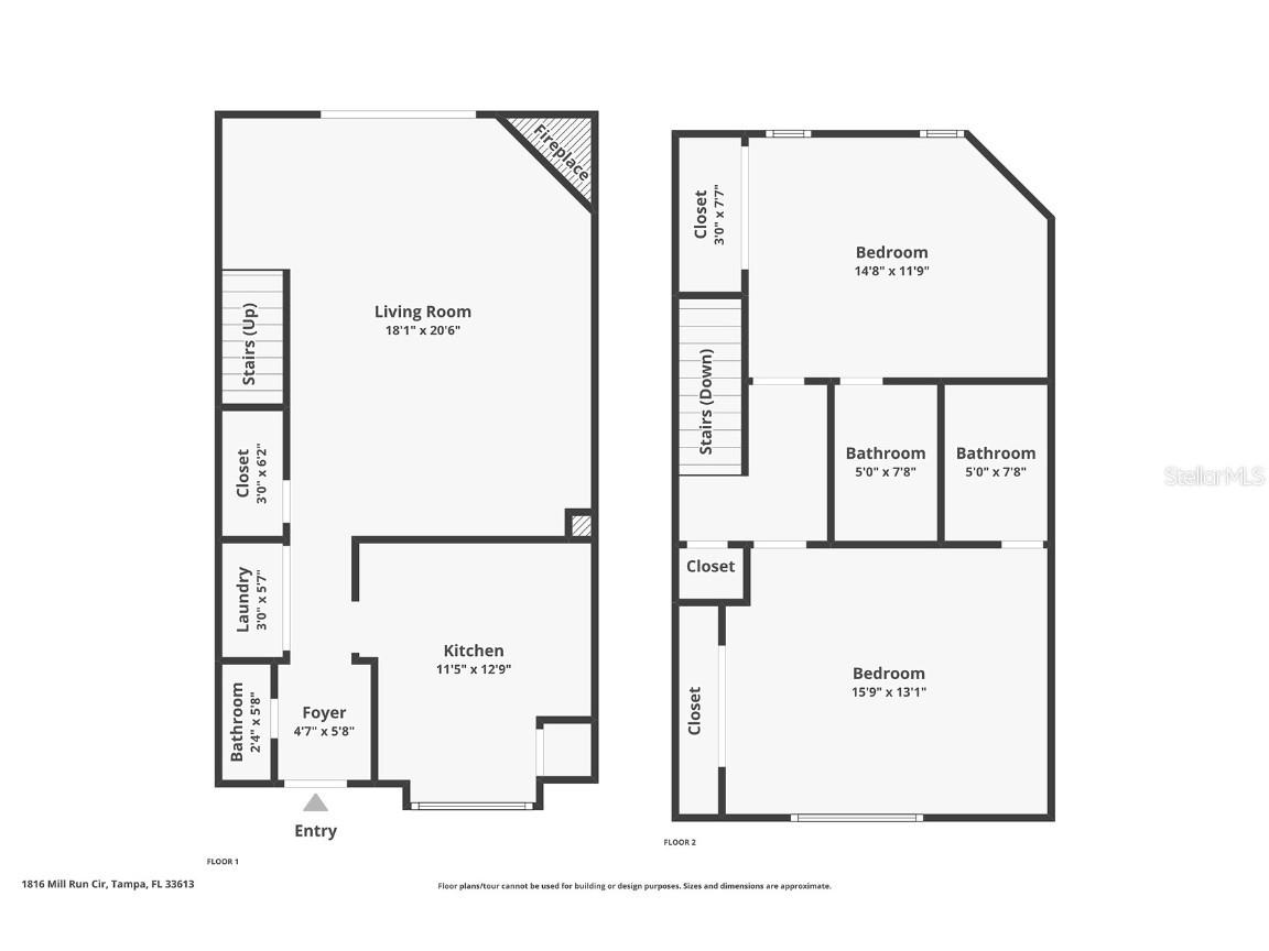
Room Information
Main Floor
Foyer: 8x4
Laundry: 4x6
Porch: 18x13
Kitchen: 11x11
Great Room: 15x20
Upper Floor
Primary Bedroom: 15x12
Primary Bedroom: 16x13
Bathrooms
Full Baths: 2
1/2 Baths: 1
Additonal Room Information
Laundry: Inside, Electric Dryer Hookup, Laundry Closet
Interior Features
Appliances: Electric Water Heater, Range Hood, Range, Refrigerator, Washer, Dishwasher, Disposal, Dryer
Flooring: Luxury Vinyl
Doors/Windows: Blinds, Window Treatments
Fireplaces: Family Room, Wood Burning
Additional Interior Features: Eat-In Kitchen, Split Bedrooms, Walk-In Closet(s), Ceiling Fan(s), Vaulted Ceiling(s), Window Treatments, Attic, Built-in Features, Living/Dining Room, Kitchen/Family Room Combo, Upper Level Primary, Open Floorplan, Solid Surface Counters, Stone Counters, Wood Cabinets
Utilities
Water: Private
Sewer: Public Sewer
Other Utilities: Electricity Connected,High Speed Internet Available,Sewer Connected,Water Connected
Cooling: Ceiling Fan(s), Central Air
Heating: Central, Electric, Heat Pump
Exterior / Lot Features
Parking Description: Open
Roof: Shingle
Pool: Association, Community
Fencing: fenced
Additional Exterior/Lot Features: Courtyard, Patio, Landscaped, Dead End
Out Buildings: Storage
Community Features
Community Features: Recreation Area, Community Mailbox, Pool, Sidewalks, Tennis Court(s), Street Lights
Security Features: Smoke Detector(s)
Association Amenities: Tennis Court(s), Recreation Facilities, Pool, Spa/Hot Tub
HOA Dues Include: Common Areas, Maintenance Grounds, Pest Control, Association Management, Maintenance Structure, Reserve Fund, Pool(s), Water, Trash, Sewer, Recreation Facilities, Taxes
Homeowners Association: Yes
HOA Dues: $397 / Monthly
Driving Directions
East on Fletcher from Dale Mabry Highway to North on Rome to Left into Fletchers Mill. Take your first Left go around to Building #26 Park in any open spot and walk down between the two buildings in the courtyard to units address 1816. Unit is down on the left painted blue with a darker blue door. Supra is on the front door.
Financial Considerations
Terms: Cash,Conventional
Tax/Property ID: U-02-28-18-0TU-000002-00003.4
Tax Amount: 2651
Tax Year: 2024
A broker reciprocity listing courtesy: COLDWELL BANKER REALTY
Based on information provided by Stellar MLS as distributed by the MLS GRID. Information from the Internet Data Exchange is provided exclusively for consumers’ personal, non-commercial use, and such information may not be used for any purpose other than to identify prospective properties consumers may be interested in purchasing. This data is deemed reliable but is not guaranteed to be accurate by Edina Realty, Inc., or by the MLS. Edina Realty, Inc., is not a multiple listing service (MLS), nor does it offer MLS access.
Copyright 2025 Stellar MLS as distributed by the MLS GRID. All Rights Reserved.
Payment Calculator
Interest rate and annual percentage rate (APR) are based on current market conditions, are for informational purposes only, are subject to change without notice and may be subject to pricing add-ons related to property type, loan amount, loan-to-value, credit score and other variables. Estimated closing costs used in the APR calculation are assumed to be paid by the borrower at closing. If the closing costs are financed, the loan, APR and payment amounts will be higher. If the down payment is less than 20%, mortgage insurance may be required and could increase the monthly payment and APR. Contact us for details. Additional loan programs may be available. Accuracy is not guaranteed, and all products may not be available in all borrower's geographical areas and are based on their individual situation. This is not a credit decision or a commitment to lend.
Sales History & Tax Summary for 1816 Mill Run Circle
Sales History
| Date | Price | Change |
|---|---|---|
| Currently not available. | ||
Tax Summary
| Tax Year | Estimated Market Value | Total Tax |
|---|---|---|
| Currently not available. | ||
Data powered by ATTOM Data Solutions. Copyright© 2025. Information deemed reliable but not guaranteed.
Schools
Schools nearby 1816 Mill Run Circle
| Schools in attendance boundaries | Grades | Distance | Rating |
|---|---|---|---|
| Loading... | |||
| Schools nearby | Grades | Distance | Rating |
|---|---|---|---|
| Loading... | |||
Data powered by ATTOM Data Solutions. Copyright© 2025. Information deemed reliable but not guaranteed.
The schools shown represent both the assigned schools and schools by distance based on local school and district attendance boundaries. Attendance boundaries change based on various factors and proximity does not guarantee enrollment eligibility. Please consult your real estate agent and/or the school district to confirm the schools this property is zoned to attend. Information is deemed reliable but not guaranteed.
SchoolDigger ® Rating
The SchoolDigger rating system is a 1-5 scale with 5 as the highest rating. SchoolDigger ranks schools based on test scores supplied by each state's Department of Education. They calculate an average standard score by normalizing and averaging each school's test scores across all tests and grades.
Coming soon properties will soon be on the market, but are not yet available for showings.