18231 Commonwealth Avenue N Polk City, FL 33868
For Sale MLS# L4954874
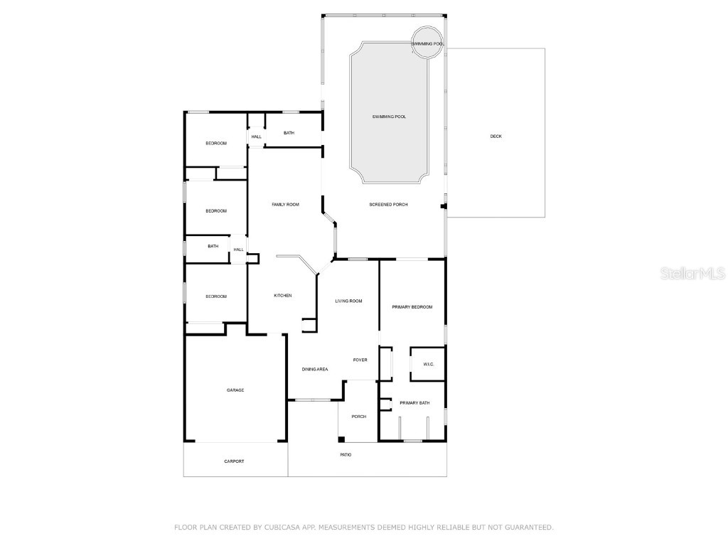
4 beds 3 baths 1,979 sq ft Single Family
Details for 18231 Commonwealth Avenue N
MLS# L4954874
Description for 18231 Commonwealth Avenue N, Polk City, FL, 33868
Welcome to your private retreat sitting on almost 5 acres with NO HOA! This 4 bedroom 3 bathroom home has so much to offer! Recent updates include a NEW AC & Water Heater in 2025, NEW 100 gallon water tank for water treatment system in 2024, NEW roof in 2023, LVP flooring installed in 2022 and a NEW propane pool heater in 2019. Additionally, the home is equipped with a Generac Propane Whole House Generator with Auto Switch and leased 100 gallon propane tank. Arriving at the home, you’ll appreciate the front entry gate, for additional security, as well as the beautifully landscaped front yard. Stepping inside you’ll find the living room/dining room combo with new LVP flooring and plenty of natural light. The perfect spot for dinner with family and friends. Entering the kitchen from the dining room, you’ll find ample cabinet space, as well as granite countertops, updated backsplash, stainless steel appliances as well as a breakfast bar, a great spot for a quick meal! The open family room offers plenty of space with sliding doors out to your outdoor oasis! The primary bedroom is generously sized with sliding doors to your pool, and an en-suite featuring a large soaking tub, stand up tiled shower, dual vanities, and spacious closets. The remaining 3 bedrooms have plenty of space and share the remaining 2 bathrooms, one featuring a single sink vanity with tub/shower combo. The pool bathroom features a stand up shower and single sink vanity. Stepping outside you’ll find the perfect Florida retreat! A screened in covered patio and heated pool! Additionally, outside of the pool area you’ll find a wood pergola with solar lighting along with a deck for entertaining. The front half acre of the property is fully fenced in. Zoning allows for farm animals and chickens. This home has it all! Schedule your private showing today!
Listing Information
Property Type: Residential, Single Family Residence
Status: Active
Bedrooms: 4
Bathrooms: 3
Lot Size: 4.95 Acres
Square Feet: 1,979 sq ft
Year Built: 2007
Garage: Yes
Stories: 1 Story
Construction: Block,Concrete,Stucco
Construction Display: New Construction
Subdivision: Acreage
Foundation: Block
County: Polk
Construction Status: New Construction
School Information
Elementary: Polk City Elem
Middle: Stambaugh Middle
High: Tenoroc Senior
Room Information
Main Floor
Bathroom 3: 9x5
Dining Room: 12x10
Living Room: 22x11
Bathroom 2: 7x4
Primary Bathroom: 12x10
Bedroom 4: 9x11
Bedroom 3: 10x10
Bedroom 2: 10x11
Primary Bedroom: 16x12
Family Room: 19x13
Kitchen: 15x12
Bathrooms
Full Baths: 3
Additonal Room Information
Laundry: In Kitchen, Inside
Interior Features
Appliances: Electric Water Heater, Water Softener, Dishwasher, Dryer, Microwave, Range, Refrigerator, Washer
Flooring: Luxury Vinyl,Tile
Additional Interior Features: Eat-In Kitchen, Built-in Features, Cathedral Ceiling(s), Walk-In Closet(s), Living/Dining Room, Kitchen/Family Room Combo, Open Floorplan, Main Level Primary, Solid Surface Counters, Stone Counters, Wood Cabinets
Utilities
Water: Well
Sewer: Septic Tank
Other Utilities: Cable Available,Electricity Connected,High Speed Internet Available
Cooling: Central Air
Heating: Central
Exterior / Lot Features
Attached Garage: Attached Garage
Garage Spaces: 2
Parking Description: Garage Door Opener, Garage, Off Street, driveway
Roof: Shingle
Pool: In Ground, Screen Enclosure, Gunite, Heated
Lot View: Trees/Woods
Lot Dimensions: 100x2164
Fencing: Chain Link
Additional Exterior/Lot Features: Storage, Covered, Deck, Rear Porch, Screened, Front Porch, Landscaped, Pasture, Outside City Limits
Out Buildings: Shed(s)
Driving Directions
Traveling north on FL-33/Commonwealth Ave pass the traffic circle, property will be on the right.
Financial Considerations
Terms: Cash,Conventional,FHA,USDA Loan,VA Loan
Tax/Property ID: 25-25-08-000000-013040
Tax Amount: 3978
Tax Year: 2024
A broker reciprocity listing courtesy: KELLER WILLIAMS REALTY SMART
Based on information provided by Stellar MLS as distributed by the MLS GRID. Information from the Internet Data Exchange is provided exclusively for consumers’ personal, non-commercial use, and such information may not be used for any purpose other than to identify prospective properties consumers may be interested in purchasing. This data is deemed reliable but is not guaranteed to be accurate by Edina Realty, Inc., or by the MLS. Edina Realty, Inc., is not a multiple listing service (MLS), nor does it offer MLS access.
Copyright 2025 Stellar MLS as distributed by the MLS GRID. All Rights Reserved.
Payment Calculator
Interest rate and annual percentage rate (APR) are based on current market conditions, are for informational purposes only, are subject to change without notice and may be subject to pricing add-ons related to property type, loan amount, loan-to-value, credit score and other variables. Estimated closing costs used in the APR calculation are assumed to be paid by the borrower at closing. If the closing costs are financed, the loan, APR and payment amounts will be higher. If the down payment is less than 20%, mortgage insurance may be required and could increase the monthly payment and APR. Contact us for details. Additional loan programs may be available. Accuracy is not guaranteed, and all products may not be available in all borrower's geographical areas and are based on their individual situation. This is not a credit decision or a commitment to lend.
Sales History & Tax Summary for 18231 Commonwealth Avenue N
Sales History
| Date | Price | Change |
|---|---|---|
| Currently not available. | ||
Tax Summary
| Tax Year | Estimated Market Value | Total Tax |
|---|---|---|
| Currently not available. | ||
Data powered by ATTOM Data Solutions. Copyright© 2025. Information deemed reliable but not guaranteed.
Schools
Schools nearby 18231 Commonwealth Avenue N
| Schools in attendance boundaries | Grades | Distance | Rating |
|---|---|---|---|
| Loading... | |||
| Schools nearby | Grades | Distance | Rating |
|---|---|---|---|
| Loading... | |||
Data powered by ATTOM Data Solutions. Copyright© 2025. Information deemed reliable but not guaranteed.
The schools shown represent both the assigned schools and schools by distance based on local school and district attendance boundaries. Attendance boundaries change based on various factors and proximity does not guarantee enrollment eligibility. Please consult your real estate agent and/or the school district to confirm the schools this property is zoned to attend. Information is deemed reliable but not guaranteed.
SchoolDigger ® Rating
The SchoolDigger rating system is a 1-5 scale with 5 as the highest rating. SchoolDigger ranks schools based on test scores supplied by each state's Department of Education. They calculate an average standard score by normalizing and averaging each school's test scores across all tests and grades.
Coming soon properties will soon be on the market, but are not yet available for showings.