$398,000
1832 Knights Bridge Trail Punta Gorda, FL 33980
For Sale MLS# C7521624
2 beds 2 baths 1,761 sq ft Single Family
Details for 1832 Knights Bridge Trail
MLS# C7521624
Description for 1832 Knights Bridge Trail, Punta Gorda, FL, 33980
A beautiful home with so much space and a gorgeous view. The lanai facing the large pond with trees and the golf course with porcelain tile is a place to spend relaxing. The lanai is fully functional as another room with a split for heat/air. It's the perfect room. The glass windows with screens in the lanai with the walk out patio is spectacular. This is an easy place to call home. The lanai has accordion hurricane shutters and a patio to walk out to and sun or have a BBQ. This is a 55 and older community in Kings Gate which its amenities include golf, Lion's Den Bar and Restaurant, Pro shop, 18-hole executive golf course, one of the largest community pools in Charlotte County, pickle ball, bocce ball, horseshoes, and a full gym and a resident room to use for activities. Knights Bridge Trail is one of the streets in this community that is just absolutely majestic. This home is a must see! This gated community is a must see and you can experience just how relaxing you could be here. Not a worry or a care. Come view this gem and experience what you could call your new home!
Listing Information
Property Type: Residential, Villa
Status: Active
Bedrooms: 2
Bathrooms: 2
Lot Size: 0.10 Acres
Square Feet: 1,761 sq ft
Year Built: 2011
Garage: Yes
Stories: 1 Story
Construction: Block
Property Attached: Yes
Construction Display: New Construction
Subdivision: Kings Gate Ph 7b
Foundation: Slab
County: Charlotte
Construction Status: New Construction
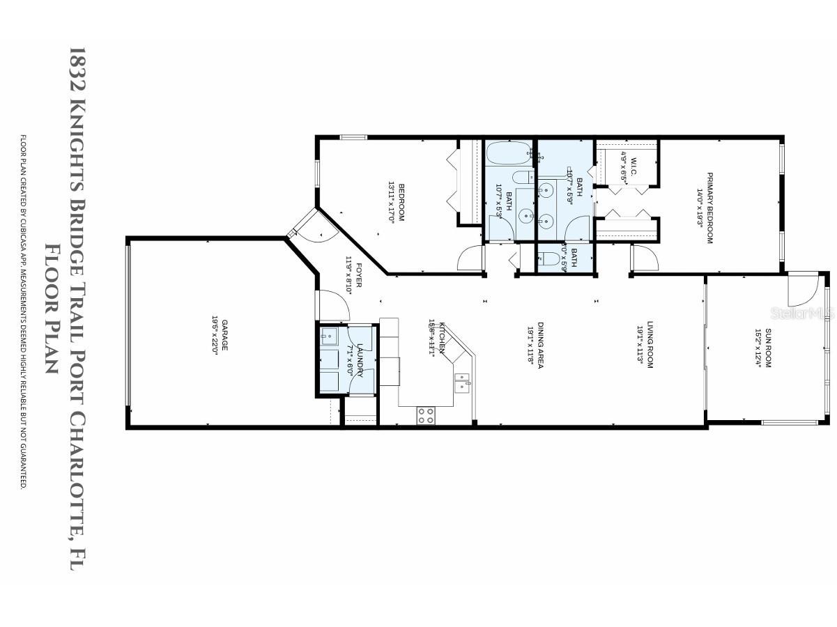
Room Information
Main Floor
Florida Room: 15.1x12.8
Laundry: 6x7.3
Living Room: 15.25x14.5
Dining Room: 8.83x15.3
Kitchen: 10.6x11.6
Bedroom 1: 16x13.8
Primary Bedroom: 13.8x12.8
Bathrooms
Full Baths: 2
Additonal Room Information
Laundry: Laundry Room
Interior Features
Appliances: Washer, Electric Water Heater, Range, Refrigerator, Dishwasher, Dryer, Microwave
Flooring: Ceramic Tile,Luxury Vinyl,Porcelain Tile
Doors/Windows: Window Treatments
Additional Interior Features: Window Treatments, Walk-In Closet(s), Ceiling Fan(s), High Ceilings, Kitchen/Family Room Combo, Main Level Primary, Solid Surface Counters
Utilities
Water: Public
Sewer: Public Sewer
Other Utilities: Cable Connected,Electricity Connected,Sewer Connected,Water Connected
Cooling: Ceiling Fan(s), Ductless, Central Air
Heating: Heat Pump
Exterior / Lot Features
Attached Garage: Attached Garage
Garage Spaces: 2
Roof: Shingle
Pool: Gunite, Community, Association
Lot View: Golf Course,Pond,Water
Additional Exterior/Lot Features: Storm/Security Shutters, Sprinkler/Irrigation, On Golf Course
Community Features
Community Features: Pool, Tennis Court(s), Golf, Street Lights, Gated, Fitness, Golf Carts OK, Clubhouse, Restaurant, Community Mailbox
Security Features: Gated Community
Association Amenities: Recreation Facilities, Fitness Center, Clubhouse, Cable TV, Sauna, Tennis Court(s), Pool, Pickleball, Maintenance Grounds, Shuffleboard Court, Spa/Hot Tub, Golf Course, Gated
HOA Dues Include: Association Management, Maintenance Grounds, Maintenance Structure, Pool(s), Internet, Cable TV, Recreation Facilities
Homeowners Association: Yes
HOA Dues: $436 / Monthly
Driving Directions
Take 75 north or south and get off at Kings Highway. Head east towards the Kings Gate Plaza. Turn left into Kings Gate main entrance and go straight down Westgate until you reach Knights Bridge. Turn right and its a few down on the left. Must give agent your name to give to Envera to allow entrance.
Financial Considerations
Terms: Cash,Conventional,FHA,VA Loan
Tax/Property ID: 402307443005
Tax Amount: 2991
Tax Year: 2025
A broker reciprocity listing courtesy: RE/MAX PALM REALTY
Based on information provided by Stellar MLS as distributed by the MLS GRID. Information from the Internet Data Exchange is provided exclusively for consumers’ personal, non-commercial use, and such information may not be used for any purpose other than to identify prospective properties consumers may be interested in purchasing. This data is deemed reliable but is not guaranteed to be accurate by Edina Realty, Inc., or by the MLS. Edina Realty, Inc., is not a multiple listing service (MLS), nor does it offer MLS access.
Copyright 2026 Stellar MLS as distributed by the MLS GRID. All Rights Reserved.
Payment Calculator
Interest rate and annual percentage rate (APR) are based on current market conditions, are for informational purposes only, are subject to change without notice and may be subject to pricing add-ons related to property type, loan amount, loan-to-value, credit score and other variables. Estimated closing costs used in the APR calculation are assumed to be paid by the borrower at closing. If the closing costs are financed, the loan, APR and payment amounts will be higher. If the down payment is less than 20%, mortgage insurance may be required and could increase the monthly payment and APR. Contact us for details. Additional loan programs may be available. Accuracy is not guaranteed, and all products may not be available in all borrower's geographical areas and are based on their individual situation. This is not a credit decision or a commitment to lend.
Sales History & Tax Summary for 1832 Knights Bridge Trail
Sales History
| Date | Price | |
|---|---|---|
| Currently not available. | ||
Tax Summary
| Tax Year | Estimated Market Value | Total Tax |
|---|---|---|
| Currently not available. | ||
Data powered by ATTOM Data Solutions. Copyright© 2026. Information deemed reliable but not guaranteed.
Schools
Schools nearby 1832 Knights Bridge Trail
| Schools in attendance boundaries | Grades | Distance | Rating |
|---|---|---|---|
| Loading... | |||
| Schools nearby | Grades | Distance | Rating |
|---|---|---|---|
| Loading... | |||
Data powered by ATTOM Data Solutions. Copyright© 2026. Information deemed reliable but not guaranteed.
The schools shown represent both the assigned schools and schools by distance based on local school and district attendance boundaries. Attendance boundaries change based on various factors and proximity does not guarantee enrollment eligibility. Please consult your real estate agent and/or the school district to confirm the schools this property is zoned to attend. Information is deemed reliable but not guaranteed.
SchoolDigger ® Rating
The SchoolDigger rating system is a 1-5 scale with 5 as the highest rating. SchoolDigger ranks schools based on test scores supplied by each state's Department of Education. They calculate an average standard score by normalizing and averaging each school's test scores across all tests and grades.
Coming soon properties will soon be on the market, but are not yet available for showings.