18321 Mcmullen Rd Spring Hill, FL 34610
Pending MLS# TB8417702
3 beds 2 baths 2,357 sq ft Single Family
Details for 18321 Mcmullen Rd
MLS# TB8417702
Description for 18321 Mcmullen Rd, Spring Hill, FL, 34610
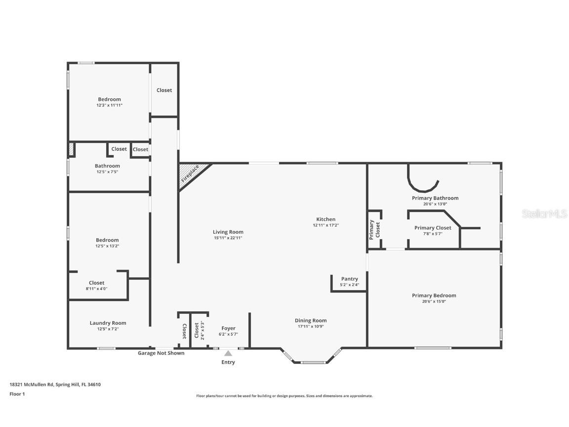
Under contract-accepting backup offers. Private Country Living with Modern Comfort on 5 Acres in Spring Hill Welcome to 18321 McMullen Road, where peace, space, and natural beauty come together in this charming 3-bedroom, 2-bathroom home set on five fully cleared and usable acres. Located in the quiet countryside of Spring Hill, this property offers the perfect blend of rural living and modern convenience, just minutes from parks, trails, shopping, and dining. Step inside to discover a bright open layout with vaulted ceilings, natural wood accents, and a cozy stone fireplace that anchors the spacious living area. The well-designed kitchen offers ample cabinet space and flows seamlessly into the dining and living rooms, creating an ideal space for everyday living and entertaining. The primary bedroom is a true retreat, featuring a spa-inspired bathroom with an oversized soaking tub surrounded by tile and windows, offering serene views of the private landscape. This home has been thoughtfully upgraded with a brand-new HVAC system in 2025 and a new electrical panel installed in 2024, providing peace of mind and energy efficiency. The interior layout, full of natural light and warm textures, is complemented by the expansive outdoor space that offers endless possibilities. Bring your vision to life with room for gardens, animals, recreational toys, RVs, workshops, or future additions. Whether you're dreaming of a hobby farm or simply want more room to roam, this property delivers both flexibility and freedom. Enjoy easy access to Florida’s best outdoor destinations, including Crews Lake Wilderness Park, Jay B. Starkey Wilderness Park, and the scenic Suncoast Trail. Take a short drive to Weeki Wachee Springs for kayaking and crystal-clear springs, or head west to Pine Island and Hudson Beach for relaxing coastal escapes. Everyday essentials are just minutes away, with Publix, Walmart, Target, and local favorites nearby. Plus, with quick access to US-41 and the Suncoast Parkway, commuting to Tampa, Brooksville, or the airport is a breeze. This rare opportunity offers the space, updates, and lifestyle you’ve been looking for. Schedule your private showing today and experience the best of country living with modern comfort.
Listing Information
Property Type: Residential, Single Family Residence
Status: Pending
Bedrooms: 3
Bathrooms: 2
Lot Size: 5 Acres
Square Feet: 2,357 sq ft
Year Built: 1995
Garage: Yes
Stories: 1 Story
Construction: Block,Wood Siding,Wood Frame
Subdivision: Not Applicable
Foundation: Slab
County: Pasco
Room Information
Main Floor
Laundry: 7x12
Bathroom 2: 7x12
Primary Bathroom: 13x20
Bedroom 3: 11x12
Bedroom 2: 13x12
Primary Bedroom: 15x20
Dining Room: 10x17
Kitchen: 17x12
Living Room: 22x15
Bathrooms
Full Baths: 2
Additonal Room Information
Laundry: Laundry Room
Interior Features
Appliances: Electric Water Heater, Water Softener, Microwave, Range, Refrigerator, Dishwasher
Flooring: Carpet,Ceramic Tile,Laminate
Fireplaces: Family Room, Wood Burning
Additional Interior Features: Split Bedrooms, High Ceilings, Walk-In Closet(s), Kitchen/Family Room Combo, Open Floorplan, Main Level Primary, Ceiling Fan(s), Eat-In Kitchen
Utilities
Water: Well
Sewer: Septic Tank
Other Utilities: Cable Available,Electricity Available,High Speed Internet Available,Phone Available,Sewer Available,Water Available
Cooling: Ceiling Fan(s), Central Air
Heating: Central
Exterior / Lot Features
Attached Garage: Attached Garage
Garage Spaces: 2
Parking Description: Garage Door Opener, Garage, Boat, Garage Faces Rear, Garage Faces Side, Oversized
Roof: Shingle
Lot View: Trees/Woods
Additional Exterior/Lot Features: French Patio Doors, Lighting, Rain Gutters, Screened, Patio, Porch, Deck, Flat, Level, Pasture, Outside City Limits
Driving Directions
From US-41 N, turn Right on Wilson Blvd, Right on Benes Rd, Left on Squirrel Prairie Rd, Right on McMullen Rd., home on the Right
Financial Considerations
Terms: Cash,Conventional,FHA,VA Loan
Tax/Property ID: 06-24-19-0000-01100-0010
Tax Amount: 2286.21
Tax Year: 2024
A broker reciprocity listing courtesy: LPT REALTY, LLC
Based on information provided by Stellar MLS as distributed by the MLS GRID. Information from the Internet Data Exchange is provided exclusively for consumers’ personal, non-commercial use, and such information may not be used for any purpose other than to identify prospective properties consumers may be interested in purchasing. This data is deemed reliable but is not guaranteed to be accurate by Edina Realty, Inc., or by the MLS. Edina Realty, Inc., is not a multiple listing service (MLS), nor does it offer MLS access.
Copyright 2026 Stellar MLS as distributed by the MLS GRID. All Rights Reserved.
Sales History & Tax Summary for 18321 Mcmullen Rd
Sales History
| Date | Price | |
|---|---|---|
| Currently not available. | ||
Tax Summary
| Tax Year | Estimated Market Value | Total Tax |
|---|---|---|
| Currently not available. | ||
Data powered by ATTOM Data Solutions. Copyright© 2026. Information deemed reliable but not guaranteed.
Schools
Schools nearby 18321 Mcmullen Rd
| Schools in attendance boundaries | Grades | Distance | Rating |
|---|---|---|---|
| Loading... | |||
| Schools nearby | Grades | Distance | Rating |
|---|---|---|---|
| Loading... | |||
Data powered by ATTOM Data Solutions. Copyright© 2026. Information deemed reliable but not guaranteed.
The schools shown represent both the assigned schools and schools by distance based on local school and district attendance boundaries. Attendance boundaries change based on various factors and proximity does not guarantee enrollment eligibility. Please consult your real estate agent and/or the school district to confirm the schools this property is zoned to attend. Information is deemed reliable but not guaranteed.
SchoolDigger ® Rating
The SchoolDigger rating system is a 1-5 scale with 5 as the highest rating. SchoolDigger ranks schools based on test scores supplied by each state's Department of Education. They calculate an average standard score by normalizing and averaging each school's test scores across all tests and grades.
Coming soon properties will soon be on the market, but are not yet available for showings.