1859 Pinecliff Drive Apopka, FL 32703
For Sale MLS# O6355575
3 beds 3 baths 1,761 sq ft Townhouse/Twinhome
Details for 1859 Pinecliff Drive
MLS# O6355575
Description for 1859 Pinecliff Drive, Apopka, FL, 32703
Experience designer living in this stunning Kellogg Craftsman by Toll Brothers, the nation’s leading luxury home builder. This beautifully appointed home showcases the upscale finishes throughout. The gourmet kitchen seamlessly blends with spacious living and dining areas, perfect for entertaining. Thoughtful design details include luxury flooring throughout the main living spaces, loft, and primary bedroom, with plush carpet only in the secondary bedrooms. Retreat to a serene primary suite with a spa-inspired bathroom, and take advantage of the additional loft space ideal for work or relaxation. Located in a resort-style community offering exclusive amenities such as a clubhouse, pool, fitness center, tennis, and pickleball, this home combines modern sophistication with everyday comfort.
Listing Information
Property Type: Residential, Townhouse
Status: Active
Bedrooms: 3
Bathrooms: 3
Lot Size: 0.05 Acres
Square Feet: 1,761 sq ft
Year Built: 2025
Garage: Yes
Stories: 2 Story
Construction: Block,Stucco,Wood Frame
Construction Display: New Construction
Subdivision: Bronson Peak
Builder: Toll Brothers
Foundation: Slab
County: Orange
Construction Status: New Construction
School Information
Elementary: Apopka Elem
Middle: Wolf Lake Middle
High: Wekiva High
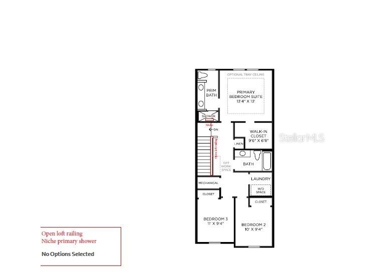
Room Information
Main Floor
Great Room: 16x19
Dining Room: 15x15
Kitchen: 14x15
Upper Floor
Laundry: 13x10
Primary Bedroom: 13x13
Bedroom 3: 9.4x11
Bedroom 2: 9x10
Bathrooms
Full Baths: 2
1/2 Baths: 1
Additonal Room Information
Laundry: Inside, Laundry Room
Interior Features
Appliances: Built-In Oven, Range Hood, Washer, Refrigerator, Dishwasher, Disposal, Dryer, Cooktop, Microwave
Flooring: Carpet,Tile,Wood
Doors/Windows: Insulated Windows, Low-Emissivity Windows
Additional Interior Features: Walk-In Closet(s), Eat-In Kitchen, Tray Ceiling(s), Attic, High Ceilings, Living/Dining Room, Upper Level Primary, Open Floorplan, Solid Surface Counters, Kitchen/Family Room Combo
Utilities
Water: Public
Sewer: Public Sewer
Other Utilities: Cable Available,Cable Connected,Electricity Connected,Natural Gas Connected,Phone Available,Sewer Connected,Underground Utilities,Water Connected
Cooling: Central Air
Heating: Central, Electric
Exterior / Lot Features
Garage Spaces: 2
Parking Description: driveway, on street
Roof: Shingle
Pool: Community, Association
Lot Dimensions: 20x120
Additional Exterior/Lot Features: Rain Gutters, In-Wall Pest Control System, Sprinkler/Irrigation, Courtyard, Front Porch, Rear Porch, Patio, Covered, Landscaped, City Lot
Community Features
Community Features: Street Lights, Playground, Clubhouse, Pool, Tennis Court(s), Sidewalks, Fitness
Association Amenities: Pickleball, Park, Trail(s), Clubhouse, Fitness Center, Recreation Facilities, Tennis Court(s), Pool
HOA Dues Include: Recreation Facilities, Taxes, Association Management, Maintenance Grounds, Reserve Fund, Maintenance Structure, Pool(s), Common Areas
Homeowners Association: Yes
HOA Dues: $208 / Monthly
Driving Directions
Heading West on SR 414, take exit 5 onto Marden Rd and turn right. Turn left onto Ocoee-Apopka Rd, then right onto Boy Scout Rd in .4 miles.
Financial Considerations
Terms: Cash,Conventional,FHA,VA Loan
Tax/Property ID: 17-21-28-0940-00-230
Tax Amount: 2078.57
Tax Year: 2025
A broker reciprocity listing courtesy: ORLANDO TBI REALTY LLC
Based on information provided by Stellar MLS as distributed by the MLS GRID. Information from the Internet Data Exchange is provided exclusively for consumers’ personal, non-commercial use, and such information may not be used for any purpose other than to identify prospective properties consumers may be interested in purchasing. This data is deemed reliable but is not guaranteed to be accurate by Edina Realty, Inc., or by the MLS. Edina Realty, Inc., is not a multiple listing service (MLS), nor does it offer MLS access.
Copyright 2026 Stellar MLS as distributed by the MLS GRID. All Rights Reserved.
Payment Calculator
Interest rate and annual percentage rate (APR) are based on current market conditions, are for informational purposes only, are subject to change without notice and may be subject to pricing add-ons related to property type, loan amount, loan-to-value, credit score and other variables. Estimated closing costs used in the APR calculation are assumed to be paid by the borrower at closing. If the closing costs are financed, the loan, APR and payment amounts will be higher. If the down payment is less than 20%, mortgage insurance may be required and could increase the monthly payment and APR. Contact us for details. Additional loan programs may be available. Accuracy is not guaranteed, and all products may not be available in all borrower's geographical areas and are based on their individual situation. This is not a credit decision or a commitment to lend.
Sales History & Tax Summary for 1859 Pinecliff Drive
Sales History
| Date | Price | |
|---|---|---|
| Currently not available. | ||
Tax Summary
| Tax Year | Estimated Market Value | Total Tax |
|---|---|---|
| Currently not available. | ||
Data powered by ATTOM Data Solutions. Copyright© 2026. Information deemed reliable but not guaranteed.
Schools
Schools nearby 1859 Pinecliff Drive
| Schools in attendance boundaries | Grades | Distance | Rating |
|---|---|---|---|
| Loading... | |||
| Schools nearby | Grades | Distance | Rating |
|---|---|---|---|
| Loading... | |||
Data powered by ATTOM Data Solutions. Copyright© 2026. Information deemed reliable but not guaranteed.
The schools shown represent both the assigned schools and schools by distance based on local school and district attendance boundaries. Attendance boundaries change based on various factors and proximity does not guarantee enrollment eligibility. Please consult your real estate agent and/or the school district to confirm the schools this property is zoned to attend. Information is deemed reliable but not guaranteed.
SchoolDigger ® Rating
The SchoolDigger rating system is a 1-5 scale with 5 as the highest rating. SchoolDigger ranks schools based on test scores supplied by each state's Department of Education. They calculate an average standard score by normalizing and averaging each school's test scores across all tests and grades.
Coming soon properties will soon be on the market, but are not yet available for showings.