$129,000
1860 Massachusetts Avenue NE #101, Saint Petersburg, FL 33703
$129,000
1860 Massachusetts Avenue NE #101 Saint Petersburg, FL 33703
For Sale MLS# TB8449772
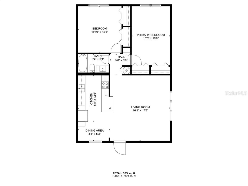
2 beds 1 baths 905 sq ft Condo
Details for 1860 Massachusetts Avenue NE #101
MLS# TB8449772
Description for 1860 Massachusetts Avenue NE #101, Saint Petersburg, FL, 33703
Short Sale. SHORT SALE. Property was damaged in Hurricane Helene and is process of full renovation. Welcome to this beautiful first-floor condominium in the highly sought after Shore Acres neighborhood, just 5 miles from the vibrant Downtown St. Petersburg! This airy and spacious condo offers a comfortable and convenient lifestyle in a prime location. As you step inside, you'll be greeted by a bright and welcoming living room that is perfect for relaxing or entertaining guests. The open floor plan seamlessly flows into the dining area and modern kitchen, which is equipped with all the necessary appliances to make cooking a breeze. The unit features two bedrooms, each with ample natural light and generous closet space. The bathroom is well-appointed with modern fixtures and finishes, providing a spa-like atmosphere for your daily routine. This condo is just a short walk away from the beautiful Bayou Grande, providing a serene setting for picnics, fishing, or just enjoying the peaceful surroundings. You'll also have access to the community clubhouse and sparkling pool, perfect for soaking up the Florida sunshine or socializing with neighbors. Located in the desirable Shore Acres neighborhood, you'll have easy access to some of the best dining, shopping, and entertainment that St. Petersburg has to offer. Take a stroll along the waterfront or visit the world-renowned Dali Museum, all just minutes away from your new home. Don't miss this opportunity to own this stunning condominium in a prime location. Contact us today to schedule a showing!
Listing Information
Property Type: Residential, Condominium
Status: Active
Bedrooms: 2
Bathrooms: 1
Lot Size: 2 Acres
Square Feet: 905 sq ft
Year Built: 1974
Stories: 1 Story
Construction: Stucco
Subdivision: Regency Condo The
Foundation: Slab
County: Pinellas
Room Information
Main Floor
Living Room:
Primary Bedroom:
Kitchen:
Bathrooms
Full Baths: 1
Additonal Room Information
Laundry: Laundry Room, Common Area
Interior Features
Appliances: Range, Refrigerator, Dishwasher, Freezer
Flooring: Luxury Vinyl
Additional Interior Features: Ceiling Fan(s)
Utilities
Water: Public
Sewer: Public Sewer
Other Utilities: Cable Connected,Electricity Connected
Cooling: Central Air, Ceiling Fan(s)
Heating: Central
Exterior / Lot Features
Roof: Membrane
Pool: Heated, Community
Additional Exterior/Lot Features: Garden
Community Features
Community Features: Sidewalks, Pool, Golf Carts OK
HOA Dues Include: Taxes, Insurance, Maintenance Grounds, Pool(s), Maintenance Structure, Association Management, Reserve Fund, Common Areas
Homeowners Association: Yes
HOA Dues: $624 / Monthly
Driving Directions
Shore Acres Blvd to Massachusetts Ave NE
Financial Considerations
Tax/Property ID: 04-31-17-74075-000-1010
Tax Amount: 3518.43
Tax Year: 2024
A broker reciprocity listing courtesy: COMPASS FLORIDA LLC
Based on information provided by Stellar MLS as distributed by the MLS GRID. Information from the Internet Data Exchange is provided exclusively for consumers’ personal, non-commercial use, and such information may not be used for any purpose other than to identify prospective properties consumers may be interested in purchasing. This data is deemed reliable but is not guaranteed to be accurate by Edina Realty, Inc., or by the MLS. Edina Realty, Inc., is not a multiple listing service (MLS), nor does it offer MLS access.
Copyright 2025 Stellar MLS as distributed by the MLS GRID. All Rights Reserved.
Payment Calculator
Interest rate and annual percentage rate (APR) are based on current market conditions, are for informational purposes only, are subject to change without notice and may be subject to pricing add-ons related to property type, loan amount, loan-to-value, credit score and other variables. Estimated closing costs used in the APR calculation are assumed to be paid by the borrower at closing. If the closing costs are financed, the loan, APR and payment amounts will be higher. If the down payment is less than 20%, mortgage insurance may be required and could increase the monthly payment and APR. Contact us for details. Additional loan programs may be available. Accuracy is not guaranteed, and all products may not be available in all borrower's geographical areas and are based on their individual situation. This is not a credit decision or a commitment to lend.
Sales History & Tax Summary for 1860 Massachusetts Avenue NE #101
Sales History
| Date | Price | Change |
|---|---|---|
| Currently not available. | ||
Tax Summary
| Tax Year | Estimated Market Value | Total Tax |
|---|---|---|
| Currently not available. | ||
Data powered by ATTOM Data Solutions. Copyright© 2025. Information deemed reliable but not guaranteed.
Schools
Schools nearby 1860 Massachusetts Avenue NE #101
| Schools in attendance boundaries | Grades | Distance | Rating |
|---|---|---|---|
| Loading... | |||
| Schools nearby | Grades | Distance | Rating |
|---|---|---|---|
| Loading... | |||
Data powered by ATTOM Data Solutions. Copyright© 2025. Information deemed reliable but not guaranteed.
The schools shown represent both the assigned schools and schools by distance based on local school and district attendance boundaries. Attendance boundaries change based on various factors and proximity does not guarantee enrollment eligibility. Please consult your real estate agent and/or the school district to confirm the schools this property is zoned to attend. Information is deemed reliable but not guaranteed.
SchoolDigger ® Rating
The SchoolDigger rating system is a 1-5 scale with 5 as the highest rating. SchoolDigger ranks schools based on test scores supplied by each state's Department of Education. They calculate an average standard score by normalizing and averaging each school's test scores across all tests and grades.
Coming soon properties will soon be on the market, but are not yet available for showings.