1860 W Isles Road Port Charlotte, FL 33953
For Sale MLS# C7513549
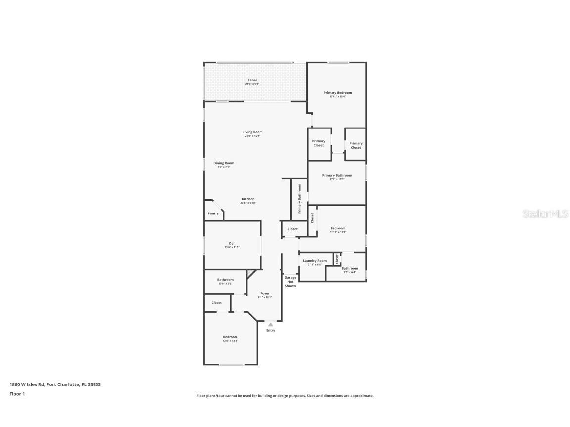
3 beds 3 baths 2,201 sq ft Single Family
Details for 1860 W Isles Road
MLS# C7513549
Description for 1860 W Isles Road, Port Charlotte, FL, 33953
Welcome to a true showstopper in the coveted community of West Port—where modern elegance meets effortless Florida living and every day feels like a vacation. This immaculate 3-bedroom, 3-bathroom home with a versatile den and a spacious 2-car garage offers over 2,000 square feet of pure perfection. Built in 2022, it combines the best of like-new construction with thoughtful upgrades, including elegant tile flooring throughout, a light-filled open layout, and high-end finishes that make every space feel warm and inviting. At the heart of the home, the gourmet kitchen opens seamlessly to the dining and living areas, creating the perfect flow for hosting family and friends. The expansive screened lanai is the ideal spot to start your day with coffee or unwind in the evening, as it overlooks a tranquil freshwater canal where breathtaking sunsets paint the sky in stunning colors. The private primary suite is a retreat in itself, complete with his-and-hers closets and a spa-inspired bathroom designed for ultimate relaxation. Each guest bedroom offers its own beautifully appointed bath, giving visitors the comfort and privacy they deserve. Step outside your door and experience the best of West Port living. This master-planned community features a sparkling resort-style pool, scenic walking and biking trails, lush green spaces, and recreational areas designed to keep you active and connected. Whether you’re enjoying a swim, meeting neighbors at community events, or exploring the natural beauty of the surroundings, West Port offers amenities that elevate everyday life. Back at home, a fenced backyard provides the perfect place for pets to play or for you to enjoy a quiet afternoon. The HOA maintains your yard, so you can spend more time living the Florida lifestyle instead of working on it. And with this home being sold fully furnished with stylish, high-quality pieces, you can simply bring your suitcase and start enjoying it from day one. With its prime location, captivating water views, full suite of community amenities, and a move-in-ready design that’s as beautiful as it is functional, this isn’t just a home—it’s your dream come true.
Listing Information
Property Type: Residential, Single Family Residence
Status: Active
Bedrooms: 3
Bathrooms: 3
Lot Size: 0.16 Acres
Square Feet: 2,201 sq ft
Year Built: 2022
Garage: Yes
Stories: 1 Story
Construction: Block,Stucco
Subdivision: Isles/West Port Ph Ii
Foundation: Slab
County: Charlotte
Room Information
Main Floor
Primary Bedroom:
Kitchen:
Living Room:
Bathrooms
Full Baths: 3
Additonal Room Information
Laundry: Inside, Laundry Room
Interior Features
Appliances: Washer, Microwave, Range, Refrigerator, Dishwasher, Dryer
Flooring: Tile
Additional Interior Features: Ceiling Fan(s), Main Level Primary, High Ceilings, Open Floorplan
Utilities
Water: Public
Sewer: Public Sewer
Other Utilities: Electricity Connected,High Speed Internet Available,Water Connected
Cooling: Ceiling Fan(s), Central Air
Heating: Central, Electric
Exterior / Lot Features
Attached Garage: Attached Garage
Garage Spaces: 2
Roof: Shingle
Pool: Community, Association
Lot View: Canal,Trees/Woods,Water
Fencing: fenced
Additional Exterior/Lot Features: Lighting
Waterfront Details
Water Front Features: Canal Access
Community Features
Community Features: Sidewalks, Pool, Playground, Street Lights, Gated, Golf Carts OK, Community Mailbox
Security Features: Gated Community
Association Amenities: Pool, Playground, Gated, Maintenance Grounds
HOA Dues Include: Reserve Fund, Insurance, Maintenance Grounds, Association Management, Taxes, Common Areas
Homeowners Association: Yes
HOA Dues: $121 / Monthly
Driving Directions
To get from Sarasota, Florida, to 1860 W Isles Road in Port Charlotte, Florida, start by heading east on Fruitville Road (State Road 780) for about five miles until you reach the I-75 South on-ramp. Merge onto I-75 South and continue for roughly 30 miles. Take the exit for Charlotte County toward US-41 (Tamiami Trail) and head south toward Port Charlotte. Follow US-41 for several miles, then turn onto the local roads leading to W Isles Road, where you’ll find 1860 W Isles Road.
Financial Considerations
Terms: Cash,Conventional,FHA,VA Loan
Tax/Property ID: 402112251240
Tax Amount: 8013.84
Tax Year: 2024
A broker reciprocity listing courtesy: GRANT TEAM REAL ESTATE, LLC
Based on information provided by Stellar MLS as distributed by the MLS GRID. Information from the Internet Data Exchange is provided exclusively for consumers’ personal, non-commercial use, and such information may not be used for any purpose other than to identify prospective properties consumers may be interested in purchasing. This data is deemed reliable but is not guaranteed to be accurate by Edina Realty, Inc., or by the MLS. Edina Realty, Inc., is not a multiple listing service (MLS), nor does it offer MLS access.
Copyright 2025 Stellar MLS as distributed by the MLS GRID. All Rights Reserved.
Payment Calculator
Interest rate and annual percentage rate (APR) are based on current market conditions, are for informational purposes only, are subject to change without notice and may be subject to pricing add-ons related to property type, loan amount, loan-to-value, credit score and other variables. Estimated closing costs used in the APR calculation are assumed to be paid by the borrower at closing. If the closing costs are financed, the loan, APR and payment amounts will be higher. If the down payment is less than 20%, mortgage insurance may be required and could increase the monthly payment and APR. Contact us for details. Additional loan programs may be available. Accuracy is not guaranteed, and all products may not be available in all borrower's geographical areas and are based on their individual situation. This is not a credit decision or a commitment to lend.
Sales History & Tax Summary for 1860 W Isles Road
Sales History
| Date | Price | Change |
|---|---|---|
| Currently not available. | ||
Tax Summary
| Tax Year | Estimated Market Value | Total Tax |
|---|---|---|
| Currently not available. | ||
Data powered by ATTOM Data Solutions. Copyright© 2025. Information deemed reliable but not guaranteed.
Schools
Schools nearby 1860 W Isles Road
| Schools in attendance boundaries | Grades | Distance | Rating |
|---|---|---|---|
| Loading... | |||
| Schools nearby | Grades | Distance | Rating |
|---|---|---|---|
| Loading... | |||
Data powered by ATTOM Data Solutions. Copyright© 2025. Information deemed reliable but not guaranteed.
The schools shown represent both the assigned schools and schools by distance based on local school and district attendance boundaries. Attendance boundaries change based on various factors and proximity does not guarantee enrollment eligibility. Please consult your real estate agent and/or the school district to confirm the schools this property is zoned to attend. Information is deemed reliable but not guaranteed.
SchoolDigger ® Rating
The SchoolDigger rating system is a 1-5 scale with 5 as the highest rating. SchoolDigger ranks schools based on test scores supplied by each state's Department of Education. They calculate an average standard score by normalizing and averaging each school's test scores across all tests and grades.
Coming soon properties will soon be on the market, but are not yet available for showings.