1872 New Hampshire Avenue NE Saint Petersburg, FL 33703
For Sale MLS# TB8430914
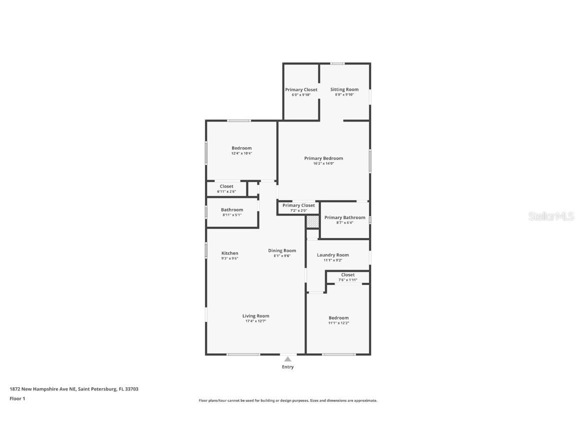
3 beds 2 baths 1,450 sq ft Single Family
Details for 1872 New Hampshire Avenue NE
MLS# TB8430914
Description for 1872 New Hampshire Avenue NE, Saint Petersburg, FL, 33703
Welcome to Shore Acres, one of St. Petersburg’s most desirable neighborhoods, located less than 5 miles from vibrant Downtown St. Petersburg, where you’ll find acclaimed restaurants, waterfront parks, cultural venues, and shopping. This beautifully updated 3-bedroom, 2-bath residence offers a blend of modern comfort and coastal charm. Renovated in 2020, the home also features a 2022 roof, elevated 2022 HVAC system on a hurricane pad, and a brand-new 2024 tankless water heater. Inside, the open concept layout includes luxury vinyl plank flooring throughout the main living areas, a kitchen with quartz countertops and a waterfall edge peninsula that seats four, and marble tile finishes in both bathrooms. The split floor plan includes two spacious secondary bedrooms and a generous primary suite with a walk-in closet, space for a sitting area or office, and a well-appointed bathroom. A dedicated laundry room with shiplap accents adds convenience and charm. Outdoor living is equally inviting, with a private backyard designed for entertaining. Highlights include a covered bar with seating, a putting and chipping green, and multiple patio areas. Vinyl fencing and irrigation complete the exterior. The property is located in Flood Zone AE. The City of St. Petersburg has allocated funds for a new pump station to improve water retention in the neighborhood, with construction expected in the coming years. Conveniently situated near Shore Acres Recreation Center, local parks, golf, boat ramps, and less than 25 minutes to St. Pete Beach and Tampa International Airport, this home offers both comfort and accessibility to all that Tampa Bay has to give.
Listing Information
Property Type: Residential, Single Family Residence
Status: Active
Bedrooms: 3
Bathrooms: 2
Lot Size: 0.11 Acres
Square Feet: 1,450 sq ft
Year Built: 1971
Stories: 1 Story
Construction: Block
Construction Display: New Construction
Subdivision: Shoreacres Center
Foundation: Slab
County: Pinellas
Construction Status: New Construction
School Information
Elementary: Shore Acres Elementary-Pn
Middle: Meadowlawn Middle-Pn
High: Northeast High-Pn
Room Information
Main Floor
Laundry: 10.9x5
Primary Bedroom: 16x13.9
Bathroom 1: 5x9
Bedroom 2: 12x10.3
Bedroom 1: 11x12
Dining Room: 5x10.11
Kitchen: 9.6x11.8
Office: 9.1x9.8
Living Room: 12.7x17
Primary Bedroom: 8.5x6.3
Bathrooms
Full Baths: 2
Additonal Room Information
Laundry: Inside, Laundry Room
Interior Features
Appliances: Exhaust Fan, Range Hood, Built-In Oven, Ice Maker, Electric Water Heater, Washer, Range, Refrigerator, Microwave, Dishwasher, Disposal, Dryer, Cooktop
Flooring: Luxury Vinyl,Tile
Doors/Windows: Window Treatments, Shutters
Additional Interior Features: Eat-In Kitchen, Window Treatments, Split Bedrooms, Living/Dining Room, Ceiling Fan(s), Solid Surface Counters, Stone Counters, Main Level Primary, Kitchen/Family Room Combo, Open Floorplan
Utilities
Water: Public
Sewer: Public Sewer
Other Utilities: Cable Connected,Electricity Connected,Municipal Utilities,Sewer Connected,Underground Utilities,Water Connected
Cooling: Ceiling Fan(s), Central Air
Heating: Heat Pump
Exterior / Lot Features
Parking Description: Parking Pad
Roof: Shingle
Lot Dimensions: 50x100
Fencing: Vinyl
Additional Exterior/Lot Features: Sprinkler/Irrigation, Covered, Deck, Patio, Porch, Front Porch, Rear Porch, Flat, Level, Landscaped, City Lot, Flood Zone, Near Golf Course
Driving Directions
From 4th street head east on 62nd Ave NE until you dead end at the water, then head south (right) on Bayou Grande BLVD NE. Then head south (right) on Chancellor St. NE and New Hampshire Ave NE will be the second street. Head east (left) and the home will be the 8th home on your right.
Financial Considerations
Tax/Property ID: 04-31-17-81450-002-0100
Tax Amount: 5146.98
Tax Year: 2024
A broker reciprocity listing courtesy: EXP REALTY LLC
Based on information provided by Stellar MLS as distributed by the MLS GRID. Information from the Internet Data Exchange is provided exclusively for consumers’ personal, non-commercial use, and such information may not be used for any purpose other than to identify prospective properties consumers may be interested in purchasing. This data is deemed reliable but is not guaranteed to be accurate by Edina Realty, Inc., or by the MLS. Edina Realty, Inc., is not a multiple listing service (MLS), nor does it offer MLS access.
Copyright 2025 Stellar MLS as distributed by the MLS GRID. All Rights Reserved.
Payment Calculator
Interest rate and annual percentage rate (APR) are based on current market conditions, are for informational purposes only, are subject to change without notice and may be subject to pricing add-ons related to property type, loan amount, loan-to-value, credit score and other variables. Estimated closing costs used in the APR calculation are assumed to be paid by the borrower at closing. If the closing costs are financed, the loan, APR and payment amounts will be higher. If the down payment is less than 20%, mortgage insurance may be required and could increase the monthly payment and APR. Contact us for details. Additional loan programs may be available. Accuracy is not guaranteed, and all products may not be available in all borrower's geographical areas and are based on their individual situation. This is not a credit decision or a commitment to lend.
Sales History & Tax Summary for 1872 New Hampshire Avenue NE
Sales History
| Date | Price | Change |
|---|---|---|
| Currently not available. | ||
Tax Summary
| Tax Year | Estimated Market Value | Total Tax |
|---|---|---|
| Currently not available. | ||
Data powered by ATTOM Data Solutions. Copyright© 2025. Information deemed reliable but not guaranteed.
Schools
Schools nearby 1872 New Hampshire Avenue NE
| Schools in attendance boundaries | Grades | Distance | Rating |
|---|---|---|---|
| Loading... | |||
| Schools nearby | Grades | Distance | Rating |
|---|---|---|---|
| Loading... | |||
Data powered by ATTOM Data Solutions. Copyright© 2025. Information deemed reliable but not guaranteed.
The schools shown represent both the assigned schools and schools by distance based on local school and district attendance boundaries. Attendance boundaries change based on various factors and proximity does not guarantee enrollment eligibility. Please consult your real estate agent and/or the school district to confirm the schools this property is zoned to attend. Information is deemed reliable but not guaranteed.
SchoolDigger ® Rating
The SchoolDigger rating system is a 1-5 scale with 5 as the highest rating. SchoolDigger ranks schools based on test scores supplied by each state's Department of Education. They calculate an average standard score by normalizing and averaging each school's test scores across all tests and grades.
Coming soon properties will soon be on the market, but are not yet available for showings.