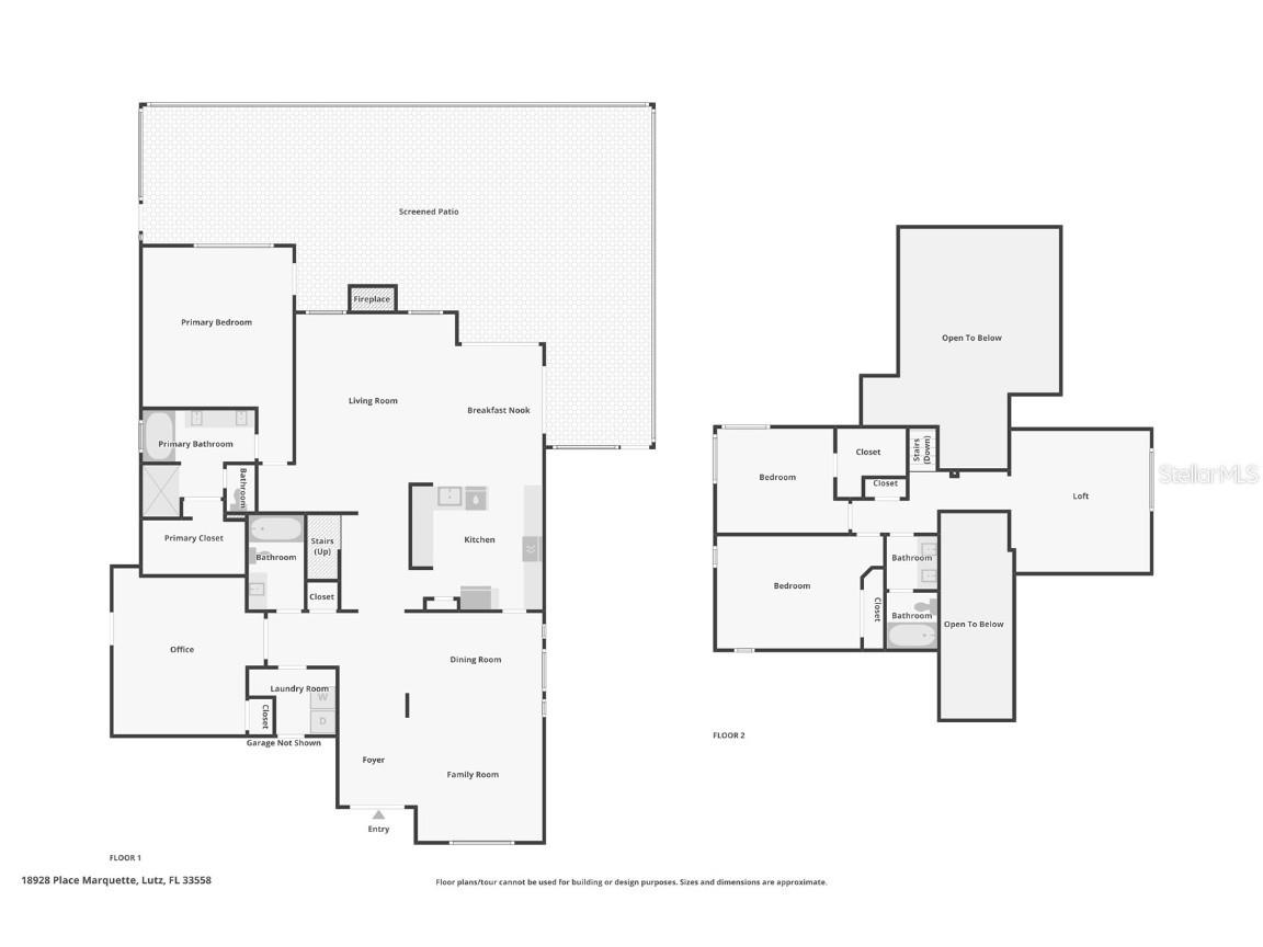
18928 Place Marquette Lutz, FL 33558
For Sale MLS# TB8421970
4 beds 3 baths 2,803 sq ft Single Family
Details for 18928 Place Marquette
MLS# TB8421970
Description for 18928 Place Marquette, Lutz, FL, 33558
Discover refined living in the sought-after gated Cheval community, with this 4-bedroom, 3-bathroom home set on a premium cul-de-sac lot, offering serene pond views and a backdrop of the newly reopened Cheval Golf Course. The property is served by a deep well, providing a private water source. Inside, soaring ceilings create a sense of openness from the moment you enter. A welcoming sitting room and adjacent dining area flow seamlessly into the kitchen, complete with stainless steel appliances, ample storage, and a breakfast nook overlooking the fairway. The living area is a showstopper, with a cozy fireplace as its focal point and remote-controlled blinds framing the views. The primary suite is generous in size and features private access to the lanai, a spacious walk-in closet, and an ensuite bath with dual sinks, a soaking tub, and a dual shower-head shower. A large den/office and full bathroom are also located on the main floor. Upstairs, two additional bedrooms share a full bath, complemented by a versatile loft area ideal for a second living space. Both bathrooms are spacious with tiled flooring. Upgrades include a tankless water heater providing instant heat, filtered drinking water, a water softener, attic spray foam insulation, seamless gutters with LeafGuard, all interior walls insulated, and the block home finished with colored worm coat that eliminates the need for future painting. Outdoors, enjoy tranquil evenings on the expansive lanai with an in-ground hot tub, lush landscaping, and beautiful pond and golf course views—perfect for sunsets. It’s not uncommon to see deer and other wildlife from the lanai, adding to the serene and natural setting. A new roof was installed in October 2025, and the HVAC system includes a 2-year warranty with a freshly replaced ultraviolet bulb in 2025 for improved air quality and peace of mind. Cheval offers a wealth of amenities including a clubhouse, community pool, basketball and tennis courts, and a championship golf course, enhancing the lifestyle this home provides. With negotiable furnishings, this property combines comfort, elegance, and the security of a gated, amenity-rich community. Don’t miss this opportunity to own a spectacular Cheval home—luxury, location, and lifestyle all in one!
Listing Information
Property Type: Residential, Single Family Residence
Status: Active
Bedrooms: 4
Bathrooms: 3
Lot Size: 0.18 Acres
Square Feet: 2,803 sq ft
Year Built: 1996
Garage: Yes
Stories: 2 Story
Construction: Stucco,Wood Frame
Subdivision: Cheval
Foundation: Slab
County: Hillsborough
School Information
Elementary: Mckitrick-Hb
Middle: Martinez-Hb
High: Steinbrenner High School
Room Information
Main Floor
Primary Bedroom:
Living Room:
Kitchen:
Bathrooms
Full Baths: 2
1/2 Baths: 1
Additonal Room Information
Laundry: Laundry Room
Interior Features
Appliances: Dishwasher, Dryer, Microwave, Range, Refrigerator, Washer
Flooring: Carpet,Ceramic Tile,Wood
Doors/Windows: Window Treatments
Fireplaces: Family Room, Gas
Additional Interior Features: Ceiling Fan(s), Vaulted Ceiling(s), Walk-In Closet(s), Window Treatments, Split Bedrooms, High Ceilings, Living/Dining Room, Solid Surface Counters
Utilities
Water: Public
Sewer: Public Sewer
Other Utilities: Cable Available,Electricity Connected,Sewer Connected,Water Connected
Cooling: Central Air, Ceiling Fan(s)
Heating: Central
Exterior / Lot Features
Attached Garage: Attached Garage
Garage Spaces: 2
Parking Description: driveway
Roof: Tile
Pool: Community, Association
Lot View: Pond,Water
Lot Dimensions: 67x117
Community Features
Community Features: Sidewalks, Pool, Fitness, Golf Carts OK
Association Amenities: Fitness Center, Gated, Pool
HOA Dues Include: Maintenance Grounds, Security
Homeowners Association: Yes
HOA Dues: $199 / Monthly
Driving Directions
From FL-597 N Slight left toward Cheval Blvd Turn left at the 1st cross street onto Cheval Blvd Turn left to stay on Cheval Blvd Turn right onto Biarritz Ave Turn left onto Place Marquette
Financial Considerations
Terms: Cash,Conventional,FHA,VA Loan
Tax/Property ID: U-09-27-18-0HZ-000001-00038.0
Tax Amount: 6239.03
Tax Year: 2024
A broker reciprocity listing courtesy: REDFIN CORPORATION
Based on information provided by Stellar MLS as distributed by the MLS GRID. Information from the Internet Data Exchange is provided exclusively for consumers’ personal, non-commercial use, and such information may not be used for any purpose other than to identify prospective properties consumers may be interested in purchasing. This data is deemed reliable but is not guaranteed to be accurate by Edina Realty, Inc., or by the MLS. Edina Realty, Inc., is not a multiple listing service (MLS), nor does it offer MLS access.
Copyright 2026 Stellar MLS as distributed by the MLS GRID. All Rights Reserved.
Payment Calculator
Interest rate and annual percentage rate (APR) are based on current market conditions, are for informational purposes only, are subject to change without notice and may be subject to pricing add-ons related to property type, loan amount, loan-to-value, credit score and other variables. Estimated closing costs used in the APR calculation are assumed to be paid by the borrower at closing. If the closing costs are financed, the loan, APR and payment amounts will be higher. If the down payment is less than 20%, mortgage insurance may be required and could increase the monthly payment and APR. Contact us for details. Additional loan programs may be available. Accuracy is not guaranteed, and all products may not be available in all borrower's geographical areas and are based on their individual situation. This is not a credit decision or a commitment to lend.
Sales History & Tax Summary for 18928 Place Marquette
Sales History
| Date | Price | Change |
|---|---|---|
| Currently not available. | ||
Tax Summary
| Tax Year | Estimated Market Value | Total Tax |
|---|---|---|
| Currently not available. | ||
Data powered by ATTOM Data Solutions. Copyright© 2026. Information deemed reliable but not guaranteed.
Schools
Schools nearby 18928 Place Marquette
| Schools in attendance boundaries | Grades | Distance | Rating |
|---|---|---|---|
| Loading... | |||
| Schools nearby | Grades | Distance | Rating |
|---|---|---|---|
| Loading... | |||
Data powered by ATTOM Data Solutions. Copyright© 2026. Information deemed reliable but not guaranteed.
The schools shown represent both the assigned schools and schools by distance based on local school and district attendance boundaries. Attendance boundaries change based on various factors and proximity does not guarantee enrollment eligibility. Please consult your real estate agent and/or the school district to confirm the schools this property is zoned to attend. Information is deemed reliable but not guaranteed.
SchoolDigger ® Rating
The SchoolDigger rating system is a 1-5 scale with 5 as the highest rating. SchoolDigger ranks schools based on test scores supplied by each state's Department of Education. They calculate an average standard score by normalizing and averaging each school's test scores across all tests and grades.
Coming soon properties will soon be on the market, but are not yet available for showings.