$899,000
19 Westmayer Place Flagler Beach, FL 32136
For Sale MLS# FC313197
5 beds 3 baths 3,200 sq ft Single Family
Details for 19 Westmayer Place
MLS# FC313197
Description for 19 Westmayer Place, Flagler Beach, FL, 32136
Coastal living at its finest! This custom-built, three-story retreat offers an unbeatable blend of quality craftsmanship, stunning water views, and prime beachside convenience! Enjoy breathtaking Intracoastal view sunsets, sunrises and ocean breezes from expansive covered decks on both the second and third floors. Decks are Fiber glassed like a boat and will never leak! You’ll have private deeded beach access just steps away, allowing you to have your toes in the sand within minutes. With 5 bedrooms, 2.5 bathrooms, and over 3,200 sq. ft. of thoughtfully designed living space, this home is built for both comfort and entertaining. Designed with durability and efficiency in mind, this home is concrete-sided, including soffits for hurricane protection and strategically set back on the lot to maximize unobstructed views. 10 ft ceilings on all floors to optimize third floor views with a low-profile roof, for low wind-impact. Two zone HVAC. All walls and floors between levels are insulated for quiet and peaceful enjoyment within all the individual spaces and maximizing energy as well. The elevator shaft has already been built and pre-wired so it’s ready to go for those who desire an elevator or simply leave them in their current use for tons of extra storage spaces! The third level is the heart of the home, featuring an elegant open-concept living area, a beautiful & functional kitchen with gorgeous backsplash, soft-close cabinetry, walk-in pantry providing ample storage. Cozy up by the fireplace and soak in the serene coastal ambiance. For convenience, there is also a guest half bath on this level. The large primary suite will be where you love to unwind after a long day with its spacious yet warm space which includes plenty of closet space and a fabulous oversized upgraded designer tiled walk-in shower. The second level hosts a full bathroom and four guest rooms, each with private balcony access while the first-floor office/den opens to the backyard, perfect for enjoying Flagler Beach’s captivating sea breezes. Not to mention over 30 palm trees for just an absolute tropical, inviting vibe that you will long to get home to each day! With a one-car garage, two covered parking spaces, and a spacious driveway for extra vehicles and all your water enthusiast toys, this home offers the ultimate Florida lifestyle in a tucked-away location just off Ocean Shore Blvd. Don't miss this rare opportunity to own a stunning coastal escape in beautiful Flagler Beach! Flagler Beach offers six miles of uncrowded shoreline, ocean view dining, parks, fishing spots, surf-able waves and a friendly laid-back atmosphere just south of St. Augustine and just north of Ormond/Daytona Beach. A short drive away to the center of town, near dining, shopping and more. This home will be where your heart is, do not delay! Your private tour of your new home is awaiting!
Listing Information
Property Type: Residential, Single Family Residence
Status: Active
Bedrooms: 5
Bathrooms: 3
Lot Size: 0.18 Acres
Square Feet: 3,200 sq ft
Year Built: 2019
Garage: Yes
Stories: 3 Story
Construction: Concrete
Construction Display: New Construction
Subdivision: Seaside Manor Sub
Foundation: Slab
County: Flagler
Construction Status: New Construction
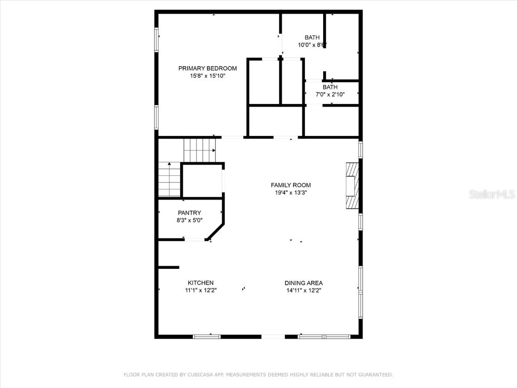
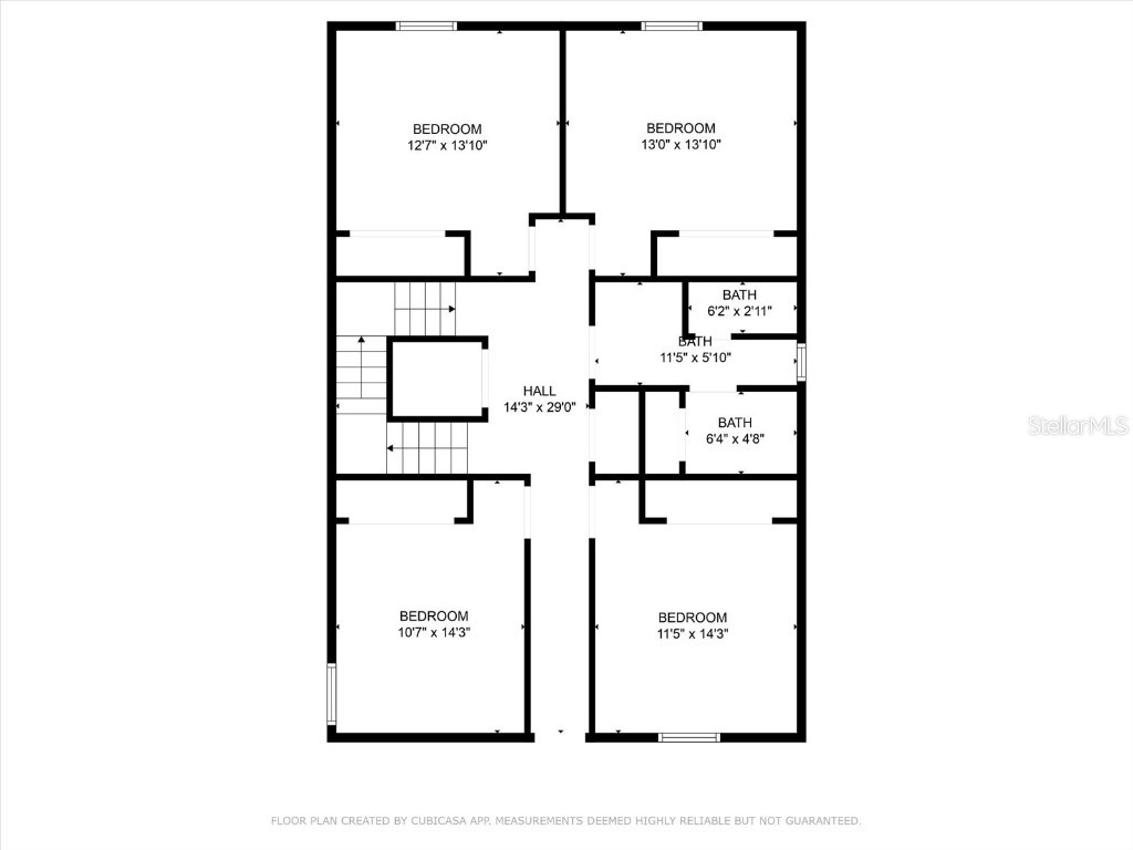
Room Information
Main Floor
Foyer: 10.1x4.4
Laundry: 4.11x7.11
Den: 13.1x11.9
Upper Floor
Kitchen: 12.2x11.1
Bedroom 1: 13.1x12.7
Dinette: 12.2x14.11
Living Room: 13.3x19.4
Primary Bathroom: 10x10
Primary Bedroom: 15.1x15.8
Bathroom 1: 5.1x11.5
Bedroom 4: 14.3x11.5
Bedroom 3: 14.3x10.7
Bedroom 2: 13.1x13
Bathrooms
Full Baths: 2
1/2 Baths: 1
Additonal Room Information
Laundry: Washer Hookup, Electric Dryer Hookup, Inside, Laundry Room
Interior Features
Appliances: Ice Maker, Range Hood, Electric Water Heater, Microwave, Range, Refrigerator, Cooktop, Dishwasher, Disposal
Flooring: Luxury Vinyl
Fireplaces: Electric, Living Room
Additional Interior Features: Vaulted Ceiling(s), Ceiling Fan(s), Built-in Features, Split Bedrooms, Walk-In Closet(s), Living/Dining Room, Open Floorplan, Kitchen/Family Room Combo, Upper Level Primary
Utilities
Water: Public
Sewer: Public Sewer
Other Utilities: Cable Connected,Electricity Connected,Sewer Connected,Water Connected
Cooling: Ceiling Fan(s), Central Air
Heating: Electric, Central
Exterior / Lot Features
Attached Garage: Attached Garage
Garage Spaces: 1
Roof: Shingle
Lot View: Intercoastal,Trees/Woods,Water
Additional Exterior/Lot Features: Lighting, Front Porch, Rear Porch, Covered, Landscaped, Cul-de-Sac, Dead End, Outside City Limits
Driving Directions
From SR100, head north on Ocean Shore Blvd, 3.4 miles. Head west Westmayer Place house will be on the right.
Financial Considerations
Terms: Cash,Conventional,FHA,VA Loan
Tax/Property ID: 26-11-31-5450-00000-0230
Tax Amount: 4780
Tax Year: 2024
A broker reciprocity listing courtesy: KELLER WILLIAMS RLTY FL. PARTN
Based on information provided by Stellar MLS as distributed by the MLS GRID. Information from the Internet Data Exchange is provided exclusively for consumers’ personal, non-commercial use, and such information may not be used for any purpose other than to identify prospective properties consumers may be interested in purchasing. This data is deemed reliable but is not guaranteed to be accurate by Edina Realty, Inc., or by the MLS. Edina Realty, Inc., is not a multiple listing service (MLS), nor does it offer MLS access.
Copyright 2026 Stellar MLS as distributed by the MLS GRID. All Rights Reserved.
Payment Calculator
Interest rate and annual percentage rate (APR) are based on current market conditions, are for informational purposes only, are subject to change without notice and may be subject to pricing add-ons related to property type, loan amount, loan-to-value, credit score and other variables. Estimated closing costs used in the APR calculation are assumed to be paid by the borrower at closing. If the closing costs are financed, the loan, APR and payment amounts will be higher. If the down payment is less than 20%, mortgage insurance may be required and could increase the monthly payment and APR. Contact us for details. Additional loan programs may be available. Accuracy is not guaranteed, and all products may not be available in all borrower's geographical areas and are based on their individual situation. This is not a credit decision or a commitment to lend.
Sales History & Tax Summary for 19 Westmayer Place
Sales History
| Date | Price | |
|---|---|---|
| Currently not available. | ||
Tax Summary
| Tax Year | Estimated Market Value | Total Tax |
|---|---|---|
| Currently not available. | ||
Data powered by ATTOM Data Solutions. Copyright© 2026. Information deemed reliable but not guaranteed.
Schools
Schools nearby 19 Westmayer Place
| Schools in attendance boundaries | Grades | Distance | Rating |
|---|---|---|---|
| Loading... | |||
| Schools nearby | Grades | Distance | Rating |
|---|---|---|---|
| Loading... | |||
Data powered by ATTOM Data Solutions. Copyright© 2026. Information deemed reliable but not guaranteed.
The schools shown represent both the assigned schools and schools by distance based on local school and district attendance boundaries. Attendance boundaries change based on various factors and proximity does not guarantee enrollment eligibility. Please consult your real estate agent and/or the school district to confirm the schools this property is zoned to attend. Information is deemed reliable but not guaranteed.
SchoolDigger ® Rating
The SchoolDigger rating system is a 1-5 scale with 5 as the highest rating. SchoolDigger ranks schools based on test scores supplied by each state's Department of Education. They calculate an average standard score by normalizing and averaging each school's test scores across all tests and grades.
Coming soon properties will soon be on the market, but are not yet available for showings.