1905 14th Avenue W Bradenton, FL 34205
For Sale MLS# A4661185
3 beds 2 baths 1,348 sq ft Single Family
Details for 1905 14th Avenue W
MLS# A4661185
Description for 1905 14th Avenue W, Bradenton, FL, 34205
A very well maintained single family home on a grassy expansive lot, centrally located just south of downtown Bradenton in a very quiet and established neighborhood, with City Water and Sewer. No deed restrictions, No CDD Fees and No pesky HOA Fees....Walking distance to the famous downtown Bradenton Riverwalk, Village of the Arts and LECOM Park (Spring Training home of the Pittsburgh Pirates and the full time home of the Single A Bradenton Maulers)........As one approaches the home from the street, walk up one of the largest front yards in the neighborhood to the short steps that lead to the covered entryway and the leaded glass inlaid front door with accompanying patterned sidelights….. (Descriptions of the rooms will be in the pictures section.).....The patio and back yard are accessed via a sliding glass door from the Living Room as well as through a door from the Master Bedroom.....There is plenty of room to add a swimming pool in this spacious (over 3200 sq ft) newly fenced-in back yard and still have oodles of room for the kids, grandkids or pets to play. Two framed sheds, one with electric service allow one to keep the yard tidy with storage for lawn equipment, toys, outdoor furniture and (optional) snowmobiles.…..U-Shaped driveway allows you to park cars, boats, or an RV. The attached garage is 21.5 feet deep and 12 feet wide with the original cedar plank ceiling….. This move-in-ready home has been thoughtfully updated: New roof (2022), New water heater (2022), Updated electric (2023,) Brand-new HVAC system and ductwork (2025), Fresh interior paint and all newer appliances. The Security Camera system conveys with the property. This home, located minutes from Anna Maria Island offers the perfect mix of coastal living and city convenience.
Listing Information
Property Type: Residential, Single Family Residence
Status: Active
Bedrooms: 3
Bathrooms: 2
Lot Size: 0.21 Acres
Square Feet: 1,348 sq ft
Year Built: 1951
Garage: Yes
Stories: 1 Story
Construction: Block,Stucco,Wood Frame
Construction Display: New Construction
Subdivision: Acreage
Foundation: Crawlspace,Slab
County: Manatee
Construction Status: New Construction
School Information
Elementary: Ballard Elementary
Middle: Martha B. King Middle
High: Manatee High
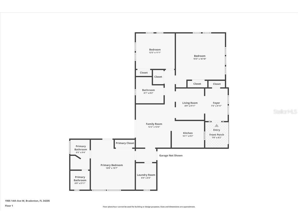
Room Information
Main Floor
Laundry: 6.4x8.3
Primary Bedroom: 15.7x13.8
Bathroom 2: 8.2x8.7
Primary Bathroom: 6x15.1
Kitchen: 8.2x10.1
Family Room: 13.6x13.2
Living Room: 9.11x8.9
Foyer: 9.11x7
Bedroom 3: 11.1x12.5
Bedroom 2: 16.1x15.3
Bathrooms
Full Baths: 2
Additonal Room Information
Laundry: Inside
Interior Features
Appliances: Electric Water Heater, Dishwasher, Dryer, Microwave, Range, Refrigerator, Washer
Flooring: Carpet,Ceramic Tile,Vinyl
Basement: Crawl Space
Doors/Windows: Skylight(s)
Additional Interior Features: Ceiling Fan(s), Skylights
Utilities
Water: Public
Sewer: Public Sewer
Other Utilities: Cable Available,Electricity Connected,Sewer Connected
Cooling: Ceiling Fan(s), Central Air
Heating: Electric
Exterior / Lot Features
Attached Garage: Attached Garage
Garage Spaces: 1
Parking Description: Circular Driveway
Roof: Shingle
Lot View: Garden
Lot Dimensions: 69x130
Fencing: Wood
Additional Exterior/Lot Features: Rain Gutters, Patio, Landscaped, Cleared
Out Buildings: Shed(s)
Driving Directions
Tamiami Trail (US 41) to 14th Ave turn to the west.....go to 19th St and look for House on left. If you cannot find it......PANIC and call the Listing Agent.
Financial Considerations
Terms: Cash,Conventional,FHA
Tax/Property ID: 4082700008
Tax Amount: 3110
Tax Year: 2025
A broker reciprocity listing courtesy: KELLER WILLIAMS ON THE WATER S
Based on information provided by Stellar MLS as distributed by the MLS GRID. Information from the Internet Data Exchange is provided exclusively for consumers’ personal, non-commercial use, and such information may not be used for any purpose other than to identify prospective properties consumers may be interested in purchasing. This data is deemed reliable but is not guaranteed to be accurate by Edina Realty, Inc., or by the MLS. Edina Realty, Inc., is not a multiple listing service (MLS), nor does it offer MLS access.
Copyright 2025 Stellar MLS as distributed by the MLS GRID. All Rights Reserved.
Payment Calculator
Interest rate and annual percentage rate (APR) are based on current market conditions, are for informational purposes only, are subject to change without notice and may be subject to pricing add-ons related to property type, loan amount, loan-to-value, credit score and other variables. Estimated closing costs used in the APR calculation are assumed to be paid by the borrower at closing. If the closing costs are financed, the loan, APR and payment amounts will be higher. If the down payment is less than 20%, mortgage insurance may be required and could increase the monthly payment and APR. Contact us for details. Additional loan programs may be available. Accuracy is not guaranteed, and all products may not be available in all borrower's geographical areas and are based on their individual situation. This is not a credit decision or a commitment to lend.
Sales History & Tax Summary for 1905 14th Avenue W
Sales History
| Date | Price | Change |
|---|---|---|
| Currently not available. | ||
Tax Summary
| Tax Year | Estimated Market Value | Total Tax |
|---|---|---|
| Currently not available. | ||
Data powered by ATTOM Data Solutions. Copyright© 2025. Information deemed reliable but not guaranteed.
Schools
Schools nearby 1905 14th Avenue W
| Schools in attendance boundaries | Grades | Distance | Rating |
|---|---|---|---|
| Loading... | |||
| Schools nearby | Grades | Distance | Rating |
|---|---|---|---|
| Loading... | |||
Data powered by ATTOM Data Solutions. Copyright© 2025. Information deemed reliable but not guaranteed.
The schools shown represent both the assigned schools and schools by distance based on local school and district attendance boundaries. Attendance boundaries change based on various factors and proximity does not guarantee enrollment eligibility. Please consult your real estate agent and/or the school district to confirm the schools this property is zoned to attend. Information is deemed reliable but not guaranteed.
SchoolDigger ® Rating
The SchoolDigger rating system is a 1-5 scale with 5 as the highest rating. SchoolDigger ranks schools based on test scores supplied by each state's Department of Education. They calculate an average standard score by normalizing and averaging each school's test scores across all tests and grades.
Coming soon properties will soon be on the market, but are not yet available for showings.