1905 Canterbury Lane #17 Sun City Center, FL 33573
For Sale MLS# TB8402420
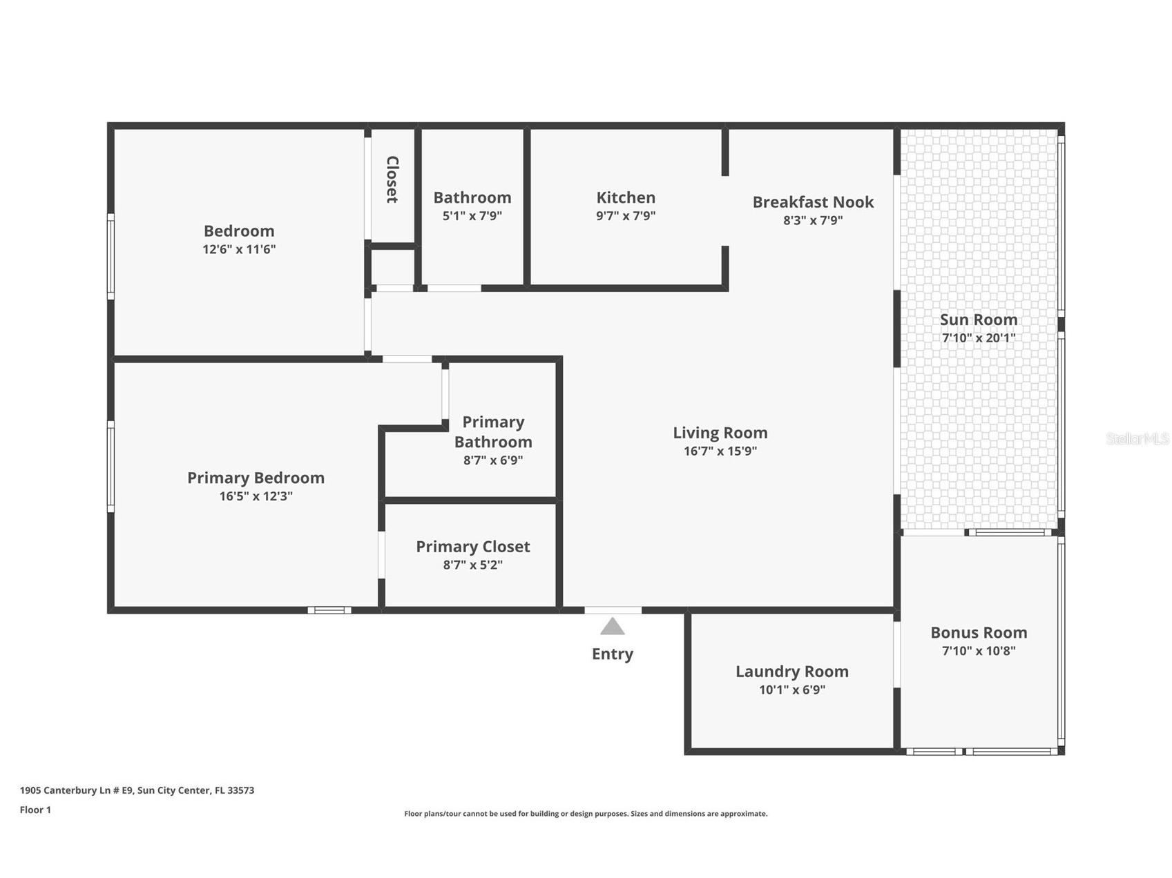
2 beds 2 baths 960 sq ft Condo
Details for 1905 Canterbury Lane #17
MLS# TB8402420
Description for 1905 Canterbury Lane #17, Sun City Center, FL, 33573
Your location puts you about one mile from both the south and north clubhouses located in Kings Point. Each features indoor and outdoor pools, with sauna areas, many arts and craft shops, and party rooms. The North clubhouse also has a large room complete with a stage for various entertainment venues. The South clubhouse features an excellent dining area with a bar included. Other activities include golf, tennis, pickleball, dog park, lawn bowling, and bocce court. Your condo features a screended in front porch entrance, inside utility with a new washer and dryer, water heater and extra storage area accross from the utility room. The main bedroom features a walkin closet and entrance to a private bathroom. A large enclosed lanai sits off the living and dining room area with a open view of a former golf course. Laminate wood flooring is featured throughout most of the living area. The kitchen features newer appliances and granite counter tops with back splash. The roof was replaced in October 2019. The electric panel was replaced in March 2018, and the main disconnect panel in April 2018. The condo was replumbed with a new pipe in November 2006. The location of Sun City Center/Kings Point puts you within a short trip to all the activities the cities of Tampa, St. Petersburg, and Sarasota offer, which include the white sand beaches, three professional sports teams, cruise ships, arts and crafts, Disney World, and much more. enjoy.
Listing Information
Property Type: Residential, Condominium
Status: Active
Bedrooms: 2
Bathrooms: 2
Lot Size: 0.02 Acres
Square Feet: 960 sq ft
Year Built: 1978
Stories: 1 Story
Construction: Block,Stucco
Property Attached: Yes
Construction Display: New Construction
Subdivision: Cambridge E Condo Rev
Foundation: Slab
County: Hillsborough
Construction Status: New Construction
Room Information
Main Floor
Bedroom 2: 11x12
Primary Bedroom: 14x13
Utility Room: 6x9
Kitchen: 8x9
Dining Room: 8x8
Living Room: 15x16
Bathrooms
Full Baths: 2
Additonal Room Information
Laundry: In Garage, Laundry Room
Interior Features
Appliances: Electric Water Heater, Washer, Microwave, Range, Refrigerator, Dishwasher, Dryer
Flooring: Ceramic Tile,Laminate
Additional Interior Features: Ceiling Fan(s), Living/Dining Room, Stone Counters
Utilities
Water: Public
Sewer: Public Sewer
Other Utilities: Cable Connected,Electricity Connected,Sewer Connected,Underground Utilities,Water Connected
Cooling: Ceiling Fan(s), Central Air
Heating: Central, Electric
Exterior / Lot Features
Parking Description: Covered
Roof: Shingle
Pool: Association, Community
Additional Exterior/Lot Features: Sprinkler/Irrigation, Flat, Level, Buyer Approval Required, Outside City Limits
Community Features
Community Features: Recreation Area, Fitness, Golf Carts OK, Restaurant, Dog Park, Sidewalks, Pool, Tennis Court(s), Clubhouse, Golf
Security Features: Smoke Detector(s)
Association Amenities: Clubhouse, Fitness Center, Recreation Facilities, Tennis Court(s), Pool, Spa/Hot Tub, Golf Course, Pickleball, Shuffleboard Court
HOA Dues Include: Road Maintenance, Common Areas, Reserve Fund, Association Management, Maintenance Grounds, Pest Control, Maintenance Structure, Pool(s), Internet, Cable TV, Water, Trash, Recreation Facilities, Security, Sewer, Taxes
Driving Directions
Take the exit for Sun City Center off I-75 and head east on route 674, and take a right on Kings Blvd to the entrance to Kings Point. You will need real estate identification to gain entrance. Stay on Kings Blvd on turn right on Canterbury Lane to the 1905 section of Canterbury. You want unit 17 on the right.
Financial Considerations
Terms: Cash,Conventional
Tax/Property ID: U-12-32-19-1X0-000000-00017.0
Tax Amount: 1388
Tax Year: 2024
A broker reciprocity listing courtesy: CENTURY 21 BEGGINS ENTERPRISES
Based on information provided by Stellar MLS as distributed by the MLS GRID. Information from the Internet Data Exchange is provided exclusively for consumers’ personal, non-commercial use, and such information may not be used for any purpose other than to identify prospective properties consumers may be interested in purchasing. This data is deemed reliable but is not guaranteed to be accurate by Edina Realty, Inc., or by the MLS. Edina Realty, Inc., is not a multiple listing service (MLS), nor does it offer MLS access.
Copyright 2025 Stellar MLS as distributed by the MLS GRID. All Rights Reserved.
Payment Calculator
Interest rate and annual percentage rate (APR) are based on current market conditions, are for informational purposes only, are subject to change without notice and may be subject to pricing add-ons related to property type, loan amount, loan-to-value, credit score and other variables. Estimated closing costs used in the APR calculation are assumed to be paid by the borrower at closing. If the closing costs are financed, the loan, APR and payment amounts will be higher. If the down payment is less than 20%, mortgage insurance may be required and could increase the monthly payment and APR. Contact us for details. Additional loan programs may be available. Accuracy is not guaranteed, and all products may not be available in all borrower's geographical areas and are based on their individual situation. This is not a credit decision or a commitment to lend.
Sales History & Tax Summary for 1905 Canterbury Lane #17
Sales History
| Date | Price | Change |
|---|---|---|
| Currently not available. | ||
Tax Summary
| Tax Year | Estimated Market Value | Total Tax |
|---|---|---|
| Currently not available. | ||
Data powered by ATTOM Data Solutions. Copyright© 2025. Information deemed reliable but not guaranteed.
Schools
Schools nearby 1905 Canterbury Lane #17
| Schools in attendance boundaries | Grades | Distance | Rating |
|---|---|---|---|
| Loading... | |||
| Schools nearby | Grades | Distance | Rating |
|---|---|---|---|
| Loading... | |||
Data powered by ATTOM Data Solutions. Copyright© 2025. Information deemed reliable but not guaranteed.
The schools shown represent both the assigned schools and schools by distance based on local school and district attendance boundaries. Attendance boundaries change based on various factors and proximity does not guarantee enrollment eligibility. Please consult your real estate agent and/or the school district to confirm the schools this property is zoned to attend. Information is deemed reliable but not guaranteed.
SchoolDigger ® Rating
The SchoolDigger rating system is a 1-5 scale with 5 as the highest rating. SchoolDigger ranks schools based on test scores supplied by each state's Department of Education. They calculate an average standard score by normalizing and averaging each school's test scores across all tests and grades.
Coming soon properties will soon be on the market, but are not yet available for showings.