191 Tournament Road Rotonda West, FL 33947
For Sale MLS# D6143372
3 beds 3 baths 2,280 sq ft Single Family
Details for 191 Tournament Road
MLS# D6143372
Description for 191 Tournament Road, Rotonda West, FL, 33947
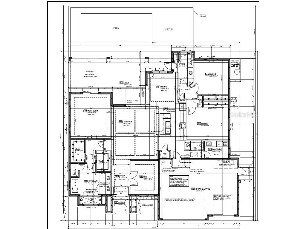
Under-Construction. Buyer to purchase and finish home with Builder of their choice. Great opportunity for builders, investors, or home buyers to take advantage of current progress for a shorter time to completion. The building permit is in place with approved drawings for this 3 bedroom, 2 and half bath, pool home. Construction began early 2025, and inspections have passed for the footings, underground plumbing, concrete slab, and bond beam. The soil has been treated, and the home is ready for completion including a stem wall for the pool. Introducing the Catalina 2, an elegant, Coastal-inspired home with room for a private pool and tropical landscaped view of the freshwater canal. The welcoming, open-concept great room, dining and kitchen features ninety-degree pocketing sliders, tray ceilings, and eight-foot doors throughout. The Study provides the flexibility of a home office, craft room, art studio and more! The modern kitchen can be equipped with custom wood cabinetry, quartz counter tops and stainless appliances. Architectural details are emphasized throughout the interior and exterior living spaces of this thoughtfully designed home. The Catalina 2 offers a third car garage, half bath, and a soaking tub in the Owner’s Bath vs. the original Catalina plan. Photos include current construction status as well as a previously completed home for reference only. Call now for details. Do not miss this opportunity!
Listing Information
Property Type: Residential, Single Family Residence
Status: Active
Bedrooms: 3
Bathrooms: 3
Lot Size: 0.22 Acres
Square Feet: 2,280 sq ft
Year Built: 2026
Garage: Yes
Stories: 1 Story
Construction: Block
Construction Display: New Construction
Subdivision: Rotonda West Pine Valley
Builder: Callisto Contracting
Foundation: Slab
County: Charlotte
Construction Status: Fixer
Room Information
Main Floor
Bedroom 3: 15x12
Bedroom 2: 13x13
Primary Bedroom: 17x15
Dining Room: 12x11
Kitchen: 14x10
Great Room: 20x18
Bathrooms
Full Baths: 2
1/2 Baths: 1
Additonal Room Information
Laundry: Laundry Room, Inside
Interior Features
Flooring: Other
Additional Interior Features: Split Bedrooms, Open Floorplan
Utilities
Water: Public
Sewer: Private Sewer
Other Utilities: Cable Available,Electricity Connected,High Speed Internet Available,Sewer Available,Water Available
Cooling: Other
Heating: Electric
Exterior / Lot Features
Attached Garage: Attached Garage
Garage Spaces: 3
Roof: Other
Lot View: Canal,Water
Additional Exterior/Lot Features: Other, Cleared, Flood Zone, Near Golf Course, Outside City Limits
Waterfront Details
Water Front Features: Canal Access
Community Features
Community Features: Golf
HOA Dues Include: Reserve Fund, Common Areas, Association Management, Taxes
Homeowners Association: Yes
HOA Dues: $190 / Annually
Driving Directions
Use ShowingTime then Go and Show. Buyer to purchase and complete the home. Home plans included in purchase. 2025 Taxes paid are on vacant land.
Financial Considerations
Terms: Cash
Tax/Property ID: 412025154011
Tax Amount: 1045
Tax Year: 2025
A broker reciprocity listing courtesy: MICHAEL SAUNDERS & COMPANY
Based on information provided by Stellar MLS as distributed by the MLS GRID. Information from the Internet Data Exchange is provided exclusively for consumers’ personal, non-commercial use, and such information may not be used for any purpose other than to identify prospective properties consumers may be interested in purchasing. This data is deemed reliable but is not guaranteed to be accurate by Edina Realty, Inc., or by the MLS. Edina Realty, Inc., is not a multiple listing service (MLS), nor does it offer MLS access.
Copyright 2026 Stellar MLS as distributed by the MLS GRID. All Rights Reserved.
Payment Calculator
Interest rate and annual percentage rate (APR) are based on current market conditions, are for informational purposes only, are subject to change without notice and may be subject to pricing add-ons related to property type, loan amount, loan-to-value, credit score and other variables. Estimated closing costs used in the APR calculation are assumed to be paid by the borrower at closing. If the closing costs are financed, the loan, APR and payment amounts will be higher. If the down payment is less than 20%, mortgage insurance may be required and could increase the monthly payment and APR. Contact us for details. Additional loan programs may be available. Accuracy is not guaranteed, and all products may not be available in all borrower's geographical areas and are based on their individual situation. This is not a credit decision or a commitment to lend.
Sales History & Tax Summary for 191 Tournament Road
Sales History
| Date | Price | |
|---|---|---|
| Currently not available. | ||
Tax Summary
| Tax Year | Estimated Market Value | Total Tax |
|---|---|---|
| Currently not available. | ||
Data powered by ATTOM Data Solutions. Copyright© 2026. Information deemed reliable but not guaranteed.
Schools
Schools nearby 191 Tournament Road
| Schools in attendance boundaries | Grades | Distance | Rating |
|---|---|---|---|
| Loading... | |||
| Schools nearby | Grades | Distance | Rating |
|---|---|---|---|
| Loading... | |||
Data powered by ATTOM Data Solutions. Copyright© 2026. Information deemed reliable but not guaranteed.
The schools shown represent both the assigned schools and schools by distance based on local school and district attendance boundaries. Attendance boundaries change based on various factors and proximity does not guarantee enrollment eligibility. Please consult your real estate agent and/or the school district to confirm the schools this property is zoned to attend. Information is deemed reliable but not guaranteed.
SchoolDigger ® Rating
The SchoolDigger rating system is a 1-5 scale with 5 as the highest rating. SchoolDigger ranks schools based on test scores supplied by each state's Department of Education. They calculate an average standard score by normalizing and averaging each school's test scores across all tests and grades.
Coming soon properties will soon be on the market, but are not yet available for showings.