1925 Mississippi Avenue Englewood, FL 34224
Pending MLS# D6143334
3 beds 3 baths 2,239 sq ft Single Family
Details for 1925 Mississippi Avenue
MLS# D6143334
Description for 1925 Mississippi Avenue, Englewood, FL, 34224
Under contract-accepting backup offers. This waterfront home offers the perfect blend of location and potential, with quick and easy access with no bridges to Lemon Bay, Stump Pass and the Gulf of America for unbeatable Boating and Fishing. Featuring a private pool, and dock with boat lift, this property is a dream for water lovers. This unique property is situated on an extra large lot with a desirable south facing backyard. A very unique side cut in for extra large boats, and ample storage space for all of your boating needs. Some recent updates are newer seawall, and a new roof in 2022. The home sustained damage from the recent storms and now presents a blank canvas for you to design and customize to your taste, whether you’re looking to create a coastal retreat or a full-time waterfront paradise, this is your chance to bring your vision to life in an unbeatable location.
Listing Information
Property Type: Residential, Single Family Residence
Status: Pending
Bedrooms: 3
Bathrooms: 3
Lot Size: 0.34 Acres
Square Feet: 2,239 sq ft
Year Built: 1963
Garage: Yes
Stories: 1 Story
Construction: Block
Subdivision: Grove City Shores
Foundation: Slab
County: Charlotte
School Information
Elementary: Englewood Elementary
Middle: L.A. Ainger Middle
High: Lemon Bay High
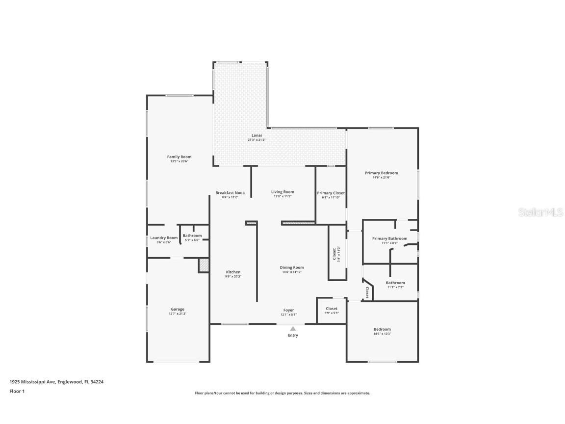
Room Information
Main Floor
Bedroom 2: 15x13
Kitchen: 21x10
Primary Bedroom: 15x19
Living Room: 36x14
Bathrooms
Full Baths: 3
Additonal Room Information
Laundry: Other
Interior Features
Flooring: Concrete,Ceramic Tile
Additional Interior Features: Other
Utilities
Water: Public
Sewer: Public Sewer
Other Utilities: Electricity Connected
Cooling: Other
Heating: Other
Exterior / Lot Features
Garage Spaces: 1
Roof: Shingle
Pool: Gunite
Lot View: Intercoastal,Ocean,Water
Lot Dimensions: 110x125
Additional Exterior/Lot Features: Other
Waterfront Details
Water Front Features: Gulf Access, Canal Access
Driving Directions
775 to Placida head West on Mississippi Ave to 1925
Financial Considerations
Terms: Cash,Conventional
Tax/Property ID: 412017130002
Tax Amount: 4677.05
Tax Year: 2024
A broker reciprocity listing courtesy: PARADISE EXCLUSIVE INC
Based on information provided by Stellar MLS as distributed by the MLS GRID. Information from the Internet Data Exchange is provided exclusively for consumers’ personal, non-commercial use, and such information may not be used for any purpose other than to identify prospective properties consumers may be interested in purchasing. This data is deemed reliable but is not guaranteed to be accurate by Edina Realty, Inc., or by the MLS. Edina Realty, Inc., is not a multiple listing service (MLS), nor does it offer MLS access.
Copyright 2026 Stellar MLS as distributed by the MLS GRID. All Rights Reserved.
Sales History & Tax Summary for 1925 Mississippi Avenue
Sales History
| Date | Price | |
|---|---|---|
| Currently not available. | ||
Tax Summary
| Tax Year | Estimated Market Value | Total Tax |
|---|---|---|
| Currently not available. | ||
Data powered by ATTOM Data Solutions. Copyright© 2026. Information deemed reliable but not guaranteed.
Schools
Schools nearby 1925 Mississippi Avenue
| Schools in attendance boundaries | Grades | Distance | Rating |
|---|---|---|---|
| Loading... | |||
| Schools nearby | Grades | Distance | Rating |
|---|---|---|---|
| Loading... | |||
Data powered by ATTOM Data Solutions. Copyright© 2026. Information deemed reliable but not guaranteed.
The schools shown represent both the assigned schools and schools by distance based on local school and district attendance boundaries. Attendance boundaries change based on various factors and proximity does not guarantee enrollment eligibility. Please consult your real estate agent and/or the school district to confirm the schools this property is zoned to attend. Information is deemed reliable but not guaranteed.
SchoolDigger ® Rating
The SchoolDigger rating system is a 1-5 scale with 5 as the highest rating. SchoolDigger ranks schools based on test scores supplied by each state's Department of Education. They calculate an average standard score by normalizing and averaging each school's test scores across all tests and grades.
Coming soon properties will soon be on the market, but are not yet available for showings.