193 S Port Royal Lane Apollo Beach, FL 33572
For Sale MLS# TB8429574
3 beds 2 baths 1,688 sq ft Single Family
Details for 193 S Port Royal Lane
MLS# TB8429574
Description for 193 S Port Royal Lane, Apollo Beach, FL, 33572
Value Priced! Caribbean Isles is a vibrant 55+ waterfront, gated community where friendly neighbors, endless activities, and a true sense of belonging make every day feel like a getaway. This 3-bedroom, 2-bathroom home checks all the boxes! As soon as you step inside, you’ll be captivated by the open floor plan. The kitchen features plenty of cabinet storage and generous countertops, making meal prep and entertaining effortless. The highly desirable split floor plan ensures privacy, allowing guests to enjoy their own retreat separate from the primary bedroom. Your primary en-suite bathroom is complete with a soaking tub for two, a walk-in shower, and a double vanity sink, and linen closet are conveniently located within the bathroom, offering optimal use of space and organization. The home has a new professional roof installed this year. Outdoor enthusiasts will love our kayak and boat launch facilities, offering direct access to the beautiful waters of Tampa Bay. If you enjoy a little friendly competition, our bocce ball, shuffleboard courts, and horseshoe pits are the perfect place to challenge friends and make new ones. When it’s time to relax, our heated community pool is open year-round for endless enjoyment. Inside our clubhouse, there’s always something happening. Whether you’re getting creative in the craft room, joining a game of pool, cards, indoor bar shuffleboard, or darts, or simply socializing with neighbors, you’ll always feel at home. Enjoy a wide variety of activities from themed dinners to lively dances. Located conveniently between Tampa and Sarasota/Bradenton, you’ll have quick access to gorgeous beaches, exciting amusement parks, and a world of nearby attractions are just a short drive away. We invite you to experience Caribbean Isles for yourself. Come visit and see why so many call Caribbean Isles “HOME”!
Listing Information
Property Type: Residential, Manufactured Home, Traditional
Status: Active
Bedrooms: 3
Bathrooms: 2
Lot Size: 0.22 Acres
Square Feet: 1,688 sq ft
Year Built: 1996
Stories: 1 Story
Construction: Vinyl Siding
Subdivision: Caribbean Isles Residential Co
Foundation: Crawlspace
County: Hillsborough
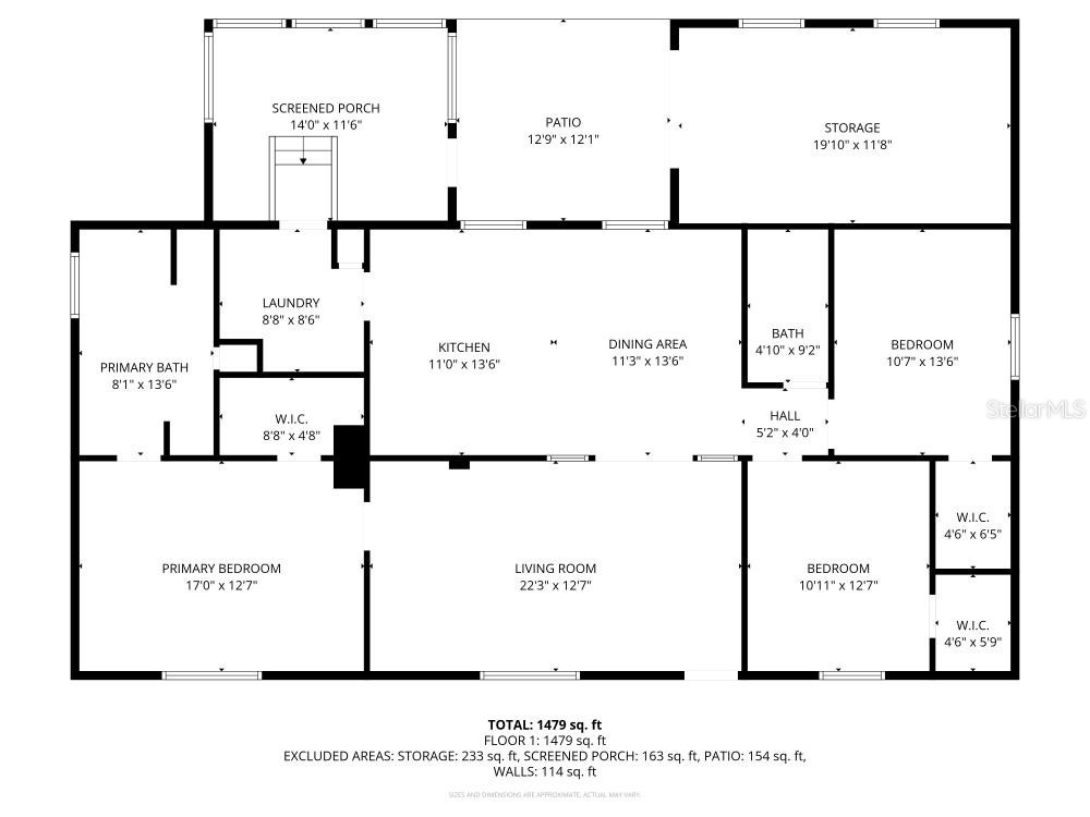
Room Information
Main Floor
Dining Room: 14x14
Dining Room: 9x12
Kitchen: 11x13
Living Room: 22x13
Laundry: 9x8
Porch: 14x12
Bathroom 2: 9x8
Bedroom 3: 10x13
Bedroom 2: 11x13
Primary Bathroom: 8x14
Primary Bedroom: 17x13
Bathrooms
Full Baths: 2
Additonal Room Information
Laundry: Inside, Laundry Room, Washer Hookup
Interior Features
Appliances: Exhaust Fan, Electric Water Heater, Dryer, Dishwasher, Disposal, Washer, Microwave, Range, Refrigerator
Flooring: Carpet,Vinyl
Basement: Crawl Space
Additional Interior Features: Walk-In Closet(s), Cathedral Ceiling(s), High Ceilings, Ceiling Fan(s), Vaulted Ceiling(s), Living/Dining Room, Open Floorplan
Utilities
Sewer: Public Sewer
Other Utilities: Cable Available,Electricity Connected,Municipal Utilities,Phone Available,Sewer Connected,Underground Utilities,Water Connected,Water Not Available
Cooling: Ceiling Fan(s), Central Air
Heating: Electric, Central
Exterior / Lot Features
Roof: Shingle
Pool: Community, Association
Additional Exterior/Lot Features: Rain Gutters, Lighting, Enclosed, Rear Porch, Landscaped, Cul-de-Sac
Out Buildings: Workshop, Shed(s)
Community Features
Community Features: Clubhouse, Handicap Access, Waterfront, Boat Facilities, Gated, Dock, Fishing, Golf Carts OK, Water Access
Security Features: Gated Community, Fire Hydrant(s)
Association Amenities: Pool, Gated, Clubhouse, Shuffleboard Court
HOA Dues Include: Pool(s), None
Homeowners Association: Yes
HOA Dues: $242 / Monthly
Driving Directions
I-75 travel West at exit 246 on Big Bend Road. Go West to US41 and turn left (South) and travel to Elsberry Road. Turn right (West) just past the firehouse on Elsberry Road and travel to the Main where you will follow directions.
Financial Considerations
Tax/Property ID: U-22-31-19-606-000000-00464.0
Tax Amount: 918.89
Tax Year: 2024
A broker reciprocity listing courtesy: CARIBBEAN ISLE PROPERTY SALES INC.
Based on information provided by Stellar MLS as distributed by the MLS GRID. Information from the Internet Data Exchange is provided exclusively for consumers’ personal, non-commercial use, and such information may not be used for any purpose other than to identify prospective properties consumers may be interested in purchasing. This data is deemed reliable but is not guaranteed to be accurate by Edina Realty, Inc., or by the MLS. Edina Realty, Inc., is not a multiple listing service (MLS), nor does it offer MLS access.
Copyright 2025 Stellar MLS as distributed by the MLS GRID. All Rights Reserved.
Payment Calculator
Interest rate and annual percentage rate (APR) are based on current market conditions, are for informational purposes only, are subject to change without notice and may be subject to pricing add-ons related to property type, loan amount, loan-to-value, credit score and other variables. Estimated closing costs used in the APR calculation are assumed to be paid by the borrower at closing. If the closing costs are financed, the loan, APR and payment amounts will be higher. If the down payment is less than 20%, mortgage insurance may be required and could increase the monthly payment and APR. Contact us for details. Additional loan programs may be available. Accuracy is not guaranteed, and all products may not be available in all borrower's geographical areas and are based on their individual situation. This is not a credit decision or a commitment to lend.
Sales History & Tax Summary for 193 S Port Royal Lane
Sales History
| Date | Price | Change |
|---|---|---|
| Currently not available. | ||
Tax Summary
| Tax Year | Estimated Market Value | Total Tax |
|---|---|---|
| Currently not available. | ||
Data powered by ATTOM Data Solutions. Copyright© 2025. Information deemed reliable but not guaranteed.
Schools
Schools nearby 193 S Port Royal Lane
| Schools in attendance boundaries | Grades | Distance | Rating |
|---|---|---|---|
| Loading... | |||
| Schools nearby | Grades | Distance | Rating |
|---|---|---|---|
| Loading... | |||
Data powered by ATTOM Data Solutions. Copyright© 2025. Information deemed reliable but not guaranteed.
The schools shown represent both the assigned schools and schools by distance based on local school and district attendance boundaries. Attendance boundaries change based on various factors and proximity does not guarantee enrollment eligibility. Please consult your real estate agent and/or the school district to confirm the schools this property is zoned to attend. Information is deemed reliable but not guaranteed.
SchoolDigger ® Rating
The SchoolDigger rating system is a 1-5 scale with 5 as the highest rating. SchoolDigger ranks schools based on test scores supplied by each state's Department of Education. They calculate an average standard score by normalizing and averaging each school's test scores across all tests and grades.
Coming soon properties will soon be on the market, but are not yet available for showings.