$399,000
1930 Faun Road Venice, FL 34293
For Sale MLS# N6143190
2 beds 2 baths 1,376 sq ft Single Family
Details for 1930 Faun Road
MLS# N6143190
Description for 1930 Faun Road, Venice, FL, 34293
Welcome to 1930 Faun Road — a beautifully remodeled, modern 2-bedroom, 2-bath home in the highly desirable South Venice area! Perfectly located just minutes from Historic Downtown Venice Island, stunning Gulf beaches, the South Venice Ferry and Boat Ramp, Skip Stasko Park, the Intracoastal Waterway, and the Legacy Trail, this home offers the ideal combination of convenience and coastal living — with NO HOA fees and NO CDD. Best of all, the property is NOT located in a flood zone. From the moment you arrive, you’ll appreciate the home’s fresh curb appeal, manicured landscaping, and inviting screened entryway. Step inside to discover a bright, open floor plan featuring vaulted ceilings, brand-new luxury vinyl flooring, and freshly painted interiors that create a clean, modern feel throughout. The beautifully updated kitchen is designed to impress, showcasing high-end stainless-steel appliances, elegant quartz countertops with a full backsplash, and a stylish breakfast bar — perfect for entertaining guests or enjoying everyday meals. The spacious primary suite provides a relaxing retreat with abundant natural light and a fully updated ensuite bathroom. Both bathrooms have been tastefully renovated with modern finishes, making this home truly move-in ready. Step outside and unwind in your private backyard, ideal for relaxing evenings or weekend gatherings. With beaches, parks, boating, and biking trails all nearby, you’ll love the Florida lifestyle this home offers. Furniture is available for purchase under a separate contract. Schedule your private showing today and start enjoying the Venice coastal lifestyle you’ve been dreaming of.
Listing Information
Property Type: Residential, Single Family Residence
Status: Active
Bedrooms: 2
Bathrooms: 2
Lot Size: 0.18 Acres
Square Feet: 1,376 sq ft
Year Built: 1994
Garage: Yes
Stories: 1 Story
Construction: Block,Stucco
Subdivision: South Venice
Foundation: Slab
County: Sarasota
School Information
Elementary: Venice Elementary
Middle: Venice Area Middle
High: Venice Senior High
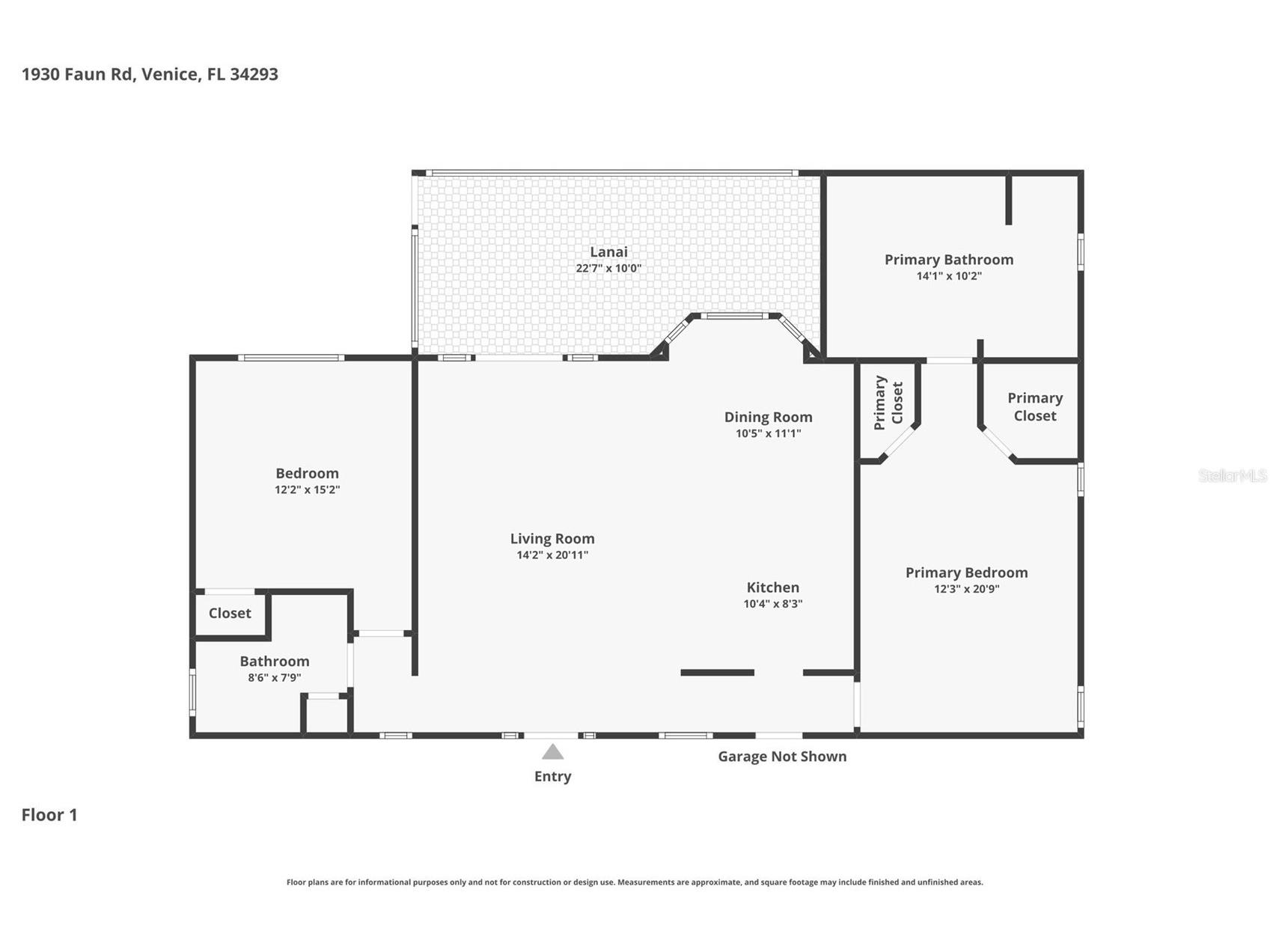
Room Information
Main Floor
Porch: 10x22.7
Kitchen: 8.3x10.4
Primary Bedroom: 12.3x20.9
Primary Bathroom: 10.2x14.1
Bedroom 2: 12.2x15.2
Bathroom 2: 7.9x8.6
Living Room: 14.2x20.11
Dining Room: 10.5x11.1
Bathrooms
Full Baths: 2
Additonal Room Information
Laundry: In Garage
Interior Features
Appliances: Microwave, Range, Refrigerator, Dishwasher
Flooring: Tile,Vinyl
Additional Interior Features: Open Floorplan, Cathedral Ceiling(s)
Utilities
Water: Well
Sewer: Septic Tank
Other Utilities: Cable Connected,Electricity Connected,High Speed Internet Available,Water Connected
Cooling: Central Air
Heating: Electric, Central
Exterior / Lot Features
Attached Garage: Attached Garage
Garage Spaces: 2
Roof: Shingle
Additional Exterior/Lot Features: French Patio Doors
Community Features
Community Features: Street Lights
Driving Directions
From US-41 TURN left on shamrock, right on rutland rd, left on faun rd. House will be on the right side.
Financial Considerations
Terms: Cash,Conventional,FHA,VA Loan
Tax/Property ID: 0433110018
Tax Amount: 3815
Tax Year: 2024
A broker reciprocity listing courtesy: RE/MAX PALM REALTY OF VENICE
Based on information provided by Stellar MLS as distributed by the MLS GRID. Information from the Internet Data Exchange is provided exclusively for consumers’ personal, non-commercial use, and such information may not be used for any purpose other than to identify prospective properties consumers may be interested in purchasing. This data is deemed reliable but is not guaranteed to be accurate by Edina Realty, Inc., or by the MLS. Edina Realty, Inc., is not a multiple listing service (MLS), nor does it offer MLS access.
Copyright 2026 Stellar MLS as distributed by the MLS GRID. All Rights Reserved.
Payment Calculator
Interest rate and annual percentage rate (APR) are based on current market conditions, are for informational purposes only, are subject to change without notice and may be subject to pricing add-ons related to property type, loan amount, loan-to-value, credit score and other variables. Estimated closing costs used in the APR calculation are assumed to be paid by the borrower at closing. If the closing costs are financed, the loan, APR and payment amounts will be higher. If the down payment is less than 20%, mortgage insurance may be required and could increase the monthly payment and APR. Contact us for details. Additional loan programs may be available. Accuracy is not guaranteed, and all products may not be available in all borrower's geographical areas and are based on their individual situation. This is not a credit decision or a commitment to lend.
Sales History & Tax Summary for 1930 Faun Road
Sales History
| Date | Price | |
|---|---|---|
| Currently not available. | ||
Tax Summary
| Tax Year | Estimated Market Value | Total Tax |
|---|---|---|
| Currently not available. | ||
Data powered by ATTOM Data Solutions. Copyright© 2026. Information deemed reliable but not guaranteed.
Schools
Schools nearby 1930 Faun Road
| Schools in attendance boundaries | Grades | Distance | Rating |
|---|---|---|---|
| Loading... | |||
| Schools nearby | Grades | Distance | Rating |
|---|---|---|---|
| Loading... | |||
Data powered by ATTOM Data Solutions. Copyright© 2026. Information deemed reliable but not guaranteed.
The schools shown represent both the assigned schools and schools by distance based on local school and district attendance boundaries. Attendance boundaries change based on various factors and proximity does not guarantee enrollment eligibility. Please consult your real estate agent and/or the school district to confirm the schools this property is zoned to attend. Information is deemed reliable but not guaranteed.
SchoolDigger ® Rating
The SchoolDigger rating system is a 1-5 scale with 5 as the highest rating. SchoolDigger ranks schools based on test scores supplied by each state's Department of Education. They calculate an average standard score by normalizing and averaging each school's test scores across all tests and grades.
Coming soon properties will soon be on the market, but are not yet available for showings.