1933 Estancia Circle Kissimmee, FL 34741
For Sale MLS# S5125794
3 beds 3 baths 1,716 sq ft Townhouse/Twinhome
Details for 1933 Estancia Circle
MLS# S5125794
Description for 1933 Estancia Circle, Kissimmee, FL, 34741
BACK ON THE MARKET. This gem is available again. DON'T MISS THIS OPPORTUNITY. PRICE REDUCED — This modern 1,716-square-foot townhouse has been beautifully remodeled for lifestyle where convenience and serenity meet. Strategically located at 1933 Estancia Dr, you are just minutes away from the best the area: from daily grocery runs at Publix and Walmart to afternoon shopping at premier malls and dinners at top-rated restaurants. Upon entering, you are greeted by an intelligent and cozy layout that flows into a second floor with three spacious bedrooms and two full bathrooms, while the main level provides a convenient half-bath for guests and a spacious two-car garage. What truly sets this property apart is the peace of its backyard; with no rear neighbors, you can enjoy beautiful, private afternoons perfect for relaxing or hosting a family BBQ in total tranquility. For your family’s ultimate peace of mind, the association takes care of the landscaping, irrigation, exterior painting, and roof maintenance—so after a long day at work, you can simply come home to relax, unwind, and focus on what truly matters: spending quality time with your loved ones. Look no further; this home combines a premium location with the comfort you’ve been searching for.
Listing Information
Property Type: Residential, Townhouse
Status: Active
Bedrooms: 3
Bathrooms: 3
Lot Size: 0.07 Acres
Square Feet: 1,716 sq ft
Year Built: 2006
Garage: Yes
Stories: 2 Story
Construction: Block
Subdivision: Villas At Estancia Condo
Foundation: Block
County: Osceola
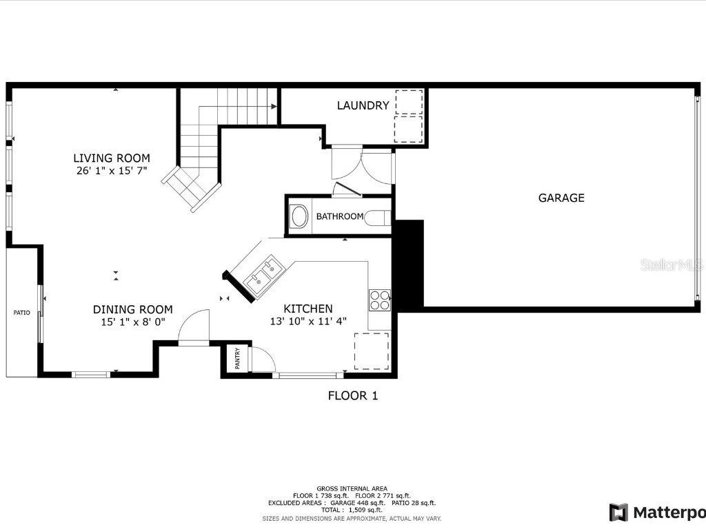
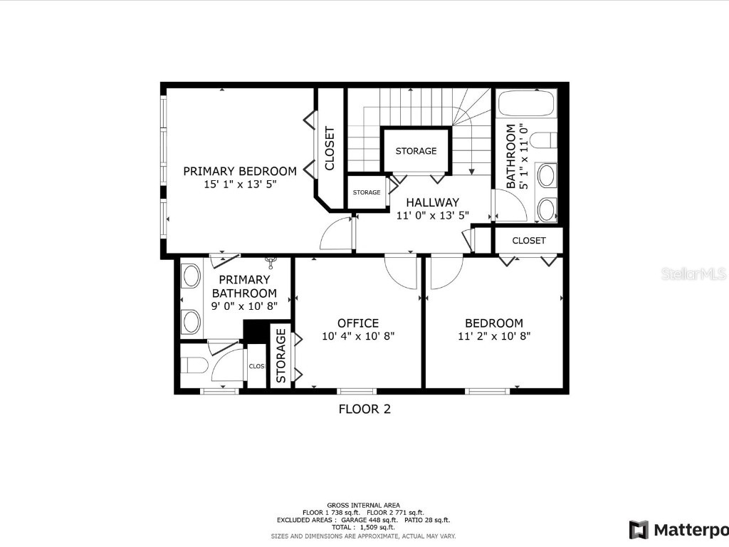
Room Information
Main Floor
Bathroom 3:
Kitchen: 11.4x13.1
Dining Room: 8x15.1
Living Room: 15.7x26.1
Upper Floor
Bathroom 2: 11x5.1
Bathroom 1: 10.8x9
Bedroom 3: 10.8x11.2
Bedroom 2: 10.8x10.4
Primary Bedroom: 13.5x15.1
Bathrooms
Full Baths: 2
1/2 Baths: 1
Additonal Room Information
Laundry: Laundry Closet
Interior Features
Appliances: Washer, Dishwasher, Dryer, Microwave, Range, Refrigerator
Flooring: Ceramic Tile
Additional Interior Features: Open Floorplan
Utilities
Water: Public
Sewer: Public Sewer
Other Utilities: Municipal Utilities
Cooling: Central Air
Heating: Central
Exterior / Lot Features
Garage Spaces: 2
Roof: Shingle
Pool: Community
Community Features
Community Features: Pool, Playground, Sidewalks, Gated, Community Mailbox
Security Features: Gated Community
HOA Dues Include: Maintenance Grounds, Pest Control, Maintenance Structure, Pool(s)
Homeowners Association: Yes
HOA Dues: $1,010 / Quarterly
Driving Directions
Head south on John Young Parkway. After you pass the intersection with Main Street, continue straight for about 1.5 to 2 miles. Look for Pleasant Hill Road and turn left. Drive for a short distance and then turn right onto Estancia Circle. Follow Estancia Circle until you reach 1933 Estancia Circle—your destination will be on your right.
Financial Considerations
Tax/Property ID: 28-25-29-1017-0001-006B
Tax Amount: 2409.19
Tax Year: 2024
A broker reciprocity listing courtesy: REMAX PREMIER PROPERTIES
Based on information provided by Stellar MLS as distributed by the MLS GRID. Information from the Internet Data Exchange is provided exclusively for consumers’ personal, non-commercial use, and such information may not be used for any purpose other than to identify prospective properties consumers may be interested in purchasing. This data is deemed reliable but is not guaranteed to be accurate by Edina Realty, Inc., or by the MLS. Edina Realty, Inc., is not a multiple listing service (MLS), nor does it offer MLS access.
Copyright 2026 Stellar MLS as distributed by the MLS GRID. All Rights Reserved.
Payment Calculator
Interest rate and annual percentage rate (APR) are based on current market conditions, are for informational purposes only, are subject to change without notice and may be subject to pricing add-ons related to property type, loan amount, loan-to-value, credit score and other variables. Estimated closing costs used in the APR calculation are assumed to be paid by the borrower at closing. If the closing costs are financed, the loan, APR and payment amounts will be higher. If the down payment is less than 20%, mortgage insurance may be required and could increase the monthly payment and APR. Contact us for details. Additional loan programs may be available. Accuracy is not guaranteed, and all products may not be available in all borrower's geographical areas and are based on their individual situation. This is not a credit decision or a commitment to lend.
Sales History & Tax Summary for 1933 Estancia Circle
Sales History
| Date | Price | |
|---|---|---|
| Currently not available. | ||
Tax Summary
| Tax Year | Estimated Market Value | Total Tax |
|---|---|---|
| Currently not available. | ||
Data powered by ATTOM Data Solutions. Copyright© 2026. Information deemed reliable but not guaranteed.
Schools
Schools nearby 1933 Estancia Circle
| Schools in attendance boundaries | Grades | Distance | Rating |
|---|---|---|---|
| Loading... | |||
| Schools nearby | Grades | Distance | Rating |
|---|---|---|---|
| Loading... | |||
Data powered by ATTOM Data Solutions. Copyright© 2026. Information deemed reliable but not guaranteed.
The schools shown represent both the assigned schools and schools by distance based on local school and district attendance boundaries. Attendance boundaries change based on various factors and proximity does not guarantee enrollment eligibility. Please consult your real estate agent and/or the school district to confirm the schools this property is zoned to attend. Information is deemed reliable but not guaranteed.
SchoolDigger ® Rating
The SchoolDigger rating system is a 1-5 scale with 5 as the highest rating. SchoolDigger ranks schools based on test scores supplied by each state's Department of Education. They calculate an average standard score by normalizing and averaging each school's test scores across all tests and grades.
Coming soon properties will soon be on the market, but are not yet available for showings.