19341 Red Sky Court Land O Lakes, FL 34638
For Sale MLS# TB8469114
3 beds 3 baths 2,248 sq ft Single Family
Details for 19341 Red Sky Court
MLS# TB8469114
Description for 19341 Red Sky Court, Land O Lakes, FL, 34638
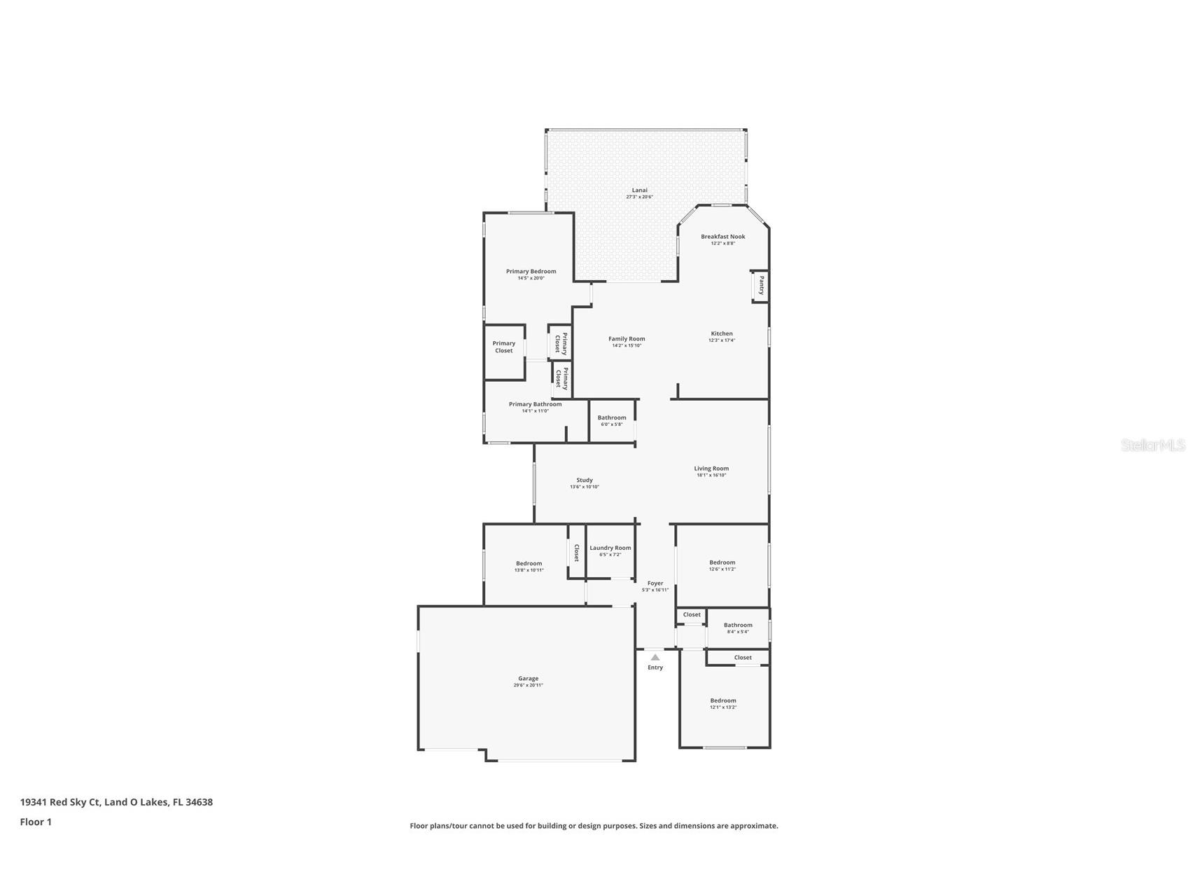
Prepare to fall in love with this beautifully maintained 3-bedroom + DEN, 2.5-bath, 3-car garage and a backyard designed for Florida living. Step inside through the custom etched-glass front door and immediately appreciate the attention to detail, including architectural arches, tray ceilings, crown molding, plantation shutters, and elegant tile flooring throughout the open foyer. The formal dining room easily accommodates large gatherings, while the adjacent living room provides an inviting space for entertaining and family get-togethers. The well-appointed kitchen is both functional and stylish, featuring newer stainless-steel appliances including a GAS RANGE, granite countertops, a closet pantry, 42” wood cabinetry, a large breakfast bar, and a cozy breakfast nook with tranquil water views. The adjacent family room flows seamlessly to the extended lanai, creating the perfect indoor-outdoor living experience overlooking a peaceful pond. The fully fenced backyard is a private retreat where you can enjoy calming water views, nature sounds, and stunning sunsets while relaxing in the hot tub or unwinding around the cozy custom built-in fire pit. The popular 3-way split bedroom floor plan offers privacy and comfort, with tile in the main living areas and LVP flooring in all bedrooms. The spacious owner’s suite is privately tucked away at the rear of the home and features a walk-in closets, dual sinks, wood cabinetry, granite countertops, a deep soaking tub, and a separate shower, your personal sanctuary. Two additional bedrooms offer generous closet space and ceiling fans and share an updated guest bathroom with a custom and roomy tiled shower, while the den (being used as a guest room) with double doors and large windows is ideal as a home office, fourth bedroom, or playroom. A convenient laundry room comes complete with a washer and dryer. RECENT UPDATES INCLUDE: Frameless glass shower enclosures (2022) • Exterior paint (2023) • Primary shower updates with stone sills and tile overlay (2022) • Slider and lanai doggie doors • LVP flooring in bedrooms (2021) • Hot tub (2022) • PVC fence (2022) • Lanai pavers (2023) • Gas water heater (2022) • Additional lanai electrical outlets (2023) • Garage overhead wood shelving • Rock landscaping beds • Accent wall in living area • Washer, dryer & gas range (2024) • Ceiling fans (2024) • Refrigerator (2025) • and more! Located in guard-gated Lakeshore Ranch, residents enjoy a 12,000-square-foot Florida ranch-style clubhouse with three resort-style pools, fitness center, catering kitchen, business center, full calendar of events, dog park, playground, fishing dock, tennis/pickle ball courts, and more! HOA FEES INCLUDE basic cable, internet, and trash. This meticulously cared-for home truly has it all, schedule your private showing today and experience Florida living at its finest.
Listing Information
Property Type: Residential, Single Family Residence
Status: Active
Bedrooms: 3
Bathrooms: 3
Lot Size: 0.23 Acres
Square Feet: 2,248 sq ft
Year Built: 2012
Garage: Yes
Stories: 1 Story
Construction: Block,Stucco
Subdivision: Lakeshore Ranch Ph I
Foundation: Slab
County: Pasco
School Information
Elementary: Connerton Elem
Middle: Pine View Middle-Po
High: Land O' Lakes High-Po
Room Information
Main Floor
Porch: 21x30
Living Room: 17x18
Dinette: 9x12
Office: 11x13
Bedroom 3: 11x11
Bedroom 2: 11x12
Primary Bedroom: 15x12
Kitchen: 17x12
Family Room: 16x14
Dining Room: 11x14
Bathrooms
Full Baths: 2
1/2 Baths: 1
Additonal Room Information
Laundry: Laundry Room
Interior Features
Appliances: Washer, Dryer, Microwave, Range, Refrigerator, Dishwasher, Disposal, Gas Water Heater
Flooring: Luxury Vinyl,Tile
Doors/Windows: Blinds, Double Pane Windows, Insulated Windows, Window Treatments, Shutters
Accessibility: Accessible Bedroom, Accessible Central Living Area, Accessible Full Bath, Accessible Hallway(s), Central Living Area, Wheelchair Access, Grip-Accessible Features
Additional Interior Features: Eat-In Kitchen, Ceiling Fan(s), Window Treatments, Tray Ceiling(s), Built-in Features, High Ceilings, Living/Dining Room, Walk-In Closet(s), Split Bedrooms, Open Floorplan, Wood Cabinets, Separate/Formal Living Room, Stone Counters, Separate/Formal Dining Room, Crown Molding, Kitchen/Family Room Combo
Utilities
Water: Public
Sewer: Public Sewer
Other Utilities: Cable Connected,Natural Gas Connected,High Speed Internet Available,Municipal Utilities,Underground Utilities
Cooling: Ceiling Fan(s), Central Air
Heating: Central, Natural Gas
Exterior / Lot Features
Attached Garage: Attached Garage
Garage Spaces: 3
Parking Description: Garage Door Opener, Garage
Roof: Shingle
Pool: Community, Association
Lot View: Pond,Trees/Woods,Water
Fencing: Vinyl
Additional Exterior/Lot Features: Sprinkler/Irrigation, Lighting, Screened, Covered, Rear Porch, Corner Lot, Landscaped, Cul-de-Sac
Waterfront Details
Water Front Features: Pond
Community Features
Community Features: Playground, Lake, Pool, Tennis Court(s), Sidewalks, Dock, Clubhouse, Handicap Access, Street Lights, Dog Park, Gated, Fishing, Fitness, Golf Carts OK, Water Access, Community Mailbox
Security Features: Gated Community, Gated with Guard, Smoke Detector(s)
Association Amenities: Playground, Tennis Court(s), Pool, Cable TV, Fitness Center, Basketball Court, Pickleball, Clubhouse, Gated
HOA Dues Include: Pool(s), Security, Cable TV, Internet, Trash, Recreation Facilities
Homeowners Association: Yes
HOA Dues: $300 / Quarterly
Driving Directions
From State Rd. 54 and US41 head North on Land O Lakes Blvd until you reach Lakeshore Ranch, make left into guard gate, go through the roundabout and make right onto Water Color Drive, make right at Red Sky Court - home will be the first house on your right.
Financial Considerations
Terms: Cash,Conventional,FHA,VA Loan
Tax/Property ID: 18-25-27-0020-00000-1340
Tax Amount: 8955
Tax Year: 2025
A broker reciprocity listing courtesy: FUTURE HOME REALTY INC
Based on information provided by Stellar MLS as distributed by the MLS GRID. Information from the Internet Data Exchange is provided exclusively for consumers’ personal, non-commercial use, and such information may not be used for any purpose other than to identify prospective properties consumers may be interested in purchasing. This data is deemed reliable but is not guaranteed to be accurate by Edina Realty, Inc., or by the MLS. Edina Realty, Inc., is not a multiple listing service (MLS), nor does it offer MLS access.
Copyright 2026 Stellar MLS as distributed by the MLS GRID. All Rights Reserved.
Payment Calculator
Interest rate and annual percentage rate (APR) are based on current market conditions, are for informational purposes only, are subject to change without notice and may be subject to pricing add-ons related to property type, loan amount, loan-to-value, credit score and other variables. Estimated closing costs used in the APR calculation are assumed to be paid by the borrower at closing. If the closing costs are financed, the loan, APR and payment amounts will be higher. If the down payment is less than 20%, mortgage insurance may be required and could increase the monthly payment and APR. Contact us for details. Additional loan programs may be available. Accuracy is not guaranteed, and all products may not be available in all borrower's geographical areas and are based on their individual situation. This is not a credit decision or a commitment to lend.
Sales History & Tax Summary for 19341 Red Sky Court
Sales History
| Date | Price | |
|---|---|---|
| Currently not available. | ||
Tax Summary
| Tax Year | Estimated Market Value | Total Tax |
|---|---|---|
| Currently not available. | ||
Data powered by ATTOM Data Solutions. Copyright© 2026. Information deemed reliable but not guaranteed.
Schools
Schools nearby 19341 Red Sky Court
| Schools in attendance boundaries | Grades | Distance | Rating |
|---|---|---|---|
| Loading... | |||
| Schools nearby | Grades | Distance | Rating |
|---|---|---|---|
| Loading... | |||
Data powered by ATTOM Data Solutions. Copyright© 2026. Information deemed reliable but not guaranteed.
The schools shown represent both the assigned schools and schools by distance based on local school and district attendance boundaries. Attendance boundaries change based on various factors and proximity does not guarantee enrollment eligibility. Please consult your real estate agent and/or the school district to confirm the schools this property is zoned to attend. Information is deemed reliable but not guaranteed.
SchoolDigger ® Rating
The SchoolDigger rating system is a 1-5 scale with 5 as the highest rating. SchoolDigger ranks schools based on test scores supplied by each state's Department of Education. They calculate an average standard score by normalizing and averaging each school's test scores across all tests and grades.
Coming soon properties will soon be on the market, but are not yet available for showings.