194 Caddy Road Rotonda West, FL 33947
Pending MLS# D6145654
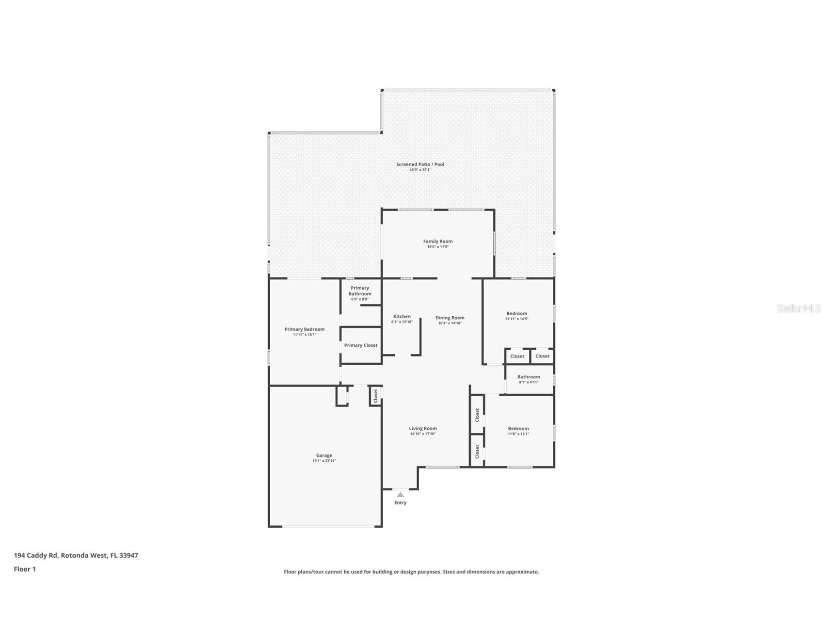
3 beds 2 baths 1,670 sq ft Single Family
Details for 194 Caddy Road
MLS# D6145654
Description for 194 Caddy Road, Rotonda West, FL, 33947
Under contract-accepting backup offers. One or more photo(s) has been virtually staged. Seller is giving a CREDIT FOR CLOSING COSTS! Updated and ready to enjoy, this 3-bedroom, 2-bath pool home with 2-car garage in Rotonda West! This home features a desirable split floor plan, tile flooring throughout, and golf course views of the 13th hole of The Hills Golf Course. The spacious family room offers sliding glass doors leading to a screened lanai with a private swimming pool, perfect for indoor-outdoor Florida living. The primary suite includes lanai access via sliders, a walk-in closet, and an updated en suite bathroom (2025) with a ceramic tile shower. Additional highlights include a new roof and garage door (2022). Recent updates in 2025 include: freshly painted interior, all new light fixtures and ceiling fans, updated plumbing fixtures, new door hardware, cabinet pulls, and blinds. Pool updates include a new skimmer, filter unit, and pool timer (2025). A fenced-in backyard was completed in recent years. Conveniently located near Rotonda West golf courses, shopping, restaurants, and a short drive to Gulf beaches. Ideal for year-round living or seasonal enjoyment.
Listing Information
Property Type: Residential, Single Family Residence
Status: Pending
Bedrooms: 3
Bathrooms: 2
Lot Size: 0.22 Acres
Square Feet: 1,670 sq ft
Year Built: 1978
Garage: Yes
Stories: 1 Story
Construction: Block
Subdivision: Rotonda West Oakland Hills
Foundation: Slab
County: Charlotte
Room Information
Main Floor
Family Room: 11.5x19
Bedroom 3: 12x11
Bedroom 2: 12x13
Primary Bedroom: 12x18
Dining Room: 11x11
Living Room: 15x23
Kitchen: 11x9
Bathrooms
Full Baths: 2
Additonal Room Information
Laundry: In Garage
Interior Features
Appliances: Dishwasher, Dryer, Microwave
Flooring: Tile
Additional Interior Features: Eat-In Kitchen, Walk-In Closet(s), Ceiling Fan(s), Kitchen/Family Room Combo, Main Level Primary
Utilities
Water: Public
Sewer: Public Sewer
Other Utilities: Cable Available,Electricity Connected,High Speed Internet Available,Phone Available,Sewer Connected,Water Connected
Cooling: Ceiling Fan(s), Central Air
Heating: Electric
Exterior / Lot Features
Attached Garage: Attached Garage
Garage Spaces: 2
Parking Description: Garage Door Opener, Garage
Roof: Shingle
Pool: In Ground, Gunite
Lot View: Golf Course,Pool
Fencing: Chain Link
Additional Exterior/Lot Features: Lighting, Screened, Covered, Front Porch, Rear Porch, On Golf Course
Community Features
Homeowners Association: Yes
HOA Dues: $190 / Annually
Driving Directions
South Placida Road to Left on Rotonda West Blvd., Right on Rotonda Circle, left on Caddy House on Right
Financial Considerations
Terms: Cash,Conventional
Tax/Property ID: 412023351009
Tax Amount: 4483.3
Tax Year: 2025
A broker reciprocity listing courtesy: RE/MAX PALM REALTY OF VENICE
Based on information provided by Stellar MLS as distributed by the MLS GRID. Information from the Internet Data Exchange is provided exclusively for consumers’ personal, non-commercial use, and such information may not be used for any purpose other than to identify prospective properties consumers may be interested in purchasing. This data is deemed reliable but is not guaranteed to be accurate by Edina Realty, Inc., or by the MLS. Edina Realty, Inc., is not a multiple listing service (MLS), nor does it offer MLS access.
Copyright 2026 Stellar MLS as distributed by the MLS GRID. All Rights Reserved.
Sales History & Tax Summary for 194 Caddy Road
Sales History
| Date | Price | |
|---|---|---|
| Currently not available. | ||
Tax Summary
| Tax Year | Estimated Market Value | Total Tax |
|---|---|---|
| Currently not available. | ||
Data powered by ATTOM Data Solutions. Copyright© 2026. Information deemed reliable but not guaranteed.
Schools
Schools nearby 194 Caddy Road
| Schools in attendance boundaries | Grades | Distance | Rating |
|---|---|---|---|
| Loading... | |||
| Schools nearby | Grades | Distance | Rating |
|---|---|---|---|
| Loading... | |||
Data powered by ATTOM Data Solutions. Copyright© 2026. Information deemed reliable but not guaranteed.
The schools shown represent both the assigned schools and schools by distance based on local school and district attendance boundaries. Attendance boundaries change based on various factors and proximity does not guarantee enrollment eligibility. Please consult your real estate agent and/or the school district to confirm the schools this property is zoned to attend. Information is deemed reliable but not guaranteed.
SchoolDigger ® Rating
The SchoolDigger rating system is a 1-5 scale with 5 as the highest rating. SchoolDigger ranks schools based on test scores supplied by each state's Department of Education. They calculate an average standard score by normalizing and averaging each school's test scores across all tests and grades.
Coming soon properties will soon be on the market, but are not yet available for showings.