$378,220
194 Huntington Drive Waconia, MN 55387
For Sale MLS# 7029906
3 beds 3 baths 1,719 sq ft Townhouse/Twinhome
OPEN HOUSE: Sunday, 4/5 12:00 PM - 05:00 PM
Details for 194 Huntington Drive
MLS# 7029906
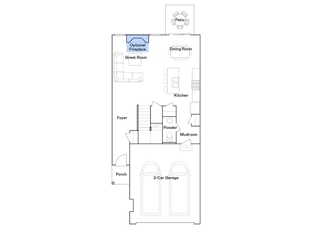
Description for 194 Huntington Drive, Waconia, MN, 55387
This home is under construction and available for a May closing date! Welcome to your new home in Waterford! This Raleigh townhome offers three bedrooms and seamlessly blends modern style, comfort, and convenience. Enjoy an open and light-filled layout, ideal for everyday living and entertaining. Located in the vibrant Waterford community, residents have access to a neighborhood park with an inclusive playground, a scenic pond, and walking trails that connect to the city’s extensive trail system. You’re also just minutes from Lake Waconia’s 164-acre regional park, Island View Golf Course, downtown shopping and dining, a movie theater, Ridgeview Hospital, and top-rated schools. This home offers the perfect combination of functionality, style, and prime location—experience the best of Waconia living!
Listing Information
Property Type: Residential, Side by Side
Status: Active
Bedrooms: 3
Bathrooms: 3
Lot Size: 0.04 Acres
Square Feet: 1,719 sq ft
Year Built: 2026
Foundation: 779 sq ft
Garage: Yes
Stories: 2 Stories
Property Attached: Yes
Date Available: 5/9/2026
Construction Display: New Construction
Completion date: 2026-05-09T05:00:00Z
Subdivision: Waterford
Builder: LENNAR
County: Carver
Days On Market: 32
Construction Status: Under Construc/Spec Homes
School Information
District: 110 - Waconia
Room Information
Main Floor
Dining Room: 9x9
Family Room: 15x19
Kitchen: 9x12
Upper Floor
Bedroom 1: 13x17
Bedroom 2: 13x10
Bedroom 3: 10x11
Bathrooms
Full Baths: 1
3/4 Baths: 1
1/2 Baths: 1
Additonal Room Information
Family: Great Room,Main Level
Dining: Eat In Kitchen,Informal Dining Room
Laundry: Washer Hookup, Laundry Room, Upper Level, Gas Dryer Hookup
Bath Description: 3/4 Primary,Main Floor 1/2 Bath,Private Primary,Upper Level Full Bath
Interior Features
Square Footage above: 1,719 sq ft
Appliances: Tankless Water Heater, Stainless Steel Appliances, Microwave, Furnace Humidifier, Disposal, Air-To-Air Exchanger, Range, Refrigerator, Dishwasher
Basement: Poured Concrete
Fireplaces: 1, Electric, Family Room
Additional Interior Features: Walk-In Closet, Kitchen Center Island, Paneled Doors, Washer/Dryer Hookup, Natural Woodwork, Primary Bdr Suite, 3 BR on One Level, 2nd Floor Laundry
Utilities
Water: City Water/Connected
Sewer: City Sewer/Connected
Cooling: Central
Heating: Forced Air, Natural Gas, Fireplace
Exterior / Lot Features
Attached Garage: Attached Garage
Garage Spaces: 2
Parking Description: Driveway - Asphalt, Garage Door Opener, Attached Garage, Garage Dimensions - 19x21, Garage Sq Ft - 399.0
Exterior: Brick/Stone, Shakes, Vinyl
Roof: Age 8 Years or Less, Asphalt Shingles
Lot Dimensions: TBD
Zoning: Residential-Single Family
Additional Exterior/Lot Features: Porch, Patio, Multi-Level,Street-Level, Sod Included in Price, Road Frontage - Street Lights, City, Curbs, Sidewalks
Community Features
Pets Allowed: Yes
Driving Directions
Highway 5 to 284 follow to Sparrow Road, the neighborhood on the left.
Financial Considerations
Covenants/Deed Restrictions: Mandatory Owners Assoc, Pets - Number Limit, Pets - Dogs Allowed, Pets - Cats Allowed
Tax/Property ID: TBD
Tax Year: 2026
HomeStead Description: Non-Homesteaded
A broker reciprocity listing courtesy: Lennar Sales Corp
The data relating to real estate for sale on this web site comes in part from the Broker Reciprocity℠ Program of the Regional Multiple Listing Service of Minnesota, Inc. Real estate listings held by brokerage firms other than Edina Realty, Inc. are marked with the Broker Reciprocity℠ logo or the Broker Reciprocity℠ thumbnail and detailed information about them includes the name of the listing brokers. Edina Realty, Inc. is not a Multiple Listing Service (MLS), nor does it offer MLS access. This website is a service of Edina Realty, Inc., a broker Participant of the Regional Multiple Listing Service of Minnesota, Inc. IDX information is provided exclusively for consumers personal, non-commercial use and may not be used for any purpose other than to identify prospective properties consumers may be interested in purchasing. Open House information is subject to change without notice. Information deemed reliable but not guaranteed.
Copyright 2026 Regional Multiple Listing Service of Minnesota, Inc. All Rights Reserved.
Payment Calculator
Interest rate and annual percentage rate (APR) are based on current market conditions, are for informational purposes only, are subject to change without notice and may be subject to pricing add-ons related to property type, loan amount, loan-to-value, credit score and other variables. Estimated closing costs used in the APR calculation are assumed to be paid by the borrower at closing. If the closing costs are financed, the loan, APR and payment amounts will be higher. If the down payment is less than 20%, mortgage insurance may be required and could increase the monthly payment and APR. Contact us for details. Additional loan programs may be available. Accuracy is not guaranteed, and all products may not be available in all borrower's geographical areas and are based on their individual situation. This is not a credit decision or a commitment to lend.
Sales History & Tax Summary for 194 Huntington Drive
Sales History
| Date | Price | |
|---|---|---|
| Currently not available. | ||
Tax Summary
| Tax Year | Estimated Market Value | Total Tax |
|---|---|---|
| Currently not available. | ||
Data powered by ATTOM Data Solutions. Copyright© 2026. Information deemed reliable but not guaranteed.
Schools
Schools nearby 194 Huntington Drive
| Schools in attendance boundaries | Grades | Distance | Rating |
|---|---|---|---|
| Loading... | |||
| Schools nearby | Grades | Distance | Rating |
|---|---|---|---|
| Loading... | |||
Data powered by ATTOM Data Solutions. Copyright© 2026. Information deemed reliable but not guaranteed.
The schools shown represent both the assigned schools and schools by distance based on local school and district attendance boundaries. Attendance boundaries change based on various factors and proximity does not guarantee enrollment eligibility. Please consult your real estate agent and/or the school district to confirm the schools this property is zoned to attend. Information is deemed reliable but not guaranteed.
SchoolDigger ® Rating
The SchoolDigger rating system is a 1-5 scale with 5 as the highest rating. SchoolDigger ranks schools based on test scores supplied by each state's Department of Education. They calculate an average standard score by normalizing and averaging each school's test scores across all tests and grades.
Coming soon properties will soon be on the market, but are not yet available for showings.