19450 Gulf Boulevard #205 Indian Shores, FL 33785 - GULF OF MEXICO
For Sale MLS# TB8439035
2 beds 2 baths 1,060 sq ft Condo
Details for 19450 Gulf Boulevard #205
MLS# TB8439035
Description for 19450 Gulf Boulevard #205, Indian Shores, FL, 33785 - GULF OF MEXICO
Experience coastal living at its finest in this beautifully remodeled 2-bedroom, 2-bath beachfront condo perfectly positioned on the second floor with stunning Gulf views and unforgettable sunsets. From the moment you enter, you’ll notice the attention to detail — tile flooring designed to look like natural wood, crown molding, and an open, airy layout that blends comfort and sophistication. The chef’s kitchen is a true centerpiece, featuring quartz countertops, a custom tile backsplash, stainless steel appliances, abundant storage, and thoughtful touches such as a beverage center and a dedicated coffee bar. The coastal-inspired décor carries throughout, creating a relaxing atmosphere ideal for a vacation retreat, primary residence, or income-producing rental. The spacious primary suite offers a serene escape with an updated ensuite bath, while the guest bedroom provides flexibility for family or visitors. Offered fully furnished and turn-key, this condo is move-in ready — simply bring your suitcase and start enjoying the beach lifestyle. Enjoy the convenience of a one-month minimum rental policy, giving owners the flexibility to use or rent as desired. Pet lovers will appreciate that one dog up to 35 lbs is welcome, making it easy to bring your four-legged companion along for the coastal lifestyle. Tahitian Towers is a highly regarded beachfront community known for its excellent management and friendly atmosphere. Residents enjoy a heated swimming pool, sunbathing deck, clubhouse, bike racks, and beautifully maintained common areas. The location is unbeatable — close to local boutiques, surf shops, cafés, restaurants, pubs, trolley stops, and even miniature golf. You’re just 15 minutes from either Clearwater Beach or St. Pete Beach, and only 35 minutes to Tampa International Airport. Discover why so many fall in love with this quiet stretch of Indian Shores — where every day feels like a vacation. Schedule your private showing today and start living the coastal dream.
Listing Information
Property Type: Residential, Condominium
Status: Active
Bedrooms: 2
Bathrooms: 2
Lot Size: 0.19 Acres
Square Feet: 1,060 sq ft
Year Built: 1974
Stories: 1 Story
Construction: Block,Stucco
Construction Display: New Construction
Subdivision: Tahitian Towers Condo
Foundation: Block,Pillar/Post/Pier
County: Pinellas
Construction Status: New Construction
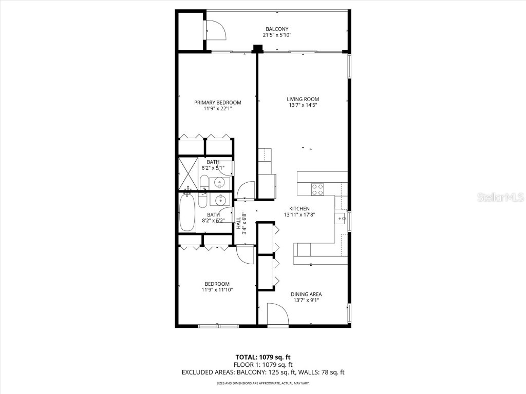
Room Information
Main Floor
Bedroom 2: 12x12
Primary Bedroom: 22x12
Dining Room: 9x14
Kitchen: 18x14
Living Room: 14x14
Bathrooms
Full Baths: 2
Additonal Room Information
Laundry: Common Area, Common On Floor
Interior Features
Appliances: Microwave, Dishwasher, Disposal, Electric Water Heater, Range, Refrigerator
Flooring: Vinyl
Doors/Windows: Window Treatments
Additional Interior Features: Window Treatments, Eat-In Kitchen, Ceiling Fan(s), Main Level Primary, Open Floorplan, Solid Surface Counters
Utilities
Water: Public
Sewer: Public Sewer
Other Utilities: Cable Connected,Electricity Connected,Municipal Utilities,Sewer Connected,Water Connected
Cooling: Ceiling Fan(s), Central Air
Heating: Electric, Central
Exterior / Lot Features
Parking Description: Covered, Assigned, Off Street, Guest
Roof: Other
Pool: Association, Heated, Gunite, Community
Lot View: Beach,Ocean,Water
Lot Dimensions: 126x65
Additional Exterior/Lot Features: Balcony, Balcony, Deck, Rear Porch, Landscaped, City Lot, Flood Zone
Waterfront Details
Standard Water Body: GULF OF MEXICO
Water Front Features: Ocean Access, Gulf Access, Beach Access
Community Features
Community Features: Clubhouse, Pool, Sidewalks
Association Amenities: Laundry, Cable TV, Elevator(s), Pool
HOA Dues Include: Trash, Water, Cable TV, Sewer, Insurance, Maintenance Grounds, Maintenance Structure, Pool(s), Reserve Fund
Homeowners Association: Yes
HOA Dues: $732 / Monthly
Driving Directions
West on Park Blvd to the beaches, take a right turn on to Gulf Blvd complex is approximately 1/2 mile on the left side.
Financial Considerations
Terms: Cash,Conventional
Tax/Property ID: 30-30-15-89001-000-2050
Tax Amount: 8732.66
Tax Year: 2024
A broker reciprocity listing courtesy: COASTAL PROPERTIES GROUP
Based on information provided by Stellar MLS as distributed by the MLS GRID. Information from the Internet Data Exchange is provided exclusively for consumers’ personal, non-commercial use, and such information may not be used for any purpose other than to identify prospective properties consumers may be interested in purchasing. This data is deemed reliable but is not guaranteed to be accurate by Edina Realty, Inc., or by the MLS. Edina Realty, Inc., is not a multiple listing service (MLS), nor does it offer MLS access.
Copyright 2026 Stellar MLS as distributed by the MLS GRID. All Rights Reserved.
Payment Calculator
Interest rate and annual percentage rate (APR) are based on current market conditions, are for informational purposes only, are subject to change without notice and may be subject to pricing add-ons related to property type, loan amount, loan-to-value, credit score and other variables. Estimated closing costs used in the APR calculation are assumed to be paid by the borrower at closing. If the closing costs are financed, the loan, APR and payment amounts will be higher. If the down payment is less than 20%, mortgage insurance may be required and could increase the monthly payment and APR. Contact us for details. Additional loan programs may be available. Accuracy is not guaranteed, and all products may not be available in all borrower's geographical areas and are based on their individual situation. This is not a credit decision or a commitment to lend.
Sales History & Tax Summary for 19450 Gulf Boulevard #205
Sales History
| Date | Price | Change |
|---|---|---|
| Currently not available. | ||
Tax Summary
| Tax Year | Estimated Market Value | Total Tax |
|---|---|---|
| Currently not available. | ||
Data powered by ATTOM Data Solutions. Copyright© 2026. Information deemed reliable but not guaranteed.
Schools
Schools nearby 19450 Gulf Boulevard #205
| Schools in attendance boundaries | Grades | Distance | Rating |
|---|---|---|---|
| Loading... | |||
| Schools nearby | Grades | Distance | Rating |
|---|---|---|---|
| Loading... | |||
Data powered by ATTOM Data Solutions. Copyright© 2026. Information deemed reliable but not guaranteed.
The schools shown represent both the assigned schools and schools by distance based on local school and district attendance boundaries. Attendance boundaries change based on various factors and proximity does not guarantee enrollment eligibility. Please consult your real estate agent and/or the school district to confirm the schools this property is zoned to attend. Information is deemed reliable but not guaranteed.
SchoolDigger ® Rating
The SchoolDigger rating system is a 1-5 scale with 5 as the highest rating. SchoolDigger ranks schools based on test scores supplied by each state's Department of Education. They calculate an average standard score by normalizing and averaging each school's test scores across all tests and grades.
Coming soon properties will soon be on the market, but are not yet available for showings.