1951 E Isles Road Port Charlotte, FL 33953
For Sale MLS# N6138018
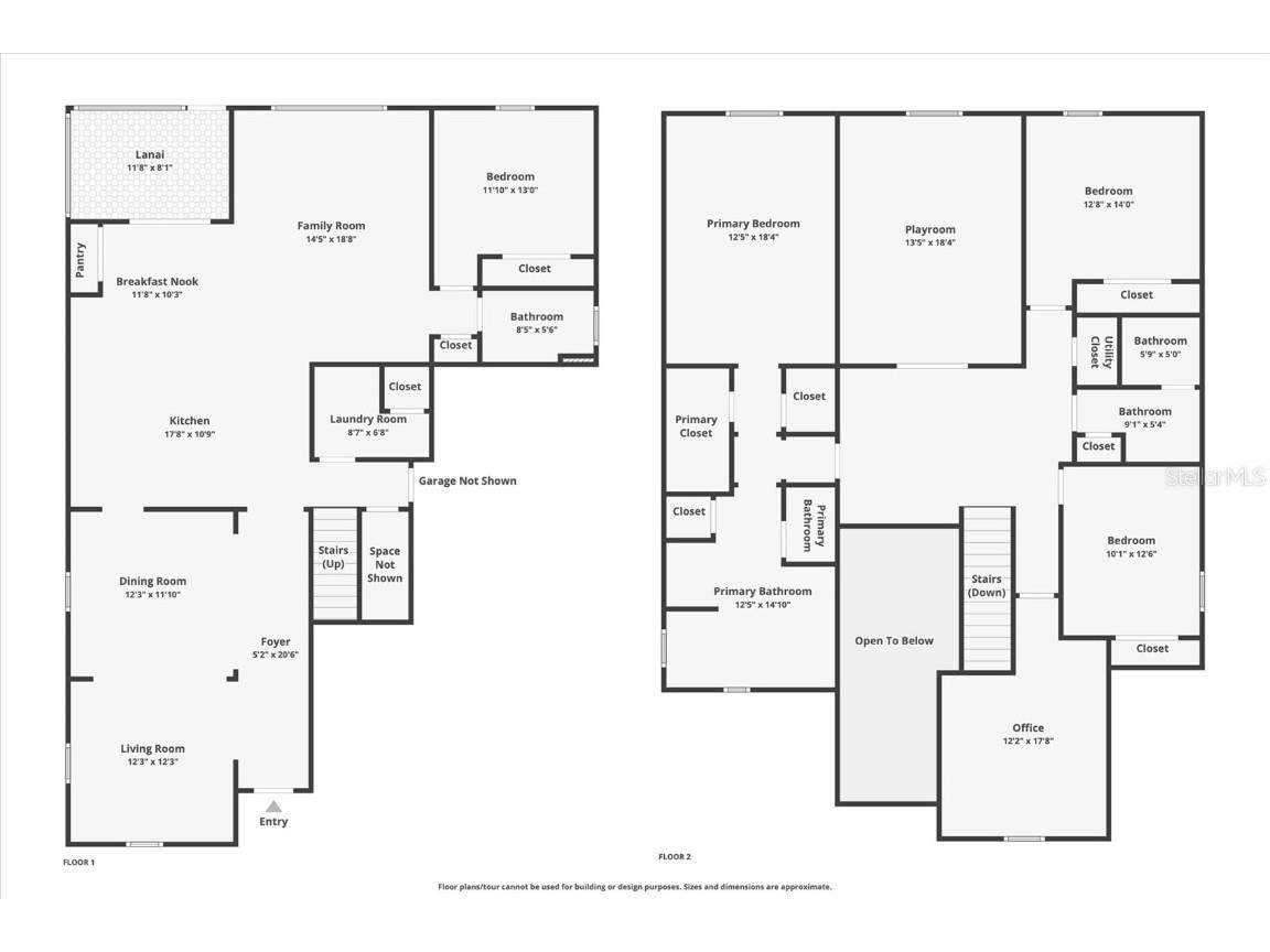
5 beds 3 baths 3,231 sq ft Single Family
Details for 1951 E Isles Road
MLS# N6138018
Description for 1951 E Isles Road, Port Charlotte, FL, 33953
PRICE TO SELL! Welcome to the HOME of your dreams! BUILD 2022. THE BIGGEST MODEL IN THE COMPLEX! There is so much to love in the Monte Carlo home floor plan, boasting over 3,321 square feet of living space. The first-floor formal living and dining areas are perfect for celebrations, while the inviting open kitchen with island connects to the family room for more casual entertaining. The first floor also has a large bedroom and full bath for added leisure space, ideal as an office or media room. The owner's suite features two walk-in closets and a large bathroom. The second-floor bonus space is an ideal spot for the playroom or media room. Welcome home to the Isles, an enclave of single-family homes within the exciting new community of West Port surrounding Centennial Park. Residents will enjoy easy access to area parks, Spring Training Games at Charlotte Sports Park, and Atlanta Braves Stadium. Minutes away from Charlotte Harbor, spectacular beaches, shopping, dining, and more! The recreation center at Centennial Park features a multi-purpose gymnasium with six basketball goals, lined for four pickleball courts and two volleyball courts, two multi-purpose rooms perfect for your next meeting, family reunion, party, or wedding reception, a fitness center featuring cardio equipment, and a community garden. Outdoor facilities include four lighted baseball fields, a softball field, and four soccer fields. The park also offers a challenging 18-hole disc golf course.The home has an extended driveway, plenty of room for extra cars and family/friend visits. Enjoy the laid-back Florida lifestyle from the oversized, extended home, which offers amazing sunrises. Take advantage of the miles of walking and biking trails. West Port is in close proximity to the Spring Training games, hospitals, grocery shopping, restaurants, SUNSEEKER Resort, boating, golfing, Boca Grande, and the beautiful beaches of SW Florida. This is a great value for a newer home in a convenient location. Discover the vibrant heart of Wellen Park master-planned development and brand new COSTCO, where you’ll experience a mix of amenities, shopping and dining options, and entertainment located minutes away from the house. Downtown Wellen Park is a thriving hub for residents and visitors alike, with a lively atmosphere that invites you to explore and enjoy. Don't miss out on the opportunity to see this incredible home in person. Schedule a viewing today and witness the charm and beauty of this Florida oasis for yourself. All information is deemed reliable but not guaranteed; the buyer must confirm.
Listing Information
Property Type: Residential, Single Family Residence
Status: Active
Bedrooms: 5
Bathrooms: 3
Lot Size: 0.24 Acres
Square Feet: 3,231 sq ft
Year Built: 2022
Garage: Yes
Stories: 2 Story
Construction: Block,Stucco
Subdivision: Isles/West Port Ph I
Builder: Lennar
Foundation: Block
County: Charlotte
School Information
Elementary: Liberty Elementary
Middle: Sky Academy Englewood
High: Lemon Bay High
Room Information
Main Floor
Family Room: 18.8x14.5
Bedroom 1: 13x11.1
Porch: 8.1x11.8
Living Room: 12.3x12.3
Dining Room: 11.1x12.3
Kitchen: 11.1x12.3
Upper Floor
Bedroom 3: 12.6x10.1
Primary Bathroom: 14.1x12.5
Office: 18.4x13.5
Bedroom 2: 14x12.8
Primary Bedroom: 18.4x12.5
Bathrooms
Full Baths: 3
Additonal Room Information
Laundry: Inside
Interior Features
Appliances: Washer, Dishwasher, Dryer, Microwave, Range, Refrigerator
Flooring: Carpet,Ceramic Tile
Additional Interior Features: Open Floorplan, Stone Counters, Walk-In Closet(s)
Utilities
Water: Public
Sewer: Public Sewer
Other Utilities: Cable Available,Electricity Connected,High Speed Internet Available,Phone Available,Sewer Connected,Underground Utilities
Cooling: Central Air
Heating: Electric
Exterior / Lot Features
Attached Garage: Attached Garage
Garage Spaces: 3
Roof: Shingle
Pool: Community
Additional Exterior/Lot Features: Sprinkler/Irrigation, Storm/Security Shutters, Lighting
Community Features
Community Features: Sidewalks, Pool, Street Lights
HOA Dues Include: Maintenance Grounds, Association Management, Maintenance Structure
Homeowners Association: Yes
HOA Dues: $90 / Monthly
Driving Directions
41 South, Right on Collingswood, Right on Veterans Blvd (FL-776). After approximately 9.5 miles, turn right onto Centennial Blvd, Left on Isles of West Port, Left on Hazel Ave.
Financial Considerations
Terms: Cash,Conventional,FHA
Tax/Property ID: 402112251090
Tax Amount: 9167.26
Tax Year: 2024
A broker reciprocity listing courtesy: RE/MAX PALM REALTY OF VENICE
Based on information provided by Stellar MLS as distributed by the MLS GRID. Information from the Internet Data Exchange is provided exclusively for consumers’ personal, non-commercial use, and such information may not be used for any purpose other than to identify prospective properties consumers may be interested in purchasing. This data is deemed reliable but is not guaranteed to be accurate by Edina Realty, Inc., or by the MLS. Edina Realty, Inc., is not a multiple listing service (MLS), nor does it offer MLS access.
Copyright 2025 Stellar MLS as distributed by the MLS GRID. All Rights Reserved.
Payment Calculator
Interest rate and annual percentage rate (APR) are based on current market conditions, are for informational purposes only, are subject to change without notice and may be subject to pricing add-ons related to property type, loan amount, loan-to-value, credit score and other variables. Estimated closing costs used in the APR calculation are assumed to be paid by the borrower at closing. If the closing costs are financed, the loan, APR and payment amounts will be higher. If the down payment is less than 20%, mortgage insurance may be required and could increase the monthly payment and APR. Contact us for details. Additional loan programs may be available. Accuracy is not guaranteed, and all products may not be available in all borrower's geographical areas and are based on their individual situation. This is not a credit decision or a commitment to lend.
Sales History & Tax Summary for 1951 E Isles Road
Sales History
| Date | Price | Change |
|---|---|---|
| Currently not available. | ||
Tax Summary
| Tax Year | Estimated Market Value | Total Tax |
|---|---|---|
| Currently not available. | ||
Data powered by ATTOM Data Solutions. Copyright© 2025. Information deemed reliable but not guaranteed.
Schools
Schools nearby 1951 E Isles Road
| Schools in attendance boundaries | Grades | Distance | Rating |
|---|---|---|---|
| Loading... | |||
| Schools nearby | Grades | Distance | Rating |
|---|---|---|---|
| Loading... | |||
Data powered by ATTOM Data Solutions. Copyright© 2025. Information deemed reliable but not guaranteed.
The schools shown represent both the assigned schools and schools by distance based on local school and district attendance boundaries. Attendance boundaries change based on various factors and proximity does not guarantee enrollment eligibility. Please consult your real estate agent and/or the school district to confirm the schools this property is zoned to attend. Information is deemed reliable but not guaranteed.
SchoolDigger ® Rating
The SchoolDigger rating system is a 1-5 scale with 5 as the highest rating. SchoolDigger ranks schools based on test scores supplied by each state's Department of Education. They calculate an average standard score by normalizing and averaging each school's test scores across all tests and grades.
Coming soon properties will soon be on the market, but are not yet available for showings.