1971 Drummond Point Zephyrhills, FL 33541
For Sale MLS# TB8449082
6 beds 6 baths 5,452 sq ft Single Family
Details for 1971 Drummond Point
MLS# TB8449082
Description for 1971 Drummond Point, Zephyrhills, FL, 33541
Welcome to the largest, new built home (5,452 SqFt) in the beautiful master-planned community of TWO RIVERS. Do NOT miss out on the ONLY "move in ready" GRANDSAIL III in the highly desired village of Shortgrass remarkably priced at $183/SqFt. Since original photos were taken the sellers have professionally added gorgeous wood beams at the dining and bonus room** This elegant waterfront lot home has never been lived in and it is STUNNING!!! With 5,452 square feet spread between 2 levels you'll find 6 bedrooms, 4 full bathrooms, 2 half baths, 2 laundry rooms and a 3 car tandem garage. Upon entering the foyer your gaze will immediately be drawn to the openness of the second level with vaulted ceilings, an upgraded staircase with wrought iron spindles that overlook the dramatic entrance. If generational living is your goal, the Grandsail floorplan could check all of your boxes. It features the primary suite downstairs with 1 additional bedroom in the opposite corner with another full bath & a walk-in shower. Prepared to be wowed as all the bathrooms have been tastefully upgraded with custom tile on walls & flooring that are sure to impress! The kitchen is a chef's delight. No detail has been overlooked, from the backsplash behind the vented hood, the waterfall center island, to the over-the range pot filler and the wine fridge in the butlers pantry...simply STUNNING!!! Feel the Spa Vibes upon entering your private en-suite. The primary bathroom features a huge walk-in shower with elegant tile to the ceiling and a stand-alone soaking tub that is sure to alleviate all the stresses of the day. His & Her sinks along with His & Her closets keep the fusing at bay:) This floorplan was built with functionality in mind; there are separate laundry rooms located on both levels so no more racing up & down the stairs. The second level is an entertainer's dream! A huge bonus room has limitless options. Already set up with a large island & wet bar plus additional counter and cabinet space put your ideas into motion. Want a private home theater or media room??? Say no more....double doors will open up to a blank canvas ready for you to design! Four additional large bedrooms are located upstairs with walk-in closets & impressive Jack & Jill bathrooms. Another oversized half bath is also located upstairs for guests. If privacy is desired, then this location is ideal to relax and unwind. Located on a serene pond overlooking conservation, you'll have nothing but birds and turtles staring back while enjoying your morning cup of joe or evening merlot. This home features numerous upgrades such as sconce prewires at foyer, ceiling fan prewires in multiple locations, 5.1 theater pre-wire, 80amp pool pre-wire, additional gas drop, rear sliders ILO windows, outdoor kitchen rough-in, gourmet extended kitchen, 25'X8' trussed lanai and much much MORE!!!!! Located only minutes to Wesley Chapel, I-75 and multiple hospitals, Two Rivers is the place to be. The Landing (Social Club) is expected to be completed in late 2026. Why wait 8 to 10 months to build when you can close in 30 days. Request your private showing TODAY before this beauty gets away!!
Listing Information
Property Type: Residential, Single Family Residence
Status: Active
Bedrooms: 6
Bathrooms: 6
Lot Size: 0.18 Acres
Square Feet: 5,452 sq ft
Year Built: 2025
Garage: Yes
Stories: 2 Story
Construction: Block,Stucco,Wood Frame
Construction Display: New Construction
Subdivision: Two Rivers Pcl B3
Builder: M/I Homes
Foundation: Slab
County: Pasco
Construction Status: New Construction
School Information
Elementary: Chester W Taylor Elemen-Po
Middle: Raymond B Stewart Middle-Po
High: Zephryhills High School-Po
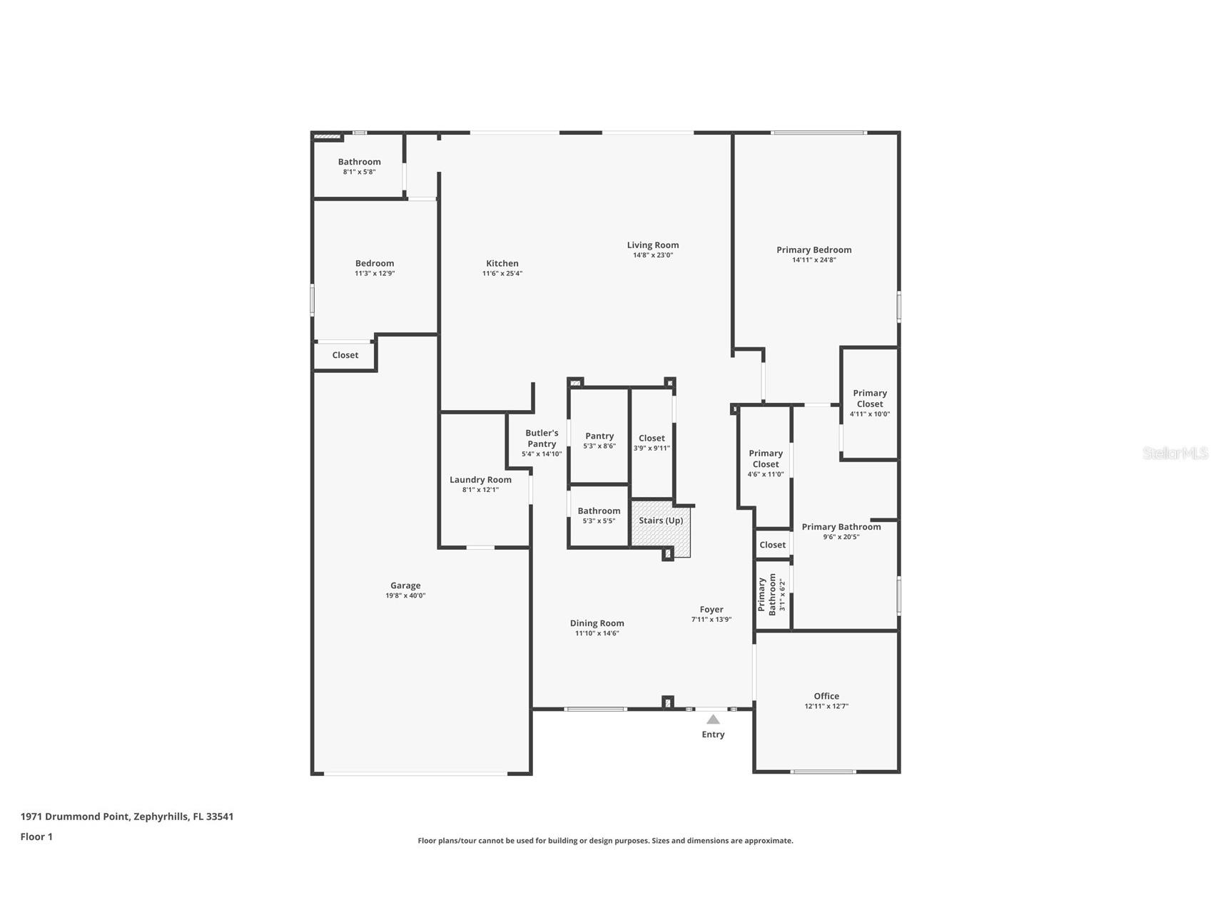
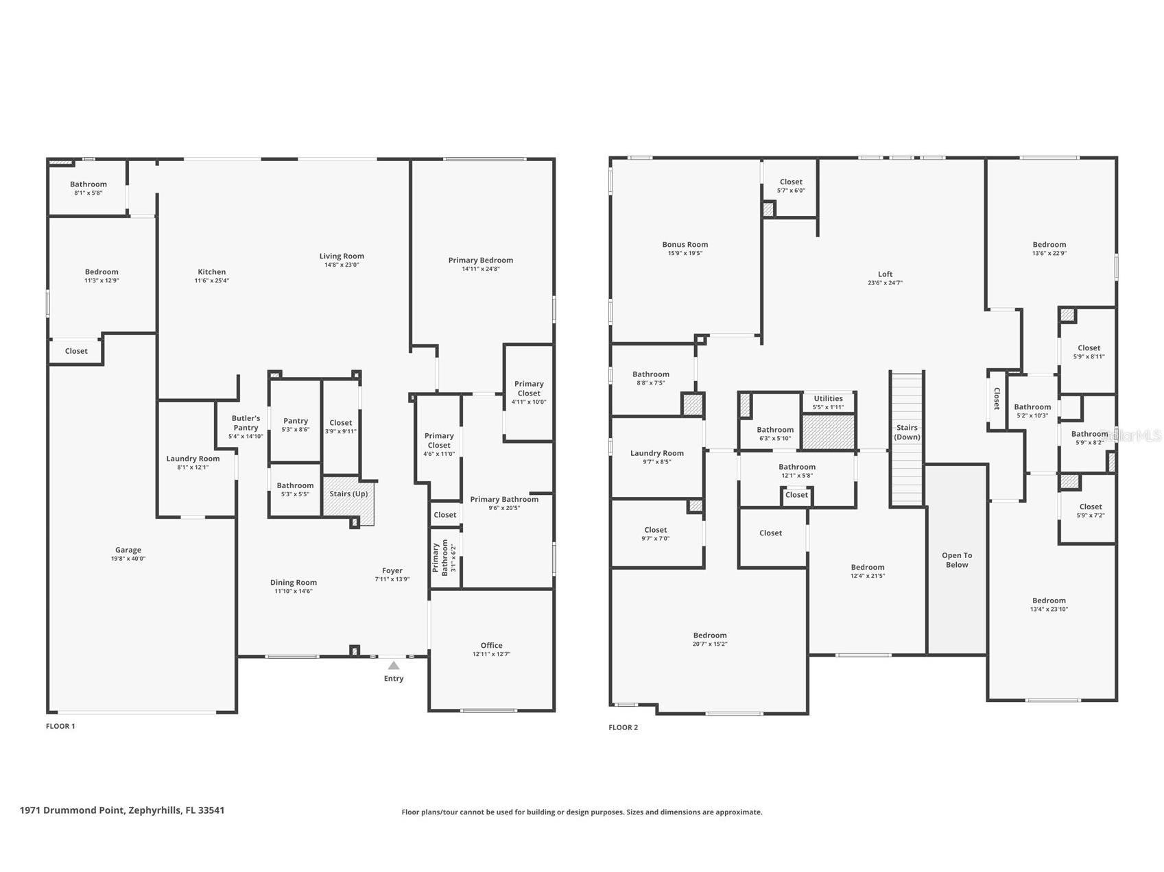
Room Information
Main Floor
Office: 12x12
Primary Bathroom: 20x9
Primary Bedroom: 24x14
Dining Room: 14x11
Living Room: 23x14
Kitchen: 25x11
Bedroom 2: 12x11
Laundry: 12x8
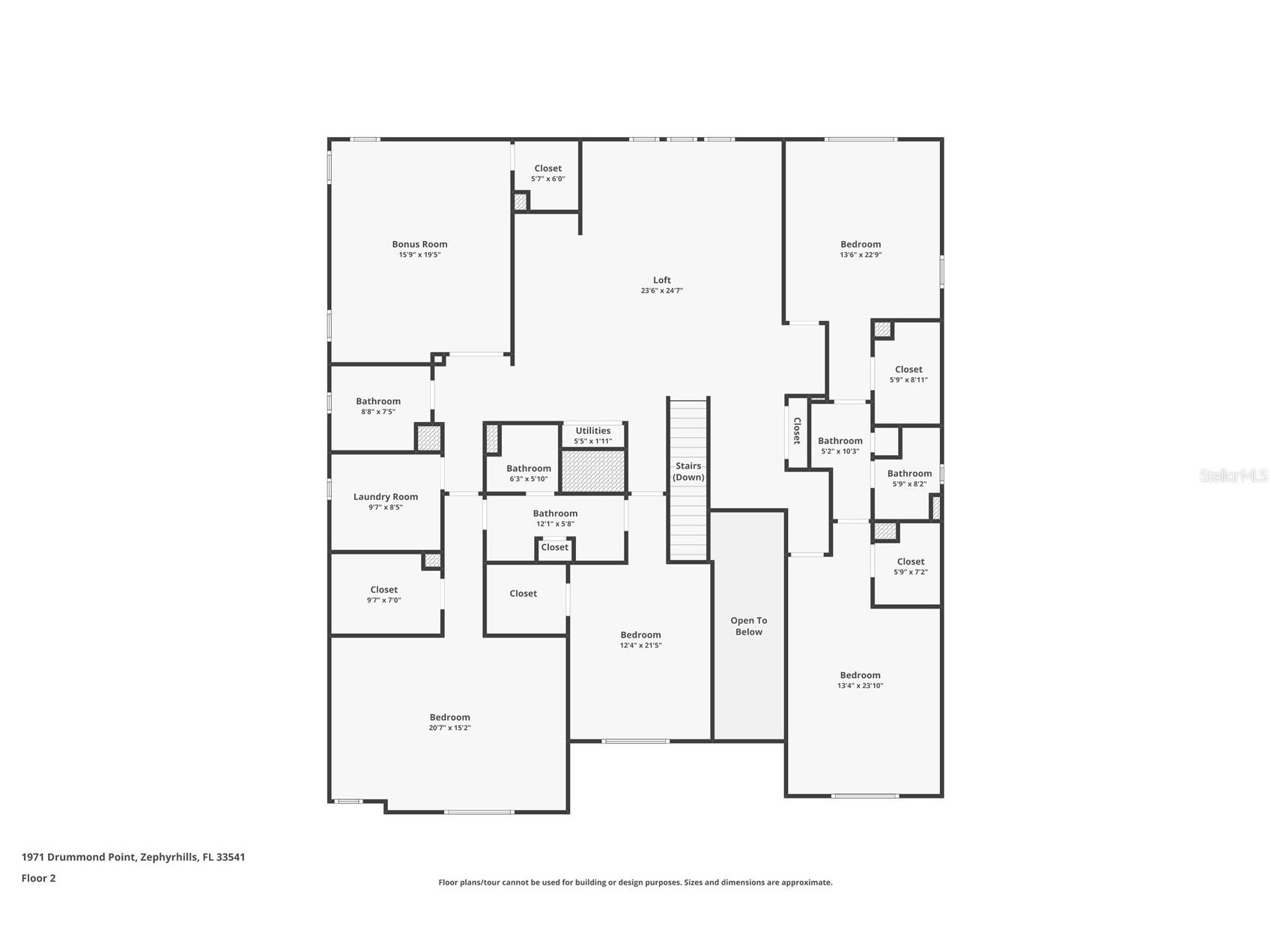
Upper Floor
Laundry: 8x9
Bedroom: 22x13
Bedroom 5: 23x13
Bedroom 4: 21x12
Bedroom 3: 15x20
Loft: 24x23
Bonus Room: 19x15
Bathrooms
Full Baths: 4
1/2 Baths: 2
Additonal Room Information
Laundry: Inside, Other, Upper Level, Laundry Room
Interior Features
Appliances: Cooktop, Dishwasher, Disposal, Built-In Oven, Range Hood
Flooring: Carpet,Ceramic Tile,Laminate,Tile
Additional Interior Features: Eat-In Kitchen, Loft, Walk-In Closet(s), Tray Ceiling(s), High Ceilings, Open Floorplan, Main Level Primary, Kitchen/Family Room Combo, Stone Counters
Utilities
Water: Public
Sewer: Public Sewer
Other Utilities: Electricity Connected,Natural Gas Connected,High Speed Internet Available,Municipal Utilities,Sewer Connected,Underground Utilities,Water Connected
Cooling: Central Air
Heating: Central
Exterior / Lot Features
Attached Garage: Attached Garage
Garage Spaces: 3
Parking Description: driveway
Roof: Tile
Pool: Community
Lot View: Pond,Trees/Woods,Water
Additional Exterior/Lot Features: Lighting, In-Wall Pest Control System, Sprinkler/Irrigation, Covered, Rear Porch, Landscaped
Community Features
Community Features: Pool, Tennis Court(s), Playground, Clubhouse, Sidewalks, Park, Restaurant, Fitness, Recreation Area, Community Mailbox
Homeowners Association: Yes
HOA Dues: $120 / Annually
Driving Directions
Head north on 1-275 to exit 59 Land O' Lakes/Tarpon Springs. Keep right at the ramp, then turn right onto FL-56 E. Continue straight on FL-56 E for approximately 9 miles. Turn right onto Morris Bridge Rd, then left onto Colston Ave. Take the first right onto Drummond Pt.
Financial Considerations
Terms: Cash,Conventional,VA Loan
Tax/Property ID: 21-26-31-0130-02700-0030
Tax Amount: 571
Tax Year: 2024
A broker reciprocity listing courtesy: EXP REALTY LLC
Based on information provided by Stellar MLS as distributed by the MLS GRID. Information from the Internet Data Exchange is provided exclusively for consumers’ personal, non-commercial use, and such information may not be used for any purpose other than to identify prospective properties consumers may be interested in purchasing. This data is deemed reliable but is not guaranteed to be accurate by Edina Realty, Inc., or by the MLS. Edina Realty, Inc., is not a multiple listing service (MLS), nor does it offer MLS access.
Copyright 2026 Stellar MLS as distributed by the MLS GRID. All Rights Reserved.
Payment Calculator
Interest rate and annual percentage rate (APR) are based on current market conditions, are for informational purposes only, are subject to change without notice and may be subject to pricing add-ons related to property type, loan amount, loan-to-value, credit score and other variables. Estimated closing costs used in the APR calculation are assumed to be paid by the borrower at closing. If the closing costs are financed, the loan, APR and payment amounts will be higher. If the down payment is less than 20%, mortgage insurance may be required and could increase the monthly payment and APR. Contact us for details. Additional loan programs may be available. Accuracy is not guaranteed, and all products may not be available in all borrower's geographical areas and are based on their individual situation. This is not a credit decision or a commitment to lend.
Sales History & Tax Summary for 1971 Drummond Point
Sales History
| Date | Price | |
|---|---|---|
| Currently not available. | ||
Tax Summary
| Tax Year | Estimated Market Value | Total Tax |
|---|---|---|
| Currently not available. | ||
Data powered by ATTOM Data Solutions. Copyright© 2026. Information deemed reliable but not guaranteed.
Schools
Schools nearby 1971 Drummond Point
| Schools in attendance boundaries | Grades | Distance | Rating |
|---|---|---|---|
| Loading... | |||
| Schools nearby | Grades | Distance | Rating |
|---|---|---|---|
| Loading... | |||
Data powered by ATTOM Data Solutions. Copyright© 2026. Information deemed reliable but not guaranteed.
The schools shown represent both the assigned schools and schools by distance based on local school and district attendance boundaries. Attendance boundaries change based on various factors and proximity does not guarantee enrollment eligibility. Please consult your real estate agent and/or the school district to confirm the schools this property is zoned to attend. Information is deemed reliable but not guaranteed.
SchoolDigger ® Rating
The SchoolDigger rating system is a 1-5 scale with 5 as the highest rating. SchoolDigger ranks schools based on test scores supplied by each state's Department of Education. They calculate an average standard score by normalizing and averaging each school's test scores across all tests and grades.
Coming soon properties will soon be on the market, but are not yet available for showings.