198 Cypress Avenue NW Port Charlotte, FL 33952
For Sale MLS# TB8408039
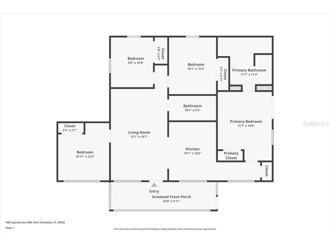
4 beds 2 baths 1,320 sq ft Single Family
Details for 198 Cypress Avenue NW
MLS# TB8408039
Description for 198 Cypress Avenue NW, Port Charlotte, FL, 33952
BUYER FINANCING FELL THROUGH- BACK ON MARKET- SELLER WILL PAY CLOSING COSTS**FREE HOME WARRANTY TO BUYER**FINANCING AVAILABLE**Welcome to this beautifully updated 3 BEDROOM, 2 BATHROOM home on a LARGE CORNER LOT in PORT CHARLOTTE, offering the perfect blend of comfort, style, and Florida lifestyle! Completely remodeled from top to bottom, this home features a NEW ROOF (2024), BRAND NEW ELECTRICAL PANEL, NEW WATER HEATER, and ALL NEW OUTLETS, SWITCHES, AND LIGHT FIXTURES THROUGHOUT. Step inside to an inviting open layout with LUXURY VINYL PLANK FLOORING THROUGHOUT – NO CARPET, ALL NEW DOORS AND TRIM (2025), and a charming BARN DOOR IN THE MASTER SUITE. The KITCHEN IS A SHOWSTOPPER with BRAND NEW 2025 STAINLESS STEEL APPLIANCES, including a DISHWASHER, QUARTZ COUNTERTOPS, and ALL NEW CABINETS—perfect for cooking and entertaining. Both bathrooms have been COMPLETELY REMODELED with designer finishes. Start your mornings with a warm cup of coffee on the ENCLOSED PORCH, the perfect spot to enjoy a peaceful start to your day, unwind in the evening, or entertain guests in a cozy setting. The LARGE CORNER LOT offers endless outdoor possibilities—host weekend BBQs, garden to your heart’s content, or just let the kids and pets play freely. The CARPORT provides covered parking and extra convenience. This home is ready to go with all major systems updated and will easily PASS A 4-POINT INSPECTION, making it ideal for financing. The new owner will also benefit from a DISCOUNT ON HOMEOWNERS INSURANCE thanks to the UPDATED WIND MITIGATION REPORT and NEW ROOF. Located in a quiet, established neighborhood with NO HOA, and qualifying for VA, FHA, and CONVENTIONAL FINANCING, this TURNKEY HOME is your opportunity to enjoy the FLORIDA LIFESTYLE you’ve been dreaming of—SUNSHINE, SPACE, and SERENITY.
Listing Information
Property Type: Residential, Single Family Residence
Status: Active
Bedrooms: 4
Bathrooms: 2
Lot Size: 0.31 Acres
Square Feet: 1,320 sq ft
Year Built: 1958
Stories: 1 Story
Construction: Block,Concrete
Subdivision: Port Charlotte Sec 005
Foundation: Slab
County: Charlotte
School Information
Elementary: Peace River Elementary
Middle: Murdock Middle
High: Port Charlotte High
Room Information
Main Floor
Kitchen: 12.6x10.1
Living Room: 19.7x12.1
Primary Bedroom: 14.8x11.7
Bathrooms
Full Baths: 2
Additonal Room Information
Laundry: Inside
Interior Features
Appliances: Dishwasher, Disposal, Microwave, Range, Refrigerator
Flooring: Luxury Vinyl
Additional Interior Features: Ceiling Fan(s)
Utilities
Water: Public
Sewer: Public Sewer
Other Utilities: Municipal Utilities
Cooling: Ceiling Fan(s), Central Air
Heating: Central
Exterior / Lot Features
Roof: Shingle, Other
Additional Exterior/Lot Features: Rain Gutters
Driving Directions
Turn left onto Tamiami Trl/US-41 S/FL-45 0.2 mi Follow Tamiami Trl/US-41 S/FL-45 4.0 mi Turn right onto Port Charlotte Blvd 0.4 mi Turn right onto Cypress Ave NW 0.2 mi Turn right onto Ridgewood St NW 112 ft You have arrived at Ridgewood St NW. Your destination is on the right B 198 Cypress Ave NW, Port Charlotte, FL 33952
Financial Considerations
Terms: Cash,Conventional,FHA,VA Loan
Tax/Property ID: 402221281011
Tax Amount: 1933.18
Tax Year: 2024
A broker reciprocity listing courtesy: REAL BROKER, LLC
Based on information provided by Stellar MLS as distributed by the MLS GRID. Information from the Internet Data Exchange is provided exclusively for consumers’ personal, non-commercial use, and such information may not be used for any purpose other than to identify prospective properties consumers may be interested in purchasing. This data is deemed reliable but is not guaranteed to be accurate by Edina Realty, Inc., or by the MLS. Edina Realty, Inc., is not a multiple listing service (MLS), nor does it offer MLS access.
Copyright 2026 Stellar MLS as distributed by the MLS GRID. All Rights Reserved.
Payment Calculator
Interest rate and annual percentage rate (APR) are based on current market conditions, are for informational purposes only, are subject to change without notice and may be subject to pricing add-ons related to property type, loan amount, loan-to-value, credit score and other variables. Estimated closing costs used in the APR calculation are assumed to be paid by the borrower at closing. If the closing costs are financed, the loan, APR and payment amounts will be higher. If the down payment is less than 20%, mortgage insurance may be required and could increase the monthly payment and APR. Contact us for details. Additional loan programs may be available. Accuracy is not guaranteed, and all products may not be available in all borrower's geographical areas and are based on their individual situation. This is not a credit decision or a commitment to lend.
Sales History & Tax Summary for 198 Cypress Avenue NW
Sales History
| Date | Price | |
|---|---|---|
| Currently not available. | ||
Tax Summary
| Tax Year | Estimated Market Value | Total Tax |
|---|---|---|
| Currently not available. | ||
Data powered by ATTOM Data Solutions. Copyright© 2026. Information deemed reliable but not guaranteed.
Schools
Schools nearby 198 Cypress Avenue NW
| Schools in attendance boundaries | Grades | Distance | Rating |
|---|---|---|---|
| Loading... | |||
| Schools nearby | Grades | Distance | Rating |
|---|---|---|---|
| Loading... | |||
Data powered by ATTOM Data Solutions. Copyright© 2026. Information deemed reliable but not guaranteed.
The schools shown represent both the assigned schools and schools by distance based on local school and district attendance boundaries. Attendance boundaries change based on various factors and proximity does not guarantee enrollment eligibility. Please consult your real estate agent and/or the school district to confirm the schools this property is zoned to attend. Information is deemed reliable but not guaranteed.
SchoolDigger ® Rating
The SchoolDigger rating system is a 1-5 scale with 5 as the highest rating. SchoolDigger ranks schools based on test scores supplied by each state's Department of Education. They calculate an average standard score by normalizing and averaging each school's test scores across all tests and grades.
Coming soon properties will soon be on the market, but are not yet available for showings.