$379,900
19823 Midway Boulevard Port Charlotte, FL 33948
For Sale MLS# C7522610
3 beds 2 baths 2,066 sq ft Single Family
Details for 19823 Midway Boulevard
MLS# C7522610
Description for 19823 Midway Boulevard, Port Charlotte, FL, 33948
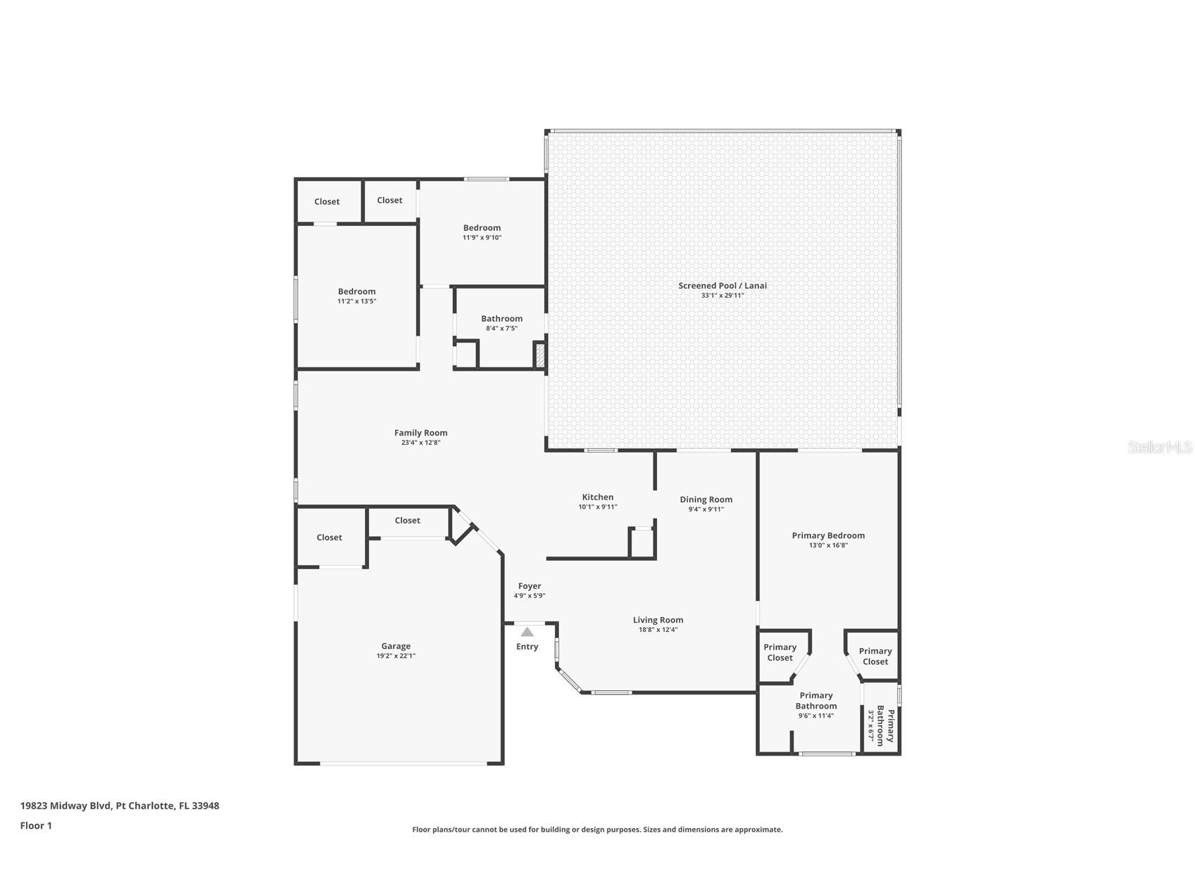
PRIVATE POOL HOME WITH SOLAR SAVINGS, PRIVACY FENCING & ROOM TO ENTERTAIN — FLORIDA LIVING AT ITS BEST! Welcome to 19823 Midway Boulevard in beautiful Port Charlotte — a well-appointed 3 BEDROOM, 2 BATHROOM, 2-CAR GARAGE POOL HOME designed for comfort, efficiency, and effortless indoor-outdoor living. From the moment you arrive, you’ll appreciate the FULLY FENCED YARD offering added privacy and peace of mind. Step inside to a functional, open layout featuring a spacious living area that flows seamlessly into the kitchen — complete with AMPLE COUNTERSPACE, abundant cabinetry, and plenty of room to prep, serve, and entertain with ease. The primary suite is thoughtfully designed with generous space, a DUAL VANITY EN-SUITE BATHROOM, and a layout that provides comfort and convenience. Two additional bedrooms offer flexibility for guests, a home office, or growing needs. Out back is where this home truly shines. The OVERSIZED LANAI creates the perfect setting for hosting gatherings, enjoying weekend cookouts, or simply relaxing in the shade while overlooking your private pool. Whether you're entertaining a crowd or enjoying a quiet evening swim, this outdoor space is built for the Florida lifestyle. Additional highlights include: SOLAR PANELS for energy efficiency and long-term savings, A backyard STORAGE SHED for tools, equipment, or hobby space, 2-CAR GARAGE with room for parking and extra storage, Spacious yard with room to garden, play, or personalize. Conveniently located near shopping, dining, schools, and just a short drive to area beaches, boating, and golf — this home offers the perfect balance of LOCATION, COMFORT, AND VALUE. If you're searching for a MOVE-IN READY POOL HOME with PRIVACY, SPACE, and ENERGY-SAVING FEATURES in Port Charlotte, this one checks all the boxes.
Listing Information
Property Type: Residential, Single Family Residence
Status: Active
Bedrooms: 3
Bathrooms: 2
Lot Size: 0.23 Acres
Square Feet: 2,066 sq ft
Year Built: 1984
Garage: Yes
Stories: 1 Story
Construction: Concrete,Stucco
Construction Display: New Construction
Subdivision: Port Charlotte Sec Cc8
Foundation: Slab
County: Charlotte
Construction Status: New Construction
School Information
Elementary: Meadow Park Elementary
Middle: Murdock Middle
High: Port Charlotte High
Room Information
Main Floor
Bathroom 1: 7.5x8.25
Living Room: 12.25x18.75
Foyer: 5.75x4.75
Bedroom 2: 13.5x11.25
Bedroom 1: 9.75x11.75
Primary Bathroom: 11.25x9.5
Primary Bedroom: 16.75x13
Porch: 30x33
Family Room: 12.75x23.25
Kitchen: 10x10
Dining Room: 10x9.25
Bathrooms
Full Baths: 2
Additonal Room Information
Laundry: In Garage
Interior Features
Appliances: Dishwasher, Microwave, Range, Refrigerator, Electric Water Heater, Range Hood
Flooring: Tile
Additional Interior Features: Ceiling Fan(s), Split Bedrooms, Vaulted Ceiling(s), Walk-In Closet(s), Built-in Features, Living/Dining Room, Stone Counters, Main Level Primary, Wood Cabinets
Utilities
Water: Public
Sewer: Public Sewer
Other Utilities: Cable Available,Electricity Connected,Municipal Utilities,Sewer Connected,Water Connected
Cooling: Central Air, Ceiling Fan(s)
Heating: Solar, Electric, Central
Exterior / Lot Features
Attached Garage: Attached Garage
Garage Spaces: 2
Roof: Shingle
Pool: In Ground, Screen Enclosure, Gunite, Tile
Lot Dimensions: 80x125
Fencing: Wood, Chain Link
Additional Exterior/Lot Features: Sprinkler/Irrigation, Storm/Security Shutters, Rain Gutters, Rear Porch, Front Porch, Screened, Landscaped
Out Buildings: Shed(s)
Community Features
Community Features: Street Lights
Driving Directions
Head toward Port Charlotte on U.S. 41 (Tamiami Trail). Turn WEST onto Midway Boulevard — look for signs for Midway Blvd as you drive through Port Charlotte. Continue straight on Midway Boulevard for about 2–2.5 miles. 19823 Midway Boulevard will be on your LEFT (westbound) in the 33948 area.
Financial Considerations
Terms: Cash,Conventional,FHA,VA Loan
Tax/Property ID: 402220208005
Tax Amount: 4252
Tax Year: 2025
A broker reciprocity listing courtesy: GRANT TEAM REAL ESTATE, LLC
Based on information provided by Stellar MLS as distributed by the MLS GRID. Information from the Internet Data Exchange is provided exclusively for consumers’ personal, non-commercial use, and such information may not be used for any purpose other than to identify prospective properties consumers may be interested in purchasing. This data is deemed reliable but is not guaranteed to be accurate by Edina Realty, Inc., or by the MLS. Edina Realty, Inc., is not a multiple listing service (MLS), nor does it offer MLS access.
Copyright 2026 Stellar MLS as distributed by the MLS GRID. All Rights Reserved.
Payment Calculator
Interest rate and annual percentage rate (APR) are based on current market conditions, are for informational purposes only, are subject to change without notice and may be subject to pricing add-ons related to property type, loan amount, loan-to-value, credit score and other variables. Estimated closing costs used in the APR calculation are assumed to be paid by the borrower at closing. If the closing costs are financed, the loan, APR and payment amounts will be higher. If the down payment is less than 20%, mortgage insurance may be required and could increase the monthly payment and APR. Contact us for details. Additional loan programs may be available. Accuracy is not guaranteed, and all products may not be available in all borrower's geographical areas and are based on their individual situation. This is not a credit decision or a commitment to lend.
Sales History & Tax Summary for 19823 Midway Boulevard
Sales History
| Date | Price | |
|---|---|---|
| Currently not available. | ||
Tax Summary
| Tax Year | Estimated Market Value | Total Tax |
|---|---|---|
| Currently not available. | ||
Data powered by ATTOM Data Solutions. Copyright© 2026. Information deemed reliable but not guaranteed.
Schools
Schools nearby 19823 Midway Boulevard
| Schools in attendance boundaries | Grades | Distance | Rating |
|---|---|---|---|
| Loading... | |||
| Schools nearby | Grades | Distance | Rating |
|---|---|---|---|
| Loading... | |||
Data powered by ATTOM Data Solutions. Copyright© 2026. Information deemed reliable but not guaranteed.
The schools shown represent both the assigned schools and schools by distance based on local school and district attendance boundaries. Attendance boundaries change based on various factors and proximity does not guarantee enrollment eligibility. Please consult your real estate agent and/or the school district to confirm the schools this property is zoned to attend. Information is deemed reliable but not guaranteed.
SchoolDigger ® Rating
The SchoolDigger rating system is a 1-5 scale with 5 as the highest rating. SchoolDigger ranks schools based on test scores supplied by each state's Department of Education. They calculate an average standard score by normalizing and averaging each school's test scores across all tests and grades.
Coming soon properties will soon be on the market, but are not yet available for showings.