$699,000
1987 White Feather Lane Nokomis, FL 34275
For Sale MLS# A4671776
4 beds 2 baths 2,413 sq ft Single Family
Details for 1987 White Feather Lane
MLS# A4671776
Description for 1987 White Feather Lane, Nokomis, FL, 34275
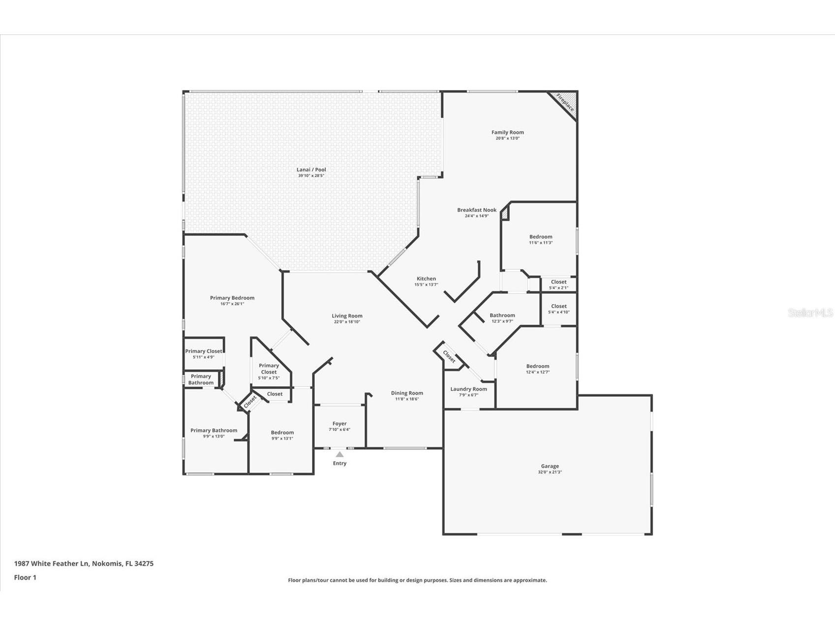
Located in the gated golf community of Calusa Lakes, this single-story pool home offers golf course views, a split-bedroom floor plan, and a highly desirable 3-car garage on a 0.28-acre lot. Surrounded by mature landscaping, a pavered driveway and double front doors create an inviting first impression. Inside, this 4-bedroom, 2-bathroom residence offers over 2,400 square feet of living space with high ceilings, crown molding, and impact windows throughout, creating a bright and move-in-ready feel. Formal living and dining areas provide space for entertaining, while the open kitchen and family room layout is ideal for everyday living. The kitchen features ample cabinetry, generous counter space, and an eat-in nook overlooking the pool. The family room is anchored by a stone wood-burning fireplace, adding warmth and character. The owner’s suite offers private lanai access, dual walk-in closets, and an ensuite bath with dual sinks, soaking tub, and separate walk-in shower. The fourth bedroom is currently used as a TV room and easily functions as a home office or flex space. Bedrooms two and three are located on the opposite side of the home with a guest bath in between. An indoor laundry room with utility sink and storage adds everyday convenience. Step outside to the screened lanai and heated pool, resurfaced in 2017 with travertine tile, overlooking the serene golf course setting. Thoughtfully placed landscaping provides privacy while preserving the view, creating a true outdoor retreat. Calusa Lakes is a gated community with low HOA fees and no CDD, set among 460 acres of preserved pines, oaks, lakes, and natural beauty. Residents enjoy 28 lakes, a semi-private 18-hole golf course with optional membership, Har-Tru tennis courts, clubhouse dining, and an active lifestyle. Conveniently located in Nokomis between Sarasota and Venice, with easy access to I-75, shopping, dining, boating, the Legacy Trail, and Nokomis Beach.
Listing Information
Property Type: Residential, Single Family Residence
Status: Active
Bedrooms: 4
Bathrooms: 2
Lot Size: 0.28 Acres
Square Feet: 2,413 sq ft
Year Built: 1992
Garage: Yes
Stories: 1 Story
Construction: Stucco
Subdivision: Calusa Lakes
Foundation: Slab
County: Sarasota
School Information
Elementary: Laurel Nokomis Elementary
Middle: Sarasota Middle
High: Venice Senior High
Room Information
Main Floor
Bedroom 4: 13.1x9.9
Bedroom 3: 11.3x11.6
Bedroom 2: 12.7x12.4
Primary Bedroom: 26.1x16.7
Living Room: 18x22
Kitchen: 13.7x15.5
Bathrooms
Full Baths: 2
Additonal Room Information
Laundry: Laundry Room
Interior Features
Appliances: Built-In Oven, Microwave, Refrigerator, Cooktop, Dishwasher
Flooring: Carpet,Luxury Vinyl,Tile
Fireplaces: Family Room
Additional Interior Features: Eat-In Kitchen, High Ceilings, Living/Dining Room, Crown Molding, Main Level Primary, Kitchen/Family Room Combo, Solid Surface Counters
Utilities
Water: Public
Sewer: Public Sewer
Other Utilities: Cable Available,High Speed Internet Available,Municipal Utilities
Cooling: Central Air
Heating: Central
Exterior / Lot Features
Attached Garage: Attached Garage
Garage Spaces: 3
Parking Description: driveway
Roof: Tile
Pool: Screen Enclosure, In Ground, Heated
Lot View: Golf Course
Additional Exterior/Lot Features: Rear Porch, Covered, On Golf Course
Community Features
Community Features: Tennis Court(s), Golf, Gated, Golf Carts OK
Security Features: Gated Community, Gated with Guard
Association Amenities: Tennis Court(s), Gated
HOA Dues Include: Road Maintenance, Common Areas, Taxes
Homeowners Association: Yes
HOA Dues: $327 / Quarterly
Driving Directions
41 to Laure Road East to Mission Valley Blvd. North on Calusa Lakes Blvd, Left on Timicua, Left on White Feather, House is on the right.
Financial Considerations
Terms: Cash,Conventional,FHA,VA Loan
Tax/Property ID: 0359060004
Tax Amount: 6243
Tax Year: 2024
A broker reciprocity listing courtesy: COLDWELL BANKER REALTY
Based on information provided by Stellar MLS as distributed by the MLS GRID. Information from the Internet Data Exchange is provided exclusively for consumers’ personal, non-commercial use, and such information may not be used for any purpose other than to identify prospective properties consumers may be interested in purchasing. This data is deemed reliable but is not guaranteed to be accurate by Edina Realty, Inc., or by the MLS. Edina Realty, Inc., is not a multiple listing service (MLS), nor does it offer MLS access.
Copyright 2026 Stellar MLS as distributed by the MLS GRID. All Rights Reserved.
Payment Calculator
Interest rate and annual percentage rate (APR) are based on current market conditions, are for informational purposes only, are subject to change without notice and may be subject to pricing add-ons related to property type, loan amount, loan-to-value, credit score and other variables. Estimated closing costs used in the APR calculation are assumed to be paid by the borrower at closing. If the closing costs are financed, the loan, APR and payment amounts will be higher. If the down payment is less than 20%, mortgage insurance may be required and could increase the monthly payment and APR. Contact us for details. Additional loan programs may be available. Accuracy is not guaranteed, and all products may not be available in all borrower's geographical areas and are based on their individual situation. This is not a credit decision or a commitment to lend.
Sales History & Tax Summary for 1987 White Feather Lane
Sales History
| Date | Price | Change |
|---|---|---|
| Currently not available. | ||
Tax Summary
| Tax Year | Estimated Market Value | Total Tax |
|---|---|---|
| Currently not available. | ||
Data powered by ATTOM Data Solutions. Copyright© 2026. Information deemed reliable but not guaranteed.
Schools
Schools nearby 1987 White Feather Lane
| Schools in attendance boundaries | Grades | Distance | Rating |
|---|---|---|---|
| Loading... | |||
| Schools nearby | Grades | Distance | Rating |
|---|---|---|---|
| Loading... | |||
Data powered by ATTOM Data Solutions. Copyright© 2026. Information deemed reliable but not guaranteed.
The schools shown represent both the assigned schools and schools by distance based on local school and district attendance boundaries. Attendance boundaries change based on various factors and proximity does not guarantee enrollment eligibility. Please consult your real estate agent and/or the school district to confirm the schools this property is zoned to attend. Information is deemed reliable but not guaranteed.
SchoolDigger ® Rating
The SchoolDigger rating system is a 1-5 scale with 5 as the highest rating. SchoolDigger ranks schools based on test scores supplied by each state's Department of Education. They calculate an average standard score by normalizing and averaging each school's test scores across all tests and grades.
Coming soon properties will soon be on the market, but are not yet available for showings.