$399,900
1989 N Park Drive Saint Paul, MN 55119
Active Contingent MLS# 6797449
4 beds 2 baths 2,279 sq ft Single Family
Details for 1989 N Park Drive
MLS# 6797449
Description for 1989 N Park Drive, Saint Paul, MN, 55119
Back on the market! This 4-bedroom, 2-bath home in the sought-after Battle Creek area offers comfort, space, and beautiful views overlooking Battle Creek Park. All main living is on the main floor, featuring a spacious great room with a cozy fireplace, convenient main-level laundry, and three bedrooms. The large lower-level flex room provides versatility as a fourth bedroom or an additional living/entertainment space. Recent updates include brand-new LVP flooring, rebuilt walls, windows, and roof, along with fresh paint and new carpet throughout. The large fenced-in backyard makes this home move-in ready and perfect for both relaxation and entertaining.
Listing Information
Property Type: Residential, Single Family
Status: Active Contingent-Sale of Another Property
Bedrooms: 4
Bathrooms: 2
Lot Size: 0.37 Acres
Square Feet: 2,279 sq ft
Year Built: 1973
Foundation: 961 sq ft
Garage: Yes
Stories: Split Entry (Bi-Level)
Subdivision: Bisanz Bro Battle Cr Terrace 2
County: Ramsey
Days On Market: 79
Construction Status: Previously Owned
School Information
District: 625 - St. Paul
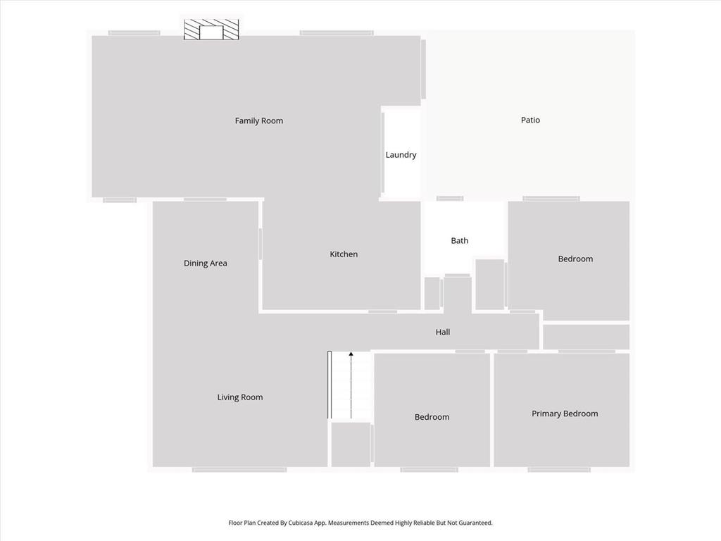
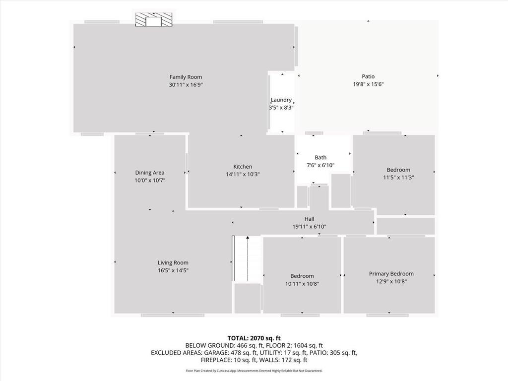
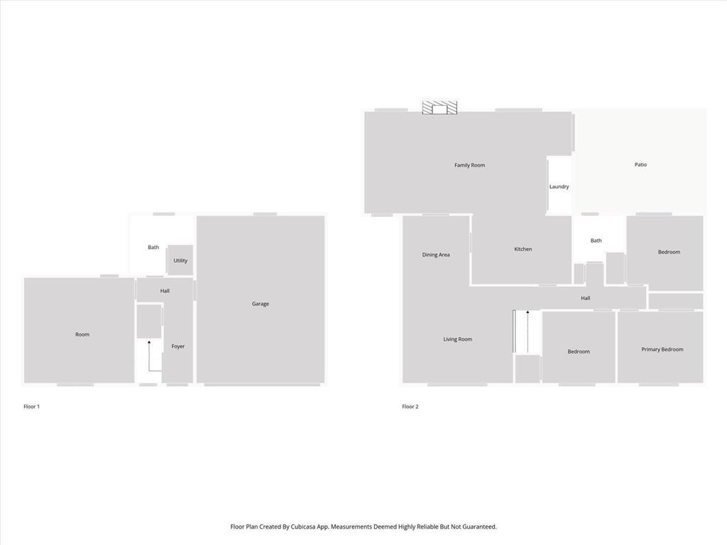
Room Information
Upper Floor
Bedroom 1: 10'11''x10'8''
Bedroom 2: 11'5''x11'3'
Bedroom 3: 12'9''x10'8''
Dining Room: 10'x10'7''
Family Room: 30'11x16''9'
Great Room: 16'5''x14'5''
Kitchen: 14'11''x10'3''
Laundry: 3'5''x8'3''
Patio: 19'8''x15'6''
Lower Floor
Bathroom: 9'2''x8'11''
Bedroom 4: 16'6''x15'9''
Foyer: 4'9''x12'1''
Utility Room: 3'9''x4'7''
Bathrooms
Full Baths: 1
3/4 Baths: 1
Additonal Room Information
Family: Family Room,Great Room,Main Level
Dining: Breakfast Bar,Informal Dining Room,Living/Dining Room
Laundry: Upper Level
Bath Description: 3/4 Basement,Main Floor Full Bath
Interior Features
Square Footage above: 1,796 sq ft
Square Footage below: 483 sq ft
Appliances: Gas Water Heater, Dryer, Washer
Basement: Walkout, Finished (Livable)
Fireplaces: 1, Wood Burning
Additional Interior Features: Ceiling Fan(s), Vaulted Ceiling(s), Washer/Dryer Hookup, Main Floor Laundry, Kitchen Window, Renovated, 3 BR on One Level, All Living Facilities on One Level
Utilities
Water: City Water - In Street
Sewer: City Sewer - In Street
Cooling: Central
Heating: Natural Gas, Forced Air
Exterior / Lot Features
Garage Spaces: 2
Parking Description: Tuckunder Garage, Garage Dimensions - 19x25, Garage Sq Ft - 475.0
Exterior: Metal, Vinyl, Brick/Stone
Roof: Asphalt Shingles
Lot Dimensions: 86*189
Zoning: Residential-Single Family
Fencing: Chain Link
Additional Exterior/Lot Features: Patio, Sod Included in Price, Tree Coverage - Medium, Public Transit (w/in 6 blks), Road Frontage - City
Out Buildings: Shed - Storage
Driving Directions
Go to Ruth Street South of 94, West on North Park Drive
Financial Considerations
Tax/Property ID: 022822210094
Tax Amount: 5332
Tax Year: 2025
HomeStead Description: Non-Homesteaded
A broker reciprocity listing courtesy: Inspire Access Realty, LLC
The data relating to real estate for sale on this web site comes in part from the Broker Reciprocity℠ Program of the Regional Multiple Listing Service of Minnesota, Inc. Real estate listings held by brokerage firms other than Edina Realty, Inc. are marked with the Broker Reciprocity℠ logo or the Broker Reciprocity℠ thumbnail and detailed information about them includes the name of the listing brokers. Edina Realty, Inc. is not a Multiple Listing Service (MLS), nor does it offer MLS access. This website is a service of Edina Realty, Inc., a broker Participant of the Regional Multiple Listing Service of Minnesota, Inc. IDX information is provided exclusively for consumers personal, non-commercial use and may not be used for any purpose other than to identify prospective properties consumers may be interested in purchasing. Open House information is subject to change without notice. Information deemed reliable but not guaranteed.
Copyright 2025 Regional Multiple Listing Service of Minnesota, Inc. All Rights Reserved.
Payment Calculator
Interest rate and annual percentage rate (APR) are based on current market conditions, are for informational purposes only, are subject to change without notice and may be subject to pricing add-ons related to property type, loan amount, loan-to-value, credit score and other variables. Estimated closing costs used in the APR calculation are assumed to be paid by the borrower at closing. If the closing costs are financed, the loan, APR and payment amounts will be higher. If the down payment is less than 20%, mortgage insurance may be required and could increase the monthly payment and APR. Contact us for details. Additional loan programs may be available. Accuracy is not guaranteed, and all products may not be available in all borrower's geographical areas and are based on their individual situation. This is not a credit decision or a commitment to lend.
Sales History & Tax Summary for 1989 N Park Drive
Sales History
| Date | Price | Change |
|---|---|---|
| Currently not available. | ||
Tax Summary
| Tax Year | Estimated Market Value | Total Tax |
|---|---|---|
| Currently not available. | ||
Data powered by ATTOM Data Solutions. Copyright© 2025. Information deemed reliable but not guaranteed.
Schools
Schools nearby 1989 N Park Drive
| Schools in attendance boundaries | Grades | Distance | Rating |
|---|---|---|---|
| Loading... | |||
| Schools nearby | Grades | Distance | Rating |
|---|---|---|---|
| Loading... | |||
Data powered by ATTOM Data Solutions. Copyright© 2025. Information deemed reliable but not guaranteed.
The schools shown represent both the assigned schools and schools by distance based on local school and district attendance boundaries. Attendance boundaries change based on various factors and proximity does not guarantee enrollment eligibility. Please consult your real estate agent and/or the school district to confirm the schools this property is zoned to attend. Information is deemed reliable but not guaranteed.
SchoolDigger ® Rating
The SchoolDigger rating system is a 1-5 scale with 5 as the highest rating. SchoolDigger ranks schools based on test scores supplied by each state's Department of Education. They calculate an average standard score by normalizing and averaging each school's test scores across all tests and grades.
Coming soon properties will soon be on the market, but are not yet available for showings.