19965 67th Avenue Corcoran, MN 55340
For Sale MLS# 7002296
5 beds 5 baths 4,404 sq ft Single Family
Details for 19965 67th Avenue
MLS# 7002296
Description for 19965 67th Avenue, Corcoran, MN, 55340
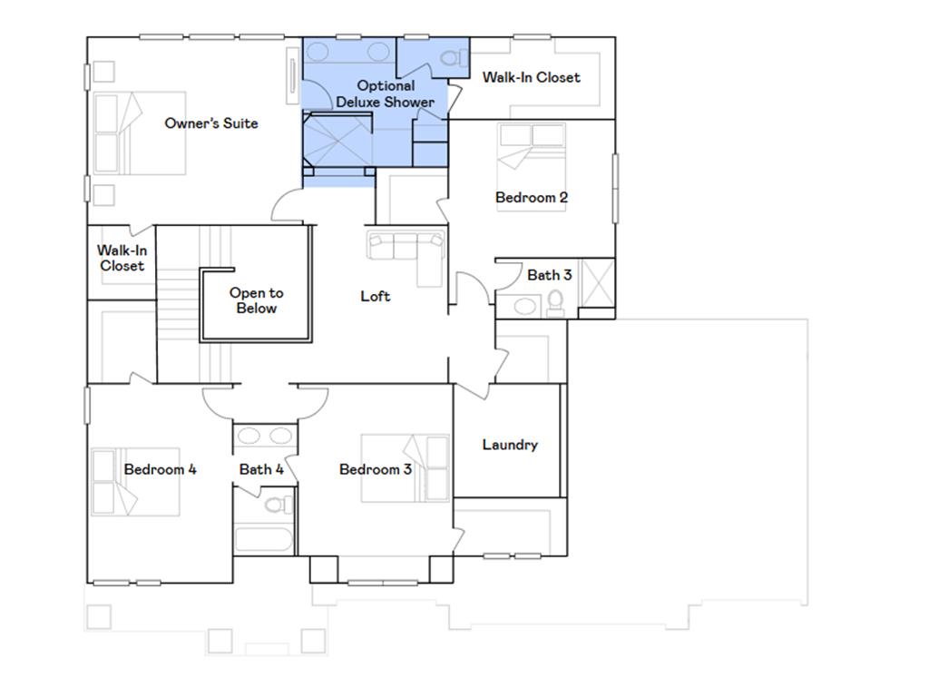
This home is available for a quick close! Ask about how to qualify for savings up to $5,000 with the use of the Seller's Preferred Lender! Thoughtfully designed for modern family living, the Washburn offers bright, open spaces and impressive functionality. The main level boasts a sun-filled Great Room, a gourmet kitchen with a large square island and walk-in pantry, a formal dining room, and a versatile front-facing office. Upstairs, four spacious bedrooms include a luxurious owner’s suite with a private bath, while the secondary bedrooms are connected by Jack-and-Jill bathrooms. A cozy loft provides a perfect retreat for reading, gaming, or relaxing. The finished lower level expands your living space with a large recreation room, a fifth bedroom, and an additional bath—ideal for guests or extended family. Complete with a 4-car garage and located in the sought-after Wayzata School District, this home is nestled in Tavera, a scenic community with walking trails and lush natural surroundings.
Listing Information
Property Type: Residential, Single Family
Status: Active
Bedrooms: 5
Bathrooms: 5
Lot Size: 0.27 Acres
Square Feet: 4,404 sq ft
Year Built: 2025
Foundation: 1,494 sq ft
Garage: Yes
Stories: 2 Stories
Date Available: 12/1/2025
Construction Display: New Construction
Completion date: 2025-12-01T06:00:00Z
Subdivision: Tavera
Builder: LENNAR
County: Hennepin
Days On Market: 23
Construction Status: Completed New Construction
School Information
District: 0284 - Wayzata
Room Information
Main Floor
Dining Room: 12x11
Great Room: 18x15
Informal Dining Room: 10x15
Kitchen: 15x15
Office: 12x10
Upper Floor
Bedroom 1: 17x15
Bedroom 2: 13x11
Bedroom 3: 13x14
Bedroom 4: 12x16
Loft: 11x13
Lower Floor
Bedroom 5: 14x12
Recreation Room: 28x15
Bathrooms
Full Baths: 1
3/4 Baths: 4
Additonal Room Information
Family: 2 or More,Great Room,Loft,Lower Level,Main Level
Dining: Breakfast Area,Separate/Formal Dining Room
Laundry: Washer Hookup, Laundry Room, Upper Level, Sink, Gas Dryer Hookup
Bath Description: 3/4 Basement,Main Floor 3/4 Bath,Private Primary,Upper Level 3/4 Bath,Upper Level Full Bath
Interior Features
Square Footage above: 3,328 sq ft
Square Footage below: 1,076 sq ft
Appliances: Tankless Water Heater, Stainless Steel Appliances, Double Oven, Microwave, Wall Oven, Furnace Humidifier, Disposal, Air-To-Air Exchanger, Exhaust Fan/Hood, Refrigerator, Dishwasher, Cooktop
Basement: Egress Windows, Finished (Livable)
Fireplaces: 1, Stone, Gas Burning, Family Room
Additional Interior Features: Walk-In Closet, Kitchen Window, Washer/Dryer Hookup, Natural Woodwork, Primary Bdr Suite, Kitchen Center Island, Paneled Doors, 2nd Floor Laundry, 3 BR on One Level, 4 BR on One Level
Utilities
Water: City Water/Connected
Sewer: City Sewer/Connected
Cooling: Central
Heating: Forced Air, Natural Gas, Fireplace
Exterior / Lot Features
Attached Garage: Attached Garage
Garage Spaces: 4
Parking Description: Garage Door Opener, Attached Garage, Driveway - Asphalt, Garage Sq Ft - 951.0
Exterior: Wood, Shakes, Vinyl, Brick/Stone
Roof: Age 8 Years or Less
Lot Dimensions: TBD
Zoning: Residential-Single Family
Additional Exterior/Lot Features: Porch, Sod Included in Price
Community Features
HOA Dues Include: Professional Mgmt, Sanitation
Homeowners Association: Yes
Association Name: Associa Minnesota
HOA Dues: $137 / Quarterly
Driving Directions
Hwy 55 to Cty 116 left on Hackamore Rd right on Tamarack Lane, Turn left onto 63rd Ave; Home is on the right.
Financial Considerations
Tax/Property ID: TBD
Tax Year: 2025
HomeStead Description: Non-Homesteaded
A broker reciprocity listing courtesy: Lennar Sales Corp
The data relating to real estate for sale on this web site comes in part from the Broker Reciprocity℠ Program of the Regional Multiple Listing Service of Minnesota, Inc. Real estate listings held by brokerage firms other than Edina Realty, Inc. are marked with the Broker Reciprocity℠ logo or the Broker Reciprocity℠ thumbnail and detailed information about them includes the name of the listing brokers. Edina Realty, Inc. is not a Multiple Listing Service (MLS), nor does it offer MLS access. This website is a service of Edina Realty, Inc., a broker Participant of the Regional Multiple Listing Service of Minnesota, Inc. IDX information is provided exclusively for consumers personal, non-commercial use and may not be used for any purpose other than to identify prospective properties consumers may be interested in purchasing. Open House information is subject to change without notice. Information deemed reliable but not guaranteed.
Copyright 2026 Regional Multiple Listing Service of Minnesota, Inc. All Rights Reserved.
Payment Calculator
Interest rate and annual percentage rate (APR) are based on current market conditions, are for informational purposes only, are subject to change without notice and may be subject to pricing add-ons related to property type, loan amount, loan-to-value, credit score and other variables. Estimated closing costs used in the APR calculation are assumed to be paid by the borrower at closing. If the closing costs are financed, the loan, APR and payment amounts will be higher. If the down payment is less than 20%, mortgage insurance may be required and could increase the monthly payment and APR. Contact us for details. Additional loan programs may be available. Accuracy is not guaranteed, and all products may not be available in all borrower's geographical areas and are based on their individual situation. This is not a credit decision or a commitment to lend.
Sales History & Tax Summary for 19965 67th Avenue
Sales History
| Date | Price | Change |
|---|---|---|
| Currently not available. | ||
Tax Summary
| Tax Year | Estimated Market Value | Total Tax |
|---|---|---|
| Currently not available. | ||
Data powered by ATTOM Data Solutions. Copyright© 2026. Information deemed reliable but not guaranteed.
Schools
Schools nearby 19965 67th Avenue
| Schools in attendance boundaries | Grades | Distance | Rating |
|---|---|---|---|
| Loading... | |||
| Schools nearby | Grades | Distance | Rating |
|---|---|---|---|
| Loading... | |||
Data powered by ATTOM Data Solutions. Copyright© 2026. Information deemed reliable but not guaranteed.
The schools shown represent both the assigned schools and schools by distance based on local school and district attendance boundaries. Attendance boundaries change based on various factors and proximity does not guarantee enrollment eligibility. Please consult your real estate agent and/or the school district to confirm the schools this property is zoned to attend. Information is deemed reliable but not guaranteed.
SchoolDigger ® Rating
The SchoolDigger rating system is a 1-5 scale with 5 as the highest rating. SchoolDigger ranks schools based on test scores supplied by each state's Department of Education. They calculate an average standard score by normalizing and averaging each school's test scores across all tests and grades.
Coming soon properties will soon be on the market, but are not yet available for showings.