$399,000
2 Broadmoor Road Rotonda West, FL 33947
For Sale MLS# C7518245
3 beds 3 baths 2,805 sq ft Single Family
Details for 2 Broadmoor Road
MLS# C7518245
Description for 2 Broadmoor Road, Rotonda West, FL, 33947
Welcome to this beautifully updated home on an oversized corner lot backing onto a serene lake in the sought-after Broadmoor section of Rotonda West. Nestled on approximately 0.45 acres, the property enjoys premium lake-front views and extra-wide space for privacy and expansion. This section of Rotonda is uniquely designed with subterranean utilities—no electric poles, overhead wires, or phone lines—offering a cleaner aesthetic and enhanced storm protection. Inside you’ll find newer flooring (installed in 2023) throughout, lending a fresh, cohesive feel. A full roof replacement in 2023 offers peace of mind, and the home features full-length irrigation drawing from the lake, enhancing the lush landscaping effortlessly. The irrigation pump and control system were replaced in July, ensuring reliable and efficient watering for years to come. The spacious screened lanai was completely rebuilt in 2023 to create an inviting outdoor oasis, and the swimming pool with attached hot tub is ready for fun and relaxation—with a brand new pump installed for maximum performance. Two full sets of hurricane shutters protect your investment. Impact-resistant windows installed in 2022 bring additional comfort and safety. The heart of the home is the kitchen, completely remodeled in 2023 with modern finishes and thoughtful upgrades—ideal for entertaining or everyday living. In addition, the garage has been enclosed, tiled, and air-conditioned, offering versatile space for use as a den, gym, media room, or workshop beyond car storage. From the moment you enter the foyer and glimpse the peaceful lake, you’ll appreciate both the quality of the updates and the exceptional location. This property combines turnkey readiness with room to personalize and enjoy the Florida lifestyle. Don’t miss your chance to own an upgraded lake-front home in Rotonda West that checks all the boxes.
Listing Information
Property Type: Residential, Single Family Residence
Status: Active
Bedrooms: 3
Bathrooms: 3
Lot Size: 0.45 Acres
Square Feet: 2,805 sq ft
Year Built: 1991
Garage: Yes
Stories: 1 Story
Construction: Block,Stucco
Subdivision: Rotonda West Broadmoor
Foundation: Slab
County: Charlotte
School Information
Elementary: Vineland Elementary
Middle: L.A. Ainger Middle
High: Lemon Bay High
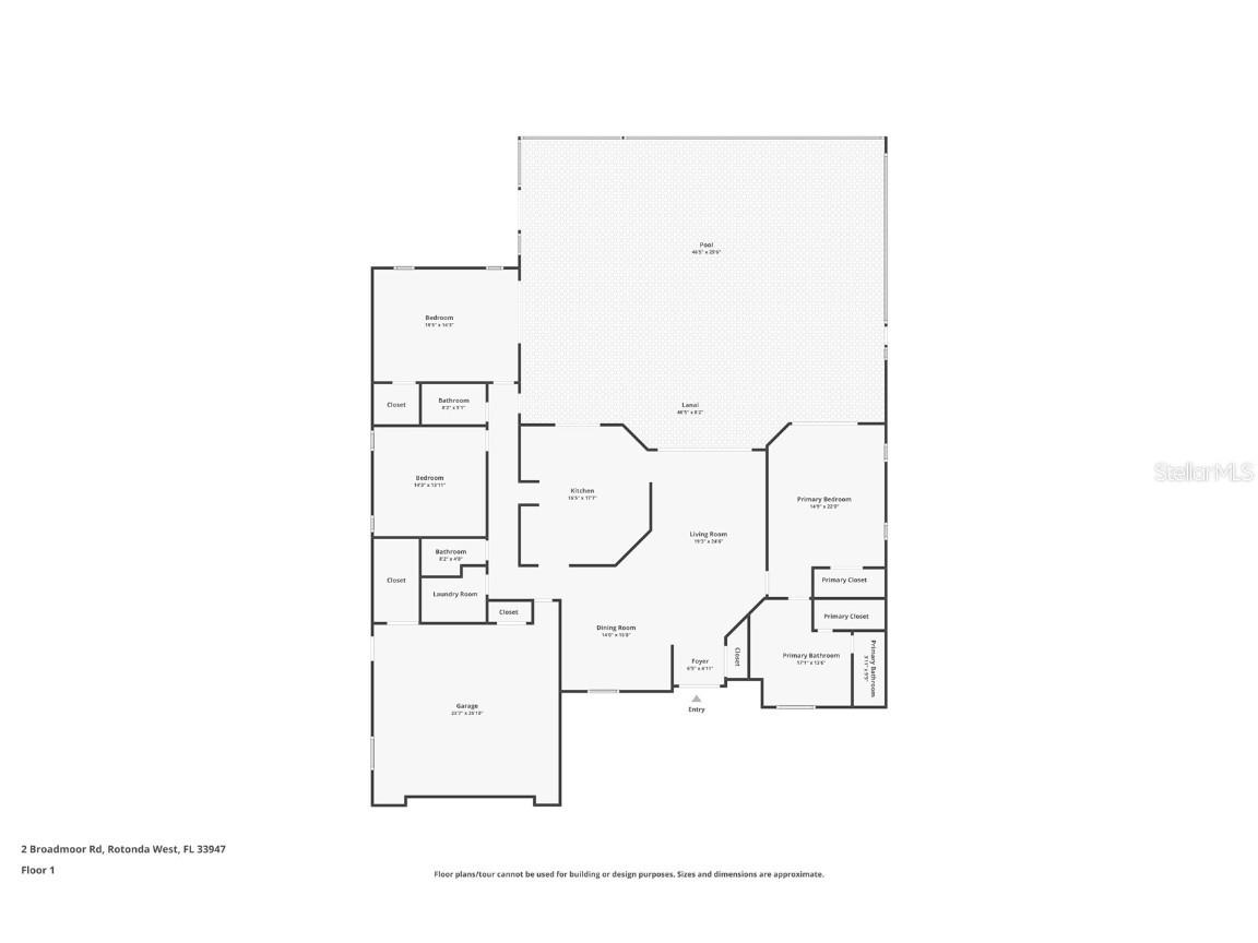
Room Information
Main Floor
Porch: 8.25x46.5
Bedroom 2: 14x14.25
Bathroom 1: 5x8.25
Bathroom 2: 4.75x8.25
Foyer: 5x6.5
Dining Room: 15.75x14
Living Room: 24.5x19.25
Kitchen: 17.75x16.5
Primary Bedroom: 22x14.75
Primary Bathroom: 13.5x17
Bedroom 1: 14.25x18.5
Bathrooms
Full Baths: 2
1/2 Baths: 1
Additonal Room Information
Laundry: Laundry Room, Inside
Interior Features
Appliances: Range, Refrigerator, Washer, Dishwasher, Disposal, Dryer, Microwave
Flooring: Luxury Vinyl,Tile,Wood
Doors/Windows: Window Treatments, Skylight(s), Storm Window(s)
Additional Interior Features: Vaulted Ceiling(s), Ceiling Fan(s), Walk-In Closet(s), Window Treatments, Split Bedrooms, Skylights, Tray Ceiling(s), Built-in Features, High Ceilings, Living/Dining Room, Solid Surface Counters, Stone Counters, Wood Cabinets
Utilities
Water: Public
Sewer: Public Sewer
Other Utilities: Cable Available,Electricity Available,Electricity Connected,High Speed Internet Available,Municipal Utilities,Sewer Available,Sewer Connected,Water Available,Water Connected
Cooling: Ceiling Fan(s), Central Air
Heating: Central, Electric
Exterior / Lot Features
Attached Garage: Attached Garage
Garage Spaces: 2
Parking Description: driveway, Converted Garage, Oversized, Circular Driveway
Roof: Shingle
Pool: Screen Enclosure, In Ground, Gunite
Lot View: Pond,Pool,Water
Lot Dimensions: 42.3x131.2x123.6x25x149.4x78.1
Additional Exterior/Lot Features: Storm/Security Shutters, French Patio Doors, Rain Gutters, Sprinkler/Irrigation, Lighting, Enclosed, Screened, Patio, Porch, Rear Porch, Landscaped
Community Features
Community Features: Tennis Court(s), Playground, Clubhouse, Park
Security Features: Smoke Detector(s)
Association Amenities: Park, Pickleball, Playground, Tennis Court(s), Clubhouse
Homeowners Association: Yes
HOA Dues: $190 / Annually
Driving Directions
From I-75 (or US 41) head toward the Rotonda West area in southwest Florida. Pick your exit that puts you onto State Road 776 (also called Cape Haze Drive) heading east. Stay on SR 776 until you reach Sunnybrook Boulevard and turn right (south) onto Sunnybrook. After a short distance on Sunnybrook, turn left (east) onto Rotonda Circle. Follow Rotonda Circle until you reach Broadmoor Lane (you’ll turn right). Then continue down Broadmoor Lane; 2 Broadmoor Rd will be on the right side — the house is located in the Broadmoor neighborhood of Rotonda West.
Financial Considerations
Terms: Cash,Conventional,FHA,VA Loan
Tax/Property ID: 412024105014
Tax Amount: 6292
Tax Year: 2025
A broker reciprocity listing courtesy: GRANT TEAM REAL ESTATE, LLC
Based on information provided by Stellar MLS as distributed by the MLS GRID. Information from the Internet Data Exchange is provided exclusively for consumers’ personal, non-commercial use, and such information may not be used for any purpose other than to identify prospective properties consumers may be interested in purchasing. This data is deemed reliable but is not guaranteed to be accurate by Edina Realty, Inc., or by the MLS. Edina Realty, Inc., is not a multiple listing service (MLS), nor does it offer MLS access.
Copyright 2025 Stellar MLS as distributed by the MLS GRID. All Rights Reserved.
Payment Calculator
Interest rate and annual percentage rate (APR) are based on current market conditions, are for informational purposes only, are subject to change without notice and may be subject to pricing add-ons related to property type, loan amount, loan-to-value, credit score and other variables. Estimated closing costs used in the APR calculation are assumed to be paid by the borrower at closing. If the closing costs are financed, the loan, APR and payment amounts will be higher. If the down payment is less than 20%, mortgage insurance may be required and could increase the monthly payment and APR. Contact us for details. Additional loan programs may be available. Accuracy is not guaranteed, and all products may not be available in all borrower's geographical areas and are based on their individual situation. This is not a credit decision or a commitment to lend.
Sales History & Tax Summary for 2 Broadmoor Road
Sales History
| Date | Price | Change |
|---|---|---|
| Currently not available. | ||
Tax Summary
| Tax Year | Estimated Market Value | Total Tax |
|---|---|---|
| Currently not available. | ||
Data powered by ATTOM Data Solutions. Copyright© 2025. Information deemed reliable but not guaranteed.
Schools
Schools nearby 2 Broadmoor Road
| Schools in attendance boundaries | Grades | Distance | Rating |
|---|---|---|---|
| Loading... | |||
| Schools nearby | Grades | Distance | Rating |
|---|---|---|---|
| Loading... | |||
Data powered by ATTOM Data Solutions. Copyright© 2025. Information deemed reliable but not guaranteed.
The schools shown represent both the assigned schools and schools by distance based on local school and district attendance boundaries. Attendance boundaries change based on various factors and proximity does not guarantee enrollment eligibility. Please consult your real estate agent and/or the school district to confirm the schools this property is zoned to attend. Information is deemed reliable but not guaranteed.
SchoolDigger ® Rating
The SchoolDigger rating system is a 1-5 scale with 5 as the highest rating. SchoolDigger ranks schools based on test scores supplied by each state's Department of Education. They calculate an average standard score by normalizing and averaging each school's test scores across all tests and grades.
Coming soon properties will soon be on the market, but are not yet available for showings.