200 Ocean Crest Drive #1111 Palm Coast, FL 32137 - ATLANTIC OCEAN
For Sale MLS# FC310674
3 beds 4 baths 1,818 sq ft Condo
Details for 200 Ocean Crest Drive #1111
MLS# FC310674
Description for 200 Ocean Crest Drive #1111, Palm Coast, FL, 32137 - ATLANTIC OCEAN
NO TRICKS - THIS PRICE REDUCTION IS THE ULTIMATE TREAT!!! Your Private Coastal Sanctuary in the Sky!! Perched atop the luxurious Hammock Beach Club resort, this one-of-a-kind penthouse is the crown jewel of Florida’s most exclusive oceanfront community. One of only five like it, this completely reimagined 3-bedroom, 3.5-bath residence blends tropical elegance with modern luxury and effortless coastal living. Step inside to discover a custom floor plan adorned with oversized 36” porcelain tiles in a serene ocean-inspired palette. Soaring 11' tray ceilings, 8' solid-core doors, and NEW impact glass sliders, windows, and shutters fill the home with light while offering ultimate peace of mind. The chef’s kitchen is a showstopper—featuring ceiling-height custom cabinetry with glass insets, quartz countertops, brushed black stainless appliances, and extended storage. A built-in dining bench creates the perfect spot for long, relaxed dinners overlooking the ocean. Each of the three bedrooms offers a private ensuite bath and walk-in closet, plus a newly added half bath for guests. The primary suite stuns with a spa-inspired shower and in-suite washer and dryer, while two private balconies capture breathtaking views of turquoise waters and endless skies. Beyond your penthouse, Hammock Beach Club offers world-class amenities with optional membership: a 91,000 sq. ft. Fantasy Pool Pavilion with lazy river, waterslide, and zero-entry pool, an indoor pool, fitness center, luxurious full-service spa, pickleball and tennis courts, and six dining options from poolside fare to fine oceanfront dining. Golf enthusiasts can tee off on two championship courses—the Jack Nicklaus-designed Ocean Course and the Tom Watson-designed Conservatory Course. Whether you’re seeking an unforgettable vacation retreat or your forever oceanfront escape, this penthouse delivers the pinnacle of luxury, location, and lifestyle. Welcome to your sanctuary in the sky.
Listing Information
Property Type: Residential, Condominium
Status: Active
Bedrooms: 3
Bathrooms: 4
Lot Size: 3.60 Acres
Square Feet: 1,818 sq ft
Year Built: 2003
Stories: 1 Story
Construction: Block,Concrete,Stucco
Property Attached: Yes
Construction Display: New Construction
Subdivision: Hammock Beach Club
Foundation: Slab
County: Flagler
Construction Status: New Construction
School Information
Elementary: Old Kings Elementary
Middle: Indian Trails Middle-Fc
High: Matanzas High
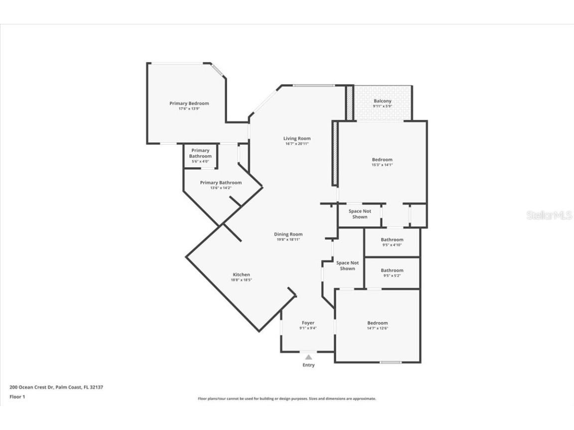
Room Information
Main Floor
Porch:
Kitchen:
Living Room: 19x15
Porch:
Bathroom 3:
Bedroom 3: 13x12
Bathroom 2:
Bedroom 2: 15x14
Primary Bathroom:
Primary Bedroom: 14x13
Dining Room: 13x10
Bathrooms
Full Baths: 3
1/2 Baths: 1
Additonal Room Information
Laundry: Inside, Other
Interior Features
Appliances: Range, Refrigerator, Dishwasher, Disposal, Electric Water Heater, Microwave
Flooring: Porcelain Tile
Additional Interior Features: Tray Ceiling(s), Split Bedrooms, Ceiling Fan(s), High Ceilings, Built-in Features, Living/Dining Room, Main Level Primary, Walk-In Closet(s), Solid Surface Counters, Stone Counters, Open Floorplan, Kitchen/Family Room Combo, Wood Cabinets
Utilities
Water: Public
Sewer: Public Sewer
Other Utilities: Cable Connected,Electricity Connected,Sewer Connected,Underground Utilities,Water Connected
Cooling: Ceiling Fan(s), Central Air
Heating: Central, Electric
Exterior / Lot Features
Parking Description: Covered, Assigned, Open, Common, Electric Vehicle Charging Station(s), Golf Cart Garage, Guest
Roof: Tile
Lot View: Beach,Golf Course,Ocean,Water
Additional Exterior/Lot Features: Balcony, Lighting, Storage, Balcony, Covered, Rear Porch, Landscaped
Waterfront Details
Standard Water Body: ATLANTIC OCEAN
Water Front Features: Ocean Access, Gulf Access, Beach Access
Community Features
Community Features: Golf, Waterfront, Sidewalks, Gated, Golf Carts OK, Recreation Area, Water Access, Community Mailbox
Security Features: Gated Community, Gated with Guard
HOA Dues Include: Insurance, Association Management, Reserve Fund, Road Maintenance, Maintenance Grounds, Pest Control, Common Areas, Maintenance Structure, Taxes, Trash, Water, Security, Sewer, Internet, Cable TV
Driving Directions
I-95 and Exit #289. Continue on Palm Coast Pkwy over the toll bridge and stay straight after stop sign until you intersect 16th Road. Turn Right onto 16th Road and 1st Left to the Guard Gate Entrance of Hammock Beach Resort.
Financial Considerations
Terms: Cash,Conventional
Tax/Property ID: 04-11-31-3605-00010-1111
Tax Amount: 6574.33
Tax Year: 2024
A broker reciprocity listing courtesy: COASTAL GATEWAY REAL ESTATE GR
Based on information provided by Stellar MLS as distributed by the MLS GRID. Information from the Internet Data Exchange is provided exclusively for consumers’ personal, non-commercial use, and such information may not be used for any purpose other than to identify prospective properties consumers may be interested in purchasing. This data is deemed reliable but is not guaranteed to be accurate by Edina Realty, Inc., or by the MLS. Edina Realty, Inc., is not a multiple listing service (MLS), nor does it offer MLS access.
Copyright 2025 Stellar MLS as distributed by the MLS GRID. All Rights Reserved.
Payment Calculator
Interest rate and annual percentage rate (APR) are based on current market conditions, are for informational purposes only, are subject to change without notice and may be subject to pricing add-ons related to property type, loan amount, loan-to-value, credit score and other variables. Estimated closing costs used in the APR calculation are assumed to be paid by the borrower at closing. If the closing costs are financed, the loan, APR and payment amounts will be higher. If the down payment is less than 20%, mortgage insurance may be required and could increase the monthly payment and APR. Contact us for details. Additional loan programs may be available. Accuracy is not guaranteed, and all products may not be available in all borrower's geographical areas and are based on their individual situation. This is not a credit decision or a commitment to lend.
Sales History & Tax Summary for 200 Ocean Crest Drive #1111
Sales History
| Date | Price | Change |
|---|---|---|
| Currently not available. | ||
Tax Summary
| Tax Year | Estimated Market Value | Total Tax |
|---|---|---|
| Currently not available. | ||
Data powered by ATTOM Data Solutions. Copyright© 2025. Information deemed reliable but not guaranteed.
Schools
Schools nearby 200 Ocean Crest Drive #1111
| Schools in attendance boundaries | Grades | Distance | Rating |
|---|---|---|---|
| Loading... | |||
| Schools nearby | Grades | Distance | Rating |
|---|---|---|---|
| Loading... | |||
Data powered by ATTOM Data Solutions. Copyright© 2025. Information deemed reliable but not guaranteed.
The schools shown represent both the assigned schools and schools by distance based on local school and district attendance boundaries. Attendance boundaries change based on various factors and proximity does not guarantee enrollment eligibility. Please consult your real estate agent and/or the school district to confirm the schools this property is zoned to attend. Information is deemed reliable but not guaranteed.
SchoolDigger ® Rating
The SchoolDigger rating system is a 1-5 scale with 5 as the highest rating. SchoolDigger ranks schools based on test scores supplied by each state's Department of Education. They calculate an average standard score by normalizing and averaging each school's test scores across all tests and grades.
Coming soon properties will soon be on the market, but are not yet available for showings.