200 Ocean Crest Drive #646 Palm Coast, FL 32137
For Sale MLS# FC312376
3 beds 4 baths 2,058 sq ft Condo
Details for 200 Ocean Crest Drive #646
MLS# FC312376
Description for 200 Ocean Crest Drive #646, Palm Coast, FL, 32137
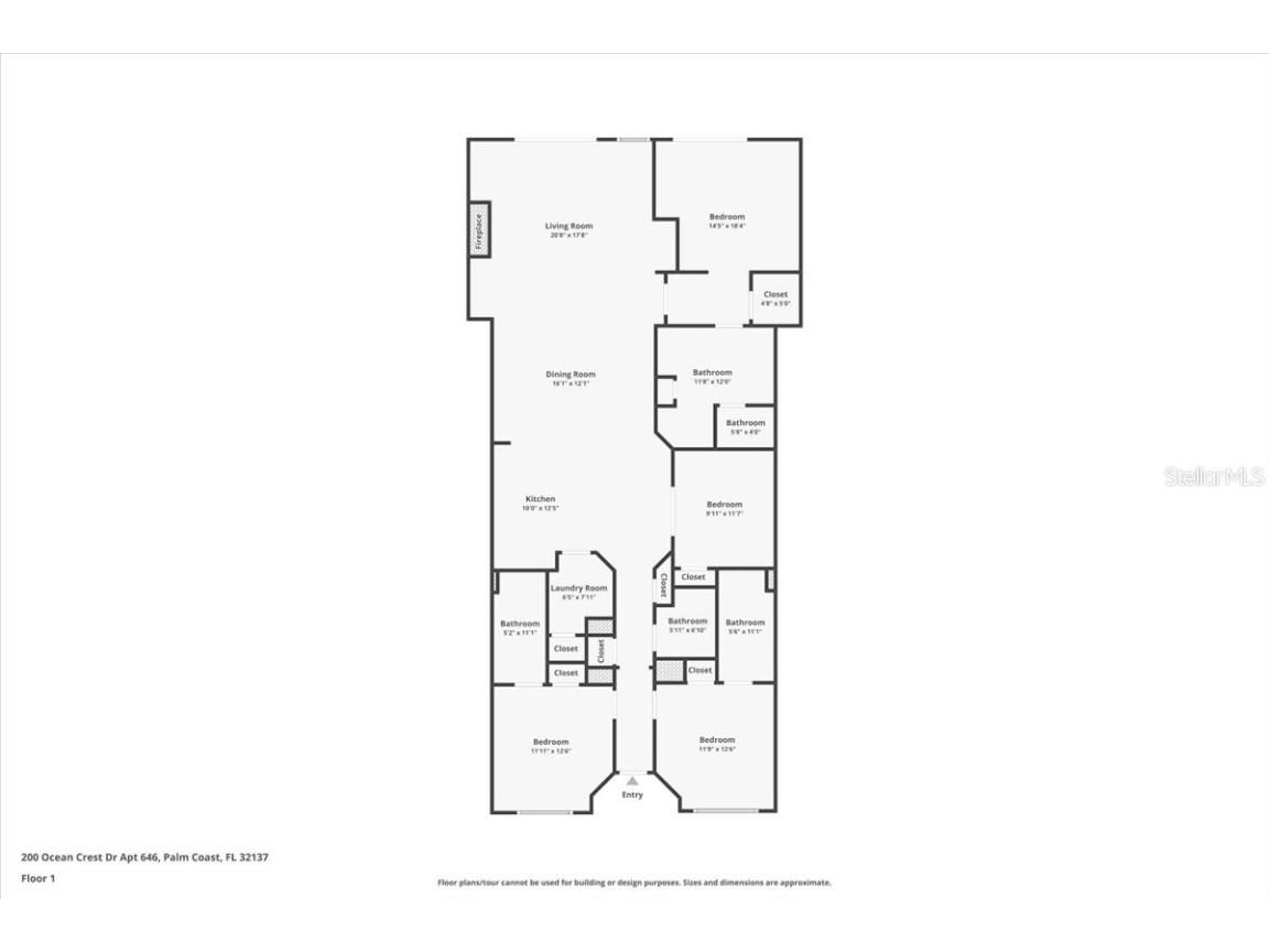
Perched atop the South Tower at Hammock Beach Resort, this 3-bedroom, 3.5-bath penthouse with a versatile flex room offers unrivaled privacy, refined comfort, and some of the most commanding ocean views in the entire community. The private elevator entry opens to a foyer framed by two guest suites, each with walk-in closets and ensuite baths. Across the main living area, travertine tile floors, tray ceilings, and crown molding highlight the craftsmanship that sets this residence apart. The kitchen is outfitted with granite counters, stainless steel appliances, tile backsplash, and a walk-in pantry, positioned to overlook the dining and living spaces. A wet bar with wine fridge, additional storage, and a gas fireplace add both function and character. Expansive sliding doors open to a balcony that captures unobstructed Atlantic views and looks directly over one of Hammock Beach’s seven pools. A set of French doors leads to the flex room, easily adapted for a home office, den, or overflow guest space. The primary suite extends to the balcony as well, and its bath features a jetted tub, walk-in shower, dual vanities, and separate water closet. A full laundry room with cabinetry completes the interior. As a member of The Club at Hammock Beach, you’ll have access to a resort lifestyle few places can rival: multiple pools including a lazy river and waterslide, a world-class spa and fitness center, tennis and pickleball courts, two championship golf courses, and a selection of upscale dining experiences. Whether you choose to enjoy this residence as a year-round coastal home or place it in the highly successful Hammock Beach rental program, it offers both an enviable lifestyle and proven investment potential—all with the Atlantic as your backdrop.
Listing Information
Property Type: Residential, Condominium
Status: Active
Bedrooms: 3
Bathrooms: 4
Lot Size: 0.06 Acres
Square Feet: 2,058 sq ft
Year Built: 2007
Garage: Yes
Stories: 1 Story
Construction: Block,Concrete,Stucco
Construction Display: New Construction
Subdivision: Ocean Towers Hammock Beach
Foundation: Block,Slab
County: Flagler
Construction Status: New Construction
School Information
Elementary: Belle Terre Elementary
Middle: Imagine Schools Town Center (K-8)
High: Matanzas High
Room Information
Main Floor
Bathroom 4:
Living Room:
Kitchen:
Bathroom 3:
Bathroom 2:
Primary Bathroom:
Bedroom 3:
Bedroom 2:
Primary Bedroom:
Bonus Room:
Laundry:
Bathrooms
Full Baths: 3
1/2 Baths: 1
Additonal Room Information
Laundry: Inside, Laundry Room
Interior Features
Appliances: Bar Fridge, Range Hood, Washer, Range, Refrigerator, Cooktop, Dishwasher, Dryer, Microwave
Flooring: Luxury Vinyl,Tile,Travertine
Doors/Windows: Rods, Window Treatments, Drapes, Blinds
Fireplaces: Gas
Additional Interior Features: Split Bedrooms, Wet Bar, Ceiling Fan(s), Elevator, Tray Ceiling(s), Built-in Features, Walk-In Closet(s), Window Treatments, Living/Dining Room, High Ceilings, Open Floorplan, Solid Surface Counters, Wood Cabinets, Crown Molding, Main Level Primary
Utilities
Water: Public
Sewer: Public Sewer
Other Utilities: Cable Available,Cable Connected,Electricity Available,Electricity Connected,High Speed Internet Available,Municipal Utilities,Phone Available,Sewer Available,Sewer Connected,Underground Utilities,Water Available,Water Connected
Cooling: Ceiling Fan(s), Central Air
Heating: Heat Pump, Electric
Exterior / Lot Features
Garage Spaces: 30
Parking Description: Covered, Assigned, Open
Roof: Tile
Pool: In Ground, Community
Lot View: Beach,Golf Course,Ocean,Pool,Trees/Woods,Water
Additional Exterior/Lot Features: Balcony, Lighting, Balcony, Covered, Patio, Porch, Rear Porch
Waterfront Details
Water Front Features: Beach Access
Community Features
Community Features: Sidewalks, Pool, Tennis Court(s), Golf, Gated, Restaurant, Fitness, Golf Carts OK
Security Features: Secured Garage/Parking, Smoke Detector(s), Key Card Entry, Gated Community, Gated with Guard
HOA Dues Include: Insurance, Maintenance Grounds, Pest Control, Maintenance Structure, Internet, Cable TV, Water, Security, Sewer, Trash
Homeowners Association: Yes
HOA Dues: $4,334 / Quarterly
Driving Directions
I-95 to Exit 289. East on Palm Coast Pkwy. Over Hammock Dunes bridge. Straight through stop sign then take Right on to 16th Rd. Turn left at entrance of Hammock Beach Resort. Guard at gate will allow you through.
Financial Considerations
Terms: Cash,Conventional
Tax/Property ID: 04-11-31-3606-00050-682H
Tax Amount: 10655.73
Tax Year: 2024
A broker reciprocity listing courtesy: COASTAL GATEWAY REAL ESTATE GR
Based on information provided by Stellar MLS as distributed by the MLS GRID. Information from the Internet Data Exchange is provided exclusively for consumers’ personal, non-commercial use, and such information may not be used for any purpose other than to identify prospective properties consumers may be interested in purchasing. This data is deemed reliable but is not guaranteed to be accurate by Edina Realty, Inc., or by the MLS. Edina Realty, Inc., is not a multiple listing service (MLS), nor does it offer MLS access.
Copyright 2026 Stellar MLS as distributed by the MLS GRID. All Rights Reserved.
Payment Calculator
Interest rate and annual percentage rate (APR) are based on current market conditions, are for informational purposes only, are subject to change without notice and may be subject to pricing add-ons related to property type, loan amount, loan-to-value, credit score and other variables. Estimated closing costs used in the APR calculation are assumed to be paid by the borrower at closing. If the closing costs are financed, the loan, APR and payment amounts will be higher. If the down payment is less than 20%, mortgage insurance may be required and could increase the monthly payment and APR. Contact us for details. Additional loan programs may be available. Accuracy is not guaranteed, and all products may not be available in all borrower's geographical areas and are based on their individual situation. This is not a credit decision or a commitment to lend.
Sales History & Tax Summary for 200 Ocean Crest Drive #646
Sales History
| Date | Price | |
|---|---|---|
| Currently not available. | ||
Tax Summary
| Tax Year | Estimated Market Value | Total Tax |
|---|---|---|
| Currently not available. | ||
Data powered by ATTOM Data Solutions. Copyright© 2026. Information deemed reliable but not guaranteed.
Schools
Schools nearby 200 Ocean Crest Drive #646
| Schools in attendance boundaries | Grades | Distance | Rating |
|---|---|---|---|
| Loading... | |||
| Schools nearby | Grades | Distance | Rating |
|---|---|---|---|
| Loading... | |||
Data powered by ATTOM Data Solutions. Copyright© 2026. Information deemed reliable but not guaranteed.
The schools shown represent both the assigned schools and schools by distance based on local school and district attendance boundaries. Attendance boundaries change based on various factors and proximity does not guarantee enrollment eligibility. Please consult your real estate agent and/or the school district to confirm the schools this property is zoned to attend. Information is deemed reliable but not guaranteed.
SchoolDigger ® Rating
The SchoolDigger rating system is a 1-5 scale with 5 as the highest rating. SchoolDigger ranks schools based on test scores supplied by each state's Department of Education. They calculate an average standard score by normalizing and averaging each school's test scores across all tests and grades.
Coming soon properties will soon be on the market, but are not yet available for showings.