$475,000
2000 76th Street N Saint Petersburg, FL 33710
For Sale MLS# TB8446113
3 beds 2 baths 1,309 sq ft Single Family
Details for 2000 76th Street N
MLS# TB8446113
Description for 2000 76th Street N, Saint Petersburg, FL, 33710
Beautifully Updated 3-Bedroom, 2-Bath Home in a Sought-After St. Petersburg Neighborhood – Not in a Flood Zone! Welcome to this stunning move-in ready single-family home that truly has it all! Featuring 3 spacious bedrooms and 2 remodeled bathrooms, this home blends modern comfort with practical upgrades throughout. Step inside to find gorgeous laminate flooring flowing through the main living areas, while both bathrooms shine with custom tile work and contemporary finishes. The kitchen boasts newer appliances, perfect for everyday cooking or entertaining. Major updates include a 1-year-old roof, newer AC system with all new ductwork and insulation, and a new electrical panel for peace of mind also gutters were added for drainage. Outside, enjoy the convenience of a newly paved and expanded driveway—spacious enough to accommodate multiple vehicles. There’s also a new garage door and motor, plus large side gates on both sides of the home, ideal for storing a boat or RV. A large storage shed and a one-car garage provide even more room for tools, toys, and hobbies. Along with a nice sized screened in back porch. Located in a highly sought-after area, this property is not in a flood zone and sustained no damage during recent storms—offering both safety and peace of mind. Don’t miss your chance to own this fully updated gem close to shopping, dining, and the best of St. Pete living.
Listing Information
Property Type: Residential, Single Family Residence
Status: Active
Bedrooms: 3
Bathrooms: 2
Lot Size: 0.19 Acres
Square Feet: 1,309 sq ft
Year Built: 1958
Garage: Yes
Stories: 1 Story
Construction: Block
Subdivision: Jungle Country Club 4th Add
Foundation: Block
County: Pinellas
School Information
Elementary: Azalea Elementary-Pn
Middle: Azalea Middle-Pn
High: Boca Ciega High-Pn
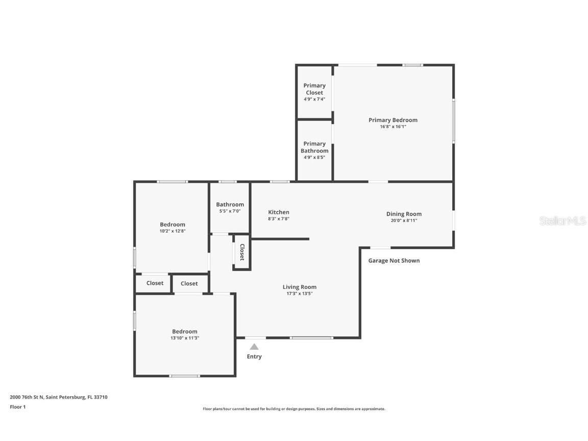
Room Information
Main Floor
Living Room: 8x10
Primary Bedroom: 17x15
Kitchen: 8x10
Bathrooms
Full Baths: 2
Additonal Room Information
Laundry: In Garage
Interior Features
Appliances: Dishwasher, Disposal, Dryer, Microwave, Range, Refrigerator, Washer
Flooring: Ceramic Tile,Laminate
Additional Interior Features: Stone Counters
Utilities
Water: Public
Sewer: Public Sewer
Other Utilities: Cable Connected,Electricity Connected,Water Connected
Cooling: Central Air
Heating: Electric
Exterior / Lot Features
Attached Garage: Attached Garage
Garage Spaces: 1
Roof: Shingle
Lot Dimensions: 74x110
Additional Exterior/Lot Features: Storage
Community Features
Community Features: Street Lights
Driving Directions
Head south on Starkey road then turn left on 22nd ave and then right on 76th St N. The house is on the right 2000 76th St N.
Financial Considerations
Terms: Cash,Conventional,FHA,VA Loan
Tax/Property ID: 18-31-16-44640-002-0320
Tax Amount: 5089.85
Tax Year: 2024
A broker reciprocity listing courtesy: THE C SMITH REAL ESTATE GROUP LLC
Based on information provided by Stellar MLS as distributed by the MLS GRID. Information from the Internet Data Exchange is provided exclusively for consumers’ personal, non-commercial use, and such information may not be used for any purpose other than to identify prospective properties consumers may be interested in purchasing. This data is deemed reliable but is not guaranteed to be accurate by Edina Realty, Inc., or by the MLS. Edina Realty, Inc., is not a multiple listing service (MLS), nor does it offer MLS access.
Copyright 2025 Stellar MLS as distributed by the MLS GRID. All Rights Reserved.
Payment Calculator
Interest rate and annual percentage rate (APR) are based on current market conditions, are for informational purposes only, are subject to change without notice and may be subject to pricing add-ons related to property type, loan amount, loan-to-value, credit score and other variables. Estimated closing costs used in the APR calculation are assumed to be paid by the borrower at closing. If the closing costs are financed, the loan, APR and payment amounts will be higher. If the down payment is less than 20%, mortgage insurance may be required and could increase the monthly payment and APR. Contact us for details. Additional loan programs may be available. Accuracy is not guaranteed, and all products may not be available in all borrower's geographical areas and are based on their individual situation. This is not a credit decision or a commitment to lend.
Sales History & Tax Summary for 2000 76th Street N
Sales History
| Date | Price | Change |
|---|---|---|
| Currently not available. | ||
Tax Summary
| Tax Year | Estimated Market Value | Total Tax |
|---|---|---|
| Currently not available. | ||
Data powered by ATTOM Data Solutions. Copyright© 2025. Information deemed reliable but not guaranteed.
Schools
Schools nearby 2000 76th Street N
| Schools in attendance boundaries | Grades | Distance | Rating |
|---|---|---|---|
| Loading... | |||
| Schools nearby | Grades | Distance | Rating |
|---|---|---|---|
| Loading... | |||
Data powered by ATTOM Data Solutions. Copyright© 2025. Information deemed reliable but not guaranteed.
The schools shown represent both the assigned schools and schools by distance based on local school and district attendance boundaries. Attendance boundaries change based on various factors and proximity does not guarantee enrollment eligibility. Please consult your real estate agent and/or the school district to confirm the schools this property is zoned to attend. Information is deemed reliable but not guaranteed.
SchoolDigger ® Rating
The SchoolDigger rating system is a 1-5 scale with 5 as the highest rating. SchoolDigger ranks schools based on test scores supplied by each state's Department of Education. They calculate an average standard score by normalizing and averaging each school's test scores across all tests and grades.
Coming soon properties will soon be on the market, but are not yet available for showings.