$6,700,000
20051 Gulf Boulevard Indian Shores, FL 33785 - THE NARROWS
For Sale MLS# U8252027
6 beds 6 baths 4,602 sq ft Single Family
Details for 20051 Gulf Boulevard
MLS# U8252027
Description for 20051 Gulf Boulevard, Indian Shores, FL, 33785 - THE NARROWS
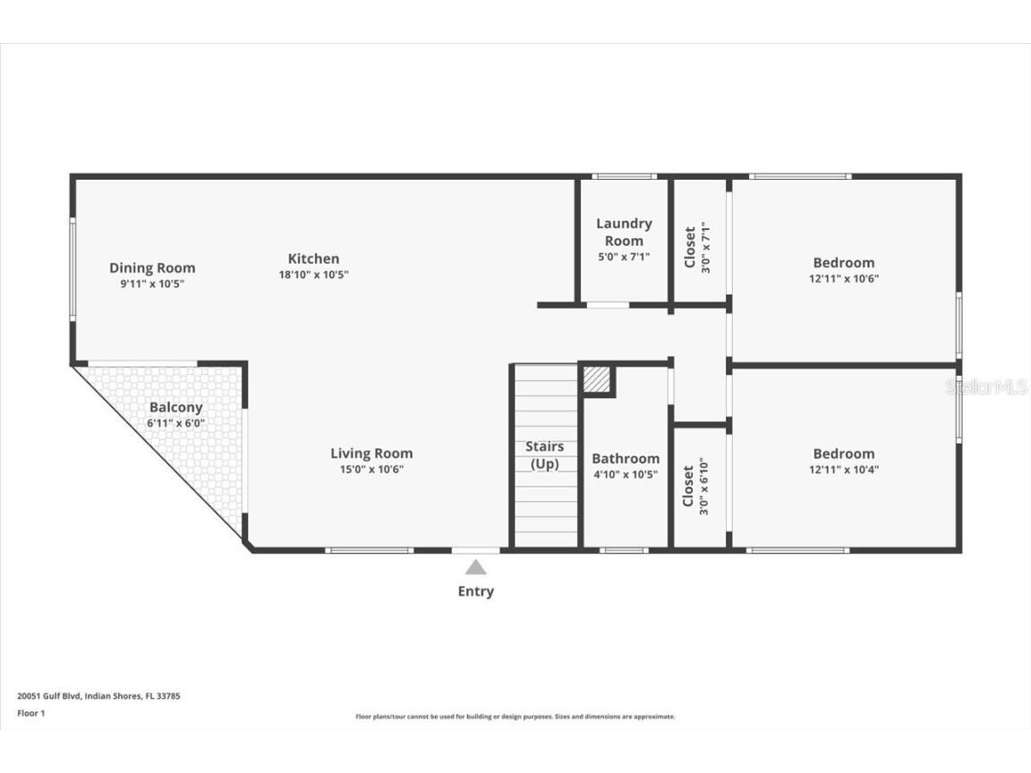
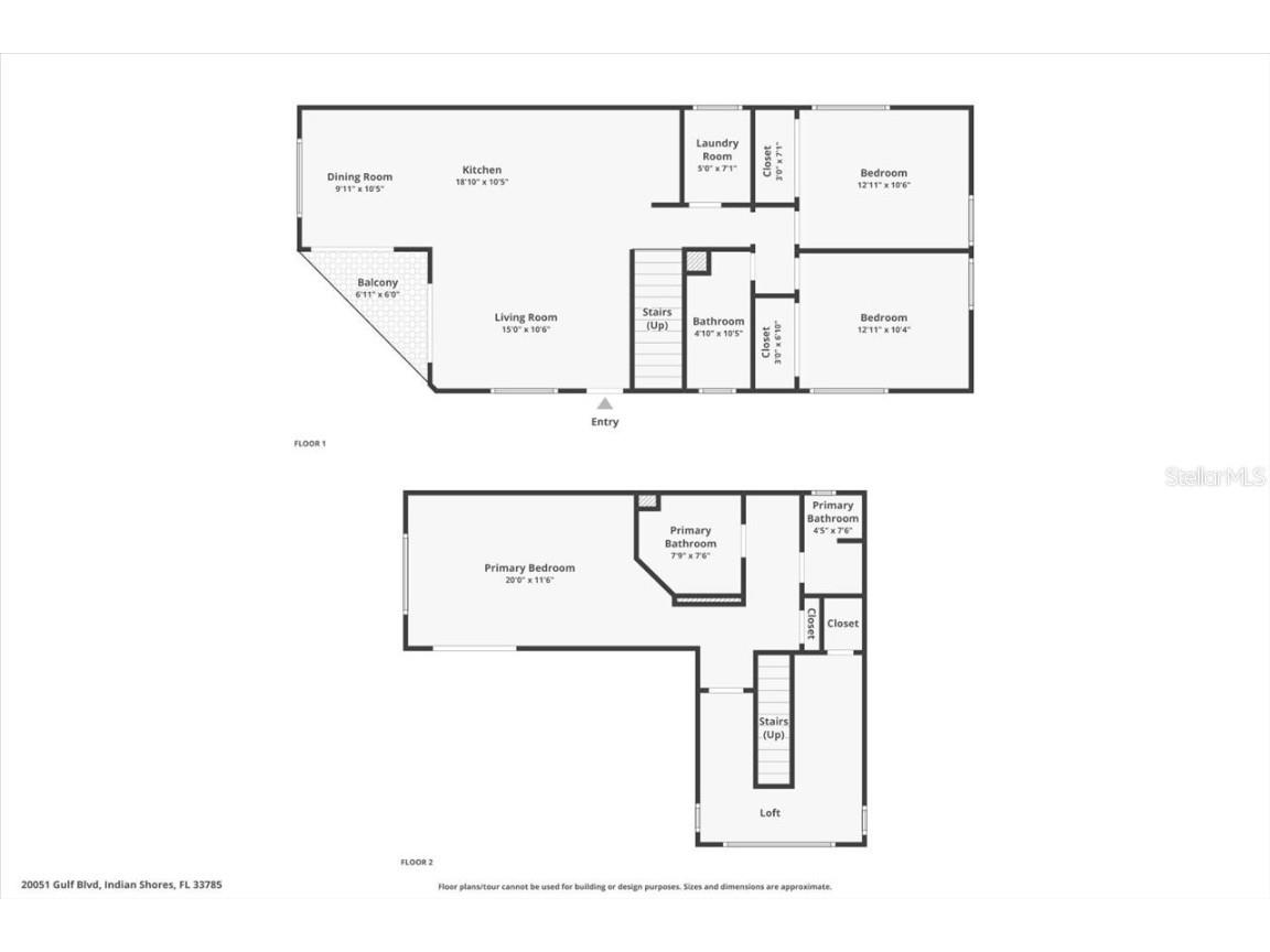
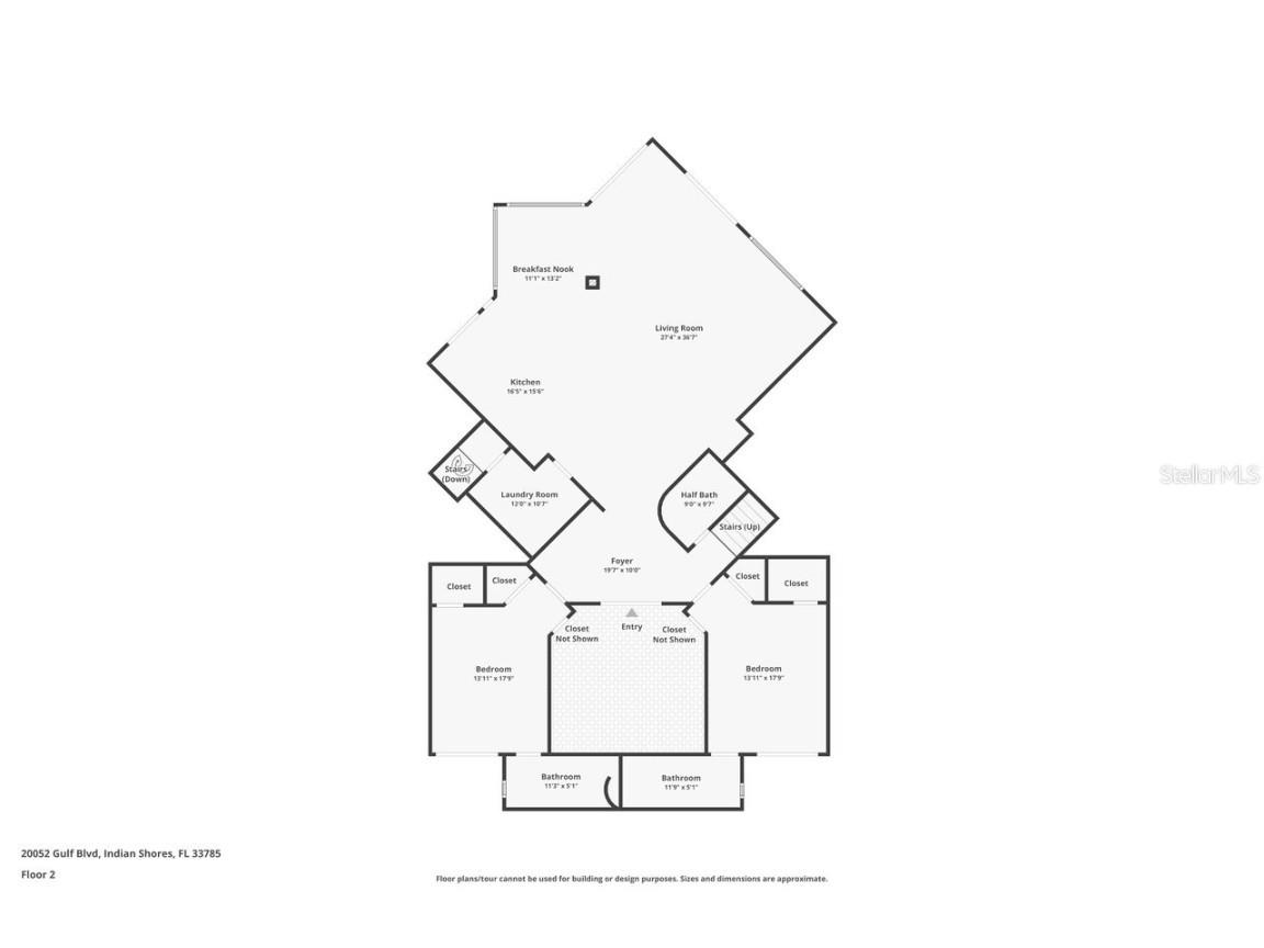
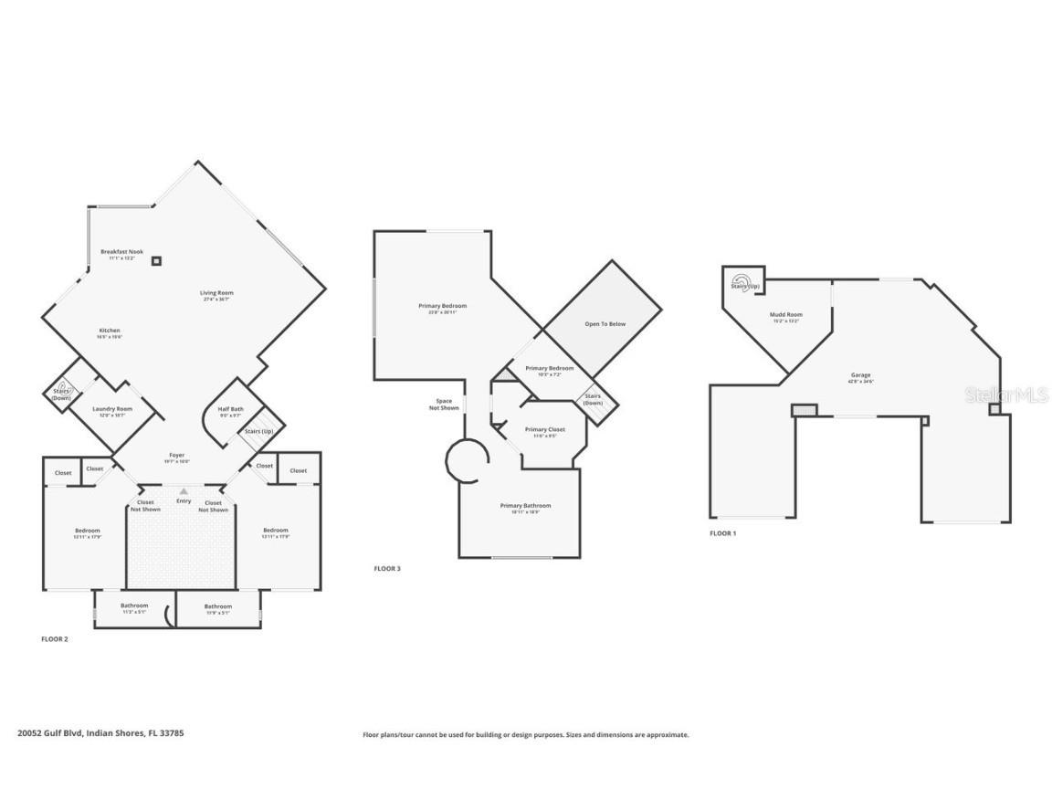
No damage from last hurricane season. Ready for new owner to move in This is an extraordinarily unique and especially attractive Beach front to Bay front opportunity in Indian Shores, known for its prime location in what locals call “The Narrows” where lucky residents can enjoy both the pristine powdery sand beach and Gulf of Mexico sunsets as well as Sunrises and bay views from your guest home and boat dock on the bay and Intracoastal waterway. Exceptional custom built and only one owner, Dual-House investment or extended family compound opportunity where one can experience the ultimate coastal lifestyle with this rare chance to own two stunning homes. The larger home sits on the shore of the Gulf of Mexico with Key West vibes featuring three ensuite bedrooms. The Primary bedroom/bath retreat is perched on the third level all to itself. Extensive balconies on all levels and off all of the rooms welcome you to enjoy the wonderful breezes and vistas. The open great room living and kitchen area features soaring ceilings and captivating Gulf and Beach views. The guest home is nestled between the mangroves on the bayside with your private dock and boat lift along the deep water Intracoastal waterway. This captivating guest home would also make a wonderful office or art/music studio for those who need to have some separation to focus on work or their skill. The guest home features another 3 bedrooms and two baths again with the Primary bedroom/bath retreat being upstairs all to itself. The guest home kitchen and living area is also an open great room design with specular views of nature, the water and boats slowly passing by in the no wake zone. Indian Shores is on the western coast of Tampa Bay with easy access to Tampa and St Petersburg/Clearwater Airports. • This stunning property is walking distance or a short golf cart or bike ride to an array of restaurants, shopping, and amenities • Convenient yachting access to the Gulf of Mexico via Clearwater Pass to the north or Johns Pass to the south • Legal for short-term rentals are allowed making this a great investment opportunity if desired. There are two garage parking spaces in addition to under building parking and an enormous drive way with more than ample guest parking. Live in a vacation paradise full-time or part time with this extraordinary dream oasis. Property is only being offered as a combined package including both 20051 and 20052 Gulf Blvd.
Listing Information
Property Type: Residential, Single Family Residence
Status: Active
Bedrooms: 6
Bathrooms: 6
Lot Size: 0.41 Acres
Square Feet: 4,602 sq ft
Year Built: 1985
Stories: 3 Story
Construction: Cement Siding,Wood Frame
Subdivision: Acreage & Unrec
Foundation: Pillar/Post/Pier
County: Pinellas
Room Information
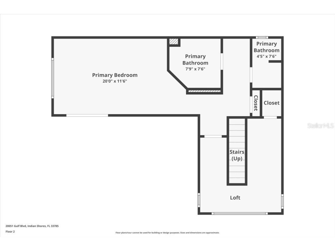
Upper Floor
Primary Bedroom: 11.6x20
Kitchen: 10.5x18.1
Living Room: 10.6x15
Bathrooms
Full Baths: 5
1/2 Baths: 1
Additonal Room Information
Laundry: Inside, Laundry Room
Interior Features
Appliances: Convection Oven, Electric Water Heater, Range, Refrigerator, Dishwasher, Disposal, Dryer, Microwave
Flooring: Ceramic Tile,Engineered Hardwood,Wood
Doors/Windows: Window Treatments, Shutters
Additional Interior Features: Eat-In Kitchen, Ceiling Fan(s), Window Treatments, Loft, Walk-In Closet(s), Built-in Features, Cathedral Ceiling(s), High Ceilings, Crown Molding, Upper Level Primary, Open Floorplan, Stone Counters, Kitchen/Family Room Combo, Wood Cabinets
Utilities
Water: Public
Sewer: Public Sewer
Other Utilities: Electricity Connected,Municipal Utilities,Sewer Connected,Underground Utilities,Water Connected
Cooling: Ceiling Fan(s), Central Air
Heating: Central
Exterior / Lot Features
Roof: Shingle
Lot View: Bay,Intercoastal,Water
Lot Dimensions: 50x359
Additional Exterior/Lot Features: Storm/Security Shutters, Rain Gutters, Sprinkler/Irrigation, Covered, Deck, Patio, Porch, Rear Porch, Landscaped
Waterfront Details
Standard Water Body: THE NARROWS
Water Front Features: Gulf Access, Intracoastal Access, Beach Access
Community Features
Community Features: Street Lights
Driving Directions
Follow Walsingham Rd across bridge to Gulf Blvd., head south on Gulf Blvd. to 20051 and 20052 Gulf Blvd. Just north of Caddy's Indian Shores
Financial Considerations
Terms: Cash,Conventional
Tax/Property ID: 13-30-14-00000-430-0700
Tax Amount: 78365
Tax Year: 2024
A broker reciprocity listing courtesy: BURWELL REAL ESTATE
Based on information provided by Stellar MLS as distributed by the MLS GRID. Information from the Internet Data Exchange is provided exclusively for consumers’ personal, non-commercial use, and such information may not be used for any purpose other than to identify prospective properties consumers may be interested in purchasing. This data is deemed reliable but is not guaranteed to be accurate by Edina Realty, Inc., or by the MLS. Edina Realty, Inc., is not a multiple listing service (MLS), nor does it offer MLS access.
Copyright 2025 Stellar MLS as distributed by the MLS GRID. All Rights Reserved.
Payment Calculator
Interest rate and annual percentage rate (APR) are based on current market conditions, are for informational purposes only, are subject to change without notice and may be subject to pricing add-ons related to property type, loan amount, loan-to-value, credit score and other variables. Estimated closing costs used in the APR calculation are assumed to be paid by the borrower at closing. If the closing costs are financed, the loan, APR and payment amounts will be higher. If the down payment is less than 20%, mortgage insurance may be required and could increase the monthly payment and APR. Contact us for details. Additional loan programs may be available. Accuracy is not guaranteed, and all products may not be available in all borrower's geographical areas and are based on their individual situation. This is not a credit decision or a commitment to lend.
Sales History & Tax Summary for 20051 Gulf Boulevard
Sales History
| Date | Price | Change |
|---|---|---|
| Currently not available. | ||
Tax Summary
| Tax Year | Estimated Market Value | Total Tax |
|---|---|---|
| Currently not available. | ||
Data powered by ATTOM Data Solutions. Copyright© 2025. Information deemed reliable but not guaranteed.
Schools
Schools nearby 20051 Gulf Boulevard
| Schools in attendance boundaries | Grades | Distance | Rating |
|---|---|---|---|
| Loading... | |||
| Schools nearby | Grades | Distance | Rating |
|---|---|---|---|
| Loading... | |||
Data powered by ATTOM Data Solutions. Copyright© 2025. Information deemed reliable but not guaranteed.
The schools shown represent both the assigned schools and schools by distance based on local school and district attendance boundaries. Attendance boundaries change based on various factors and proximity does not guarantee enrollment eligibility. Please consult your real estate agent and/or the school district to confirm the schools this property is zoned to attend. Information is deemed reliable but not guaranteed.
SchoolDigger ® Rating
The SchoolDigger rating system is a 1-5 scale with 5 as the highest rating. SchoolDigger ranks schools based on test scores supplied by each state's Department of Education. They calculate an average standard score by normalizing and averaging each school's test scores across all tests and grades.
Coming soon properties will soon be on the market, but are not yet available for showings.