2009 Rankin Street Kissimmee, FL 34744
For Sale MLS# O6348091
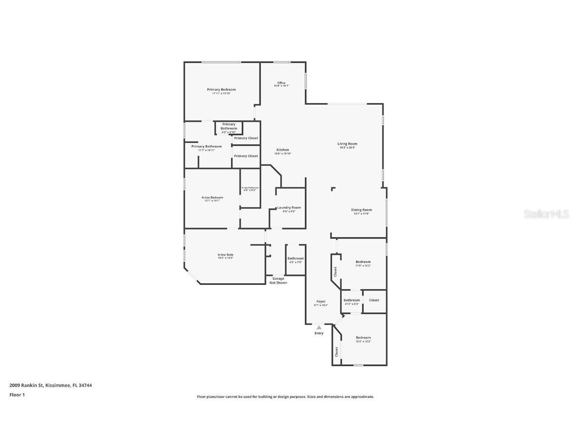
4 beds 4 baths 2,851 sq ft Single Family
Details for 2009 Rankin Street
MLS# O6348091
Description for 2009 Rankin Street, Kissimmee, FL, 34744
Welcome to 2009 Rankin St, where modern living meets thoughtful upgrades in the sought-after community of Kindred. Built in 2023, this immaculate multigenerational home looks and feels better than new—with every inch of space improved, enhanced, and meticulously maintained. Step inside to discover a true smart home experience with Deako smart light switches, a smart front door lock, thermostat, garage door, refrigerator, washer/dryer, and alarm system—all easily controlled from your phone. Even the ceiling fans are app-controlled, blending comfort and technology seamlessly. Designed with functionality and elegance, the home features tray ceilings in the dining room, living room, primary suite, entryway, and even in the private in-law suite, creating an elevated feel throughout. The layout offers space for everyone, with a primary retreat boasting a walk-in closet and granite-adorned en-suite, plus a full in-law suite with its own living room, bedroom with walk-in closet, and private bath—perfect for extended family or guests. The kitchen is the heart of the home, showcasing granite countertops, stainless appliances (all included!), and a walk-in pantry that has been customized with extra shelving for maximum storage. Every closet and the laundry room have been upgraded with additional shelving and cabinetry to make organizing effortless. Tile floors flow through the main living areas while soft carpet adds warmth in the bedrooms. Step outside to your conservation lot with no rear neighbors, fully fenced for privacy and complete with a wood deck and covered lanai featuring a ceiling fan—perfect for enjoying Florida evenings. With a 3-car garage, this home balances beauty and practicality. And with all systems and appliances just 2 years old, you’ll have peace of mind knowing it’s move-in ready with none of the wait or added costs of new construction. Living in Kindred means resort-style amenities right outside your door: multiple community pools, clubhouse, fitness center, playground, dog park, tennis court, and scenic walking trails. Zoned for the new Cross Prairie K-8 School, families will love being just a 5-minute walk away. Plus, the location can’t be beat—only 10 minutes to Publix, about 45 minutes to Disney and Universal, a little over 30 minutes to Orlando International Airport, and under 1.5 hours to the beach. This is more than a house—it’s a better-than-new home designed for convenience, comfort, and connection. Don’t wait to make it yours! Want to see the video tour? Click here: https://drive.google.com/file/d/1SHYbjKTiKwX8rhIWzHQpXWfUUgFyavQL/view?usp=sharing
Listing Information
Property Type: Residential, Single Family Residence
Status: Active
Bedrooms: 4
Bathrooms: 4
Lot Size: 0.17 Acres
Square Feet: 2,851 sq ft
Year Built: 2023
Garage: Yes
Stories: 1 Story
Construction: Block,Concrete,Stucco
Subdivision: Kindred Ph 3a
Builder: DR Horton
Foundation: Slab
County: Osceola
School Information
High: Gateway High School (9 12)
Room Information
Main Floor
Kitchen: 19x10
Porch: 19.4x10
Living Room: 19.9x19.4
Dining Room: 11.8x12.9
Bedroom 4: 14x12
Bedroom 3: 11.7x12
Bedroom 2: 12x10.11
Primary Bedroom: 13.9x18.2
Bathrooms
Full Baths: 3
1/2 Baths: 1
Additonal Room Information
Laundry: Inside, Washer Hookup, Laundry Room, Electric Dryer Hookup
Interior Features
Appliances: Washer, Microwave, Range, Refrigerator, Dishwasher, Disposal, Dryer, Electric Water Heater
Flooring: Carpet,Ceramic Tile
Additional Interior Features: Eat-In Kitchen, Walk-In Closet(s), Ceiling Fan(s), Separate/Formal Dining Room, Smart Home, High Ceilings, Open Floorplan, Main Level Primary, Kitchen/Family Room Combo, Stone Counters
Utilities
Water: Public
Sewer: Public Sewer
Other Utilities: Electricity Connected,High Speed Internet Available,Sewer Connected,Water Connected
Cooling: Ceiling Fan(s), Central Air
Heating: Electric, Central
Exterior / Lot Features
Attached Garage: Attached Garage
Garage Spaces: 3
Parking Description: Garage, Garage Door Opener, driveway
Roof: Shingle
Pool: Association, Community
Lot View: Trees/Woods
Fencing: fenced, Vinyl
Additional Exterior/Lot Features: Rain Gutters, Sprinkler/Irrigation, Rear Porch, Covered, Patio, Landscaped, Conservation Area
Community Features
Community Features: Fitness, Dog Park, Park, Community Mailbox, Pool, Sidewalks, Tennis Court(s), Playground, Clubhouse, Street Lights
Association Amenities: Fitness Center, Clubhouse, Playground, Tennis Court(s), Pool, Park
Homeowners Association: Yes
HOA Dues: $130 / Annually
Driving Directions
Take John Young Pkwy South, then turn left onto M.L.K. JR. Blvd., then take the second exit onto Neptune Rd. Keep going until right Kings Hwy, then turn left onto Henry Partin Rd. Continue until Rankin Street and 2009 will be on your right.
Financial Considerations
Terms: Cash,Conventional,FHA,VA Loan
Tax/Property ID: 01-26-29-3641-0001-7630
Tax Amount: 9338
Tax Year: 2024
A broker reciprocity listing courtesy: LPT REALTY, LLC
Based on information provided by Stellar MLS as distributed by the MLS GRID. Information from the Internet Data Exchange is provided exclusively for consumers’ personal, non-commercial use, and such information may not be used for any purpose other than to identify prospective properties consumers may be interested in purchasing. This data is deemed reliable but is not guaranteed to be accurate by Edina Realty, Inc., or by the MLS. Edina Realty, Inc., is not a multiple listing service (MLS), nor does it offer MLS access.
Copyright 2025 Stellar MLS as distributed by the MLS GRID. All Rights Reserved.
Payment Calculator
Interest rate and annual percentage rate (APR) are based on current market conditions, are for informational purposes only, are subject to change without notice and may be subject to pricing add-ons related to property type, loan amount, loan-to-value, credit score and other variables. Estimated closing costs used in the APR calculation are assumed to be paid by the borrower at closing. If the closing costs are financed, the loan, APR and payment amounts will be higher. If the down payment is less than 20%, mortgage insurance may be required and could increase the monthly payment and APR. Contact us for details. Additional loan programs may be available. Accuracy is not guaranteed, and all products may not be available in all borrower's geographical areas and are based on their individual situation. This is not a credit decision or a commitment to lend.
Sales History & Tax Summary for 2009 Rankin Street
Sales History
| Date | Price | Change |
|---|---|---|
| Currently not available. | ||
Tax Summary
| Tax Year | Estimated Market Value | Total Tax |
|---|---|---|
| Currently not available. | ||
Data powered by ATTOM Data Solutions. Copyright© 2025. Information deemed reliable but not guaranteed.
Schools
Schools nearby 2009 Rankin Street
| Schools in attendance boundaries | Grades | Distance | Rating |
|---|---|---|---|
| Loading... | |||
| Schools nearby | Grades | Distance | Rating |
|---|---|---|---|
| Loading... | |||
Data powered by ATTOM Data Solutions. Copyright© 2025. Information deemed reliable but not guaranteed.
The schools shown represent both the assigned schools and schools by distance based on local school and district attendance boundaries. Attendance boundaries change based on various factors and proximity does not guarantee enrollment eligibility. Please consult your real estate agent and/or the school district to confirm the schools this property is zoned to attend. Information is deemed reliable but not guaranteed.
SchoolDigger ® Rating
The SchoolDigger rating system is a 1-5 scale with 5 as the highest rating. SchoolDigger ranks schools based on test scores supplied by each state's Department of Education. They calculate an average standard score by normalizing and averaging each school's test scores across all tests and grades.
Coming soon properties will soon be on the market, but are not yet available for showings.