$179,000
201 Emerson Avenue NE Renville, MN 56284
For Sale MLS# 6794104
3 beds 1 baths 1,592 sq ft Single Family
Details for 201 Emerson Avenue NE
MLS# 6794104
Description for 201 Emerson Avenue NE, Renville, MN, 56284
Welcome to your new home! Many updates within the last year: roof, siding, windows, flooring and bathroom! Lots of original character has been preserved such as the original wood (heavy) doors, buffet in the dining room with original hardwood floors which are also in the second bedroom! With three bedrooms, lots of space in the lower level, large yard and over-sized two stall garage, this home hits all the marks! Don't forget to check out the Workshop attached to the garage!
Listing Information
Property Type: Residential, Single Family
Status: Active
Bedrooms: 3
Bathrooms: 1
Lot Size: 0.24 Acres
Square Feet: 1,592 sq ft
Year Built: 1918
Foundation: 1,104 sq ft
Garage: Yes
Stories: 1.5 Stories
Subdivision: Christiansons Rearr
County: Renville
Days On Market: 165
Construction Status: Previously Owned
School Information
District: 2890 - Renville county West
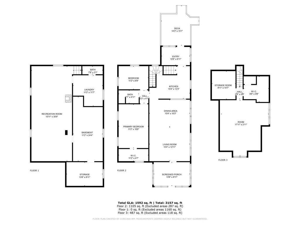
Room Information
Main Floor
Bathroom: 7x5
Bedroom 1: 11x16
Bedroom 2: 11x8.9
Dining Room: 15.4x10.3
Kitchen: 15.4x12.3
Living Room: 15.4x12.11
Mud Room: 10.8x6.11
Porch: 13.8x8.11
Walk-In Closet: 11x4.7
Upper Floor
Bedroom 3: 17.11x21
Storage Room: 8.11x10
Walk-In Closet: 9.6x9.8
Bathrooms
3/4 Baths: 1
Additonal Room Information
Dining: Living/Dining Room
Laundry: In Basement
Bath Description: Main Floor 3/4 Bath
Interior Features
Square Footage above: 1,592 sq ft
Appliances: Washer, Dryer, Range, Refrigerator
Basement: Full, Partial Finished
Fireplaces: 1
Additional Interior Features: Main Floor Primary
Utilities
Water: City Water/Connected
Sewer: City Sewer/Connected
Cooling: Central
Heating: Forced Air, Natural Gas
Exterior / Lot Features
Garage Spaces: 2
Parking Description: Heated Garage, Detached Garage, Driveway - Gravel, Garage Dimensions - 26x28, Garage Sq Ft - 728.0
Exterior: Vinyl
Roof: Age 8 Years or Less
Lot Dimensions: 50x200
Zoning: Residential-Single Family
Additional Exterior/Lot Features: Tree Coverage - Medium, Road Frontage - City
Out Buildings: Workshop
Driving Directions
Highway 212 to Renville, North on Main St., 5 Blocks, East on Emerson Ave. Home will be on the right
Financial Considerations
Other Annual Tax: $68
Tax/Property ID: 360205000
Tax Amount: 1640
Tax Year: 2025
HomeStead Description: Non-Homesteaded
A broker reciprocity listing courtesy: RE/MAX Results
The data relating to real estate for sale on this web site comes in part from the Broker Reciprocity℠ Program of the Regional Multiple Listing Service of Minnesota, Inc. Real estate listings held by brokerage firms other than Edina Realty, Inc. are marked with the Broker Reciprocity℠ logo or the Broker Reciprocity℠ thumbnail and detailed information about them includes the name of the listing brokers. Edina Realty, Inc. is not a Multiple Listing Service (MLS), nor does it offer MLS access. This website is a service of Edina Realty, Inc., a broker Participant of the Regional Multiple Listing Service of Minnesota, Inc. IDX information is provided exclusively for consumers personal, non-commercial use and may not be used for any purpose other than to identify prospective properties consumers may be interested in purchasing. Open House information is subject to change without notice. Information deemed reliable but not guaranteed.
Copyright 2026 Regional Multiple Listing Service of Minnesota, Inc. All Rights Reserved.
Payment Calculator
Interest rate and annual percentage rate (APR) are based on current market conditions, are for informational purposes only, are subject to change without notice and may be subject to pricing add-ons related to property type, loan amount, loan-to-value, credit score and other variables. Estimated closing costs used in the APR calculation are assumed to be paid by the borrower at closing. If the closing costs are financed, the loan, APR and payment amounts will be higher. If the down payment is less than 20%, mortgage insurance may be required and could increase the monthly payment and APR. Contact us for details. Additional loan programs may be available. Accuracy is not guaranteed, and all products may not be available in all borrower's geographical areas and are based on their individual situation. This is not a credit decision or a commitment to lend.
Sales History & Tax Summary for 201 Emerson Avenue NE
Sales History
| Date | Price | |
|---|---|---|
| Currently not available. | ||
Tax Summary
| Tax Year | Estimated Market Value | Total Tax |
|---|---|---|
| Currently not available. | ||
Data powered by ATTOM Data Solutions. Copyright© 2026. Information deemed reliable but not guaranteed.
Schools
Schools nearby 201 Emerson Avenue NE
| Schools in attendance boundaries | Grades | Distance | Rating |
|---|---|---|---|
| Loading... | |||
| Schools nearby | Grades | Distance | Rating |
|---|---|---|---|
| Loading... | |||
Data powered by ATTOM Data Solutions. Copyright© 2026. Information deemed reliable but not guaranteed.
The schools shown represent both the assigned schools and schools by distance based on local school and district attendance boundaries. Attendance boundaries change based on various factors and proximity does not guarantee enrollment eligibility. Please consult your real estate agent and/or the school district to confirm the schools this property is zoned to attend. Information is deemed reliable but not guaranteed.
SchoolDigger ® Rating
The SchoolDigger rating system is a 1-5 scale with 5 as the highest rating. SchoolDigger ranks schools based on test scores supplied by each state's Department of Education. They calculate an average standard score by normalizing and averaging each school's test scores across all tests and grades.
Coming soon properties will soon be on the market, but are not yet available for showings.