2012 Maui Drive Holiday, FL 34691 - LAKE CONLEY
For Sale MLS# TB8429270
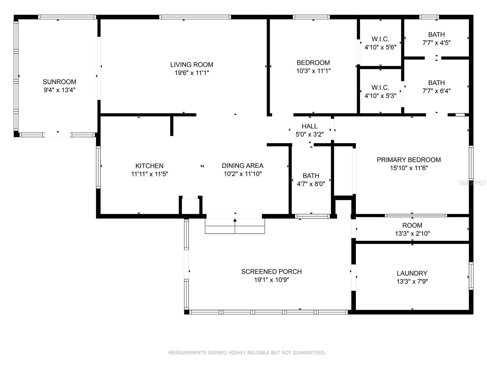
2 beds 2 baths 1,056 sq ft Single Family
Details for 2012 Maui Drive
MLS# TB8429270
Description for 2012 Maui Drive, Holiday, FL, 34691 - LAKE CONLEY
Welcome to your dream home in the vibrant 55+ GATED community of Lake Conley! This gorgeous residence is a perfect blend of luxury and comfort. Beautifully renovated interior boasts high standards of comfort and modern living. The kitchen, dining area, and living room have been recently extensively renovated. Both full bathrooms have been transformed into modern & functional oasis. You will enjoy breathtaking views and soothing breezes right from your own backyard. Residents of Lake Conley Community have access to a wide range of amenities and activities, including Clubhouse, Pool, Shuffle Board, Horse Shoe Court, RV/Boat Parking, Boat Ramp, and Fishing Pier. Nearby, you will find many attractions, shopping centers, restaurants, parks, and beautiful sandy Florida Beaches. Low HOA fees $68.Golf carts welcomed! NO LOT RENT!!! Reach out now for this exceptional buying opportunity!
Listing Information
Property Type: Residential, Manufactured Home
Status: Active
Bedrooms: 2
Bathrooms: 2
Lot Size: 0.09 Acres
Square Feet: 1,056 sq ft
Year Built: 1980
Stories: 1 Story
Construction: Metal Siding
Subdivision: Lake Conley Mhp
Foundation: Crawlspace
County: Pasco
Room Information
Main Floor
Florida Room: 8x10
Primary Bedroom: 14x12
Kitchen: 10x10
Living Room: 12x15
Bathrooms
Full Baths: 2
Additonal Room Information
Laundry: Other
Interior Features
Appliances: Dishwasher, Dryer, Washer, Range, Refrigerator, Electric Water Heater
Flooring: Laminate
Basement: Crawl Space
Additional Interior Features: Open Floorplan, Ceiling Fan(s), Eat-In Kitchen
Utilities
Water: Public
Sewer: Public Sewer
Other Utilities: Cable Available,Electricity Connected
Cooling: Ceiling Fan(s), Central Air
Heating: Electric
Exterior / Lot Features
Roof: Metal
Pool: Community, Association, In Ground, Gunite
Lot View: Lake,Water
Additional Exterior/Lot Features: Storage, Other
Waterfront Details
Standard Water Body: LAKE CONLEY
Water Front Features: Lake Privileges
Community Features
Community Features: Sidewalks, Pool, Clubhouse, Gated
Security Features: Gated Community
Association Amenities: Pool
HOA Dues Include: Pool(s)
Homeowners Association: Yes
HOA Dues: $69 / Monthly
Driving Directions
U.S. Highway North to Bonita. Turn left on Bonita Raod, Bonita Road becomes Bywater Drive. Turn right on Maui Drive. Corner Bywater and Maui Dr
Financial Considerations
Tax/Property ID: 15-26-25-0070-00000-2150
Tax Amount: 672.38
Tax Year: 2024
A broker reciprocity listing courtesy: PROPERTY LEADERS RE INC
Based on information provided by Stellar MLS as distributed by the MLS GRID. Information from the Internet Data Exchange is provided exclusively for consumers’ personal, non-commercial use, and such information may not be used for any purpose other than to identify prospective properties consumers may be interested in purchasing. This data is deemed reliable but is not guaranteed to be accurate by Edina Realty, Inc., or by the MLS. Edina Realty, Inc., is not a multiple listing service (MLS), nor does it offer MLS access.
Copyright 2026 Stellar MLS as distributed by the MLS GRID. All Rights Reserved.
Payment Calculator
Interest rate and annual percentage rate (APR) are based on current market conditions, are for informational purposes only, are subject to change without notice and may be subject to pricing add-ons related to property type, loan amount, loan-to-value, credit score and other variables. Estimated closing costs used in the APR calculation are assumed to be paid by the borrower at closing. If the closing costs are financed, the loan, APR and payment amounts will be higher. If the down payment is less than 20%, mortgage insurance may be required and could increase the monthly payment and APR. Contact us for details. Additional loan programs may be available. Accuracy is not guaranteed, and all products may not be available in all borrower's geographical areas and are based on their individual situation. This is not a credit decision or a commitment to lend.
Sales History & Tax Summary for 2012 Maui Drive
Sales History
| Date | Price | Change |
|---|---|---|
| Currently not available. | ||
Tax Summary
| Tax Year | Estimated Market Value | Total Tax |
|---|---|---|
| Currently not available. | ||
Data powered by ATTOM Data Solutions. Copyright© 2026. Information deemed reliable but not guaranteed.
Schools
Schools nearby 2012 Maui Drive
| Schools in attendance boundaries | Grades | Distance | Rating |
|---|---|---|---|
| Loading... | |||
| Schools nearby | Grades | Distance | Rating |
|---|---|---|---|
| Loading... | |||
Data powered by ATTOM Data Solutions. Copyright© 2026. Information deemed reliable but not guaranteed.
The schools shown represent both the assigned schools and schools by distance based on local school and district attendance boundaries. Attendance boundaries change based on various factors and proximity does not guarantee enrollment eligibility. Please consult your real estate agent and/or the school district to confirm the schools this property is zoned to attend. Information is deemed reliable but not guaranteed.
SchoolDigger ® Rating
The SchoolDigger rating system is a 1-5 scale with 5 as the highest rating. SchoolDigger ranks schools based on test scores supplied by each state's Department of Education. They calculate an average standard score by normalizing and averaging each school's test scores across all tests and grades.
Coming soon properties will soon be on the market, but are not yet available for showings.