$549,000
2012 River Basin Terrace Punta Gorda, FL 33982 - PEACE RIVER
For Sale MLS# C7519128
3 beds 3 baths 2,484 sq ft Single Family
Details for 2012 River Basin Terrace
MLS# C7519128
Description for 2012 River Basin Terrace, Punta Gorda, FL, 33982 - PEACE RIVER
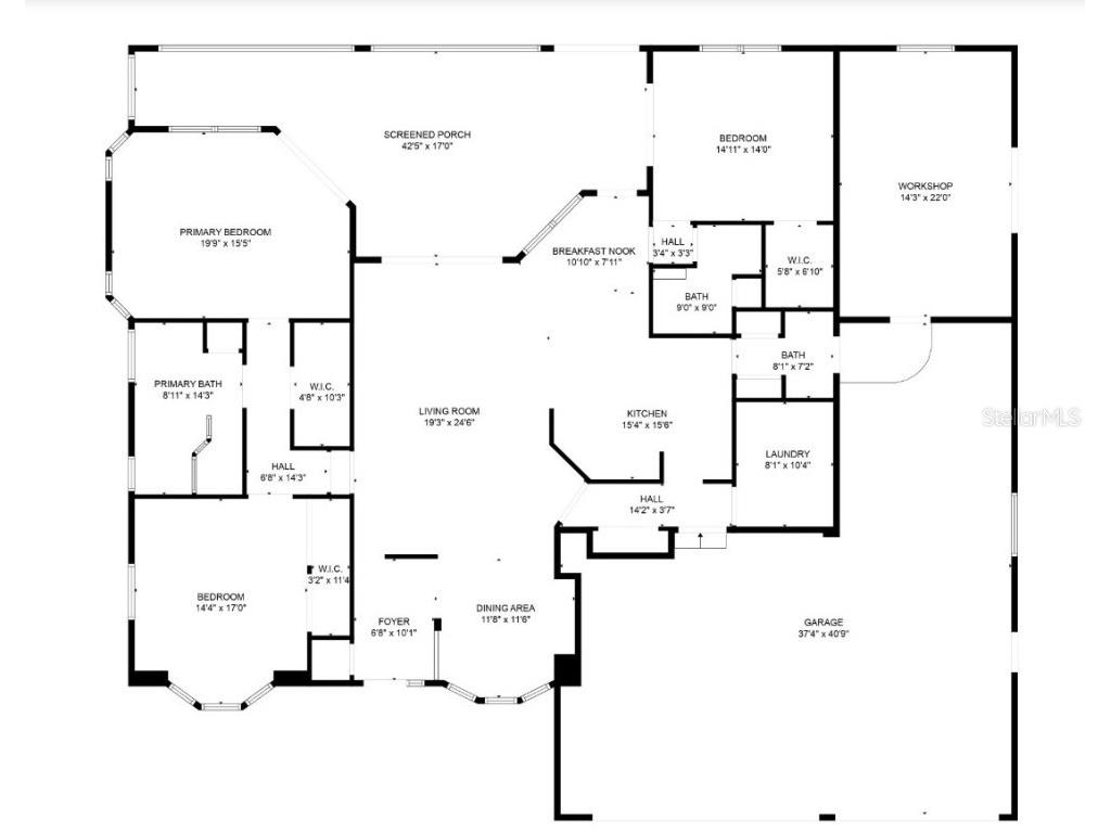
Sparkling estate boasting 180 linear ft of waterfront leading directly out to the Peace River and the Gulf of America. Sprawled out on nearly 31,000 sq ft at the end of a cul-de-sac, this stunning home delivers tranquility, privacy, freedom, immense open space and every convenience and creature comfort imaginable. Spanning nearly 4,900 total sq ft with 2,485 sq ft under air, the home sports 3 ample bedrooms, 3 full size baths, a wide-open kitchen perfect for entertaining, a spacious laundry room, a wonderful waterfront sunroom and a built-in grill and summer kitchen made for Sunday BBQ's. The brand new roof delivers decades of longevity and the and the garages are spectacular. With more than 1,880 sq ft of garage space, highlighted by the 24' full RV Garage, a separate 2-car garage and a side golf cart garage, there is abundant space for all the toys. The exterior shines as well with a private gazebo overlooking the water, a full generator and propane tank, water softening system and a boat dock and davit to top it all off. The location is perfect, completely set back from the fray but still just minutes to great dining, shopping, access to the highways and more. This house hits every note. Priced extremely well and easy to show. Call today
Listing Information
Property Type: Residential, Single Family Residence
Status: Active
Bedrooms: 3
Bathrooms: 3
Lot Size: 0.71 Acres
Square Feet: 2,484 sq ft
Year Built: 1998
Garage: Yes
Stories: 1 Story
Construction: Concrete
Construction Display: New Construction
Subdivision: Palm Shores
Foundation: Slab
County: Charlotte
Construction Status: New Construction
Room Information
Main Floor
Bedroom 3: 14x15
Bedroom 2: 17x15
Kitchen: 16x16
Primary Bathroom: 14x9
Living Room: 25x19
Primary Bedroom: 16x20
Bathrooms
Full Baths: 3
Additonal Room Information
Laundry: Laundry Room
Interior Features
Appliances: Wine Refrigerator, Ice Maker, Microwave, Dishwasher, Dryer, Water Softener, Refrigerator, Washer
Flooring: Carpet,Ceramic Tile
Doors/Windows: Window Treatments, Shutters, Blinds
Additional Interior Features: Eat-In Kitchen, Ceiling Fan(s), Walk-In Closet(s), High Ceilings, Window Treatments
Utilities
Water: Well
Sewer: Septic Tank
Other Utilities: Cable Connected,Electricity Connected,Propane,Water Connected
Cooling: Ceiling Fan(s), Central Air
Heating: Central
Exterior / Lot Features
Attached Garage: Attached Garage
Garage Spaces: 3
Parking Description: RV Garage, Boat, Golf Cart Garage, driveway, RV Access/Parking, Garage, Garage Door Opener, Covered
Roof: Metal
Lot View: Canal,Garden,River,Water
Lot Dimensions: 180x120
Fencing: Chain Link
Additional Exterior/Lot Features: Outdoor Grill, Outdoor Kitchen, Sprinkler/Irrigation, Rain Gutters, Balcony, Dog Run, Lighting, Garden, Storage, Balcony, Covered, Deck, Patio, Porch, Rear Porch, Enclosed, Screened, Corner Lot, Private, Landscaped, Cul-de-Sac, Oversized Lot
Out Buildings: Storage, Gazebo, Shed(s), Kennel/Dog Run, Outdoor Kitchen
Waterfront Details
Standard Water Body: PEACE RIVER
Water Front Features: River Access, Canal Access
Community Features
Security Features: Closed Circuit Camera(s), Smoke Detector(s)
Driving Directions
highway 75 right duncan rd left palm shores blvd left palm terrace right royal palm right river basin terrace until the end of the cul-de-sac on the right
Financial Considerations
Terms: Cash,Conventional
Tax/Property ID: 402314254001
Tax Amount: 5770.34
Tax Year: 2024
A broker reciprocity listing courtesy: HOWARD CHASE REAL ESTATE, LLC
Based on information provided by Stellar MLS as distributed by the MLS GRID. Information from the Internet Data Exchange is provided exclusively for consumers’ personal, non-commercial use, and such information may not be used for any purpose other than to identify prospective properties consumers may be interested in purchasing. This data is deemed reliable but is not guaranteed to be accurate by Edina Realty, Inc., or by the MLS. Edina Realty, Inc., is not a multiple listing service (MLS), nor does it offer MLS access.
Copyright 2025 Stellar MLS as distributed by the MLS GRID. All Rights Reserved.
Payment Calculator
Interest rate and annual percentage rate (APR) are based on current market conditions, are for informational purposes only, are subject to change without notice and may be subject to pricing add-ons related to property type, loan amount, loan-to-value, credit score and other variables. Estimated closing costs used in the APR calculation are assumed to be paid by the borrower at closing. If the closing costs are financed, the loan, APR and payment amounts will be higher. If the down payment is less than 20%, mortgage insurance may be required and could increase the monthly payment and APR. Contact us for details. Additional loan programs may be available. Accuracy is not guaranteed, and all products may not be available in all borrower's geographical areas and are based on their individual situation. This is not a credit decision or a commitment to lend.
Sales History & Tax Summary for 2012 River Basin Terrace
Sales History
| Date | Price | Change |
|---|---|---|
| Currently not available. | ||
Tax Summary
| Tax Year | Estimated Market Value | Total Tax |
|---|---|---|
| Currently not available. | ||
Data powered by ATTOM Data Solutions. Copyright© 2025. Information deemed reliable but not guaranteed.
Schools
Schools nearby 2012 River Basin Terrace
| Schools in attendance boundaries | Grades | Distance | Rating |
|---|---|---|---|
| Loading... | |||
| Schools nearby | Grades | Distance | Rating |
|---|---|---|---|
| Loading... | |||
Data powered by ATTOM Data Solutions. Copyright© 2025. Information deemed reliable but not guaranteed.
The schools shown represent both the assigned schools and schools by distance based on local school and district attendance boundaries. Attendance boundaries change based on various factors and proximity does not guarantee enrollment eligibility. Please consult your real estate agent and/or the school district to confirm the schools this property is zoned to attend. Information is deemed reliable but not guaranteed.
SchoolDigger ® Rating
The SchoolDigger rating system is a 1-5 scale with 5 as the highest rating. SchoolDigger ranks schools based on test scores supplied by each state's Department of Education. They calculate an average standard score by normalizing and averaging each school's test scores across all tests and grades.
Coming soon properties will soon be on the market, but are not yet available for showings.