20125 Still Wind Drive Tampa, FL 33647
For Sale MLS# TB8410838
4 beds 2 baths 1,848 sq ft Single Family
Details for 20125 Still Wind Drive
MLS# TB8410838
Description for 20125 Still Wind Drive, Tampa, FL, 33647
Welcome Home to 20125 Still Wind Dr, Tampa, FL 33647. Discover the perfect blend of comfort, style, and breathtaking views in this spacious 4-bedroom, 2-bathroom home offering 1,848 heated sqft. Step inside and enjoy the inviting open layout featuring plush carpet flooring paired with elegant ceramic tile accents. The heart of the home boasts solid wood cabinets and comes complete with all appliances included — truly move-in ready! Retreat to the generous primary suite featuring a walk-in closet, relaxing in-ground tub, and a large walk-in shower. Enjoy serene mornings on your screened porch with ceiling fan above, or entertain guests in your spacious backyard — perfect for kids, pets, and unforgettable community gatherings. Framed by a pristine white fence, the backyard offers stunning lake views that bring peace and beauty to your everyday life. Additional features include window treatments, an inside laundry room, and plenty of storage throughout. Don’t miss this rare opportunity to own a charming home in a desirable Tampa neighborhood — with space, scenery, and style all in one! Contact us today to schedule your private tour!
Listing Information
Property Type: Residential, Single Family Residence
Status: Active
Bedrooms: 4
Bathrooms: 2
Lot Size: 0.14 Acres
Square Feet: 1,848 sq ft
Year Built: 2008
Garage: Yes
Stories: 1 Story
Construction: Block
Subdivision: Easton Park Ph 1
Foundation: Slab
County: Hillsborough
School Information
Elementary: Heritage-Hb
Middle: Benito-Hb
High: Wharton-Hb
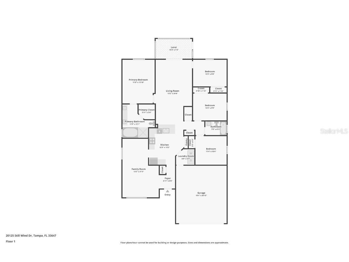
Room Information
Main Floor
Bedroom 4: 9.5x12
Bedroom 3: 9.5x12
Bedroom 2: 10x11.5
Primary Bedroom: 11x16
Family Room: 13x17
Dinette: 8x10
Kitchen: 14x13
Dining Room: 9x10
Living Room: 11x13
Bathrooms
Full Baths: 2
Additonal Room Information
Laundry: Inside, Laundry Room
Interior Features
Appliances: Washer, Microwave, Range, Refrigerator, Dishwasher, Disposal, Dryer
Flooring: Carpet,Ceramic Tile
Doors/Windows: Window Treatments, Blinds
Additional Interior Features: Ceiling Fan(s), Wood Cabinets, Split Bedrooms, Walk-In Closet(s), Window Treatments, Built-in Features
Utilities
Water: Public
Sewer: Public Sewer
Other Utilities: Cable Available
Cooling: Ceiling Fan(s), Central Air
Heating: Central
Exterior / Lot Features
Attached Garage: Attached Garage
Garage Spaces: 2
Roof: Shingle
Pool: Community
Lot Dimensions: 52.24x119
Additional Exterior/Lot Features: Covered, Landscaped
Community Features
Community Features: Pool, Playground, Sidewalks, Street Lights
HOA Dues Include: Internet, Cable TV
Homeowners Association: Yes
HOA Dues: $103 / Monthly
Driving Directions
From I-75 North or South: Take Exit 275 for FL-56 / State Road 56 toward Wesley Chapel / Land O' Lakes. If coming from the south, turn right (east) onto FL-56. If coming from the north, turn left (east) onto FL-56. Continue east on FL-56 for about 2.5 miles. Turn right onto Bruce B Downs Blvd / County Rd 581 South. Drive south on Bruce B Downs Blvd for approximately 3 miles. Turn left onto Cross Creek Blvd. Continue east on Cross Creek Blvd for about 2.3 miles. Turn right onto Brookron Dr (into the community). Take the first left onto Still Wind Dr. 20125 Still Wind Dr will be on your right.
Financial Considerations
Terms: Cash,Conventional,FHA,VA Loan
Tax/Property ID: A-11-27-20-971-000009-00030.0
Tax Amount: 2263
Tax Year: 2024
A broker reciprocity listing courtesy: KNOWN REAL ESTATE LLC
Based on information provided by Stellar MLS as distributed by the MLS GRID. Information from the Internet Data Exchange is provided exclusively for consumers’ personal, non-commercial use, and such information may not be used for any purpose other than to identify prospective properties consumers may be interested in purchasing. This data is deemed reliable but is not guaranteed to be accurate by Edina Realty, Inc., or by the MLS. Edina Realty, Inc., is not a multiple listing service (MLS), nor does it offer MLS access.
Copyright 2025 Stellar MLS as distributed by the MLS GRID. All Rights Reserved.
Payment Calculator
Interest rate and annual percentage rate (APR) are based on current market conditions, are for informational purposes only, are subject to change without notice and may be subject to pricing add-ons related to property type, loan amount, loan-to-value, credit score and other variables. Estimated closing costs used in the APR calculation are assumed to be paid by the borrower at closing. If the closing costs are financed, the loan, APR and payment amounts will be higher. If the down payment is less than 20%, mortgage insurance may be required and could increase the monthly payment and APR. Contact us for details. Additional loan programs may be available. Accuracy is not guaranteed, and all products may not be available in all borrower's geographical areas and are based on their individual situation. This is not a credit decision or a commitment to lend.
Sales History & Tax Summary for 20125 Still Wind Drive
Sales History
| Date | Price | Change |
|---|---|---|
| Currently not available. | ||
Tax Summary
| Tax Year | Estimated Market Value | Total Tax |
|---|---|---|
| Currently not available. | ||
Data powered by ATTOM Data Solutions. Copyright© 2025. Information deemed reliable but not guaranteed.
Schools
Schools nearby 20125 Still Wind Drive
| Schools in attendance boundaries | Grades | Distance | Rating |
|---|---|---|---|
| Loading... | |||
| Schools nearby | Grades | Distance | Rating |
|---|---|---|---|
| Loading... | |||
Data powered by ATTOM Data Solutions. Copyright© 2025. Information deemed reliable but not guaranteed.
The schools shown represent both the assigned schools and schools by distance based on local school and district attendance boundaries. Attendance boundaries change based on various factors and proximity does not guarantee enrollment eligibility. Please consult your real estate agent and/or the school district to confirm the schools this property is zoned to attend. Information is deemed reliable but not guaranteed.
SchoolDigger ® Rating
The SchoolDigger rating system is a 1-5 scale with 5 as the highest rating. SchoolDigger ranks schools based on test scores supplied by each state's Department of Education. They calculate an average standard score by normalizing and averaging each school's test scores across all tests and grades.
Coming soon properties will soon be on the market, but are not yet available for showings.