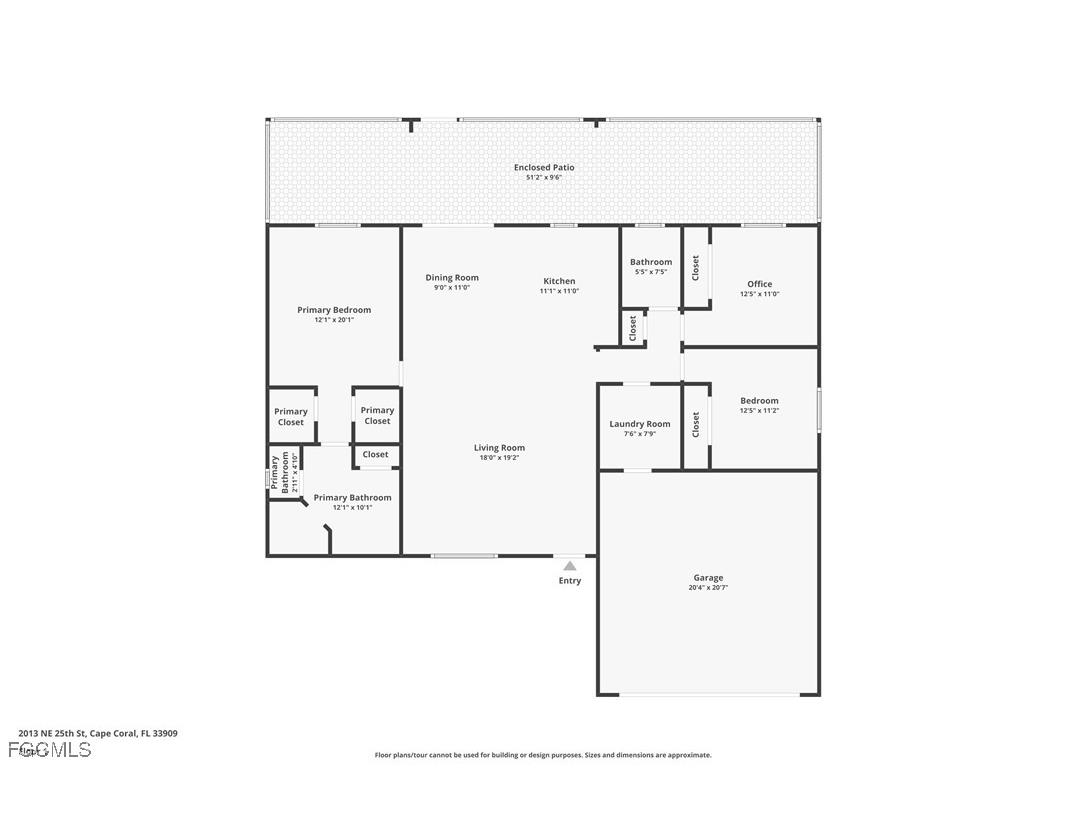
2013 NE 25th Street Cape Coral, FL 33909
Pending MLS# 2025024842
3 beds 2 baths 1,479 sq ft Single Family
Details for 2013 NE 25th Street
MLS# 2025024842
Description for 2013 NE 25th Street, Cape Coral, FL, 33909
Welcome to your slice of Florida living. This 3 bedroom 2 bath open floor plan is great for entertaining & easy maintenance with wood floors throughout & tile in the kitchen & bathrooms. The primary bedroom offers plenty of space with his and her closets, duals sinks and a walk in shower. The guest bedroom has a custom built in daybed with work desk great for an office or flex space. The 2025 updated kitchen has quartz countertops, mosaic tile backsplash with Stainless Steel Whirlpool Appliances with a reverse osmosis system under the in sink. A/C was replaced 2017 with A/C ducts cleaned in 2025. Roof was replaced in 2022. Home is equipped with Accordian Shutters & Impact sliders. (Seller has windows on order) for hurricane protection. Step outside to the oversized screen porch and room for a swimming pool. Property is a corner lot giving easy trailer access if you ever want to put up a gated fence. Centrally located & just a short drive to downtown Fort Myers. Come and see this well cared for home today. Home is in North 1 East utility expansion area. Buyer to assume remaining assessments and utility expansion charges. Assessment payoff is approx $20,710.30
Listing Information
Property Type: Residential, Single Family Residence
Status: Pending-Financing
Bedrooms: 3
Bathrooms: 2
Lot Size: 0.30 Acres
Square Feet: 1,479 sq ft
Year Built: 2006
Garage: Yes
Stories: 1 Story
Construction: Block,Concrete,Stucco
Subdivision: Cape Coral
Furnished: Yes
County: Lee
Days On Market: 67
Construction Status: Resale
School Information
Elementary: School Choice
Middle: School Choice
High: School Choice
Room Information
Bathrooms
Full Baths: 2
Additonal Room Information
Laundry: Inside
Interior Features
Appliances: Microwave, Dishwasher, Dryer, Range, Refrigerator, Washer
Flooring: Tile,Wood
Doors/Windows: Single Hung, Shutters
Additional Interior Features: Pantry, Split Bedrooms, Separate Shower, Living/Dining Room, Bedroom on Main Level, Breakfast Bar, Dual Sinks, Shower Only, Main Level Primary
Utilities
Water: Well
Sewer: Septic Tank
Other Utilities: Cable Available
Cooling: Ceiling Fan(s), Electric, Central Air
Heating: Electric, Central
Exterior / Lot Features
Attached Garage: Attached Garage
Garage Spaces: 2
Parking Description: Garage Door Opener, Attached, Garage
Roof: Shingle
Lot View: Landscaped,Water
Lot Dimensions: 90 x 125 x 115 x 125
Zoning: R1
Additional Exterior/Lot Features: Sprinkler/Irrigation, Patio, Patio, Porch, Screened, Lanai, Corner Lot, Irregular Lot, Oversized Lot, Sprinklers Automatic
Community Features
Community Features: Non-Gated
Security Features: Smoke Detector(s)
Financial Considerations
Terms: All Financing Considered,Cash
Tax/Property ID: 29-43-24-C4-02253.0720
Tax Amount: 1532.76
Tax Year: 2024
A broker reciprocity listing courtesy: RE/MAX Realty Group
Based on information provided by FGCMLS. Internet Data Exchange information is provided exclusively for consumers’ personal, non-commercial use, and such information may not be used for any purpose other than to identify prospective properties consumers may be interested in purchasing. This data is deemed reliable but is not guaranteed to be accurate by Edina Realty, Inc., or by the MLS. Edina Realty, Inc., is not a multiple listing service (MLS), nor does it offer MLS access.
Copyright 2026 FGCMLS. All Rights Reserved.
Sales History & Tax Summary for 2013 NE 25th Street
Sales History
| Date | Price | |
|---|---|---|
| Currently not available. | ||
Tax Summary
| Tax Year | Estimated Market Value | Total Tax |
|---|---|---|
| Currently not available. | ||
Data powered by ATTOM Data Solutions. Copyright© 2026. Information deemed reliable but not guaranteed.
Schools
Schools nearby 2013 NE 25th Street
| Schools in attendance boundaries | Grades | Distance | Rating |
|---|---|---|---|
| Loading... | |||
| Schools nearby | Grades | Distance | Rating |
|---|---|---|---|
| Loading... | |||
Data powered by ATTOM Data Solutions. Copyright© 2026. Information deemed reliable but not guaranteed.
The schools shown represent both the assigned schools and schools by distance based on local school and district attendance boundaries. Attendance boundaries change based on various factors and proximity does not guarantee enrollment eligibility. Please consult your real estate agent and/or the school district to confirm the schools this property is zoned to attend. Information is deemed reliable but not guaranteed.
SchoolDigger ® Rating
The SchoolDigger rating system is a 1-5 scale with 5 as the highest rating. SchoolDigger ranks schools based on test scores supplied by each state's Department of Education. They calculate an average standard score by normalizing and averaging each school's test scores across all tests and grades.
Coming soon properties will soon be on the market, but are not yet available for showings.