2028 Acadia Greens Drive Sun City Center, FL 33573
For Sale MLS# TB8341873
2 beds 2 baths 1,194 sq ft Condo
Details for 2028 Acadia Greens Drive
MLS# TB8341873
Description for 2028 Acadia Greens Drive, Sun City Center, FL, 33573
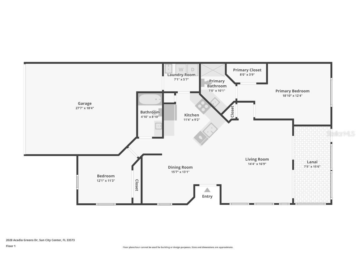
Welcome to this delightful 2-bedroom, 2-bathroom split floor plan condo in the sought-after Acadia II community. This corner unit offers a partial pond view and boasts an enclosed rear porch with double glass sliders for added tranquility. Inside, enjoy the spacious kitchen with a convenient bar, perfect for entertaining, and a seamless view of the dining and living areas. Plus 2022 appliances, making this kitchen both stylish and highly functional—a perfect space for cooking, entertaining, and everyday living. High ceilings, fresh light paint, and abundant natural light from large windows create a bright and airy atmosphere. The home features beautiful new laminate flooring throughout and a practical inside utility room. The 2-car garage adds extra convenience, and the split layout ensures privacy for both bedrooms. You’ll love the gated community of Kings Point, which has amazing facilities, pools, clubs and events just waiting for you to enjoy. Located between Sarasota and Tampa, this home is perfectly positioned for a convenient ride to airports, great shopping, dining, and professional entertainment. With easy access to award-winning, sandy beaches, you’ll experience the best of all worlds—without the stress of big city life. Leave the hustle behind and embrace a new chapter in Sun City Center, Florida, the state's top-ranked and most affordable 55+ retirement community. Whether you’re looking for a peaceful retreat or an inviting space for guests, this condo offers it all.
Listing Information
Property Type: Residential, Condominium
Status: Active
Bedrooms: 2
Bathrooms: 2
Lot Size: 0.05 Acres
Square Feet: 1,194 sq ft
Year Built: 2001
Garage: Yes
Stories: 1 Story
Construction: Block,Stucco
Subdivision: Acadia Ii Condominum
Foundation: Slab
County: Hillsborough
Room Information
Main Floor
Utility Room: 5.7x7.1
Porch: 15.6x7.5
Dining Room: 13.1x15.7
Bedroom 2: 11.3x12.1
Living Room: 16.9x14.4
Kitchen: 9.2x11.4
Primary Bedroom: 12.4x18.1
Bathrooms
Full Baths: 2
Additonal Room Information
Laundry: Inside, Laundry Room
Interior Features
Appliances: Washer, Microwave, Range, Refrigerator, Dishwasher, Dryer
Flooring: Laminate
Accessibility: Wheelchair Access
Additional Interior Features: Eat-In Kitchen, Walk-In Closet(s), Ceiling Fan(s), Built-in Features, Split Bedrooms, High Ceilings, Living/Dining Room, Open Floorplan, Kitchen/Family Room Combo, Solid Surface Counters, Wood Cabinets
Utilities
Water: Public
Sewer: Public Sewer
Other Utilities: Cable Available,Electricity Available
Cooling: Ceiling Fan(s), Central Air
Heating: Central
Exterior / Lot Features
Attached Garage: Attached Garage
Garage Spaces: 2
Parking Description: driveway
Roof: Shingle
Pool: Association, Community
Lot View: Pond,Water
Additional Exterior/Lot Features: Rear Porch, Side Porch, Covered, Enclosed, Flat, Level, Landscaped, City Lot, Outside City Limits
Community Features
Community Features: Community Mailbox, Restaurant, Fitness, Golf Carts OK, Gated, Golf, Handicap Access, Tennis Court(s), Clubhouse, Pool, Sidewalks
Security Features: Gated Community, Gated with Guard
Association Amenities: Recreation Facilities, Tennis Court(s), Fitness Center, Pool, Pickleball, Shuffleboard Court, Racquetball, Maintenance Grounds, Gated, Clubhouse, Golf Course
HOA Dues Include: Pest Control, Reserve Fund, Maintenance Structure, Road Maintenance, Pool(s), Internet, Cable TV, Water, Recreation Facilities, Security, Sewer
Driving Directions
Heading East on College Ave towards Sun City Center, turn right onto Kings Blvd, .9 turn left onto Kings Blvd, left onto Newpoint Dr, left onto Vilmont Greens Dr, left onto Acadia Greens Dr, home is on the right.
Financial Considerations
Terms: Cash,Conventional
Tax/Property ID: U-24-32-19-5RQ-000000-00052.0
Tax Amount: 2930.74
Tax Year: 2024
A broker reciprocity listing courtesy: KELLER WILLIAMS SOUTH SHORE
Based on information provided by Stellar MLS as distributed by the MLS GRID. Information from the Internet Data Exchange is provided exclusively for consumers’ personal, non-commercial use, and such information may not be used for any purpose other than to identify prospective properties consumers may be interested in purchasing. This data is deemed reliable but is not guaranteed to be accurate by Edina Realty, Inc., or by the MLS. Edina Realty, Inc., is not a multiple listing service (MLS), nor does it offer MLS access.
Copyright 2025 Stellar MLS as distributed by the MLS GRID. All Rights Reserved.
Payment Calculator
Interest rate and annual percentage rate (APR) are based on current market conditions, are for informational purposes only, are subject to change without notice and may be subject to pricing add-ons related to property type, loan amount, loan-to-value, credit score and other variables. Estimated closing costs used in the APR calculation are assumed to be paid by the borrower at closing. If the closing costs are financed, the loan, APR and payment amounts will be higher. If the down payment is less than 20%, mortgage insurance may be required and could increase the monthly payment and APR. Contact us for details. Additional loan programs may be available. Accuracy is not guaranteed, and all products may not be available in all borrower's geographical areas and are based on their individual situation. This is not a credit decision or a commitment to lend.
Sales History & Tax Summary for 2028 Acadia Greens Drive
Sales History
| Date | Price | Change |
|---|---|---|
| Currently not available. | ||
Tax Summary
| Tax Year | Estimated Market Value | Total Tax |
|---|---|---|
| Currently not available. | ||
Data powered by ATTOM Data Solutions. Copyright© 2025. Information deemed reliable but not guaranteed.
Schools
Schools nearby 2028 Acadia Greens Drive
| Schools in attendance boundaries | Grades | Distance | Rating |
|---|---|---|---|
| Loading... | |||
| Schools nearby | Grades | Distance | Rating |
|---|---|---|---|
| Loading... | |||
Data powered by ATTOM Data Solutions. Copyright© 2025. Information deemed reliable but not guaranteed.
The schools shown represent both the assigned schools and schools by distance based on local school and district attendance boundaries. Attendance boundaries change based on various factors and proximity does not guarantee enrollment eligibility. Please consult your real estate agent and/or the school district to confirm the schools this property is zoned to attend. Information is deemed reliable but not guaranteed.
SchoolDigger ® Rating
The SchoolDigger rating system is a 1-5 scale with 5 as the highest rating. SchoolDigger ranks schools based on test scores supplied by each state's Department of Education. They calculate an average standard score by normalizing and averaging each school's test scores across all tests and grades.
Coming soon properties will soon be on the market, but are not yet available for showings.