20312 Noble Oak Place Tampa, FL 33647
For Sale MLS# TB8427862
2 beds 2 baths 1,249 sq ft Townhouse/Twinhome
Details for 20312 Noble Oak Place
MLS# TB8427862
Description for 20312 Noble Oak Place, Tampa, FL, 33647
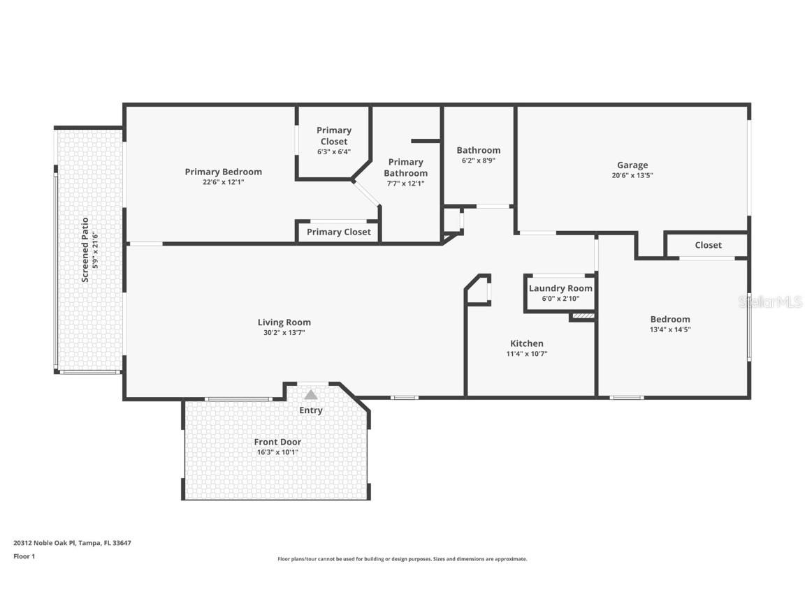
ENJOY MAINTENANCE-FREE FLORIDA LIVING! This meticulously maintained townhome is an amazing opportunity that features a gorgeous private waterfront lot located in the highly sought after gated community of LIVE OAK PRESERVE! The property is an end-unit 1 story townhome with gorgeous water views. Home features 1,249 sq ft with a fantastic open floor plan, with 2 bedrooms, 2 baths & 1 car garage with oversized driveway & plenty of guest parking. This is the perfect place to call home! Enter into a spacious living room and dining area that offers plenty of natural light and great for entertaining guests. The spacious kitchen features ceramic tiling, an abundance of cabinetry, appliances, breakfast bar & pantry. Right off the kitchen is a dining area that is perfect for enjoying your dinner parties with fantastic water views. Great size family room perfect for entertaining, features double sliders that opens to a huge private extended screened lanai that invites you to sit & enjoy day & evening sun sets that looks out to a beautiful water view. Plenty of backyard space to enjoy BBQ’s with family & friends. Large Master suite features his & hers walk-in closets with double sliders to screened lanai & beautiful water views. Master bath with his & hers sinks with large walk-in shower. Monthly HOA fee covers exterior maintenance, outside insurance, exterior paint, roof, lawn care & irrigation. The interior was just painted, exterior has been painted 2022 & roof installed 2018, water heater 2018. LIVE OAK PRESERVE is a highly desirable gated community which offers resort style amenities which includes a clubhouse, large swimming pool with kid’s water splash area, lap swimming area, fitness center, lighted tennis courts with pickle-ball area, volleyball court, basketball court, playground, walking trails, golf putting area & much more. Close to schools, I-75, Tampa International Airport & downtown Tampa, MacDill AFB, hospitals, shopping, Wiregrass Mall, Outlet Mall, schools, golf courses, restaurants. The elementary, middle & high schools are conveniently located just outside the community gates. DO NOT MISS YOUR CHANCE! CALL TODAY FOR A PRIVATE TOUR OF THIS STUNNING HOME!
Listing Information
Property Type: Residential, Townhouse
Status: Active
Bedrooms: 2
Bathrooms: 2
Lot Size: 0.12 Acres
Square Feet: 1,249 sq ft
Year Built: 2004
Garage: Yes
Stories: 1 Story
Construction: Stucco
Property Attached: Yes
Construction Display: New Construction
Subdivision: Live Oak Preserve
Foundation: Slab
County: Hillsborough
Construction Status: New Construction
School Information
Elementary: Turner Elem-Hb
Middle: Benito-Hb
High: Wharton-Hb
Room Information
Main Floor
Bedroom 2:
Primary Bedroom:
Dining Room:
Living Room:
Kitchen:
Bathrooms
Full Baths: 2
Additonal Room Information
Laundry: Inside, Laundry Closet
Interior Features
Appliances: Electric Water Heater, Washer, Range, Refrigerator, Microwave, Dishwasher, Disposal, Dryer
Flooring: Carpet,Tile
Doors/Windows: Blinds, Window Treatments
Additional Interior Features: Ceiling Fan(s), Living/Dining Room, Built-in Features, Walk-In Closet(s), Window Treatments, Main Level Primary, Solid Surface Counters, Wood Cabinets, Open Floorplan
Utilities
Water: Public
Sewer: Public Sewer
Other Utilities: Cable Available,Electricity Connected,High Speed Internet Available,Municipal Utilities,Phone Available,Sewer Connected,Underground Utilities,Water Connected
Cooling: Ceiling Fan(s), Central Air
Heating: Central, Electric
Exterior / Lot Features
Attached Garage: Attached Garage
Garage Spaces: 1
Parking Description: driveway, Open, Guest, Garage, Garage Door Opener
Roof: Shingle
Pool: Association, Community
Lot View: Pond,Water
Additional Exterior/Lot Features: Rain Gutters, Sprinkler/Irrigation, Side Porch, Screened, Covered, Patio, Corner Lot, Landscaped, Near Public Transit, Oversized Lot, Conservation Area
Waterfront Details
Water Front Features: Pond
Community Features
Community Features: Fitness, Park, Street Lights, Gated, Clubhouse, Pool, Tennis Court(s), Playground, Sidewalks
Security Features: Gated Community, Gated with Guard
Association Amenities: Recreation Facilities, Playground, Tennis Court(s), Pool, Fitness Center, Park, Gated, Clubhouse, Basketball Court
HOA Dues Include: Insurance, Maintenance Structure, Pool(s), Pest Control, Reserve Fund, Maintenance Grounds, Security, Recreation Facilities
Homeowners Association: Yes
HOA Dues: $350 / Monthly
Driving Directions
From Southwest on Bruce B. Down Blvd., turn Right onto Oak Preserve Blvd., then Left onto Shining Oak Way, then Right onto Iron Oak Ave., then Left onto Noble Oak Place.
Financial Considerations
Terms: Cash,Conventional,FHA,VA Loan
Tax/Property ID: U-06-27-20-69N-000054-00001.0
Tax Amount: 5068
Tax Year: 2024
A broker reciprocity listing courtesy: SIGNATURE REALTY ASSOCIATES
Based on information provided by Stellar MLS as distributed by the MLS GRID. Information from the Internet Data Exchange is provided exclusively for consumers’ personal, non-commercial use, and such information may not be used for any purpose other than to identify prospective properties consumers may be interested in purchasing. This data is deemed reliable but is not guaranteed to be accurate by Edina Realty, Inc., or by the MLS. Edina Realty, Inc., is not a multiple listing service (MLS), nor does it offer MLS access.
Copyright 2025 Stellar MLS as distributed by the MLS GRID. All Rights Reserved.
Payment Calculator
Interest rate and annual percentage rate (APR) are based on current market conditions, are for informational purposes only, are subject to change without notice and may be subject to pricing add-ons related to property type, loan amount, loan-to-value, credit score and other variables. Estimated closing costs used in the APR calculation are assumed to be paid by the borrower at closing. If the closing costs are financed, the loan, APR and payment amounts will be higher. If the down payment is less than 20%, mortgage insurance may be required and could increase the monthly payment and APR. Contact us for details. Additional loan programs may be available. Accuracy is not guaranteed, and all products may not be available in all borrower's geographical areas and are based on their individual situation. This is not a credit decision or a commitment to lend.
Sales History & Tax Summary for 20312 Noble Oak Place
Sales History
| Date | Price | Change |
|---|---|---|
| Currently not available. | ||
Tax Summary
| Tax Year | Estimated Market Value | Total Tax |
|---|---|---|
| Currently not available. | ||
Data powered by ATTOM Data Solutions. Copyright© 2025. Information deemed reliable but not guaranteed.
Schools
Schools nearby 20312 Noble Oak Place
| Schools in attendance boundaries | Grades | Distance | Rating |
|---|---|---|---|
| Loading... | |||
| Schools nearby | Grades | Distance | Rating |
|---|---|---|---|
| Loading... | |||
Data powered by ATTOM Data Solutions. Copyright© 2025. Information deemed reliable but not guaranteed.
The schools shown represent both the assigned schools and schools by distance based on local school and district attendance boundaries. Attendance boundaries change based on various factors and proximity does not guarantee enrollment eligibility. Please consult your real estate agent and/or the school district to confirm the schools this property is zoned to attend. Information is deemed reliable but not guaranteed.
SchoolDigger ® Rating
The SchoolDigger rating system is a 1-5 scale with 5 as the highest rating. SchoolDigger ranks schools based on test scores supplied by each state's Department of Education. They calculate an average standard score by normalizing and averaging each school's test scores across all tests and grades.
Coming soon properties will soon be on the market, but are not yet available for showings.