$152,500
204 1st Street Welcome, MN 56181
Active Contingent MLS# 7026346
2 beds 3 baths 2,403 sq ft Single Family
Details for 204 1st Street
MLS# 7026346
Description for 204 1st Street, Welcome, MN, 56181
Check out this versatile 2-bedroom, 3 bath home located in Welcome, MN. The main level features a large laundry room for everyday convenience and an office that can easily serve as a third bedroom if desired. Enjoy the benefits of an attached garage plus a 16x10 workshop—perfect for hobbies, storage, or projects. Call today to schedule a tour!
Listing Information
Property Type: Residential, Single Family
Status: Active Contingent-Inspection
Bedrooms: 2
Bathrooms: 3
Lot Size: 0.21 Acres
Square Feet: 2,403 sq ft
Year Built: 1955
Foundation: 1,381 sq ft
Garage: Yes
Stories: 1 Story
Subdivision: Out Lt Add
County: Martin
Days On Market: 19
Construction Status: Previously Owned
School Information
District: 2448 - Martin County West
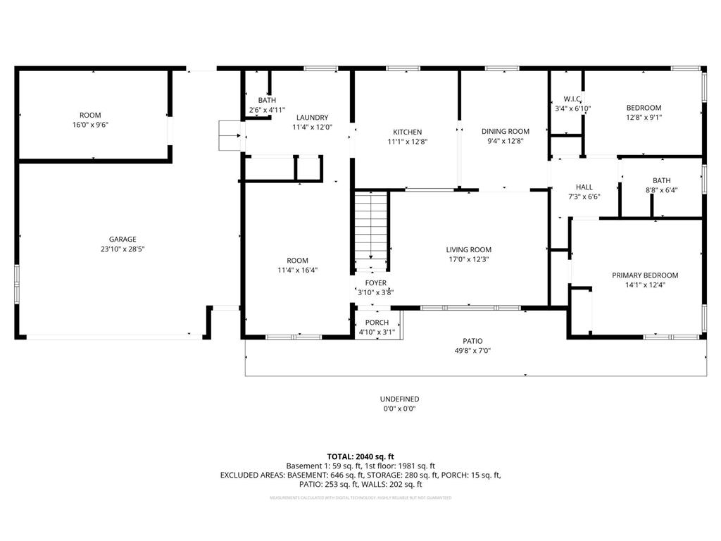
Room Information
Main Floor
Bathroom: 3x5
Bathroom: 9x6
Bedroom 1: 13x9
Bedroom 2: 14x12
Dining Room: 9x13
Garage: 24x29
Kitchen: 12x13
Laundry: 11x12
Living Room: 17x12
Porch: 5x3
Walk-In Closet: 3x7
Workshop: 16x10
Lower Floor
Bathroom: 5x7
Great Room: 34x25
Utility Room: 27x12
Bathrooms
Full Baths: 1
3/4 Baths: 1
1/2 Baths: 1
Additonal Room Information
Family: Main Level
Dining: Informal Dining Room
Laundry: Laundry Room, Main Level, Sink
Bath Description: 3/4 Basement,Main Floor 1/2 Bath,Main Floor Full Bath
Interior Features
Square Footage above: 1,381 sq ft
Square Footage below: 1,022 sq ft
Appliances: Refrigerator, Dryer, Range, Freezer, Dishwasher, Washer, Exhaust Fan/Hood
Basement: Full
Additional Interior Features: Main Floor Laundry, Main Floor Bedroom, Main Floor Primary
Utilities
Water: City Water/Connected
Sewer: City Sewer/Connected
Cooling: Central
Heating: Natural Gas, Forced Air
Exterior / Lot Features
Attached Garage: Attached Garage
Garage Spaces: 1
Parking Description: Attached Garage, Driveway - Concrete, Garage Dimensions - 24x29, Garage Sq Ft - 696.0
Exterior: Vinyl
Lot Dimensions: 0.208 Acres
Zoning: Residential-Single Family
Additional Exterior/Lot Features: Tree Coverage - Light, Road Frontage - Curbs
Driving Directions
Heading north on Guide St, take a left onto First Street, the property is on the right.
Financial Considerations
Tax/Property ID: 425800430
Tax Amount: 3262
Tax Year: 2026
HomeStead Description: Homesteaded
A broker reciprocity listing courtesy: RE/MAX TOTAL REALTY
The data relating to real estate for sale on this web site comes in part from the Broker Reciprocity℠ Program of the Regional Multiple Listing Service of Minnesota, Inc. Real estate listings held by brokerage firms other than Edina Realty, Inc. are marked with the Broker Reciprocity℠ logo or the Broker Reciprocity℠ thumbnail and detailed information about them includes the name of the listing brokers. Edina Realty, Inc. is not a Multiple Listing Service (MLS), nor does it offer MLS access. This website is a service of Edina Realty, Inc., a broker Participant of the Regional Multiple Listing Service of Minnesota, Inc. IDX information is provided exclusively for consumers personal, non-commercial use and may not be used for any purpose other than to identify prospective properties consumers may be interested in purchasing. Open House information is subject to change without notice. Information deemed reliable but not guaranteed.
Copyright 2026 Regional Multiple Listing Service of Minnesota, Inc. All Rights Reserved.
Payment Calculator
Interest rate and annual percentage rate (APR) are based on current market conditions, are for informational purposes only, are subject to change without notice and may be subject to pricing add-ons related to property type, loan amount, loan-to-value, credit score and other variables. Estimated closing costs used in the APR calculation are assumed to be paid by the borrower at closing. If the closing costs are financed, the loan, APR and payment amounts will be higher. If the down payment is less than 20%, mortgage insurance may be required and could increase the monthly payment and APR. Contact us for details. Additional loan programs may be available. Accuracy is not guaranteed, and all products may not be available in all borrower's geographical areas and are based on their individual situation. This is not a credit decision or a commitment to lend.
Sales History & Tax Summary for 204 1st Street
Sales History
| Date | Price | |
|---|---|---|
| Currently not available. | ||
Tax Summary
| Tax Year | Estimated Market Value | Total Tax |
|---|---|---|
| Currently not available. | ||
Data powered by ATTOM Data Solutions. Copyright© 2026. Information deemed reliable but not guaranteed.
Schools
Schools nearby 204 1st Street
| Schools in attendance boundaries | Grades | Distance | Rating |
|---|---|---|---|
| Loading... | |||
| Schools nearby | Grades | Distance | Rating |
|---|---|---|---|
| Loading... | |||
Data powered by ATTOM Data Solutions. Copyright© 2026. Information deemed reliable but not guaranteed.
The schools shown represent both the assigned schools and schools by distance based on local school and district attendance boundaries. Attendance boundaries change based on various factors and proximity does not guarantee enrollment eligibility. Please consult your real estate agent and/or the school district to confirm the schools this property is zoned to attend. Information is deemed reliable but not guaranteed.
SchoolDigger ® Rating
The SchoolDigger rating system is a 1-5 scale with 5 as the highest rating. SchoolDigger ranks schools based on test scores supplied by each state's Department of Education. They calculate an average standard score by normalizing and averaging each school's test scores across all tests and grades.
Coming soon properties will soon be on the market, but are not yet available for showings.