$589,085
Off-Market Date: 11/17/20252048 Maverick Court Minneola, FL 34715
Pending MLS# G5104658
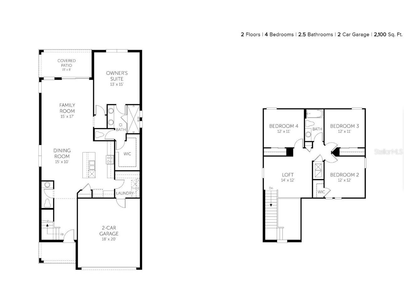
4 beds 3 baths 2,100 sq ft Single Family
Details for 2048 Maverick Court
MLS# G5104658
Description for 2048 Maverick Court, Minneola, FL, 34715
One or more photo(s) has been virtually staged. Under Construction. Sample Images The Magnolia, Fully Upgraded with upgraded Cabinets, Counters, Flooring and More! Call today to learn more about the spectacular features included in this home. Hills of Minneola, this home is close to all area shops, restaurants, entertainment, schools and MORE!
Listing Information
Property Type: Residential, Single Family Residence
Status: Pending
Bedrooms: 4
Bathrooms: 3
Lot Size: 0.16 Acres
Square Feet: 2,100 sq ft
Year Built: 2025
Garage: Yes
Stories: 2 Story
Construction: Block,Stucco
Construction Display: New Construction
Subdivision: Hills Of Minneola
Builder: DREAM FINDERS HOMES
Foundation: Slab
County: Lake
Construction Status: Under Construction
School Information
Elementary: Grassy Lake Elementary
Middle: East Ridge Middle
High: Lake Minneola High
Room Information
Main Floor
Primary Bathroom: 6x12
Primary Bedroom: 15x13.3
Kitchen: 11x15
Dining Room: 10x15.6
Living Room: 17x15
Upper Floor
Loft: 11.1x14
Bedroom 4: 11x11.8
Bedroom 3: 11x11.8
Bedroom 2: 11.1x11.8
Bathrooms
Full Baths: 2
1/2 Baths: 1
Additonal Room Information
Laundry: Inside, Laundry Room
Interior Features
Appliances: Convection Oven, Ice Maker, Electric Water Heater, Built-In Oven, Microwave, Cooktop, Dishwasher, Disposal
Flooring: Carpet,Tile
Additional Interior Features: Eat-In Kitchen, Living/Dining Room, Split Bedrooms, Walk-In Closet(s), Open Floorplan, Main Level Primary, Kitchen/Family Room Combo
Utilities
Water: Public
Sewer: Public Sewer
Other Utilities: Electricity Available,Fiber Optic Available,Underground Utilities
Cooling: Central Air
Heating: Electric
Exterior / Lot Features
Attached Garage: Attached Garage
Garage Spaces: 2
Roof: Shingle
Pool: Community, Association
Lot Dimensions: 40X100
Additional Exterior/Lot Features: Sprinkler/Irrigation, Enclosed, Screened, Front Porch, Rear Porch, Cleared
Community Features
Community Features: Playground, Sidewalks, Pool, Park, Fitness
Security Features: Smoke Detector(s)
Association Amenities: Playground, Clubhouse, Pool, Park
HOA Dues Include: Maintenance Grounds, Recreation Facilities, Pool(s)
Homeowners Association: Yes
HOA Dues: $100 / Annually
Driving Directions
US-27 N Turn right onto Citrus Tower Blvd Turn right onto N Ridge Blvd Turn left onto N Hancock Rd model 1684 Pyramid Hills Street, Minneola, FL 34715
Financial Considerations
Terms: Cash,Conventional,FHA,VA Loan
Tax/Property ID: 32-21-26-0025-000-10500
Tax Amount: 375
Tax Year: 2023
A broker reciprocity listing courtesy: OLYMPUS EXECUTIVE REALTY INC
Based on information provided by Stellar MLS as distributed by the MLS GRID. Information from the Internet Data Exchange is provided exclusively for consumers’ personal, non-commercial use, and such information may not be used for any purpose other than to identify prospective properties consumers may be interested in purchasing. This data is deemed reliable but is not guaranteed to be accurate by Edina Realty, Inc., or by the MLS. Edina Realty, Inc., is not a multiple listing service (MLS), nor does it offer MLS access.
Copyright 2026 Stellar MLS as distributed by the MLS GRID. All Rights Reserved.
Sales History & Tax Summary for 2048 Maverick Court
Sales History
| Date | Price | |
|---|---|---|
| Currently not available. | ||
Tax Summary
| Tax Year | Estimated Market Value | Total Tax |
|---|---|---|
| Currently not available. | ||
Data powered by ATTOM Data Solutions. Copyright© 2026. Information deemed reliable but not guaranteed.
Schools
Schools nearby 2048 Maverick Court
| Schools in attendance boundaries | Grades | Distance | Rating |
|---|---|---|---|
| Loading... | |||
| Schools nearby | Grades | Distance | Rating |
|---|---|---|---|
| Loading... | |||
Data powered by ATTOM Data Solutions. Copyright© 2026. Information deemed reliable but not guaranteed.
The schools shown represent both the assigned schools and schools by distance based on local school and district attendance boundaries. Attendance boundaries change based on various factors and proximity does not guarantee enrollment eligibility. Please consult your real estate agent and/or the school district to confirm the schools this property is zoned to attend. Information is deemed reliable but not guaranteed.
SchoolDigger ® Rating
The SchoolDigger rating system is a 1-5 scale with 5 as the highest rating. SchoolDigger ranks schools based on test scores supplied by each state's Department of Education. They calculate an average standard score by normalizing and averaging each school's test scores across all tests and grades.
Coming soon properties will soon be on the market, but are not yet available for showings.